Ihr Traumhaus zum Familienglück mit Grundstück in ruhiger Wohngegend!
710.000 €
Kaufpreis
165 m²
Wohnfläche
6
Zimmer
immobilien.de Nr.: 9025574
Objektnummer: WW49-006
Preise & Kosten
| Kaufpreis | 710.000 € |
| Nebenkosten | keine Angabe |
Größe & Zustand
| Wohnfläche | 165 m² |
| Grundstücksfläche | 800 m² |
| Zimmer | 6 |
| Verfügbar ab | keine Angabe |
| Zustand | Projektiert |
Energie
| Energietyp | KfW-40 |
Objektbeschreibung
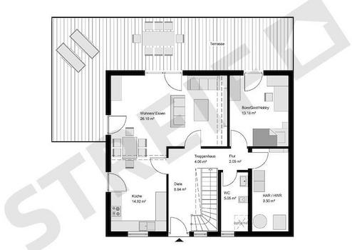
Willkommen in Ihrem zukünftigen Traumhaus! Dieses großzügige Einfamilienhaus, projektiert nach Ihren individuellen Wünschen, bietet Ihnen den perfekten Rückzugsort in einem ruhigen Wohngebiet von Trostberg. Mit einer beeindruckenden Wohnfläche von 165 m² auf einem 800 m² großen Grundstück haben Sie genügend Raum für Ihre Familie und all Ihre Pläne. Das Haus erstreckt sich über zwei Etagen, beherbergt sechs Zimmer, darunter drei geräumige Schlafzimmer, ein modernes Badezimmer sowie ein zusätzliches Gäste-WC. Der KFW40-Standard sorgt für eine energieeffiziente und umweltfreundliche Lebensweise. Lassen Sie uns gemeinsam Ihre Vorstellungen und Wünsche ermitteln, um Ihr maßgeschneidertes Einfamilienhaus zu planen.
Ausstattung
| Anzahl der Etagen im Haus | 2 |
| Bad | 1 |
Ihr neues Zuhause wird mit hochwertigen Wand- und Bodenbelägen sowie eleganten Zimmertüren ausgestattet sein. Die Ausbaustufe 'Schlüsselfertig' ermöglicht es Ihnen, alles aus einer Hand zu erhalten und die Bauzeit signifikant zu verkürzen. Unsere Bauweise garantiert Qualität und Präzision in jedem Detail.
Sonstige Informationen
Bei STREIF haben Sie die Wahl zwischen vier verschiedenen Ausbaustufen. Unsere Standard-Ausbaustufe ist 'Fast-Fertig Plus', jedoch bietet dieses projektierte Objekt die Stufe 4 - 'Schlüsselfertig', bei der alle Innenausbauarbeiten wie Wand- und Bodenbeläge sowie Zimmertüren inkludiert sind. Diese Stufe ermöglicht es Ihnen, Zeitvorteile optimal zu nutzen und sorgt dafür, dass Ihr Traumhaus ab 381.371 EUR bezugsfertig ist. Nutzen Sie die Möglichkeit der Eigenleistung durch eine Muskelhypothek, um Kosten zu sparen und finanzielle Vorteile zu genießen.
Lage des Objektes
Das Haus liegt in der malerischen Stadt Trostberg, eingebettet in ein idyllisches Wohngebiet. Hier genießen Sie die Vorzüge einer ausgezeichneten Infrastruktur mit Schulen, Einkaufsmöglichkeiten und Freizeitangeboten in unmittelbarer Nähe. Die Umgebung bietet zahlreiche Möglichkeiten zur Erholung und Freizeitgestaltung im Grünen.
Anbieter kontaktieren
Kontakt
| Telefon | +49 8641 6973232 |
| Mobil | +49 151 51595431 |
| Website | www.streif.de |
