Geräumiger Bungalow in Eckenhaid inkl. Grundstück
699.000 €
Kaufpreis
108 m²
Wohnfläche
3
Zimmer
immobilien.de Nr.: 9017388
Objektnummer: HSMPBUEck1
Preise & Kosten
| Kaufpreis | 699.000 € |
| Nebenkosten | keine Angabe |
Größe & Zustand
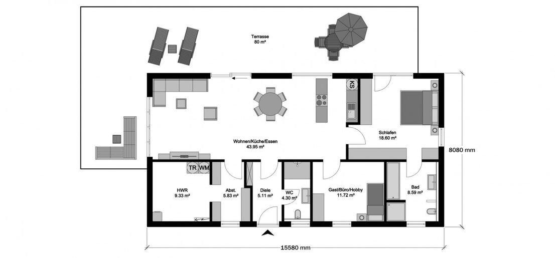
| Wohnfläche | 108 m² |
| Grundstücksfläche | 536 m² |
| Zimmer | 3 |
| Baujahr | 2025 |
| Verfügbar ab | keine Angabe |
Energie
| Energietyp | KfW-40 |
Objektbeschreibung
Entdecken Sie den Inbegriff modernen Wohnens mit einem STREIF-Fertighaus Bungalow in Eckental. Auf einer großzügigen Wohnfläche von 108 m², eingebettet auf einem 536 m² großen Grundstück, bieten wir Ihnen die Freiheit, Ihren Traum vom Eigenheim ganz nach Ihren Wünschen zu realisieren. Entscheiden Sie sich für ein Design, das Ihren Stil widerspiegelt - sei es ein geradliniger oder verwinkelter Grundriss, mit Keller oder ohne. Die Vielfalt der Dachformen, wie das klassische Walmdach oder das moderne Flachdach im Bauhausstil, ermöglicht eine individuelle Anpassung an Ihre Präferenzen.
Ausstattung
| Anzahl der Etagen im Haus | 1 |
| Bad | 1 |
| Bad | Dusche, Wanne, Fenster |
| Terrassen | 1 |
| Barrierefrei | |
| Carport | 1 |
Unsere Bungalows überzeugen durch hochwertige bauliche und technische Details. Freuen Sie sich auf ein zusätzliches Gäste-WC und zahlreiche Gestaltungsmöglichkeiten bei der Innenraumplanung. Jede Entscheidung spiegelt höchste Qualitätsstandards wider und garantiert Ihnen ein langlebiges und komfortables Zuhause.
Sonstige Informationen
Das Angebot ist Schlüsselfertig.
Nicht im genannten Preis enthalten sind die Erdarbeiten, Baunebenkosten, Außenanlagen, Möblierung etc.
Nicht im genannten Preis enthalten sind die Erdarbeiten, Baunebenkosten, Außenanlagen, Möblierung etc.
Lage des Objektes
Eckental bietet Ihnen nicht nur eine idyllische Umgebung, sondern auch eine hervorragende Infrastruktur. Genießen Sie die Nähe zu Einkaufsmöglichkeiten, Schulen und Freizeiteinrichtungen. Die perfekte Balance aus Ruhe und urbanem Komfort macht diesen Standort besonders attraktiv für Familien und Ruhesuchende.
