Aussicht und Lebensqualität - Ihr gemütliches Zuhause - Perfekte Familienoase in Olching
860.000 €
Kaufpreis
140 m²
Wohnfläche
5
Zimmer
immobilien.de Nr.: 9005471
Objektnummer: 854640
Preise & Kosten
| Kaufpreis | 860.000 € |
| Nebenkosten | keine Angabe |
| Maklerprovision | 2,38 % (inkl. MwSt.) |
Größe & Zustand
| Wohnfläche | 140 m² |
| Grundstücksfläche | 300 m² |
| Zimmer | 5 |
| Baujahr | 1978 |
| Verfügbar ab | nach Absprache |
| Zustand | Gepflegt |
Energie
| Energieausweistyp | Bedarfsausweis |
| Ausstellungsdatum | 31. 03. 2025 |
| Baujahr (laut Energieausweis) | 1978 |
| Energieeffizienzklasse | E |
| Endenergiebedarf | 152.49 |
| Heizungsart | Zentralheizung |
| Wesentlicher Energieträger | Gas |
| Energieträger/Befeuerung | Gas |
Objektbeschreibung
Entdecken Sie Ihr neues Zuhause: ein großzügiges Reiheneckhaus. Diese Immobilie bietet die perfekte Kombination aus ruhigem Wohnen und guter Anbindung an das pulsierende Leben.
Das gepflegte Reiheneckhaus erstreckt sich über drei Etagen und bietet ausreichend Platz für eine Familie. Besonders hervorzuheben sind der großzügige, sonnige Garten mit unverbautem Blick und die schöne Terrasse, die zum Entspannen und Verweilen einladen.
Erdgeschoss: Das Erdgeschoss empfängt Sie mit einem Windfang, von dem aus Sie in den kombinierten Ess- und Eingangsbereich gelangen. Die Küche befindet sich direkt gegenüber der Diele und bietet ausreichend Platz für Ihre Kochideen. Eine praktische Garderobe und ein separates Gäste-WC befinden sich ebenfalls im Erdgeschoss. Der großzügige Wohnraum besticht durch seine Helligkeit und lädt mit direktem Zugang zur Terrasse. Der Garten ist nach Süden ausgerichtet.
Obergeschoss: Im Obergeschoss befinden sich drei Räume, die individuell als Schlaf-, Kinder- oder Arbeitszimmer genutzt werden können. Zwei der Zimmer haben Zugang zu einer Loggia, die zusätzlichen Platz im Freien bietet. Das Bad im Obergeschoss ist mit Wanne und Dusche ausgestattet und bietet alles, was für den täglichen Komfort notwendig ist.
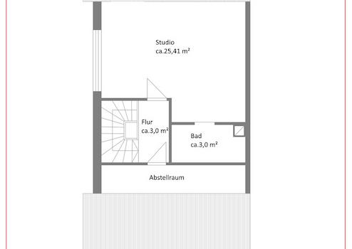
Dachgeschoss: Das Dachgeschoss ist ein Highlight dieser Immobilie. Über einen kleinen Flur gelangt man in das großzügige Studio, das sich ideal als Schlaf- oder Gästezimmer eignet. Ein weiteres Bad im Dachgeschoss sorgt für zusätzlichen Komfort. Außerdem befindet sich hier ein praktischer Abstellraum.
Untergeschoss: Das Untergeschoss bietet viel Stauraum und Nutzfläche. Ein kleiner Flur führt zu einem großen Hobbyraum, der vielseitig genutzt werden kann. Zudem befinden sich hier ein Abstellraum und der Heizungsraum.
Weitere Angebote unter www.GARANT-IMMO.de
Das gepflegte Reiheneckhaus erstreckt sich über drei Etagen und bietet ausreichend Platz für eine Familie. Besonders hervorzuheben sind der großzügige, sonnige Garten mit unverbautem Blick und die schöne Terrasse, die zum Entspannen und Verweilen einladen.
Erdgeschoss: Das Erdgeschoss empfängt Sie mit einem Windfang, von dem aus Sie in den kombinierten Ess- und Eingangsbereich gelangen. Die Küche befindet sich direkt gegenüber der Diele und bietet ausreichend Platz für Ihre Kochideen. Eine praktische Garderobe und ein separates Gäste-WC befinden sich ebenfalls im Erdgeschoss. Der großzügige Wohnraum besticht durch seine Helligkeit und lädt mit direktem Zugang zur Terrasse. Der Garten ist nach Süden ausgerichtet.
Obergeschoss: Im Obergeschoss befinden sich drei Räume, die individuell als Schlaf-, Kinder- oder Arbeitszimmer genutzt werden können. Zwei der Zimmer haben Zugang zu einer Loggia, die zusätzlichen Platz im Freien bietet. Das Bad im Obergeschoss ist mit Wanne und Dusche ausgestattet und bietet alles, was für den täglichen Komfort notwendig ist.
Dachgeschoss: Das Dachgeschoss ist ein Highlight dieser Immobilie. Über einen kleinen Flur gelangt man in das großzügige Studio, das sich ideal als Schlaf- oder Gästezimmer eignet. Ein weiteres Bad im Dachgeschoss sorgt für zusätzlichen Komfort. Außerdem befindet sich hier ein praktischer Abstellraum.
Untergeschoss: Das Untergeschoss bietet viel Stauraum und Nutzfläche. Ein kleiner Flur führt zu einem großen Hobbyraum, der vielseitig genutzt werden kann. Zudem befinden sich hier ein Abstellraum und der Heizungsraum.
Weitere Angebote unter www.GARANT-IMMO.de
Ausstattung
| Küche | Einbauküche |
| Bad | 2 |
| Boden | Fliesen, Parkett |
| Balkone | 1 |
* Terrasse und Garten (südliche Ausrichtung)
* 2008: Fenster mit überwiegend elektrischen Rolllos
* 2009 Hausisolierung
* 2010: Dach und große Gaube
* 2010: Gas-Brennwert Heizung von Buderus und Solar
für Warmwasser
* Die Immobilie ist in einem sehr guten Zustand
und wurde kontinuierlich gepflegt
* ideal für eine Familie oder als großzügiger Wohnraum
für Paare
* 2008: Fenster mit überwiegend elektrischen Rolllos
* 2009 Hausisolierung
* 2010: Dach und große Gaube
* 2010: Gas-Brennwert Heizung von Buderus und Solar
für Warmwasser
* Die Immobilie ist in einem sehr guten Zustand
und wurde kontinuierlich gepflegt
* ideal für eine Familie oder als großzügiger Wohnraum
für Paare
Sonstige Informationen
Energiebedarfsausweis
Energiekennwert: 152,49 kWh/(qm*a)
Energieeffizienz: Klasse E (<160)
Heizung: Zentralheizung mit Gas
Baujahr laut Energieausweis: 1978
Energiekennwert: 152,49 kWh/(qm*a)
Energieeffizienz: Klasse E (<160)
Heizung: Zentralheizung mit Gas
Baujahr laut Energieausweis: 1978
Lage des Objektes
Das Reiheneckhaus befindet sich in einer ruhigen und dennoch zentralen Lage am Ortsrand von Olching. Die Umgebung zeichnet sich durch eine angenehme Nachbarschaft sowie eine sehr gute Anbindung an den öffentlichen Nahverkehr und das Straßennetz aus. Einkaufsmöglichkeiten, Schulen und Kindergärten sind bequem zu erreichen. In wenigen Minuten erreichen Sie sowohl das Stadtzentrum als auch weitläufige Grünflächen und Naherholungsgebiete. Natürlich ist ein breites Angebot an Haus- und Fachärzten vor Ort. Nicht zu vergessen das vielfältige Gastronomieangebot.
Zur Autobahnauffahrt A8 Fürstenfeldbruck/Dachau sind es nur wenige Fahrminuten. Die Bushaltestelle ist fußläufig erreichbar, wodurch eine regelmäßige Verbindung zum Olchinger S-Bahnhof (Linie S3) gewährleistet ist. Fußläufig sind es ca. 20 Minuten.
Die Stadt selbst und das Umland bieten eine Vielzahl an Sport-und Freizeitaktivitäten: Sport- und Mehrzweckhallen, herrliche Rad- und Wanderwege, Badesee mit Restaurant, Hallenbad, Minigolfanlage, Tennisplätze, Golfclub mit 18-Loch Championship Course.
Zur Autobahnauffahrt A8 Fürstenfeldbruck/Dachau sind es nur wenige Fahrminuten. Die Bushaltestelle ist fußläufig erreichbar, wodurch eine regelmäßige Verbindung zum Olchinger S-Bahnhof (Linie S3) gewährleistet ist. Fußläufig sind es ca. 20 Minuten.
Die Stadt selbst und das Umland bieten eine Vielzahl an Sport-und Freizeitaktivitäten: Sport- und Mehrzweckhallen, herrliche Rad- und Wanderwege, Badesee mit Restaurant, Hallenbad, Minigolfanlage, Tennisplätze, Golfclub mit 18-Loch Championship Course.
Anbieter kontaktieren
Kontakt
| Telefon | 08142/65 248-0 |
| Fax | 08142/65 248-70 |
| Website | www.garant-immo.de |
