Doppelhaushälfte Neubau + Bodenplatte + Grundstück + PV Aktion !
456.000 €
Kaufpreis
118 m²
Wohnfläche
9 m²
Nutzfläche
5
Zimmer
immobilien.de Nr.: 8963384
Objektnummer: HDDB250301
Preise & Kosten
| Kaufpreis | 456.000 € |
| Nebenkosten | keine Angabe |
| Maklerprovision | Grundstück 2% |
Größe & Zustand
| Wohnfläche | 118 m² |
| Nutzfläche | 9 m² |
| Grundstücksfläche | 850 m² |
| Zimmer | 5 |
| Baujahr | 2025 |
| Verfügbar ab | 2025/2026 |
| Zustand | Projektiert |
Objektbeschreibung
Erleben Sie Ihr Traumhaus mit STREIF in Ebersdorf in der attraktiven Ortslage. Unsere modernen Doppelhaushälften sind das perfekte Zuhause für Familien und Paare, die Wert auf effiziente Raumnutzung und höchsten Wohnkomfort legen. Mit ca. 118 m² Wohnfläche verteilt auf 1 1/2 Etagen, fünf Zimmern, darunter drei Schlafzimmer und ein Badezimmer, bietet dieses Projekt die ideale Raumaufteilung für ein harmonisches Familienleben. Das Konzept des projektierten Doppelhauses ermöglicht es Ihnen, kleine Flächen optimal zu nutzen, was gerade bei steigenden Grundstückspreisen von großem Vorteil ist. Unsere Entwürfe sind variabel und können individuell nach Ihren Wünschen angepasst werden.
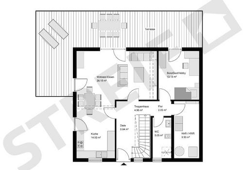
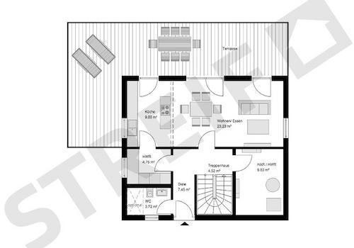
Objektart: Doppelhaushälfte, 1 ½ geschossig
Dachform: Satteldach
Hausmaße: 7,36 m x 10,58 m
Netto-Raumfläche: 132,73 m²
Objektart: Doppelhaushälfte, 1 ½ geschossig
Dachform: Satteldach
Hausmaße: 7,36 m x 10,58 m
Netto-Raumfläche: 132,73 m²
Ausstattung
| Anzahl der Etagen im Haus | 2 |
| Bad | 1 |
| Boden | Fliesen, Laminat |
20-monatige Fair- und Festpreisgarantie
Inklusive gedämmter Fundamentplatte
Inklusive STREIF-Luft-Luft-Wärmepumpen-Technologie, mit integrierter Lüftungsanlage mit Wärmerückgewinnung
Inklusive hochwertiger Kunststoffhaustür
Inklusive Massivholz-Geschosstreppe aus eigener Produktion (außer Bungalow)
Inklusive Sanitärobjekten von Markenherstellern in Bad/WC
Inklusive Elektroinstallation u.v.m.
Inklusive Vorbereitung zur Installation einer Photovoltaik-Anlage
- Aktuelle PV - Aktion beachten (zeitlich begrenzt)
Inklusive individueller Grundrissgestaltung und Raumaufteilung |
Die STREIF-Passiv-Außenwand und eine sparsame Heiztechnik mit integrierter Wohnraumlüftung und Wärmerückgewinnung garantieren einen geringen Energieverbrauch und ein fantastisches Raumklima, das insbesondere Allergiker aufatmen lässt.
Die hohe Wertigkeit und Langlebigkeit eines STREIF-Energiespar-Hauses werden durch zahlreiche Auszeichnungen, Qualitäts- und Gütesiegel unabhängiger Institute und Verbände dokumentiert.
Der Angebotspreis ist inklusive Grundstück und bezieht sich auf die Standard-Ausbaustufe "schlüsselfertig".
Inklusive gedämmter Fundamentplatte
Inklusive STREIF-Luft-Luft-Wärmepumpen-Technologie, mit integrierter Lüftungsanlage mit Wärmerückgewinnung
Inklusive hochwertiger Kunststoffhaustür
Inklusive Massivholz-Geschosstreppe aus eigener Produktion (außer Bungalow)
Inklusive Sanitärobjekten von Markenherstellern in Bad/WC
Inklusive Elektroinstallation u.v.m.
Inklusive Vorbereitung zur Installation einer Photovoltaik-Anlage
- Aktuelle PV - Aktion beachten (zeitlich begrenzt)
Inklusive individueller Grundrissgestaltung und Raumaufteilung |
Die STREIF-Passiv-Außenwand und eine sparsame Heiztechnik mit integrierter Wohnraumlüftung und Wärmerückgewinnung garantieren einen geringen Energieverbrauch und ein fantastisches Raumklima, das insbesondere Allergiker aufatmen lässt.
Die hohe Wertigkeit und Langlebigkeit eines STREIF-Energiespar-Hauses werden durch zahlreiche Auszeichnungen, Qualitäts- und Gütesiegel unabhängiger Institute und Verbände dokumentiert.
Der Angebotspreis ist inklusive Grundstück und bezieht sich auf die Standard-Ausbaustufe "schlüsselfertig".
Sonstige Informationen
Qualität und Ausstattung: Premium
Grundstücksfläche: ca 850 m²
Zuzüglich Erwerbs + üblicher Baunebenkosten.
Fördermittel sind verfügbar - sprechen Sie uns an.
Hausgröße und Raumaufteilung nach Ihren Wünschen
Bilder können evtl. Anbauteile, Carports, Balkone, Gauben usw. zeigen, die nicht im Angebotspreis enthalten sind.
Vorverkauf und Irrtümer sind vorbehalten
Bau- und Kaufnebenkosten fallen zuzüglich an. Der Verkauf des Grundstücks erfolgt über einen unserer Netzwerkpartner. Änderungen und Irrtümer vorbehalten. Fragen Sie Ihre persönliche STREIF-Bauberatung.
Grundstücksfläche: ca 850 m²
Zuzüglich Erwerbs + üblicher Baunebenkosten.
Fördermittel sind verfügbar - sprechen Sie uns an.
Hausgröße und Raumaufteilung nach Ihren Wünschen
Bilder können evtl. Anbauteile, Carports, Balkone, Gauben usw. zeigen, die nicht im Angebotspreis enthalten sind.
Vorverkauf und Irrtümer sind vorbehalten
Bau- und Kaufnebenkosten fallen zuzüglich an. Der Verkauf des Grundstücks erfolgt über einen unserer Netzwerkpartner. Änderungen und Irrtümer vorbehalten. Fragen Sie Ihre persönliche STREIF-Bauberatung.
Lage des Objektes
Das Doppelhausprojekt befindet sich in Ebersdorf bei Coburg, im beliebten Gebiet der Ortslage. Diese Lage bietet Ihnen eine ausgezeichnete Infrastruktur sowie zahlreiche Freizeitmöglichkeiten. Genießen Sie die Nähe zu allen wichtigen Einrichtungen des täglichen Lebens und profitieren Sie von kurzen Wegen zu Schulen, Einkaufsmöglichkeiten sowie kulturellen Angeboten.
Anbieter kontaktieren
Kontakt
| Mobil | +49 152 01717335 |
| Website | www.streif.de |
