*** VERKAUFT *** Einfamilienhaus in Bayerbach/Campingplatz-in der Golf- und Thermenwelt Bad Birnbach
0 €
Kaufpreis
120 m²
Wohnfläche
10 m²
Nutzfläche
4
Zimmer
immobilien.de Nr.: 8951361
Objektnummer: PAN_EXP_2025_02_26_1
Preise & Kosten
| Kaufpreis | 0 € |
| Nebenkosten | keine Angabe |
| Maklerprovision | 3,57 % Courtage jeweils für Verkäufer und Käufer |
| Stellplatz Garage Kaufpreis | 0 € |
Größe & Zustand
| Wohnfläche | 120 m² |
| Nutzfläche | 10 m² |
| Gesamtfläche | 130 m² |
| Grundstücksfläche | 378 m² |
| Zimmer | 4 |
| Baujahr | 2016 |
| Verfügbar ab | keine Angabe |
| Zustand | Neuwertig |
Energie
| Energieausweistyp | Bedarfsausweis |
| Ausstellungsdatum | 27. 08. 2020 |
| Gültig bis | 2030-08-26 |
| Baujahr (laut Energieausweis) | 2016 |
| Energieeffizienzklasse | B |
| Endenergiebedarf | 71.10 |
| Heizungsart | Fußbodenheizung |
| Wesentlicher Energieträger | Erdgas Leicht |
| Energieträger/Befeuerung | Gas |
Objektbeschreibung
***
Und am Ende der Straße steht ein Haus am See Orangenbaumblätter liegen auf dem Weg - ich hab 20 Kinder, meine Frau ist schön, mh - Alle komm'n vorbei, ich brauch nie rauszugeh'n (wouh) - Im Traum geseh'n, das Haus am See ... (Lied von Peter Fox ‧ 2008)
***
VEREINBAREN SIE NOCH HEUTE EINEN, IHREN BESICHTIGUNGSTERMIN!
BESONDERHEITEN DES HAUSES
• neuwertiges Einfamilienhaus in Massivholzbauweise
• sehr solide und professionelle Fertighausbauweise
• Baujahr 2016 und Erstbezug des gepflegten Hauses 2017
• gedämmte Außenwände für optimale Wärmenutzung
• Wärmedämmverglasung
• hochwertige Parkettböden in allen Räumen im Obergeschoss
• hochwertige Fliesen im Erdgeschoss
• Fußbodenheizung im Erd- und Obergeschoss
• Rollos im gesamten Haus - im Wohnraum elektrisch
• elektrische Markise im Erd- und Obergeschoss
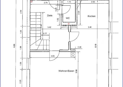
ERDGESCHOSS
• lichtdurchfluteter - offener Wohn- und Essbereich
• moderne und offene Küche mit Küchengeräten
• Kaminanschluss für einen modernen Kachelofen im Wohnraum
• Gäste-Toilette mit Fenster
• Abstellraum für Reinigungsgeräte, usw...
• Wasserentkalkungsanlage über App steuerbar
OBERGESCHOSS
• mit 3 Räumen und einem Badezimmer
• Heizungsraum mit Waschmaschine und Trockner
• Badezimmer mit Wanne, Dusche, Waschbecken und Toilette
• Schlafzimmer mit begehbarem Kleiderschrank und Balkonzugang
• Kinderzimmer mit Zugang zum Balkon
• weiteres Zimmer für Kind/Büro oder Hobby
• alle Räume mit offenem Dachstuhl
AUSSENBEREICH
• Terrasse mit Gartenhaus
• Grundstück mit Hecke eingefriedet
• Garage und Parkplatz für 2 Fahrzeuge
BESTENS GEEIGNET FÜR
• Paare, Familien, Altersruhesitz, Ferienhaus für Golfer
• auch als Zweitwohnsitz im Bäderdreieck
LAGE
• in 5 Minuten zum Natursee, Sauna- und Thermenwelt
• wunderschöne Neubausiedlung mit Blick ins Grüne
ANGABEN ZU ENERGIEWERTEN
• Objektart: Haus
• Wohnfläche: 120,00 m2
• Grundstücksfläche: 378,00 m2
• Wesentl. Energieträger: Erdgas leicht
• Energieeffizienzklasse: B
• Art des Energieausweises: Bedarfsausweis
• Endenergiebedarf/-verbrauch: 71,1 kWh/m2
• Baujahr lt Energieausweis: 2016
Und am Ende der Straße steht ein Haus am See Orangenbaumblätter liegen auf dem Weg - ich hab 20 Kinder, meine Frau ist schön, mh - Alle komm'n vorbei, ich brauch nie rauszugeh'n (wouh) - Im Traum geseh'n, das Haus am See ... (Lied von Peter Fox ‧ 2008)
***
VEREINBAREN SIE NOCH HEUTE EINEN, IHREN BESICHTIGUNGSTERMIN!
BESONDERHEITEN DES HAUSES
• neuwertiges Einfamilienhaus in Massivholzbauweise
• sehr solide und professionelle Fertighausbauweise
• Baujahr 2016 und Erstbezug des gepflegten Hauses 2017
• gedämmte Außenwände für optimale Wärmenutzung
• Wärmedämmverglasung
• hochwertige Parkettböden in allen Räumen im Obergeschoss
• hochwertige Fliesen im Erdgeschoss
• Fußbodenheizung im Erd- und Obergeschoss
• Rollos im gesamten Haus - im Wohnraum elektrisch
• elektrische Markise im Erd- und Obergeschoss
ERDGESCHOSS
• lichtdurchfluteter - offener Wohn- und Essbereich
• moderne und offene Küche mit Küchengeräten
• Kaminanschluss für einen modernen Kachelofen im Wohnraum
• Gäste-Toilette mit Fenster
• Abstellraum für Reinigungsgeräte, usw...
• Wasserentkalkungsanlage über App steuerbar
OBERGESCHOSS
• mit 3 Räumen und einem Badezimmer
• Heizungsraum mit Waschmaschine und Trockner
• Badezimmer mit Wanne, Dusche, Waschbecken und Toilette
• Schlafzimmer mit begehbarem Kleiderschrank und Balkonzugang
• Kinderzimmer mit Zugang zum Balkon
• weiteres Zimmer für Kind/Büro oder Hobby
• alle Räume mit offenem Dachstuhl
AUSSENBEREICH
• Terrasse mit Gartenhaus
• Grundstück mit Hecke eingefriedet
• Garage und Parkplatz für 2 Fahrzeuge
BESTENS GEEIGNET FÜR
• Paare, Familien, Altersruhesitz, Ferienhaus für Golfer
• auch als Zweitwohnsitz im Bäderdreieck
LAGE
• in 5 Minuten zum Natursee, Sauna- und Thermenwelt
• wunderschöne Neubausiedlung mit Blick ins Grüne
ANGABEN ZU ENERGIEWERTEN
• Objektart: Haus
• Wohnfläche: 120,00 m2
• Grundstücksfläche: 378,00 m2
• Wesentl. Energieträger: Erdgas leicht
• Energieeffizienzklasse: B
• Art des Energieausweises: Bedarfsausweis
• Endenergiebedarf/-verbrauch: 71,1 kWh/m2
• Baujahr lt Energieausweis: 2016
Ausstattung
| Anzahl der Etagen im Haus | 2 |
| Küche | Offene Küche |
| Bad | 1 |
| Balkone | 1 |
| Terrassen | 1 |
| Garage/Stellplätze | 1 |
- Wohnfläche von 120qm
- Grundstücksfläche von 354qm
- 4 Zimmer
- Energieeffizienzklasse B
- Balkon vorhanden
- Zentralheizung
- Hochwertige Bodenbeläge
- Kaufpreis von 455000 Euro
- Grundstücksfläche von 354qm
- 4 Zimmer
- Energieeffizienzklasse B
- Balkon vorhanden
- Zentralheizung
- Hochwertige Bodenbeläge
- Kaufpreis von 455000 Euro
Sonstige Informationen
Es liegt ein Energiebedarfsausweis vor.
Dieser ist gültig bis 26.8.2030.
Endenergiebedarf beträgt 71.10 kwh/(m²*a).
Wesentlicher Energieträger der Heizung ist Erdgas leicht.
Das Baujahr des Objekts lt. Energieausweis ist 2016.
Die Energieeffizienzklasse ist B.
Dieser ist gültig bis 26.8.2030.
Endenergiebedarf beträgt 71.10 kwh/(m²*a).
Wesentlicher Energieträger der Heizung ist Erdgas leicht.
Das Baujahr des Objekts lt. Energieausweis ist 2016.
Die Energieeffizienzklasse ist B.
Lage des Objektes
*** EXKLUSIV BEI UNS – ICC (Immobilien Competence Center) – mit unserer Immobilienagentur in Pfarrkirchen, unserer Agentur für Wohnimmobilien bieten Ihnen exklusiv dieses wunderschöne Einfamilienhaus an! ***
*** KONTAKTIEREN SIE IHRE PERSÖNLICHEN BERATER ***
Robert Ausweger
Mobil: +49 – 171 – 86 57 02 7
Telefon: +49 – 8561 – 91 85 066
Mail:
Robert.Ausweger@ev-immo.de
Pfarrkirchen@ev-Immo.de
----- I C C -----
Immobilien Competence Center
Immpassion In Your Life
The Real Estate Company
Powered By EuV Immobilien.GmbH
*** MICRO-LAGE ***
Das wunderschöne Einfamilienhaus befindet sich in Bayerbach, innerhalb des Bäderdreiecks und der
golfreichsten Region Niederbayerns.
Die Ortschaft liegt etwas erhöht über dem sanften Tal der Rott in der Region Landshut, 18km östlich der Kreisstadt Pfarrkirchen, 13km westlich von Pocking, 21km südlich von Vilshofen, 24km südlich von Simbach und 40km von Passau entfernt.
Gemeinsam mit Bad Füssing und Bad Griesbach im Rottal bildet Bad Birnbach das niederbayerische Bäderdreieck,
Bayerbach befindet sich zwischen Bad Griesbach und Bad Birnbach.
In 7 Minuten erreichen Sie den Bad Birnbacher 18-Loch-Golfpark und die Rottal Therme mit über 2.400m²
Wasserflächen und 13 unterschiedlichen Saunen und Dampfbädern.
Bad Griesbach erreichen Sie innerhalb von 10 Autominuten.
Auch hier gibt es Golfplätze, Thermen und Restaurants.
Beide Orte eignen sich zur sportlichen Betätigung. Zum Wandern gibt es 33 Wanderwege auf über
250km Wegstrecke. Rottaler Schmankerl und internationale Küche, Konzerte und Kabarett befinden sich in der Nähe.
Darüber hinaus bietet das Rottal den Erholungssuchenden Ruhe und Entspannung. Einkaufsmöglichkeiten für den
täglichen Bedarf, Gemeindeverwaltung, Ärzte, Apotheken und diverse Gaststätten sind fußläufig zu erreichen.
Grundschule, Kindergarten sind in Bayerbach vorhanden.
Weitere Schulen befinden sich in Pfarrkirchen. Zum Flughafen Eggenfelden und Vilshofen sind es ca. 30km, zum
Airport München und Salzburg sind es ca. 100km.
Weitere
Informationen finden Sie unter
https://www.badbirnbach.de/bayerbach
https://de.wikipedia.org/wiki/Bayerbach_(Rottal-Inn
*** KONTAKTIEREN SIE IHRE PERSÖNLICHEN BERATER ***
Robert Ausweger
Mobil: +49 – 171 – 86 57 02 7
Telefon: +49 – 8561 – 91 85 066
Mail:
Robert.Ausweger@ev-immo.de
Pfarrkirchen@ev-Immo.de
----- I C C -----
Immobilien Competence Center
Immpassion In Your Life
The Real Estate Company
Powered By EuV Immobilien.GmbH
*** MICRO-LAGE ***
Das wunderschöne Einfamilienhaus befindet sich in Bayerbach, innerhalb des Bäderdreiecks und der
golfreichsten Region Niederbayerns.
Die Ortschaft liegt etwas erhöht über dem sanften Tal der Rott in der Region Landshut, 18km östlich der Kreisstadt Pfarrkirchen, 13km westlich von Pocking, 21km südlich von Vilshofen, 24km südlich von Simbach und 40km von Passau entfernt.
Gemeinsam mit Bad Füssing und Bad Griesbach im Rottal bildet Bad Birnbach das niederbayerische Bäderdreieck,
Bayerbach befindet sich zwischen Bad Griesbach und Bad Birnbach.
In 7 Minuten erreichen Sie den Bad Birnbacher 18-Loch-Golfpark und die Rottal Therme mit über 2.400m²
Wasserflächen und 13 unterschiedlichen Saunen und Dampfbädern.
Bad Griesbach erreichen Sie innerhalb von 10 Autominuten.
Auch hier gibt es Golfplätze, Thermen und Restaurants.
Beide Orte eignen sich zur sportlichen Betätigung. Zum Wandern gibt es 33 Wanderwege auf über
250km Wegstrecke. Rottaler Schmankerl und internationale Küche, Konzerte und Kabarett befinden sich in der Nähe.
Darüber hinaus bietet das Rottal den Erholungssuchenden Ruhe und Entspannung. Einkaufsmöglichkeiten für den
täglichen Bedarf, Gemeindeverwaltung, Ärzte, Apotheken und diverse Gaststätten sind fußläufig zu erreichen.
Grundschule, Kindergarten sind in Bayerbach vorhanden.
Weitere Schulen befinden sich in Pfarrkirchen. Zum Flughafen Eggenfelden und Vilshofen sind es ca. 30km, zum
Airport München und Salzburg sind es ca. 100km.
Weitere
Informationen finden Sie unter
https://www.badbirnbach.de/bayerbach
https://de.wikipedia.org/wiki/Bayerbach_(Rottal-Inn
Anbieter kontaktieren
Anbieter
EuV Immobilien.GmbH
Schwaibacher Straße 4
84364 Bad Birnbach - Asenham
Kontakt
| Telefon | 004985619185066 |
| Mobil | 00491718657027 |
