Ideal für Kapitalanleger! Ensemble von zwei MFH in zentrumsnaher Lage von Baden-Baden
1.560.000 €
Kaufpreis
543 m²
Wohnfläche
23
Zimmer
immobilien.de Nr.: 8917405
Objektnummer: 1042
Preise & Kosten
| Kaufpreis | 1.560.000 € |
| Nebenkosten | keine Angabe |
| Maklerprovision | 3,57 % inkl. MwSt. |
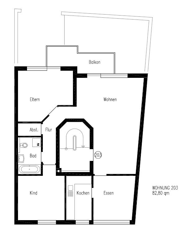
Größe & Zustand
| Wohnfläche | 543 m² |
| Grundstücksfläche | 605 m² |
| Zimmer | 23 |
| Baujahr | 1883 |
| Verfügbar ab | keine Angabe |
Energie
| Heizungsart | Etagenheizung, Zentralheizung |
| Energieträger/Befeuerung | Gas, Elektro |
Objektbeschreibung
Ensemble aus zwei Mehrfamilienhäusern in Baden-Baden
Objektbeschreibung:
Zum Verkauf steht ein Ensemble aus zwei gut erhaltenen Mehrfamilienhäusern in zentrumsnaher Lage von Baden-Baden, das insgesamt 9 Wohnungen sowie zahlreiche Stellplätze und Garagen umfasst. Ideal für Kapitalanleger, bieten die Gebäude stabile Mieteinnahmen und befinden sich in einer attraktiven Lage mit hervorragender Anbindung.
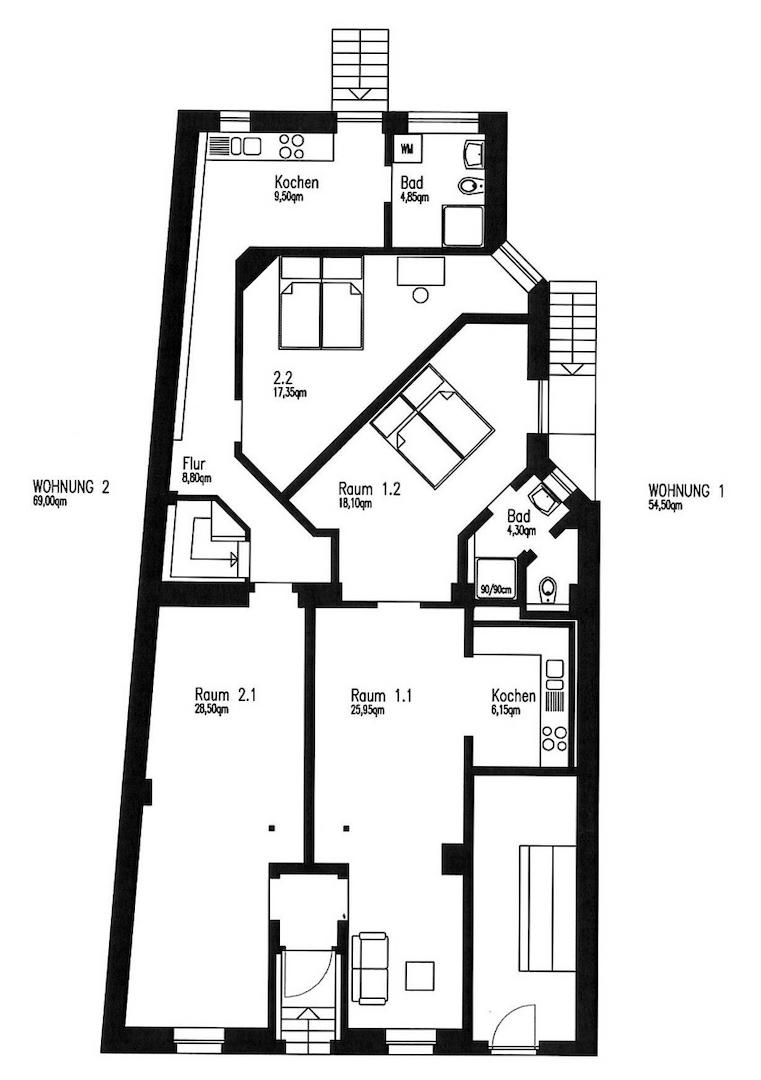
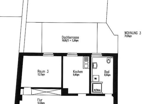
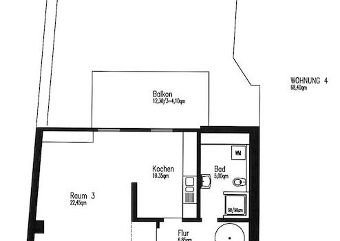
Haus 1 – (4-Familienwohnhaus)
Baujahr: ca. 1882/1883
Wohnfläche: ca. 267 m²
Grundstücksfläche: ca. 300 m²
Stellplätze: 4 im Innenhof
Mieteinnahmen p.a.: ca. 33.600 €
Letzte Modernisierung: 2017
Ausstattung: Parkett, Fliesen, Laminat, Kunststoffbeläge, teilweise Wanne und Dusche in Tageslichtbädern. Die Dachgeschosswohnung bietet eine Empore mit Blick in den Wohnraum darunter.
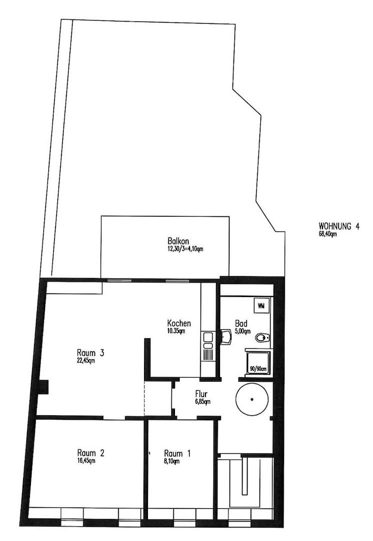
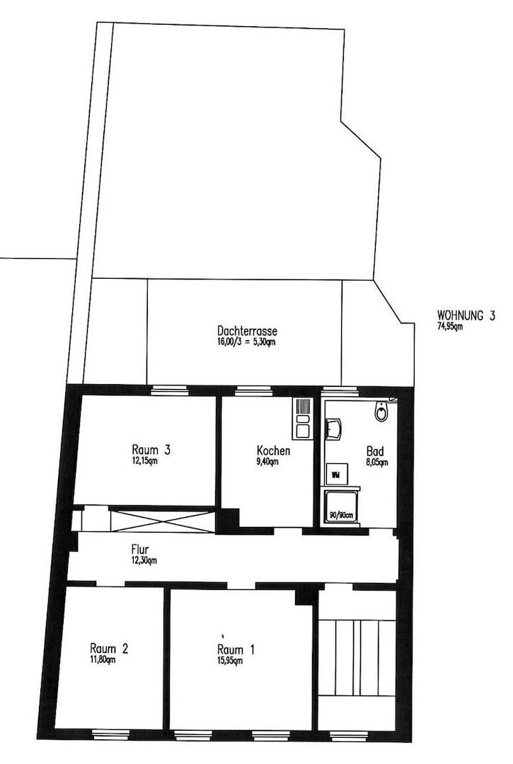
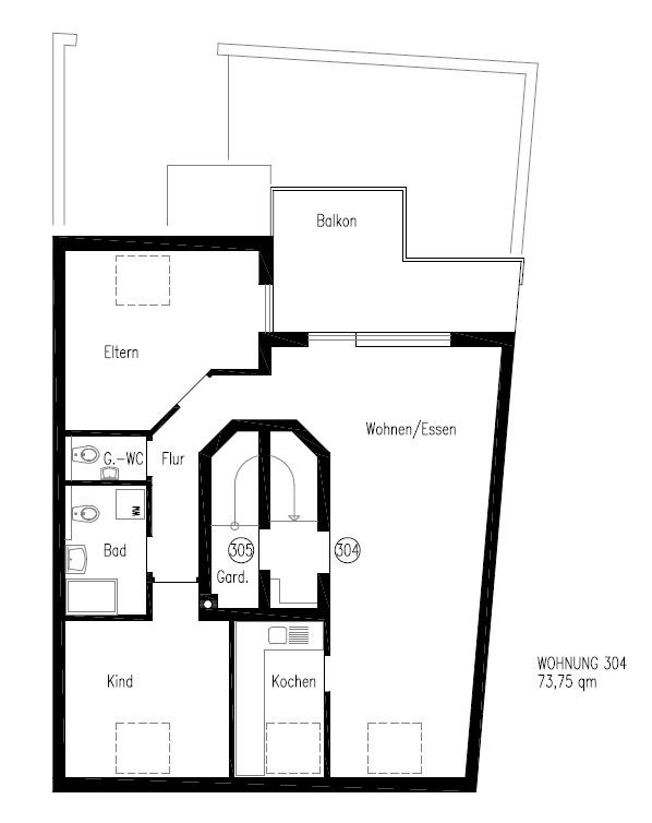
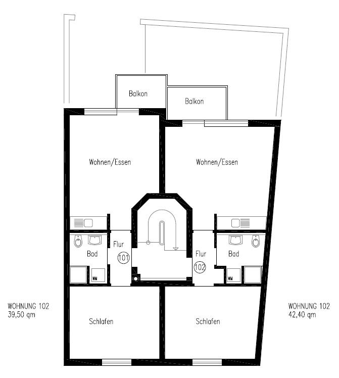
Haus 2 – (5-Familienwohnhaus)
Baujahr: ca. 1992
Wohnfläche: ca. 276 m²
Grundstücksfläche: ca. 305 m²
Stellplätze: 5 Stellplätze, 3 Garagen, 1 Doppelparkgarage (2 Stellplätze)
Mieteinnahmen p.a.: ca. 39.240 €
Letzte Modernisierung: 2017 (Dachgeschoss)
Ausstattung: Laminat, Fliesen, moderne Tageslichtbäder, vollunterkellert, und separate Dachstudio-Wohnung.
Lage:
Die Häuser liegen in zentrumsnaher Lage von Baden-Baden und bietet eine gute Anbindung an das Stadtzentrum, öffentliche Verkehrsmittel sowie zahlreiche Freizeit- und Einkaufsmöglichkeiten.
Fazit:
Mit stabilen Mieteinnahmen von ca. 72.840 € p.a. und einer hervorragenden Lage stellt dieses Ensemble eine attraktive Investition dar. Die Kombination aus historischen und modernen Elementen macht diese Objekte besonders interessant für Kapitalanleger.
Für weitere Informationen oder einen Besichtigungstermin stehe ich Ihnen gerne zur Verfügung.
Objektbeschreibung:
Zum Verkauf steht ein Ensemble aus zwei gut erhaltenen Mehrfamilienhäusern in zentrumsnaher Lage von Baden-Baden, das insgesamt 9 Wohnungen sowie zahlreiche Stellplätze und Garagen umfasst. Ideal für Kapitalanleger, bieten die Gebäude stabile Mieteinnahmen und befinden sich in einer attraktiven Lage mit hervorragender Anbindung.
Haus 1 – (4-Familienwohnhaus)
Baujahr: ca. 1882/1883
Wohnfläche: ca. 267 m²
Grundstücksfläche: ca. 300 m²
Stellplätze: 4 im Innenhof
Mieteinnahmen p.a.: ca. 33.600 €
Letzte Modernisierung: 2017
Ausstattung: Parkett, Fliesen, Laminat, Kunststoffbeläge, teilweise Wanne und Dusche in Tageslichtbädern. Die Dachgeschosswohnung bietet eine Empore mit Blick in den Wohnraum darunter.
Haus 2 – (5-Familienwohnhaus)
Baujahr: ca. 1992
Wohnfläche: ca. 276 m²
Grundstücksfläche: ca. 305 m²
Stellplätze: 5 Stellplätze, 3 Garagen, 1 Doppelparkgarage (2 Stellplätze)
Mieteinnahmen p.a.: ca. 39.240 €
Letzte Modernisierung: 2017 (Dachgeschoss)
Ausstattung: Laminat, Fliesen, moderne Tageslichtbäder, vollunterkellert, und separate Dachstudio-Wohnung.
Lage:
Die Häuser liegen in zentrumsnaher Lage von Baden-Baden und bietet eine gute Anbindung an das Stadtzentrum, öffentliche Verkehrsmittel sowie zahlreiche Freizeit- und Einkaufsmöglichkeiten.
Fazit:
Mit stabilen Mieteinnahmen von ca. 72.840 € p.a. und einer hervorragenden Lage stellt dieses Ensemble eine attraktive Investition dar. Die Kombination aus historischen und modernen Elementen macht diese Objekte besonders interessant für Kapitalanleger.
Für weitere Informationen oder einen Besichtigungstermin stehe ich Ihnen gerne zur Verfügung.
Ausstattung
| Anzahl der Etagen im Haus | 4 |
| Balkone | 5 |
| Terrassen | 1 |
| Keller |
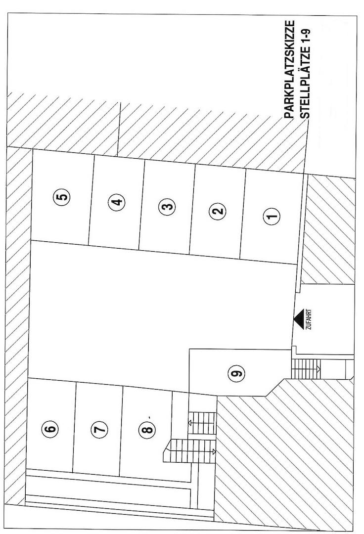
- 9 Stellplätze im Innenhof
- Balkone und Dachterrasse
- 2 Garagen
- 1 Doppelparkgarage (2 Stellplätze)
- Balkone und Dachterrasse
- 2 Garagen
- 1 Doppelparkgarage (2 Stellplätze)
Lage des Objektes
Baden-Baden, die bekannte Kurstadt im Nordwesten des Schwarzwaldes, vereint Charme, Tradition und moderne Lebensqualität. Die Stadt ist berühmt für ihre luxuriösen Thermen, das Casino und das weltbekannte Festspielhaus. Als Kultur- und Wellnessdestination zieht sie sowohl nationale als auch internationale Besucher an.
Das Ensemble befindet sich in einer äußerst begehrten, zentrumsnahen Lage, die von der besonderen Lebensqualität Baden-Badens profitiert. Diese bietet eine hervorragende Anbindung an das Stadtzentrum sowie an öffentliche Verkehrsmittel und liegt in unmittelbarer Nähe zu den Sehenswürdigkeiten, Einkaufsmöglichkeiten und Freizeitangeboten der Stadt. In wenigen Minuten erreichen Sie das historische Stadtzentrum, das mit seinen eleganten Boutiquen, erstklassigen Restaurants und kulturellen Einrichtungen wie dem Theater und den Museen zum Verweilen einlädt. Die ruhige, aber dennoch zentrale Lage garantiert eine hohe Lebensqualität und eine ausgezeichnete Vermietbarkeit der Wohnungen.
Die Anbindung an öffentliche Verkehrsmittel ist ausgezeichnet, und eine schnelle Verbindung zu den umliegenden Städten sowie zur Autobahn A5. Die grüne Umgebung und die Nähe zum Schwarzwald machen Baden-Baden zu einem idealen Standort für Naturliebhaber, die gleichzeitig die Annehmlichkeiten einer Stadt mit internationalem Flair genießen möchten.
Die Kombination aus exzellenter Lage, erstklassiger Infrastruktur und der hohen Lebensqualität macht Baden-Baden zu einem besonders attraktiven Standort für Wohnen und Investieren.
Das Ensemble befindet sich in einer äußerst begehrten, zentrumsnahen Lage, die von der besonderen Lebensqualität Baden-Badens profitiert. Diese bietet eine hervorragende Anbindung an das Stadtzentrum sowie an öffentliche Verkehrsmittel und liegt in unmittelbarer Nähe zu den Sehenswürdigkeiten, Einkaufsmöglichkeiten und Freizeitangeboten der Stadt. In wenigen Minuten erreichen Sie das historische Stadtzentrum, das mit seinen eleganten Boutiquen, erstklassigen Restaurants und kulturellen Einrichtungen wie dem Theater und den Museen zum Verweilen einlädt. Die ruhige, aber dennoch zentrale Lage garantiert eine hohe Lebensqualität und eine ausgezeichnete Vermietbarkeit der Wohnungen.
Die Anbindung an öffentliche Verkehrsmittel ist ausgezeichnet, und eine schnelle Verbindung zu den umliegenden Städten sowie zur Autobahn A5. Die grüne Umgebung und die Nähe zum Schwarzwald machen Baden-Baden zu einem idealen Standort für Naturliebhaber, die gleichzeitig die Annehmlichkeiten einer Stadt mit internationalem Flair genießen möchten.
Die Kombination aus exzellenter Lage, erstklassiger Infrastruktur und der hohen Lebensqualität macht Baden-Baden zu einem besonders attraktiven Standort für Wohnen und Investieren.
Anbieter kontaktieren
Anbieter
VR-Bank in Mittelbaden eG
Hügelsheimer Str. 6
76473 Iffezheim
Kontakt
| Telefon | 07221 / 9593 - 2425 |
| Mobil | 0172 / 7206844 |
| Fax | 07221 / 9593 - 2440 |
| Website | www.vr-miba.de |
