Packen Sie an! Mehrgenerationen / Wohnen /Arbeiten!
198.000 €
Kaufpreis
294 m²
Wohnfläche
12
Zimmer
immobilien.de Nr.: 8866610
Objektnummer: 0-39873
Preise & Kosten
| Kaufpreis | 198.000 € |
| Nebenkosten | keine Angabe |
| Maklerprovision | 3,57 % |
Größe & Zustand
| Wohnfläche | 294 m² |
| Gesamtfläche | 294 m² |
| Grundstücksfläche | 594 m² |
| Zimmer | 12 |
| Baujahr | 1938 |
| Verfügbar ab | Sofort n .Abschluss |
Energie
| Wesentlicher Energieträger | GAS |
Objektbeschreibung
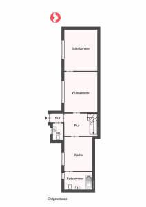
Ein Grundstück mit 3 separaten Wohnhäusern. Das spitzgiebelige an der Strasse ist entkernt und wartet auf eine zupackende Hand. Das Mittelhaus und die Garteneinheit wurden zwischen 1970-2013 saniert und sind sofort beziehbar, mit ansprechenden Bädern, isolierglasten Fenstern mit Rollläden, großen Räumen, Garten, Balkon Terrassse. Gasheizungen. Alles vorhanden.Aufgrund der exponierten Lage bietet sich, beim Umbau des kleinen Vorderhauses mit ca. 67 m², an, ein stilles Gewerbe dort zu etablieren. Das Mittehaus hat ca, 117 m², das Gartenanwesen ca. 110 m². Neugierig geworden? Dann lassen Sie uns telefonieren oder schreiben uns eine Mail.
Ausstattung
| Balkone | 1 |
| Terrassen | 2 |
| Garage/Stellplätze | 1 |
| Haustiere |
Anbieter
Enger & Dittrich Immobilien GmbH - RDM/VDM
Hohenzollernstr. 181
41063 Mönchengladbach
Kontakt
| Telefon | 02161-492690 |
| Website | www.enger-dittrich.de |
