Das schönste Haus am Haff + sep. Wohnung
450.000 €
Kaufpreis
220 m²
Wohnfläche
7
Zimmer
immobilien.de Nr.: 8850849
Objektnummer: 56-0600-0073
Preise & Kosten
| Kaufpreis | 450.000 € |
| Nebenkosten | keine Angabe |
| Maklerprovision | 3,57 % |
Größe & Zustand
| Wohnfläche | 220 m² |
| Grundstücksfläche | 1.712 m² |
| Zimmer | 7 |
| Baujahr | 1900 |
| Verfügbar ab | 15.05.2025 |
| Zustand | Neuwertig |
Energie
| Energieausweistyp | Verbrauch |
| Gültig bis | 2034-06-15 |
| Energieverbrauchkennwert | 113,90 kWh/(m²*a) |
| Heizungsart | Zentralheizung |
| Energieträger/Befeuerung | Gas |
Objektbeschreibung
Zugegeben, der Wert und das Empfinden sind immer subjektiv. Wo frage ich Sie aber, finden Sie ein Haus an der Küste, dass so gepflegt ist, dass man sofort einziehen möchte, wo die Räume hell und freundlich sind, wo Gemütlichkeit und die liebevolle Gestaltung so zu spüren sind.
Fangen wir mal bei dem Garten an. Er ist so gestaltet, dass Sie Stellen finden, an denen Sie keiner sieht, wenn Sie ein Sonnenbad nehmen möchten ;-). Laufen Sie auf Rasen, der Sie fast schweben lässt, wie auf einem superweichen Teppich. „Dem Rasimir sei Dank.“ Der Rasenroboter sorgt für herrliches Grün und spart Ihnen so manche Stunde Arbeit.
Die bunte Blumengestaltung - siehe Bild - spricht eigentlich auch für sich.
Im Garten befindet sich auch das aus Backsteinen errichtete Nebengebäude. Es bietet Platz für verschiedene Hobbys.
Unter dem angebauten Schleppdach trocknet Ihre Wäsche sparsam und am besten. Die frischen Seeluft verleiht ihr einen besonderen Duft.
Blickt man zum Haus, sieht man eine große Terrasse. Sie ist überdacht mit Platten, die das Licht durchlassen, den Regen aber aussperren. Die Terrasse befindet sich direkt vor der gemütlichen Küche.
Ist es draußen kalt und unbehaglich, so kann man auch am großen Küchentisch Platz nehmen. Mindestens 5 Personen passen hier locker hin.
Nun sind wir auch schon im Haus. - siehe Ausstattung:
Fangen wir mal bei dem Garten an. Er ist so gestaltet, dass Sie Stellen finden, an denen Sie keiner sieht, wenn Sie ein Sonnenbad nehmen möchten ;-). Laufen Sie auf Rasen, der Sie fast schweben lässt, wie auf einem superweichen Teppich. „Dem Rasimir sei Dank.“ Der Rasenroboter sorgt für herrliches Grün und spart Ihnen so manche Stunde Arbeit.
Die bunte Blumengestaltung - siehe Bild - spricht eigentlich auch für sich.
Im Garten befindet sich auch das aus Backsteinen errichtete Nebengebäude. Es bietet Platz für verschiedene Hobbys.
Unter dem angebauten Schleppdach trocknet Ihre Wäsche sparsam und am besten. Die frischen Seeluft verleiht ihr einen besonderen Duft.
Blickt man zum Haus, sieht man eine große Terrasse. Sie ist überdacht mit Platten, die das Licht durchlassen, den Regen aber aussperren. Die Terrasse befindet sich direkt vor der gemütlichen Küche.
Ist es draußen kalt und unbehaglich, so kann man auch am großen Küchentisch Platz nehmen. Mindestens 5 Personen passen hier locker hin.
Nun sind wir auch schon im Haus. - siehe Ausstattung:
Ausstattung
| Anzahl der Etagen im Haus | 1 |
| Boden | Fliesen, Laminat |
| Garten |
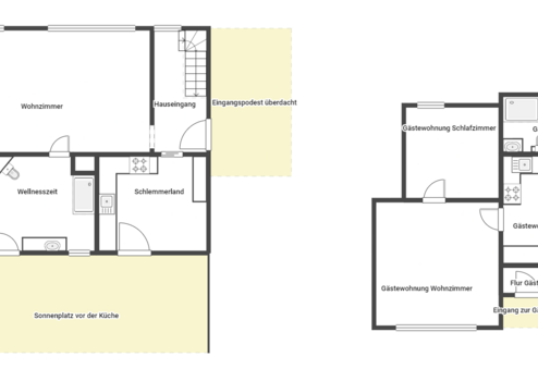
Im Erdgeschoss befinden sich die Küche, der Flur mit dem Aufgang zum bereits ausgebauten Dachgeschoss, das Wohnzimmer mit dem Kamin und das neue Bad mit der ebenerdigen Dusche.
Die Duschfläche ist groß genug, um zu zweit zu duschen.
Im Wohnzimmer sehen Sie den schönen Kamin. Er macht es leichter, dass auch dieser Sommer irgendwann vorbei sein wird. Knisternde Scheite sorgen dann nicht nur für „Seelenwärme“ sondern sparen auch manchen Euro. Kaminholz bekommt man in dieser Gegend recht preiswert. Ganz egal, was Sie möchten. Ofenfertig geschnittenes Holz, auf Länge gesägte Stämme oder als Selbstwerber* im Wald. Sie haben die Wahl.
Nun auf, zum Obergeschoss.
Hier ist mehr Platz, als man von außen vermuten mag. Gleich neben der Treppe befindet sich eine behagliche Leseecke. Sie kann und wird Sie in ferne Welten entführen. Wenn die Augen dann langsam zufallen, gehen Sie in das Schlafzimmer, gleich gegenüber. Ein Raum für Gäste, das Bad mit der schönen Wanne, ein Raum für Home Office, ein Kinderzimmer und ein Bereich für alle Dinge, die man nur gelegentlich benötigt, ist auch noch da.
Nicht zu vergessen ist die Einliegerwohnung. Sie wird demnächst neu vermietet. Bringt sie doch immerhin jeden Monat rund 400,-€ als Nettokaltmiete. Vermietet an die Bundeswehr für einen vernünftigen Zeitraum, so dass man nicht ständig Arbeit hat, wie bei einer Urlaubsvermietung.
Sie erstreckt sich über den rechten Hausteil. Die Wohnung befindet sich im Erdgeschoss. Eine Einbauküche, ein Wohnzimmer, ein Schlafzimmer und ein Bad mit ebenerdiger Dusche sind hier. Zum Teil haben Sie , so wie auch in der Hauptwohnung bei der Küche und im Bad, eine kuschelwarme Fußbodenheizung (Neu 2017)
Die Duschfläche ist groß genug, um zu zweit zu duschen.
Im Wohnzimmer sehen Sie den schönen Kamin. Er macht es leichter, dass auch dieser Sommer irgendwann vorbei sein wird. Knisternde Scheite sorgen dann nicht nur für „Seelenwärme“ sondern sparen auch manchen Euro. Kaminholz bekommt man in dieser Gegend recht preiswert. Ganz egal, was Sie möchten. Ofenfertig geschnittenes Holz, auf Länge gesägte Stämme oder als Selbstwerber* im Wald. Sie haben die Wahl.
Nun auf, zum Obergeschoss.
Hier ist mehr Platz, als man von außen vermuten mag. Gleich neben der Treppe befindet sich eine behagliche Leseecke. Sie kann und wird Sie in ferne Welten entführen. Wenn die Augen dann langsam zufallen, gehen Sie in das Schlafzimmer, gleich gegenüber. Ein Raum für Gäste, das Bad mit der schönen Wanne, ein Raum für Home Office, ein Kinderzimmer und ein Bereich für alle Dinge, die man nur gelegentlich benötigt, ist auch noch da.
Nicht zu vergessen ist die Einliegerwohnung. Sie wird demnächst neu vermietet. Bringt sie doch immerhin jeden Monat rund 400,-€ als Nettokaltmiete. Vermietet an die Bundeswehr für einen vernünftigen Zeitraum, so dass man nicht ständig Arbeit hat, wie bei einer Urlaubsvermietung.
Sie erstreckt sich über den rechten Hausteil. Die Wohnung befindet sich im Erdgeschoss. Eine Einbauküche, ein Wohnzimmer, ein Schlafzimmer und ein Bad mit ebenerdiger Dusche sind hier. Zum Teil haben Sie , so wie auch in der Hauptwohnung bei der Küche und im Bad, eine kuschelwarme Fußbodenheizung (Neu 2017)
Sonstige Informationen
Für unsere Kaufinteressenten haben wir ein Video erstellt, dass es Ihnen ermöglicht, sich im Haus umzusehen. Ob mit VR-Brille oder am PC, wählen Sie. Das ist kein Besichtigungsersatz aber eine sinnvolle Ergänzung.
Außerdem können Sie dann schon zu Hause, am PC oder TV den Rundgang zur Immobilie starten, sich im Haus und Garten digital bewegen.
Fragen:
Wo parken all die Leute, die uns besuchen möchten?
An der Hausgiebelseite ist eine gepflasterte Fläche für 5- 7 PKW.
Wem gehört der Gastank? Es handelt sich hier um einen Eigentumstank. TÜV ist aktuell und erst 2026 zu erneuern.
Ab wann können Sie das Haus nutzen?
Hier ist zu unterteilen. Die kleine, ca. 50 m² Wohnung können Sie zur Vermietung oder bereits als Ferienwohnung, relativ kurz nach dem Kauf nutzen. Sie kann aber auch vorübergehend vermietet werden, so dass die Wohnung zur Refinanzierung beiträgt und dann etwa Zeitgleich, mit der Hauptwohnung übergeben wird .
In den Hauptwohnteil können Sie etwa ab Mitte 2025 einziehen .
Das Dach mit den glasierten Tonziegeln stammt aus dem Jahr 2006.
Der Fassadenanstrich wurde mit hochwertiger Farbe 2024 vorgenommen, eine neue Therme für warmes Wasser kam 2019 und die Gas-Brennwerttherme darf bis 2044 bleiben. Sie wurde 2018 neu installiert.
Erschließung
Ein eigener Brunnen, der richtig Geld spart - er hat eisenhaltiges Wasser - gut für so manche Pflanze. Trinkwasser wird aus zentraler Quelle bezogen, Trinkwasser für den Garten ist auch noch verfügbar (2. Wasseruhr ist vorhanden) Telefon, Internet ca. 50 er Leitung, Gartenwasserzähler, Abwasser zentral
Ein Energiebedarfsausweis liegt vor, erstellt am 17.6.2024: gültig bis zum: 16.6.2034 Gebäudenutzfläche(AN¬) in m²:264 m² / Baujahr laut Ausweis: 1900/ Endenergiebedarf in kWh(m²a) 113,9 Hauptenergieträger: Gas /
Baujahr Wärmeerzeuger: 2018 Energieeffizienzklasse: D
Haftungsausschluss: Alle Angaben haben wir vom Auftraggeber erhalten.
Für deren Richtigkeit können wir keine Gewähr übernehmen.
Einen Zwischenverkauf behält sich der Auftraggeber / Verkäufer ausdrücklich vor. Generell empfehlen wir vor dem Kauf den Rat eines Bausachverständigen (Gutachter).
Wir sind in Vertretung der LBS Immobilien GmbH Potsdam tätig. Grenz- Maß -und Flächenangaben sind ungeprüfte Ca.-Werte.
Käuferprovision: 3,57 % / Kosten entstehen nur nach einem Kauf! 19 % Umsatzsteuer sind bereits enthalten.
Besichtigungen sind mit uns abzustimmen. Bitte respektieren Sie, dass der Eigentümer keine „Überraschungsgäste“ wünscht. Vertrauen Sie uns, wir helfen Ihnen gerne weiter.
Sie werden bevorzugt, wenn Ihre kompletten Kontaktdaten vorliegen (Anschrift, Telefonnummer usw.).
Sie möchten diese Immobilie kaufen oder haben erste Fragen und Wünsche?
Wir freuen uns auf Ihren Anruf.
Tel.: Mario Todtmann 0170 333 9 749.
Tel.: 03973 434 442 Doreen Blümke oder Tel.: 039771 52 77 93
Wir bitten von „Kaufpreisangeboten“ vor einer Besichtigung und Unterlagenprüfung Abstand zu nehmen, da sie nicht bearbeitet werden können. Ein Mietkauf ist nicht möglich.
Sie sprechen polnisch und nur ein wenig deutsch? Kein Problem - auf Wunsch ist ein polnisch sprechender Mitarbeiter für Sie da. Einfach den Bedarf anmelden und im Bürotermin ist die Kollegin / der Kollege dann für Sie da.
* Selbstwerber sind Personen, die die Berechtigung für die Kettensäge haben. Der Förster zeigt Ihnen, welche Bäume Sie für Ihren Eigenbedarf nehmen dürfen.
Info:
Wegen der besseren Lesbarkeit wurde im Text auf die Ausweisung der männlichen, weiblichen und diversen Form verzichtet und ausschließlich die männliche Bezeichnung gewählt. Gemeint sind jedoch stets alle Geschlechter.
Panstwo mowia po polsku i tylko trochę po niemiecku? Nie ma problemu - na życzenie nasz polskojęzyczny pracownik jest do panskiej dyspozycji.
Prosze zglosic potrzebe i na spotkaniu nasz polskojęzyczny pracownik pomoze panstwu.
Martin Zebala / Tel.: 03973 434 121 / martin.zebala@spk-uecker-randow.de
Wir freuen uns
Alle Angaben haben wir vom Auftraggeber erhalten. Für deren Richtigkeit können wir keine Gewähr übernehmen. Einen Zwischenverkauf bzw. eine Zwischenvermietung behält sich der Auftraggeber ausdrücklich vor.
Außerdem können Sie dann schon zu Hause, am PC oder TV den Rundgang zur Immobilie starten, sich im Haus und Garten digital bewegen.
Fragen:
Wo parken all die Leute, die uns besuchen möchten?
An der Hausgiebelseite ist eine gepflasterte Fläche für 5- 7 PKW.
Wem gehört der Gastank? Es handelt sich hier um einen Eigentumstank. TÜV ist aktuell und erst 2026 zu erneuern.
Ab wann können Sie das Haus nutzen?
Hier ist zu unterteilen. Die kleine, ca. 50 m² Wohnung können Sie zur Vermietung oder bereits als Ferienwohnung, relativ kurz nach dem Kauf nutzen. Sie kann aber auch vorübergehend vermietet werden, so dass die Wohnung zur Refinanzierung beiträgt und dann etwa Zeitgleich, mit der Hauptwohnung übergeben wird .
In den Hauptwohnteil können Sie etwa ab Mitte 2025 einziehen .
Das Dach mit den glasierten Tonziegeln stammt aus dem Jahr 2006.
Der Fassadenanstrich wurde mit hochwertiger Farbe 2024 vorgenommen, eine neue Therme für warmes Wasser kam 2019 und die Gas-Brennwerttherme darf bis 2044 bleiben. Sie wurde 2018 neu installiert.
Erschließung
Ein eigener Brunnen, der richtig Geld spart - er hat eisenhaltiges Wasser - gut für so manche Pflanze. Trinkwasser wird aus zentraler Quelle bezogen, Trinkwasser für den Garten ist auch noch verfügbar (2. Wasseruhr ist vorhanden) Telefon, Internet ca. 50 er Leitung, Gartenwasserzähler, Abwasser zentral
Ein Energiebedarfsausweis liegt vor, erstellt am 17.6.2024: gültig bis zum: 16.6.2034 Gebäudenutzfläche(AN¬) in m²:264 m² / Baujahr laut Ausweis: 1900/ Endenergiebedarf in kWh(m²a) 113,9 Hauptenergieträger: Gas /
Baujahr Wärmeerzeuger: 2018 Energieeffizienzklasse: D
Haftungsausschluss: Alle Angaben haben wir vom Auftraggeber erhalten.
Für deren Richtigkeit können wir keine Gewähr übernehmen.
Einen Zwischenverkauf behält sich der Auftraggeber / Verkäufer ausdrücklich vor. Generell empfehlen wir vor dem Kauf den Rat eines Bausachverständigen (Gutachter).
Wir sind in Vertretung der LBS Immobilien GmbH Potsdam tätig. Grenz- Maß -und Flächenangaben sind ungeprüfte Ca.-Werte.
Käuferprovision: 3,57 % / Kosten entstehen nur nach einem Kauf! 19 % Umsatzsteuer sind bereits enthalten.
Besichtigungen sind mit uns abzustimmen. Bitte respektieren Sie, dass der Eigentümer keine „Überraschungsgäste“ wünscht. Vertrauen Sie uns, wir helfen Ihnen gerne weiter.
Sie werden bevorzugt, wenn Ihre kompletten Kontaktdaten vorliegen (Anschrift, Telefonnummer usw.).
Sie möchten diese Immobilie kaufen oder haben erste Fragen und Wünsche?
Wir freuen uns auf Ihren Anruf.
Tel.: Mario Todtmann 0170 333 9 749.
Tel.: 03973 434 442 Doreen Blümke oder Tel.: 039771 52 77 93
Wir bitten von „Kaufpreisangeboten“ vor einer Besichtigung und Unterlagenprüfung Abstand zu nehmen, da sie nicht bearbeitet werden können. Ein Mietkauf ist nicht möglich.
Sie sprechen polnisch und nur ein wenig deutsch? Kein Problem - auf Wunsch ist ein polnisch sprechender Mitarbeiter für Sie da. Einfach den Bedarf anmelden und im Bürotermin ist die Kollegin / der Kollege dann für Sie da.
* Selbstwerber sind Personen, die die Berechtigung für die Kettensäge haben. Der Förster zeigt Ihnen, welche Bäume Sie für Ihren Eigenbedarf nehmen dürfen.
Info:
Wegen der besseren Lesbarkeit wurde im Text auf die Ausweisung der männlichen, weiblichen und diversen Form verzichtet und ausschließlich die männliche Bezeichnung gewählt. Gemeint sind jedoch stets alle Geschlechter.
Panstwo mowia po polsku i tylko trochę po niemiecku? Nie ma problemu - na życzenie nasz polskojęzyczny pracownik jest do panskiej dyspozycji.
Prosze zglosic potrzebe i na spotkaniu nasz polskojęzyczny pracownik pomoze panstwu.
Martin Zebala / Tel.: 03973 434 121 / martin.zebala@spk-uecker-randow.de
Wir freuen uns
Alle Angaben haben wir vom Auftraggeber erhalten. Für deren Richtigkeit können wir keine Gewähr übernehmen. Einen Zwischenverkauf bzw. eine Zwischenvermietung behält sich der Auftraggeber ausdrücklich vor.
Lage des Objektes
Nur wenige Minuten bis zum Strand oder dem Seebad Ueckermünde.
Wälder, Wiesen, versteckte Strandabschnitte und zahlreiche, weitgehende Skater- oder Fahrradwege prägen diese wunderbare Landschaft.
Wälder, Wiesen, versteckte Strandabschnitte und zahlreiche, weitgehende Skater- oder Fahrradwege prägen diese wunderbare Landschaft.
Anbieter kontaktieren
Kontakt
| Telefon | 03973 43 44 40 |
| Mobil | 0170 333 97 49 |
| Website | www.spk-uecker-randow.de |
