Großzügiges Grundstück mit Bungalow und Potenzial: Neubau eines modernen Doppelhauses möglich!
460.000 €
Kaufpreis
106 m²
Wohnfläche
4
Zimmer
immobilien.de Nr.: 8840642
Preise & Kosten
| Kaufpreis | 460.000 € |
| Nebenkosten | keine Angabe |
| Maklerprovision | 2 % zzgl. MwSt. |
Größe & Zustand
| Wohnfläche | 106 m² |
| Grundstücksfläche | 928 m² |
| Zimmer | 4 |
| Baujahr | 1980 |
| Letzte Modernisierung | 2022 |
| Verfügbar ab | sofort |
Energie
| Energieausweistyp | Verbrauch |
| Ausstellungsdatum | 31. 01. 2024 |
| Gültig bis | 30.01.2034 |
| Baujahr (laut Energieausweis) | 1980 |
| Energieeffizienzklasse | G |
| Energieverbrauchkennwert | 201,7 kWh/(m²*a) |
| Heizungsart | Zentralheizung |
| Wesentlicher Energieträger | Heizöl |
| Energieträger/Befeuerung | Öl |
Objektbeschreibung
Willkommen in diesem einladenden Grundstück und Einfamilienhaus im beliebten Bungalowstil, das in den 1980er Jahren in massiver Bauweise errichtet wurde. Idyllisch gelegen am Rande von Großbeeren, unweit der Felder, bietet dieses Haus auf einem großzügigen Grundstück von 928 m² viel Raum für Ihre individuellen Wohnträume.
Mit einer Wohnfläche von 106 m² und einem Kaufpreis von 499.000,00 € könnte dieses Haus bald zum neuen Lebensmittelpunkt Ihrer Familie werden.
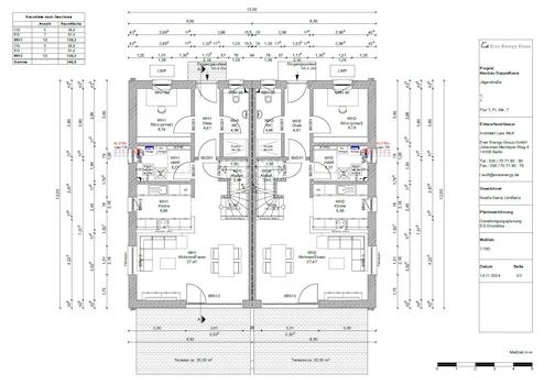
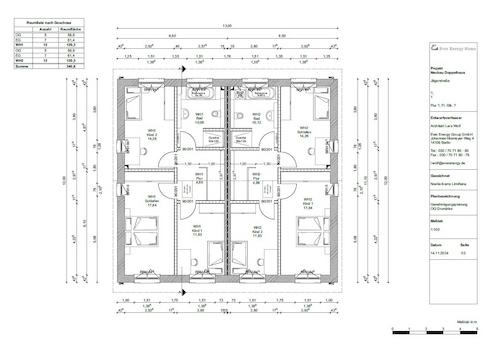
Das großzügige Grundstück bietet vielfältige Möglichkeiten zur Nutzung und Entwicklung. Neben dem bestehenden Bungalow, der saniert und/oder erweitert werden kann, besteht auch die Option eines Abrisses. Ein entsprechendes Abrissangebot liegt bereits vor. Nach einem Abriss bietet das Grundstück die Möglichkeit zur Realisierung eines modernen Neubauprojekts, beispielsweise eines Doppelhauses mit zwei Wohneinheiten à ca. 120 m², die dem aktuellen KfW 40 QNG-Standard entsprechen. Bereits erfolgte Planungen finden Sie in den Bildern!
Zusätzlich besteht die Möglichkeit, eine Einliegerwohnung in die Planung zu integrieren, um zusätzlichen Wohnraum zu schaffen – ideal als eigenständige Einheit für Familienmitglieder oder zur Vermietung.
Die Bebauung ist flexibel gestaltbar, sodass eine individuelle Planung in enger Abstimmung mit den Käufern möglich ist. Ob Sanierung, Erweiterung oder Neubau – dieses Grundstück bietet ideale Voraussetzungen für unterschiedliche Wohnkonzepte.
Für weitere Details zur möglichen Bebauung oder individuellen Anpassungen stehen wir Ihnen gerne zur Verfügung.
Mit einer Wohnfläche von 106 m² und einem Kaufpreis von 499.000,00 € könnte dieses Haus bald zum neuen Lebensmittelpunkt Ihrer Familie werden.
Das großzügige Grundstück bietet vielfältige Möglichkeiten zur Nutzung und Entwicklung. Neben dem bestehenden Bungalow, der saniert und/oder erweitert werden kann, besteht auch die Option eines Abrisses. Ein entsprechendes Abrissangebot liegt bereits vor. Nach einem Abriss bietet das Grundstück die Möglichkeit zur Realisierung eines modernen Neubauprojekts, beispielsweise eines Doppelhauses mit zwei Wohneinheiten à ca. 120 m², die dem aktuellen KfW 40 QNG-Standard entsprechen. Bereits erfolgte Planungen finden Sie in den Bildern!
Zusätzlich besteht die Möglichkeit, eine Einliegerwohnung in die Planung zu integrieren, um zusätzlichen Wohnraum zu schaffen – ideal als eigenständige Einheit für Familienmitglieder oder zur Vermietung.
Die Bebauung ist flexibel gestaltbar, sodass eine individuelle Planung in enger Abstimmung mit den Käufern möglich ist. Ob Sanierung, Erweiterung oder Neubau – dieses Grundstück bietet ideale Voraussetzungen für unterschiedliche Wohnkonzepte.
Für weitere Details zur möglichen Bebauung oder individuellen Anpassungen stehen wir Ihnen gerne zur Verfügung.
Ausstattung
| Anzahl der Etagen im Haus | 2 |
| Küche | Einbauküche |
| Bad | 1 |
| Bad | Dusche, Fenster, Wanne |
| Boden | Fliesen |
| Terrassen | 1 |
| Barrierefrei | |
| Garage/Stellplätze | 2 |
| Keller |
Die Immobilie besticht durch eine helle und freundliche Atmosphäre. Es erwarten Sie vier geräumige Zimmer, eine gemütliche Wohnküche, ein Tageslichtbad und eine großzügige Diele im Eingangsbereich.
Das Wohnzimmer, ausgestattet mit einem edlen Parkettboden und einem großen Panoramafenster, öffnet sich zur sonnigen Terrasse, die zum Verweilen einlädt. Ein Nebeneingang ermöglicht einen direkten Zugang zum gepflegten Garten, der viel Platz für Freizeit und Erholung bietet.
Im Kellergeschoss befindet sich die 2014 modernisierte Ölheizungsanlage.
Zwei zusätzliche Räume bieten dort weiteren Stauraum, ideal für Vorräte und Hobbys. Durch umfangreiche Modernisierungsmaßnahmen präsentiert sich das Haus in einem gepflegten Zustand: Die Wasserleitungen wurden 2022 erneuert, und die Fassade erhielt 2021 einen frischen Anstrich.
Für Ihren Wagen steht eine solide gebaute Garage zur Verfügung. Ein weiterer massiver Schuppen bietet nützlichen Stauraum für Gartenmöbel und -geräte.
Das Wohnzimmer, ausgestattet mit einem edlen Parkettboden und einem großen Panoramafenster, öffnet sich zur sonnigen Terrasse, die zum Verweilen einlädt. Ein Nebeneingang ermöglicht einen direkten Zugang zum gepflegten Garten, der viel Platz für Freizeit und Erholung bietet.
Im Kellergeschoss befindet sich die 2014 modernisierte Ölheizungsanlage.
Zwei zusätzliche Räume bieten dort weiteren Stauraum, ideal für Vorräte und Hobbys. Durch umfangreiche Modernisierungsmaßnahmen präsentiert sich das Haus in einem gepflegten Zustand: Die Wasserleitungen wurden 2022 erneuert, und die Fassade erhielt 2021 einen frischen Anstrich.
Für Ihren Wagen steht eine solide gebaute Garage zur Verfügung. Ein weiterer massiver Schuppen bietet nützlichen Stauraum für Gartenmöbel und -geräte.
Sonstige Informationen
Kostengünstiger als Marktüblich!
Bei uns zahlen Sie lediglich 2 % Provision vom Kaufpreis zzgl. Steuer.
Bei uns zahlen Sie lediglich 2 % Provision vom Kaufpreis zzgl. Steuer.
Lage des Objektes
Großbeeren ist eine Gemeinde im Landkreis Teltow-Fläming in Brandenburg. Sie liegt etwa 15 Kilometer südwestlich von Berlin und hat rund 10.000 Einwohner.
Die Gemeinde Großbeeren ist heute ein beliebter Wohnort für Familien und Pendler. Sie bietet ihren Einwohnern eine hohe Lebensqualität und ist ein guter Ort zum Leben, Arbeiten und Erholen. Großbeeren besitzt eine gute Infrastruktur mit Schulen, Kindergärten, Einkaufsmöglichkeiten, Ärzten und Freizeitangeboten.
Die Wirtschaft in Großbeeren ist geprägt von kleinen und mittelständischen Unternehmen. Die wichtigsten Branchen sind der Einzelhandel, das Handwerk und die Landwirtschaft.
Im Umkreis von 5 Kilometern finden Sie alles, was Sie für den Alltag benötigen: Apotheke, Lebensmittel-Discounter, Allgemeinmediziner, Kindergarten, Grundschule, Hauptschule, Realschule, Gymnasium, Gesamtschule, öffentliche Verkehrsanbindungen, Sportverein, Wasserskianlage, Sparkasse uvm..
Hier sind einige weitere Details zu Großbeeren:
Die Gemeinde gliedert sich in die Ortsteile Großbeeren, Diedersdorf, Kleinbeeren und Heinersdorf.
Großbeeren ist über die Bundesstraße 101 und die Bundesautobahn 10 (Berliner Ring) an das Fernstraßennetz angebunden.
Über den Bahnhof Großbeeren wird die Station Lichterfelde Ost (Berlin) in 10 Minuten, Berlin Südkreuz in 15 Minuten und Berlin Hauptbahnhof in 25 Minuten erreicht. Ein S-Bahnhof ist ebenfalls in unmittelbarer Nähe zu Großbeeren, hier fährt die S2.
Die Gemeinde hat ein Freibad, einen Sportpark und mehrere Spielplätze.
Die Gemeinde Großbeeren ist heute ein beliebter Wohnort für Familien und Pendler. Sie bietet ihren Einwohnern eine hohe Lebensqualität und ist ein guter Ort zum Leben, Arbeiten und Erholen. Großbeeren besitzt eine gute Infrastruktur mit Schulen, Kindergärten, Einkaufsmöglichkeiten, Ärzten und Freizeitangeboten.
Die Wirtschaft in Großbeeren ist geprägt von kleinen und mittelständischen Unternehmen. Die wichtigsten Branchen sind der Einzelhandel, das Handwerk und die Landwirtschaft.
Im Umkreis von 5 Kilometern finden Sie alles, was Sie für den Alltag benötigen: Apotheke, Lebensmittel-Discounter, Allgemeinmediziner, Kindergarten, Grundschule, Hauptschule, Realschule, Gymnasium, Gesamtschule, öffentliche Verkehrsanbindungen, Sportverein, Wasserskianlage, Sparkasse uvm..
Hier sind einige weitere Details zu Großbeeren:
Die Gemeinde gliedert sich in die Ortsteile Großbeeren, Diedersdorf, Kleinbeeren und Heinersdorf.
Großbeeren ist über die Bundesstraße 101 und die Bundesautobahn 10 (Berliner Ring) an das Fernstraßennetz angebunden.
Über den Bahnhof Großbeeren wird die Station Lichterfelde Ost (Berlin) in 10 Minuten, Berlin Südkreuz in 15 Minuten und Berlin Hauptbahnhof in 25 Minuten erreicht. Ein S-Bahnhof ist ebenfalls in unmittelbarer Nähe zu Großbeeren, hier fährt die S2.
Die Gemeinde hat ein Freibad, einen Sportpark und mehrere Spielplätze.
