Jubi Spezial "Family L" OHNE GRUNDSTÜCK - Lieferung in 6 Monaten + 10 TSD Aktionsgutschein
269.995 €
Kaufpreis
117,65 m²
Wohnfläche
117,65 m²
Nutzfläche
4,5
Zimmer
immobilien.de Nr.: 8643859
Objektnummer: Altusr-Family-KW24
Preise & Kosten
| Kaufpreis | 269.995 € |
| Nebenkosten | keine Angabe |
Größe & Zustand
| Wohnfläche | 117,65 m² |
| Nutzfläche | 117,65 m² |
| Zimmer | 4,5 |
| Baujahr | 2024 |
| Verfügbar ab | keine Angabe |
| Zustand | Projektiert |
Energie
| Energietyp | KfW-55 |
| Heizungsart | Zentralheizung |
| Energieträger/Befeuerung | Luft-Wärme-Pumpe |
Objektbeschreibung
OHNE Grundstück - STREIF Family L - OHNE Baulandbesitz
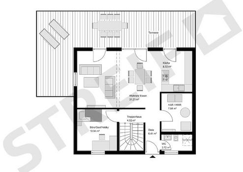
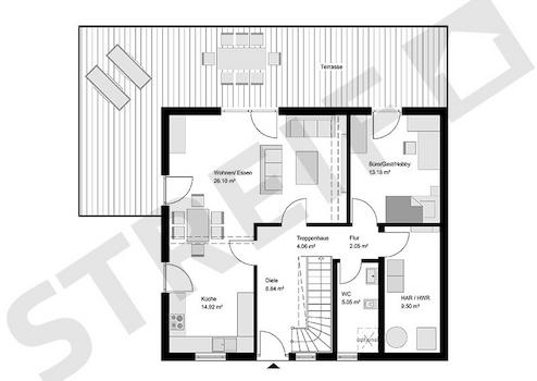
STREIF lädt Sie herzlich ein, Ihr eigenes Wunschhaus zu realisieren. Angeboten wird ein Einfamilienhaus mit einer Wohnfläche von 117,65 m² und 4,5 Zimmern. Das Haus erstreckt sich über zwei Stockwerke und bietet genügend Raum für Ihre individuellen Vorstellungen. Es verfügt über drei Schlafzimmer, zwei Badezimmer mit Dusche, Badewanne und einem weiteren Gäste-WC - ideal für Familien. Die Inneneinrichtung kann nach Ihren persönlichen Vorlieben angepasst werden, hierbei sind Ihrer Kreativität keine Grenzen gesetzt.
Ein besonderes Merkmal dieses Hauses ist die Baustufe 3 - FastFertigPlus: inklusive grundlegender Sanitärausstattung. Wenn Sie den Wunsch haben, selbst am Bau Ihres Hauses teilzunehmen, aber den professionellen Fachleuten (Heizung, Lüftung, Sanitär und Estrich) den Vortritt lassen möchten, dann ist diese Baustufe perfekt für Sie geeignet. Auf diese Weise können Sie Kosten sparen und zugleich aktiv an der Realisierung Ihres Traumhauses mitwirken. Der Startpreis für dieses außergewöhnliche Haus beträgt 269.995 EUR.
Die Beheizung des Hauses erfolgt mittels moderner Wärmepumpentechnologie. Diese umweltfreundliche Technik ermöglicht nicht nur eine nachhaltige Energieversorgung, sondern senkt auch die Betriebskosten - ein Vorteil sowohl für Sie als auch für die Umwelt. Zudem erfüllt das Haus den KFW55-Standard in Bezug auf Energieeffizienz, was langfristige Einsparungen bei den Energiekosten gewährleistet. Mit zusätzlichem Aufwand kann das Haus zu einem förderfähigen KfW40-Haus umgerüstet werden.
Bei STREIF legen wir großen Wert auf eine ausführliche Beratung vor jedem Hausbau. In einem persönlichen Gespräch werden all Ihre Wünsche und Vorstellungen erfasst, um Ihr zukünftiges Traumhaus bis ins kleinste Detail zu planen. Hierbei haben Sie die Möglichkeit, zwischen verschiedenen Dachformen, Optionen für einen Keller, Raumhöhen und vielen weiteren Details zu wählen. Sobald der individuelle Grundriss erstellt wurde und Sie absolut zufrieden sind, wird die Umsetzung innerhalb weniger Monate erfolgen. Ihr freistehendes Haus wird fertiggestellt oder je nach gewünschter Baustufe übergeben.
Nutzen Sie diese einmalige Gelegenheit, um mit STREIF Ihr ganz persönliches Traumhaus zu realisieren - wir begleiten Sie gerne auf dem Weg zum perfekten Zuhause!
Ausstattung
| Anzahl der Etagen im Haus | 2 |
| Küche | Offene Küche |
| Bad | 2 |
| Bad | Dusche, Wanne |
| Terrassen | 1 |
Folgende STREIF-Leistungen sind im Jubiläums-Feierpreis unserer 4 Haustypen enthalten bei Ausbaustufe FastFertigPLUS (Ausbaustufe 3 v.4) in der Ausstattungslinie SmartLine:
Inklusive Fundamentplatte
Inklusive STREIF-Luft-Luft-Wärmepumpen-Technologie, mit integrierter Lüftungsanlage mit Wärmerückgewinnung
Inklusive Kunststoffhaustüre
Inklusive Fenster von Porta/Kömmerling
Inklusive Treppe Buche Natur aus eigener Produktion.
Inklusive Sanitärobjekten von Markenherstellern in Bad/WC
Inclusive Fließenverlegung in Bad/WC
Inklusive Elektroinstallation u.v.m.
Inklusive Vorbereitung zur Installation einer Photovoltaik-Anlage
Individuelle Grundrissgestaltung und Raumaufteilung möglich** Die Position der Bäder, die Größe der Haustechnikräume und der Treppen sind bei den Jubiläumshäusern nicht veränderbar
Inklusive Fundamentplatte
Inklusive STREIF-Luft-Luft-Wärmepumpen-Technologie, mit integrierter Lüftungsanlage mit Wärmerückgewinnung
Inklusive Kunststoffhaustüre
Inklusive Fenster von Porta/Kömmerling
Inklusive Treppe Buche Natur aus eigener Produktion.
Inklusive Sanitärobjekten von Markenherstellern in Bad/WC
Inclusive Fließenverlegung in Bad/WC
Inklusive Elektroinstallation u.v.m.
Inklusive Vorbereitung zur Installation einer Photovoltaik-Anlage
Individuelle Grundrissgestaltung und Raumaufteilung möglich** Die Position der Bäder, die Größe der Haustechnikräume und der Treppen sind bei den Jubiläumshäusern nicht veränderbar
Sonstige Informationen
FEIERN SIE MIT UNS .
95 Jahre STREIF - Häuser mit Herz und Verstand
Voller Stolz können wir auf eine 95-jährige Firmentradition zurückblicken. In diesen beinahe hundert Jahren haben wir nicht nur Häuser errichtet, sondern auch Träume verwirklicht und Lebensräume geschaffen, die Generationen überdauern. Mit Engagement, Innovationskraft und unermüdlicher Hingabe haben wir dazu beigetragen, dass mehr als 90.000 Familien ihr Zuhause gefunden haben. Die solide Bauweise unserer Fertighäuser spiegelt die Beständigkeit von STREIF wider, während die modernen Designs die Zeitlosigkeit unserer Vision unterstreichen. Der Erfolg ist nicht nur ein Maß für handwerkliches Können, sondern auch für die Fähigkeit, mit den Bedürfnissen und Wünschen der Menschen im Wandel der Zeit Schritt zu halten.
Dieses 95-jährige Jubiläum soll nicht nur ein Rückblick auf vergangene Erfolge sein, sondern vor allem auch ein Ausblick auf eine Zukunft voller spannender Projekte, neuer Herausforderungen und weiterer Meilensteine. Feiern Sie mit uns und profitieren von den attraktiven Preisen unserer Jubiläumshäuser. Dann kommen Sie Ihrem Ziel näher, Ihr nächstes großes Fest im eigenen Zuhause feiern zu können.
Warum? Weil Sie ein perfektes Zuhause verdient haben. Ihre STREIF-Geschäftsführung
95 Jahre STREIF - Häuser mit Herz und Verstand
Voller Stolz können wir auf eine 95-jährige Firmentradition zurückblicken. In diesen beinahe hundert Jahren haben wir nicht nur Häuser errichtet, sondern auch Träume verwirklicht und Lebensräume geschaffen, die Generationen überdauern. Mit Engagement, Innovationskraft und unermüdlicher Hingabe haben wir dazu beigetragen, dass mehr als 90.000 Familien ihr Zuhause gefunden haben. Die solide Bauweise unserer Fertighäuser spiegelt die Beständigkeit von STREIF wider, während die modernen Designs die Zeitlosigkeit unserer Vision unterstreichen. Der Erfolg ist nicht nur ein Maß für handwerkliches Können, sondern auch für die Fähigkeit, mit den Bedürfnissen und Wünschen der Menschen im Wandel der Zeit Schritt zu halten.
Dieses 95-jährige Jubiläum soll nicht nur ein Rückblick auf vergangene Erfolge sein, sondern vor allem auch ein Ausblick auf eine Zukunft voller spannender Projekte, neuer Herausforderungen und weiterer Meilensteine. Feiern Sie mit uns und profitieren von den attraktiven Preisen unserer Jubiläumshäuser. Dann kommen Sie Ihrem Ziel näher, Ihr nächstes großes Fest im eigenen Zuhause feiern zu können.
Warum? Weil Sie ein perfektes Zuhause verdient haben. Ihre STREIF-Geschäftsführung
Kontakt
| Telefon | +49 171 6901715 |
| Mobil | +49 171 6901715 |
| Website | www.streif.de |
