Jubi Spezial "Family L" OHNE GRUNDSTÜCK - Lieferung in 6 Monaten + 10 TSD Aktionsgutschein
269.995 €
Kaufpreis
117,65 m²
Wohnfläche
117,65 m²
Nutzfläche
4,5
Zimmer
immobilien.de Nr.: 8643853
Objektnummer: Kemp-Family-KW24
Preise & Kosten
| Kaufpreis | 269.995 € |
| Nebenkosten | keine Angabe |
Größe & Zustand
| Wohnfläche | 117,65 m² |
| Nutzfläche | 117,65 m² |
| Zimmer | 4,5 |
| Baujahr | 2024 |
| Verfügbar ab | keine Angabe |
| Zustand | Projektiert |
Energie
| Energietyp | KfW-55 |
| Heizungsart | Zentralheizung |
| Energieträger/Befeuerung | Luft-Wärme-Pumpe |
Objektbeschreibung
OHNE Grundstück - STREIF Family L - OHNE Grundstück
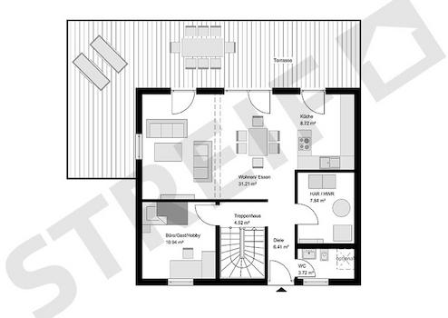
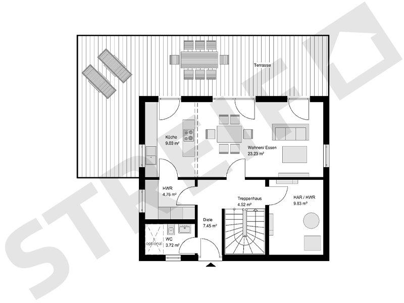
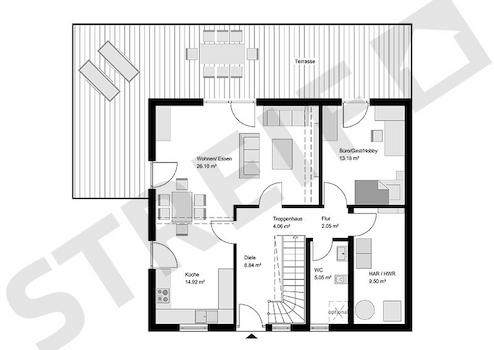
STREIF heißt Sie herzlich willkommen und unterstützt Sie dabei, Ihr eigenes Traumhaus zu realisieren. Zum Verkauf steht ein Einfamilienhaus mit einer Wohnfläche von 117,65 m² und 4,5 Zimmern. Es erstreckt sich über zwei Etagen und bietet ausreichend Platz für Ihre individuellen Vorstellungen. Das Haus verfügt über drei Schlafzimmer und zwei Badezimmer mit Dusche, Badewanne und einem zusätzlichen Gäste-WC - perfekt für Familien. Die Inneneinrichtung des Hauses kann nach Ihren persönlichen Präferenzen angepasst werden - Ihrer Kreativität sind dabei keine Grenzen gesetzt.
Ein besonderes Merkmal dieses Hauses ist die Baustufe 3 - FastFertigPlus: inklusive grundlegender Sanitärausstattung. Wenn Sie den Wunsch haben, selbst am Bau Ihres Hauses teilzunehmen, aber den professionellen Gewerken (Heizung, Lüftung, Sanitär und Estrich) den Vorrang geben möchten, dann ist diese Baustufe ideal für Sie geeignet. So haben Sie die Möglichkeit, Kosten zu sparen und gleichzeitig aktiv an der Realisierung Ihres Traumhauses mitzuwirken. Der Startpreis für dieses außergewöhnliche Haus beträgt 269.995 EUR.
Das Haus wird mittels moderner Wärmepumpentechnologie geheizt. Diese umweltfreundliche Technik ermöglicht nicht nur eine nachhaltige Energieversorgung, sondern senkt auch die Betriebskosten - ein Vorteil für Sie und die Umwelt. Zudem erfüllt das Haus den KFW55-Standard in Bezug auf Energieeffizienz, was langfristige Einsparungen bei den Energiekosten garantiert. Mit zusätzlichem Aufwand kann das Haus zu einem förderfähigen KfW40-Haus umgewandelt werden.
Bei STREIF legen wir großen Wert auf eine gründliche Beratung vor jedem Hausbau. In einem persönlichen Gespräch werden all Ihre Wünsche und Vorstellungen erfasst, um Ihr zukünftiges Traumhaus bis ins kleinste Detail zu planen. Dabei haben Sie die Möglichkeit, zwischen verschiedenen Dachformen, Optionen für einen Keller, Raumhöhen und vielen weiteren Details zu wählen. Sobald der individuelle Grundriss erstellt wurde und Sie vollkommen zufrieden sind, wird die Umsetzung innerhalb weniger Monate erfolgen. Ihr freistehendes Haus wird fertiggestellt oder je nach gewünschter Baustufe übergeben.
Nutzen Sie diese einzigartige Gelegenheit, um mit STREIF Ihr ganz individuelles Traumhaus zu verwirklichen - wir begleiten Sie gerne auf Ihrem Weg zum idealen Zuhause!
Ausstattung
| Anzahl der Etagen im Haus | 2 |
| Küche | Offene Küche |
| Bad | 2 |
| Bad | Dusche, Wanne |
| Terrassen | 1 |
Folgende STREIF-Leistungen sind im Jubiläums-Feierpreis unserer 4 Haustypen enthalten bei Ausbaustufe FastFertigPLUS (Ausbaustufe 3 v.4) in der Ausstattungslinie SmartLine:
Inklusive Fundamentplatte
Inklusive STREIF-Luft-Luft-Wärmepumpen-Technologie, mit integrierter Lüftungsanlage mit Wärmerückgewinnung
Inklusive Kunststoffhaustüre
Inklusive Fenster von Porta/Kömmerling
Inklusive Treppe Buche Natur aus eigener Produktion.
Inklusive Sanitärobjekten von Markenherstellern in Bad/WC
Inclusive Fließenverlegung in Bad/WC
Inklusive Elektroinstallation u.v.m.
Inklusive Vorbereitung zur Installation einer Photovoltaik-Anlage
Individuelle Grundrissgestaltung und Raumaufteilung möglich** Die Position der Bäder, die Größe der Haustechnikräume und der Treppen sind bei den Jubiläumshäusern nicht veränderbar
Inklusive Fundamentplatte
Inklusive STREIF-Luft-Luft-Wärmepumpen-Technologie, mit integrierter Lüftungsanlage mit Wärmerückgewinnung
Inklusive Kunststoffhaustüre
Inklusive Fenster von Porta/Kömmerling
Inklusive Treppe Buche Natur aus eigener Produktion.
Inklusive Sanitärobjekten von Markenherstellern in Bad/WC
Inclusive Fließenverlegung in Bad/WC
Inklusive Elektroinstallation u.v.m.
Inklusive Vorbereitung zur Installation einer Photovoltaik-Anlage
Individuelle Grundrissgestaltung und Raumaufteilung möglich** Die Position der Bäder, die Größe der Haustechnikräume und der Treppen sind bei den Jubiläumshäusern nicht veränderbar
Sonstige Informationen
FEIERN SIE MIT UNS .
95 Jahre STREIF - Häuser mit Herz und Verstand
Voller Stolz können wir auf eine 95-jährige Firmentradition zurückblicken. In diesen beinahe hundert Jahren haben wir nicht nur Häuser errichtet, sondern auch Träume verwirklicht und Lebensräume geschaffen, die Generationen überdauern. Mit Engagement, Innovationskraft und unermüdlicher Hingabe haben wir dazu beigetragen, dass mehr als 90.000 Familien ihr Zuhause gefunden haben. Die solide Bauweise unserer Fertighäuser spiegelt die Beständigkeit von STREIF wider, während die modernen Designs die Zeitlosigkeit unserer Vision unterstreichen. Der Erfolg ist nicht nur ein Maß für handwerkliches Können, sondern auch für die Fähigkeit, mit den Bedürfnissen und Wünschen der Menschen im Wandel der Zeit Schritt zu halten.
Dieses 95-jährige Jubiläum soll nicht nur ein Rückblick auf vergangene Erfolge sein, sondern vor allem auch ein Ausblick auf eine Zukunft voller spannender Projekte, neuer Herausforderungen und weiterer Meilensteine. Feiern Sie mit uns und profitieren von den attraktiven Preisen unserer Jubiläumshäuser. Dann kommen Sie Ihrem Ziel näher, Ihr nächstes großes Fest im eigenen Zuhause feiern zu können.
Warum? Weil Sie ein perfektes Zuhause verdient haben. Ihre STREIF-Geschäftsführung
95 Jahre STREIF - Häuser mit Herz und Verstand
Voller Stolz können wir auf eine 95-jährige Firmentradition zurückblicken. In diesen beinahe hundert Jahren haben wir nicht nur Häuser errichtet, sondern auch Träume verwirklicht und Lebensräume geschaffen, die Generationen überdauern. Mit Engagement, Innovationskraft und unermüdlicher Hingabe haben wir dazu beigetragen, dass mehr als 90.000 Familien ihr Zuhause gefunden haben. Die solide Bauweise unserer Fertighäuser spiegelt die Beständigkeit von STREIF wider, während die modernen Designs die Zeitlosigkeit unserer Vision unterstreichen. Der Erfolg ist nicht nur ein Maß für handwerkliches Können, sondern auch für die Fähigkeit, mit den Bedürfnissen und Wünschen der Menschen im Wandel der Zeit Schritt zu halten.
Dieses 95-jährige Jubiläum soll nicht nur ein Rückblick auf vergangene Erfolge sein, sondern vor allem auch ein Ausblick auf eine Zukunft voller spannender Projekte, neuer Herausforderungen und weiterer Meilensteine. Feiern Sie mit uns und profitieren von den attraktiven Preisen unserer Jubiläumshäuser. Dann kommen Sie Ihrem Ziel näher, Ihr nächstes großes Fest im eigenen Zuhause feiern zu können.
Warum? Weil Sie ein perfektes Zuhause verdient haben. Ihre STREIF-Geschäftsführung
Kontakt
| Telefon | +49 171 6901715 |
| Mobil | +49 171 6901715 |
| Website | www.streif.de |
