Jubi Spezial "Family L" OHNE GRUNDSTÜCK - Lieferung in 6 Monaten + 10 TSD Aktionsgutschein
269.995 €
Kaufpreis
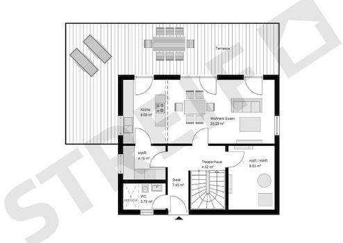
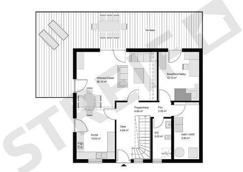
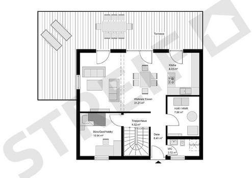
117,65 m²
Wohnfläche
117,65 m²
Nutzfläche
4,5
Zimmer
immobilien.de Nr.: 8643597
Objektnummer: MR-Family-KW24
Preise & Kosten
| Kaufpreis | 269.995 € |
| Nebenkosten | keine Angabe |
Größe & Zustand
| Wohnfläche | 117,65 m² |
| Nutzfläche | 117,65 m² |
| Zimmer | 4,5 |
| Baujahr | 2024 |
| Verfügbar ab | keine Angabe |
| Zustand | Projektiert |
Energie
| Energietyp | KfW-55 |
| Heizungsart | Zentralheizung |
| Energieträger/Befeuerung | Luft-Wärme-Pumpe |
Objektbeschreibung
OHNE GRUNDSTÜCK - Jubiläumshaus "Family L" von STREIF - OHNE GRUNDSTÜCK -
Bei STREIF sind Sie richtig, wenn Sie Ihr individuelles Traumhaus bauen möchten. Das Einzelhaus bietet Platz für Ihre Familie und umfasst eine Fläche von 117,65 m² auf zwei Etagen. Es verfügt über 3 Schlafzimmer, 2 Badezimmer - eines mit Dusche und Badewanne - sowie ein Gäste-WC.
Das Besondere an diesem Projekt ist die Ausbaustufe 3 - FastFertigPlus: mit grundlegendem Sanitärausbau. Hier haben Sie die Möglichkeit, aktiv am Bau Ihres Hauses teilzunehmen, während qualifizierte Fachbetriebe sich um Heizung, Lüftung, Sanitär und Estrich kümmern. Dadurch können Sie nicht nur Ihre eigenen Gestaltungswünsche verwirklichen, sondern auch Kosten sparen.
Das Heizsystem basiert auf einer Wärmepumpe und sorgt für eine nachhaltige und effiziente Energieversorgung für Ihr neues Zuhause. Die moderne Technologie der Wärmepumpe nutzt Umweltenergie und trägt zur Reduzierung der CO2-Emissionen bei. Dadurch profitieren Sie von ökologischem Bewusstsein und langfristig niedrigeren Energiekosten.
Außerdem erfüllt das Haus den KFW55 Standard, was bedeutet, dass es äußerst energieeffizient ist. Mit etwas zusätzlichem Aufwand kann es sogar ein förderfähiges KfW 40 Haus werden.
Vor dem Bauprozess steht eine umfangreiche Beratung an, um Ihre Vorstellungen und Bedürfnisse genau zu verstehen. Sie haben die freie Wahl bei Dachtyp, Keller und Anzahl der Stockwerke - alles wird nach Ihren Vorgaben geplant.
Nachdem der maßgeschneiderte Grundriss entworfen wurde und Sie zufrieden sind, wird das Projekt so schnell wie möglich umgesetzt. Abschließend übergeben wir Ihnen Ihr neues Einzelhaus schlüsselfertig oder im gewünschten Ausbauzustand.
Lassen Sie sich von uns inspirieren und verwirklichen Sie Ihren Wunsch vom Eigenheim mit STREIF - Ihrem vertrauenswürdigen Partner für maßgeschneiderten Hausbau.
Ausstattung
| Anzahl der Etagen im Haus | 2 |
| Küche | Offene Küche |
| Bad | 2 |
| Bad | Dusche, Wanne |
| Terrassen | 1 |
Folgende STREIF-Leistungen sind im Jubiläums-Feierpreis unserer 4 Haustypen enthalten bei Ausbaustufe FastFertigPLUS (Ausbaustufe 3 v.4) in der Ausstattungslinie SmartLine:
Inklusive Fundamentplatte
Inklusive STREIF-Luft-Luft-Wärmepumpen-Technologie, mit integrierter Lüftungsanlage mit Wärmerückgewinnung
Inklusive Kunststoffhaustüre
Inklusive Fenster von Porta/Kömmerling
Inklusive Treppe Buche Natur aus eigener Produktion.
Inklusive Sanitärobjekten von Markenherstellern in Bad/WC
Inclusive Fließenverlegung in Bad/WC
Inklusive Elektroinstallation u.v.m.
Inklusive Vorbereitung zur Installation einer Photovoltaik-Anlage
Individuelle Grundrissgestaltung und Raumaufteilung möglich** Die Position der Bäder, die Größe der Haustechnikräume und der Treppen sind bei den Jubiläumshäusern nicht veränderbar
Inklusive Fundamentplatte
Inklusive STREIF-Luft-Luft-Wärmepumpen-Technologie, mit integrierter Lüftungsanlage mit Wärmerückgewinnung
Inklusive Kunststoffhaustüre
Inklusive Fenster von Porta/Kömmerling
Inklusive Treppe Buche Natur aus eigener Produktion.
Inklusive Sanitärobjekten von Markenherstellern in Bad/WC
Inclusive Fließenverlegung in Bad/WC
Inklusive Elektroinstallation u.v.m.
Inklusive Vorbereitung zur Installation einer Photovoltaik-Anlage
Individuelle Grundrissgestaltung und Raumaufteilung möglich** Die Position der Bäder, die Größe der Haustechnikräume und der Treppen sind bei den Jubiläumshäusern nicht veränderbar
Sonstige Informationen
FEIERN SIE MIT UNS .
95 Jahre STREIF - Häuser mit Herz und Verstand
Voller Stolz können wir auf eine 95-jährige Firmentradition zurückblicken. In diesen beinahe hundert Jahren haben wir nicht nur Häuser errichtet, sondern auch Träume verwirklicht und Lebensräume geschaffen, die Generationen überdauern. Mit Engagement, Innovationskraft und unermüdlicher Hingabe haben wir dazu beigetragen, dass mehr als 90.000 Familien ihr Zuhause gefunden haben. Die solide Bauweise unserer Fertighäuser spiegelt die Beständigkeit von STREIF wider, während die modernen Designs die Zeitlosigkeit unserer Vision unterstreichen. Der Erfolg ist nicht nur ein Maß für handwerkliches Können, sondern auch für die Fähigkeit, mit den Bedürfnissen und Wünschen der Menschen im Wandel der Zeit Schritt zu halten.
Dieses 95-jährige Jubiläum soll nicht nur ein Rückblick auf vergangene Erfolge sein, sondern vor allem auch ein Ausblick auf eine Zukunft voller spannender Projekte, neuer Herausforderungen und weiterer Meilensteine. Feiern Sie mit uns und profitieren von den attraktiven Preisen unserer Jubiläumshäuser. Dann kommen Sie Ihrem Ziel näher, Ihr nächstes großes Fest im eigenen Zuhause feiern zu können.
Warum? Weil Sie ein perfektes Zuhause verdient haben. Ihre STREIF-Geschäftsführung
95 Jahre STREIF - Häuser mit Herz und Verstand
Voller Stolz können wir auf eine 95-jährige Firmentradition zurückblicken. In diesen beinahe hundert Jahren haben wir nicht nur Häuser errichtet, sondern auch Träume verwirklicht und Lebensräume geschaffen, die Generationen überdauern. Mit Engagement, Innovationskraft und unermüdlicher Hingabe haben wir dazu beigetragen, dass mehr als 90.000 Familien ihr Zuhause gefunden haben. Die solide Bauweise unserer Fertighäuser spiegelt die Beständigkeit von STREIF wider, während die modernen Designs die Zeitlosigkeit unserer Vision unterstreichen. Der Erfolg ist nicht nur ein Maß für handwerkliches Können, sondern auch für die Fähigkeit, mit den Bedürfnissen und Wünschen der Menschen im Wandel der Zeit Schritt zu halten.
Dieses 95-jährige Jubiläum soll nicht nur ein Rückblick auf vergangene Erfolge sein, sondern vor allem auch ein Ausblick auf eine Zukunft voller spannender Projekte, neuer Herausforderungen und weiterer Meilensteine. Feiern Sie mit uns und profitieren von den attraktiven Preisen unserer Jubiläumshäuser. Dann kommen Sie Ihrem Ziel näher, Ihr nächstes großes Fest im eigenen Zuhause feiern zu können.
Warum? Weil Sie ein perfektes Zuhause verdient haben. Ihre STREIF-Geschäftsführung
Kontakt
| Telefon | +49 8266 9683010 |
| Mobil | +49 171 6901715 |
| Website | www.streif.de |
