ETW eingerichtet mit Terrasse und Seeblick (Neubau)
388.000 €
Kaufpreis
97 m²
Wohnfläche
2
Zimmer
immobilien.de Nr.: 8632619
Objektnummer: 1
Preise & Kosten
| Kaufpreis | 388.000 € |
| Nebenkosten | keine Angabe |
| Kaufpreis pro m² | 4 € |
Größe & Zustand
| Wohnfläche | 97 m² |
| Zimmer | 2 |
| Baujahr | 2024 |
| Verfügbar ab | 2025 |
Energie
| Energietyp | Neubaustandard |
| Heizungsart | Fußbodenheizung |
| Energieträger/Befeuerung | Erdwärme |
Objektbeschreibung
Willkommen in Ihrem neuen Zuhause oder Ihrer neuen Ferienwohnung!
Diese exklusive Eigentumswohnung mit Haus-im-Haus Charakter befindet sich in einem Mehrfamilienhaus mit insgesamt 7 Wohneinheiten.
Nach einer umfassenden Kern- sowie energetischer Sanierung des gesamten Gebäudes (inkl. neuer Fassade, neuem Dach, neuem Heizsystem), präsentiert sich die Wohnung im Zustand eines Erstbezugs. Perfekt für anspruchsvolle Käufer, die Wert auf modernen Wohnkomfort und Energieeffizienz legen.
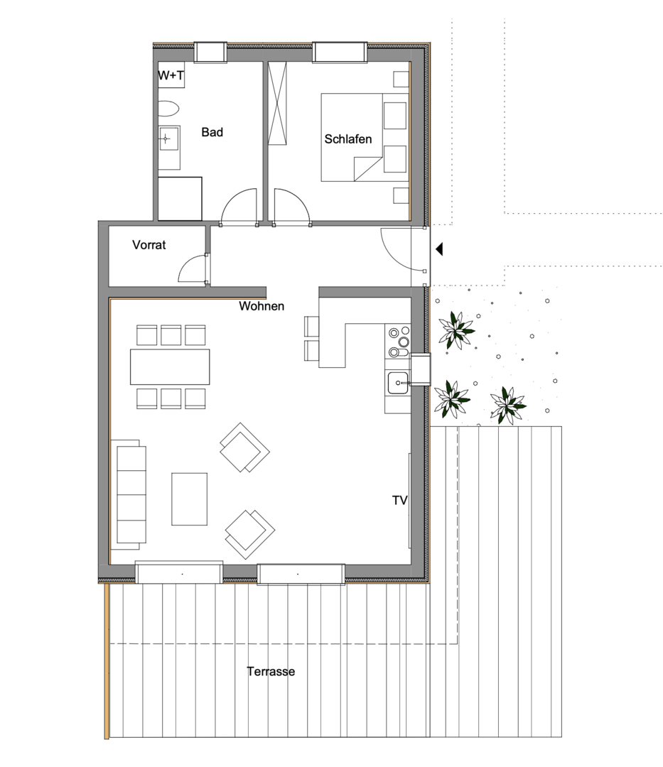
Der Grundriss der 2-Zimmer Wohnung schmeichelt Paaren oder Singles, die sich nach einem offenen und Lichtdurchfluteten Wohn- Essbereich sehnen. Die großzügige Eck-Terrasse mit Blick auf die Listertalsperre rundet diesen Wohntraum optimal ab und lädt zu geselligen Abenden mit Familie und Freunden ein.
Ein separater Eingang schafft zudem Privatsphäre und Unabhängigkeit.
Diese exklusive Eigentumswohnung mit Haus-im-Haus Charakter befindet sich in einem Mehrfamilienhaus mit insgesamt 7 Wohneinheiten.
Nach einer umfassenden Kern- sowie energetischer Sanierung des gesamten Gebäudes (inkl. neuer Fassade, neuem Dach, neuem Heizsystem), präsentiert sich die Wohnung im Zustand eines Erstbezugs. Perfekt für anspruchsvolle Käufer, die Wert auf modernen Wohnkomfort und Energieeffizienz legen.
Der Grundriss der 2-Zimmer Wohnung schmeichelt Paaren oder Singles, die sich nach einem offenen und Lichtdurchfluteten Wohn- Essbereich sehnen. Die großzügige Eck-Terrasse mit Blick auf die Listertalsperre rundet diesen Wohntraum optimal ab und lädt zu geselligen Abenden mit Familie und Freunden ein.
Ein separater Eingang schafft zudem Privatsphäre und Unabhängigkeit.
Ausstattung
| Küche | Einbauküche |
| Bad | 1 |
| Bad | Dusche, Fenster |
| Boden | Parkett |
| Terrassen | 1 |
| Garage/Stellplätze | 1 |
| Keller |
Diese Eigentumswohnung ist modern und hochwertig möbliert. Für Einzelheiten zu dem Mobiliar sprechen Sie uns gerne an.
- Vollmöbliert
- Küche
- Santiäranlagen (Duschbad)
- Parkettboden mit Fußbodenheizung
- Kellerabteil
Auf Wunsch können Sie die Wohnung auch unmöbliert erwerben!
- Vollmöbliert
- Küche
- Santiäranlagen (Duschbad)
- Parkettboden mit Fußbodenheizung
- Kellerabteil
Auf Wunsch können Sie die Wohnung auch unmöbliert erwerben!
Lage des Objektes
Ruhiges Wohnen mit Panoramablick in Meinerzhagen: Willkommen in Ihrem neuen Zuhause an der Listertalsperre, das Ruhe und Naturverbundenheit verspricht. Diese Adresse bietet Ihnen nicht nur ein gemütliches Zuhause, sondern auch einen atemberaubenden Panoramablick über Lister und die umliegenden Hügel und Wälder von Meinerzhagen. Hier können Sie jeden Morgen mit der unvergleichlichen Schönheit der Natur begrüßen und jeden Abend bei einem spektakulären Sonnenuntergang entspannen. Die friedliche Umgebung lädt zu erholsamen Spaziergängen und Wanderungen ein, während Sie dennoch dank der guten Verkehrsanbindung auch Einkaufsmöglichkeiten, Ärzte und Freizeiteinrichtungen schnell und bequem erreichen und somit von allen wichtigen Einrichtungen und Annehmlichkeiten der Stadt profitieren. Erleben Sie die perfekte Balance zwischen ländlicher Idylle und urbanem Komfort an dieser begehrten Adresse.
