STREIF-HOME&GENERATION Zweifamilienhaus CITY 190 Zwei Wohnungen, eine gut durchdachte Grundrissplanung und eine moderne Eleganz in der Architektu
790.000 €
Kaufpreis
280 m²
Wohnfläche
4
Zimmer
immobilien.de Nr.: 8625803
Objektnummer: BV10052891
Preise & Kosten
| Kaufpreis | 790.000 € |
| Nebenkosten | keine Angabe |
Größe & Zustand
| Wohnfläche | 280 m² |
| Grundstücksfläche | 429 m² |
| Zimmer | 4 |
| Baujahr | 2024 |
| Verfügbar ab | keine Angabe |
Energie
| Energietyp | Niedrigenergie |
| Heizungsart | Zentralheizung |
| Energieträger/Befeuerung | Luft-Wärme-Pumpe |
Objektbeschreibung
STREIF-HOME&GENERATION Zweifamilienhaus CITY 190
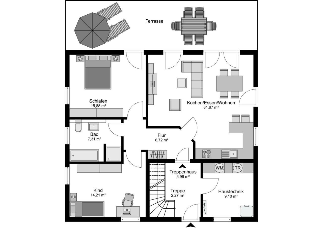
Zwei Wohnungen, eine gut durchdachte Grundrissplanung und eine moderne Eleganz in der Architektur bietet der zweigeschossige Zweifamilien-Hausentwurf mit Walmdach CITY 190 von STREIF. Die Basisversion des Entwurfes bietet die Möglichkeit bei Bedarf, Anbaubauteile hinzuzufügen. Ein Übereckerker, ein Balkon oder eine Überdachung bringen Individualität und Stil in die Hausarchitektur. Die geplanten bodentiefen, doppelflügeligen Terrassentüren, bringen ein großzügiges Wintergartenfeeling in die Wohnbereiche der beiden Wohnungen. Beide Wohnungen sind mit einem offen gestalteten Koch-/Ess-und Wohnbereich, einem Schlafzimmer, einem Kinderzimmer und einem familienfreundlichen Bad mit Wanne und Dusche geplant. Kurze Wege und guter Wohnkomfort zeichnet die Grundrissgestaltung beider Wohnungen aus. Im Obergeschoss ist direkt neben der Küche ein praktischer Hauswirtschafts-/Haustechnikraum gelegen. Im Erdgeschoss, separat im Flurbereich neben der Treppe, befindet sich ein weiterer Haustechnik-/Hauswirtschaftsraum.
Neu - Virtuelle Hausausstattung
Neben einem virtuellen Hausrundrundgang, kann auch die Ausstattung dieses Hauses mittels einer App virtuell geplant werden. www.streif.de/virtuelle-hausausstattung
Zwei Wohnungen, eine gut durchdachte Grundrissplanung und eine moderne Eleganz in der Architektur bietet der zweigeschossige Zweifamilien-Hausentwurf mit Walmdach CITY 190 von STREIF. Die Basisversion des Entwurfes bietet die Möglichkeit bei Bedarf, Anbaubauteile hinzuzufügen. Ein Übereckerker, ein Balkon oder eine Überdachung bringen Individualität und Stil in die Hausarchitektur. Die geplanten bodentiefen, doppelflügeligen Terrassentüren, bringen ein großzügiges Wintergartenfeeling in die Wohnbereiche der beiden Wohnungen. Beide Wohnungen sind mit einem offen gestalteten Koch-/Ess-und Wohnbereich, einem Schlafzimmer, einem Kinderzimmer und einem familienfreundlichen Bad mit Wanne und Dusche geplant. Kurze Wege und guter Wohnkomfort zeichnet die Grundrissgestaltung beider Wohnungen aus. Im Obergeschoss ist direkt neben der Küche ein praktischer Hauswirtschafts-/Haustechnikraum gelegen. Im Erdgeschoss, separat im Flurbereich neben der Treppe, befindet sich ein weiterer Haustechnik-/Hauswirtschaftsraum.
Neu - Virtuelle Hausausstattung
Neben einem virtuellen Hausrundrundgang, kann auch die Ausstattung dieses Hauses mittels einer App virtuell geplant werden. www.streif.de/virtuelle-hausausstattung
Ausstattung
| Bad | 1 |
STREIF-Häuser sind Energiesparhäuser. Die Außenwände im Passiv-Haus-Standard und eine sparsame Heiztechnik mit integrierter Wohnraumlüftung und Wärmerückgewinnung, garantieren einen geringen Energieverbrauch und ein fantastisches Raumklima, das insbesondere Allergiker aufatmen lässt.
STREIF Leistungen sind MEHR WERT - schon im Grundpreis enthalten!
- 12-monatige Festpreisgarantie
- Energieeffizienzhaus KfW 40 EE im Standard
- Inkl. individuelle Grundrissgestaltung und Raumaufteilung
- Inkl. Fundamentplatte
- Inkl. STREIF-Luft-Luft-Wärmepumpe mit integrierter
Lüftungsanlage mit Wärmerückgewinnung
- Inkl. Haustür von KERA und Fenster von Porta/Kömmerling
- Inkl. Massivholz-Geschosstreppe aus eigener Produktion
- Inkl. Elektroinstallation
- Inkl. Baubetreuung u.v.m.
Die hohe Wertigkeit und Langlebigkeit eines STREIF-Energiespar-Hauses wird durch zahlreiche Auszeichnungen, Qualität- und Gütesiegel unabhängiger Institute und Verbände dokumentiert.
Der Angebotspreis ist inklusive Grundstück und bezieht sich auf die Standard-Ausbaustufe Fast-Fertig + Malerarbeiten und Bodenbeläge können auf Wunsch von Streif ausgeführt werden oder sind Eigenleistung.
Baunebenkosten fallen zuzüglich an.
Der Verkauf des Grundstücks erfolgt über einen unserer Netzwerkpartner.
Bilder können evtl. Anbauteile, Carports, Balkone, Gauben usw. zeigen, die nicht im Angebotspreis enthalten sind. Änderungen und Irrtümer vorbehalten.
STREIF Leistungen sind MEHR WERT - schon im Grundpreis enthalten!
- 12-monatige Festpreisgarantie
- Energieeffizienzhaus KfW 40 EE im Standard
- Inkl. individuelle Grundrissgestaltung und Raumaufteilung
- Inkl. Fundamentplatte
- Inkl. STREIF-Luft-Luft-Wärmepumpe mit integrierter
Lüftungsanlage mit Wärmerückgewinnung
- Inkl. Haustür von KERA und Fenster von Porta/Kömmerling
- Inkl. Massivholz-Geschosstreppe aus eigener Produktion
- Inkl. Elektroinstallation
- Inkl. Baubetreuung u.v.m.
Die hohe Wertigkeit und Langlebigkeit eines STREIF-Energiespar-Hauses wird durch zahlreiche Auszeichnungen, Qualität- und Gütesiegel unabhängiger Institute und Verbände dokumentiert.
Der Angebotspreis ist inklusive Grundstück und bezieht sich auf die Standard-Ausbaustufe Fast-Fertig + Malerarbeiten und Bodenbeläge können auf Wunsch von Streif ausgeführt werden oder sind Eigenleistung.
Baunebenkosten fallen zuzüglich an.
Der Verkauf des Grundstücks erfolgt über einen unserer Netzwerkpartner.
Bilder können evtl. Anbauteile, Carports, Balkone, Gauben usw. zeigen, die nicht im Angebotspreis enthalten sind. Änderungen und Irrtümer vorbehalten.
Sonstige Informationen
Ich freue mich auf Ihren Anruf.
017661370032
017661370032
Kontakt
| Telefon | +49 6101 580015 |
| Mobil | +49 176 61370032 |
| Website | www.streif.de |
