Schickes Landhaus "Premium Line"
411.839 €
Kaufpreis
157 m²
Wohnfläche
5
Zimmer
immobilien.de Nr.: 8551742
Objektnummer: EMD006
Preise & Kosten
| Kaufpreis | 411.839 € |
| Nebenkosten | keine Angabe |
Größe & Zustand
| Wohnfläche | 157 m² |
| Zimmer | 5 |
| Baujahr | 2025 |
| Verfügbar ab | keine Angabe |
| Zustand | Projektiert |
Energie
| Energietyp | KfW-40 |
| Energieträger/Befeuerung | Luft-Wärme-Pumpe |
Objektbeschreibung
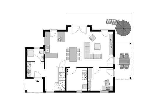
Der Hausentwurf ist im Stil der beliebten Landhausarchitektur geplant. Die Gartenansicht wird von einem Zwerchhaus mit Satteldach geprägt. Weitere Details sind eine Wohnraumerweiterung mit überdachtem Hauseingang. Großzügig und lichtdurchflutet präsentiert sich der Wohn-/Ess- und Kochbereich. Die Grundrissgestaltung bietet einen Windfang mit einem Garderobenbereich, ein Duschbad, eine Diele mit Treppenaufgang und einen Hauswirtschafts-/Haustechnikraum. Besonders praktisch ist ein zusätzlicher Raum, der als Arbeits-, Gäste- oder Schlafzimmer nutzbar ist. Das Wohnen auf einer Etage ist aufgrund der Planung ebenfalls möglich. Der Elternschlafbereich mit Ankleide, 2 Kinderzimmer und ein Familienbad befinden sich im Dachgeschoss des Hauses.
Der gezeigte Hausentwurf ist ein Gestaltungsvorschlag. Individuelle Anpassungen wie z. B. Hausgröße, Dachgeometrie, Fenstergrößen-/ und -position sind möglich. Fragen Sie Ihre persönliche STREIF-Bauberatung.
Der gezeigte Hausentwurf ist ein Gestaltungsvorschlag. Individuelle Anpassungen wie z. B. Hausgröße, Dachgeometrie, Fenstergrößen-/ und -position sind möglich. Fragen Sie Ihre persönliche STREIF-Bauberatung.
Ausstattung
| Anzahl der Etagen im Haus | 1 |
| Bad | 2 |
STREIF-Häuser sind Energiesparhäuser. Die Außenwände im Passiv-Haus-Standard und eine sparsame Heiztechnik mit integrierter Wohnraumlüftung und Wärmerückgewinnung, garantieren einen geringen Energieverbrauch und ein fantastisches Raumklima, das insbesondere Allergiker aufatmen lässt.
STREIF Leistungen sind MEHR WERT - schon im Grundpreis enthalten!
- 16-monatige Festpreisgarantie
- Energieeffizienzhaus KfW 40 EE im Standard
- Inkl. Fundamentplatte
- Inkl. Klinker- (Teil -) Fassade
- Inkl. STREIF-Luft-Luft-Wärmepumpe mit integrierter
Lüftungsanlage mit Wärmerückgewinnung
- Inkl. Haustür von KERA und Fenster von Porta/Kömmerling
- Inkl. Massivholz-Geschosstreppe aus eigener Produktion
- Inkl. Sanitärobjekte von Markenherstellern
- Inkl. Elektroinstallation
- Inkl. Baubetreuung u.v.m.
Die hohe Wertigkeit und Langlebigkeit eines STREIF-Energiespar-Hauses wird durch zahlreiche Auszeichnungen, Qualitäts- und Gütesiegel unabhängiger Institute und Verbände dokumentiert.
Der Angebotspreis ist exklusive Grundstück und bezieht sich auf die Standard-Ausbaustufe Fast-Fertig-Plus. Ihre Eigenleistungen: Spachtel-,Tapezier- und Malerarbeiten, Bodenbeläge, Innentüren.
Baunebenkosten fallen zuzüglich an.
Bilder können evtl. Anbauteile, Carports, Balkone, Gauben usw. zeigen, die nicht im Angebotspreis enthalten sind. Änderungen und Irrtümer vorbehalten.
STREIF Leistungen sind MEHR WERT - schon im Grundpreis enthalten!
- 16-monatige Festpreisgarantie
- Energieeffizienzhaus KfW 40 EE im Standard
- Inkl. Fundamentplatte
- Inkl. Klinker- (Teil -) Fassade
- Inkl. STREIF-Luft-Luft-Wärmepumpe mit integrierter
Lüftungsanlage mit Wärmerückgewinnung
- Inkl. Haustür von KERA und Fenster von Porta/Kömmerling
- Inkl. Massivholz-Geschosstreppe aus eigener Produktion
- Inkl. Sanitärobjekte von Markenherstellern
- Inkl. Elektroinstallation
- Inkl. Baubetreuung u.v.m.
Die hohe Wertigkeit und Langlebigkeit eines STREIF-Energiespar-Hauses wird durch zahlreiche Auszeichnungen, Qualitäts- und Gütesiegel unabhängiger Institute und Verbände dokumentiert.
Der Angebotspreis ist exklusive Grundstück und bezieht sich auf die Standard-Ausbaustufe Fast-Fertig-Plus. Ihre Eigenleistungen: Spachtel-,Tapezier- und Malerarbeiten, Bodenbeläge, Innentüren.
Baunebenkosten fallen zuzüglich an.
Bilder können evtl. Anbauteile, Carports, Balkone, Gauben usw. zeigen, die nicht im Angebotspreis enthalten sind. Änderungen und Irrtümer vorbehalten.
Kontakt
| Telefon | 0177-5668671 |
| Mobil | +49 152 04950520 |
| Website | www.streif.de |
