Profitieren Sie jetzt von der neuen KFW Förderung. So wird bauen bezahlbar.
269.995 €
Kaufpreis
117,65 m²
Wohnfläche
117,65 m²
Nutzfläche
5
Zimmer
immobilien.de Nr.: 8550622
Objektnummer: 058-24
Preise & Kosten
| Kaufpreis | 269.995 € |
| Nebenkosten | keine Angabe |
Größe & Zustand
| Wohnfläche | 117,65 m² |
| Nutzfläche | 117,65 m² |
| Grundstücksfläche | 750 m² |
| Zimmer | 5 |
| Baujahr | 2025 |
| Verfügbar ab | 2025 |
| Zustand | Projektiert |
Energie
| Energietyp | KfW-40 |
Objektbeschreibung
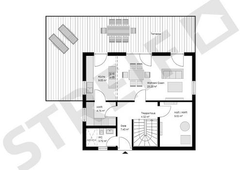
95 Jahre STREIF-Jubiläumshaus FAMILY in der Größe L
Das behagliche Family-Haus mit Satteldach aus der Jubiläumsaktion punktet mit einem gut
durchdachten Grundriss. Der offen gestaltete Wohn-/Ess- und Kochbereich ist
lichtdurchflutet. Ein praktischer Hauswirtschaftsraum ist direkt neben der Küche platziert.
Komplettiert wird das Raumangebot im Erdgeschoss mit einem Gäste-WC, das optional
auch als Duschbad ausgeführt werden kann, einer Diele und einem Haustechnikraum.
Im Dachgeschoss des Hauses sind zwei schöne Kinderzimmer, ein Elternschlafzimmer, ein
Flur und ein Familienbad untergebracht. Die Netto-Raumfläche beträgt 117,65 m².
Objektart: Einfamilienhaus, 1,5-geschossig
Dachform: Satteldach
Kniestock: 0,75 m
Hausmaße: 9,33 x 8,08 m
Netto-Raumfläche: 117,65 m²
95-Jahre STREIF-Jubiläumshaus Family in Größe L
Das behagliche Family-Haus mit Satteldach aus der Jubiläumsaktion punktet mit einem gut
durchdachten Grundriss. Der offen gestaltete Wohn-/Ess- und Kochbereich ist
lichtdurchflutet. Ein praktischer Hauswirtschaftsraum ist direkt neben der Küche platziert.
Komplettiert wird das Raumangebot im Erdgeschoss mit einem Gäste-WC, das optional
auch als Duschbad ausgeführt werden kann, einer Diele und einem Haustechnikraum.
Im Dachgeschoss des Hauses sind zwei schöne Kinderzimmer, ein Elternschlafzimmer, ein
Flur und ein Familienbad untergebracht. Die Netto-Raumfläche beträgt 117,65 m².
Objektart: Einfamilienhaus, 1,5-geschossig
Dachform: Satteldach
Kniestock: 0,75 m
Hausmaße: 9,33 x 8,08 m
Netto-Raumfläche: 117,65 m²
95-Jahre STREIF-Jubiläumshaus Family in Größe L
Ausstattung
| Anzahl der Etagen im Haus | 1 |
| Bad | 1 |
| Bad | Dusche, Wanne, Fenster |
Die Preise für die limitierten Jubiläumshäuser gelten beim Hauskauf bis zum 31.03.2024.
STREIF-Energiespar-Häuser sind für die Effizienzhaus-Klasse 40 ausgestattet. Gegen Aufpreis kann eine Ökobilanz erstellt werden, die bescheinigt, dass Ihr STREIF-Haus den neuen KfW-Förderrichtlinien in der Stufe KFWG für den Klimafreundlichen Neubau (KFN) entspricht. Für das Erfüllen der Voraussetzungen zur KfW-Förderung ist eine Photovoltaikanlage mit Batteriespeicher erforderlich.
Folgende STREIF-Leistungen sind im Jubiläums-Feierpreis enthalten -
bei Ausbaustufe FASTFERTIG+:
20-monatige Fair- und Festpreisgarantie
Inklusive gedämmter Fundamentplatte
Inklusive STREIF-Luft-Luft-Wärmepumpen-Technologie, mit integrierter Lüftungsanlage mit Wärmerückgewinnung
Inklusive hochwertiger Holzhaustür von KERA
Inklusive Fenster von Porta/Kömmerling, Fenster innen und außen in Weiß
Inklusive Massivholz-Geschosstreppe aus eigener Produktion (außer Bungalow)
Inklusive Sanitärobjekten von Markenherstellern in Bad/WC
Inklusive Elektroinstallation u.v.m.
Inklusive Vorbereitung zur Installation einer Photovoltaik-Anlage
Inklusive individueller Grundrissgestaltung und Raumaufteilung | Die Position der Bäder, die Größe der Haustechnikräume und der Treppen sind bei den Jubiläumshäusern nicht veränderbar.
Die STREIF-Passiv-Außenwand und eine sparsame Heiztechnik mit integrierter Wohnraumlüftung und Wärmerückgewinnung garantieren einen geringen Energieverbrauch und ein fantastisches Raumklima, das insbesondere Allergiker aufatmen lässt.
Die hohe Wertigkeit und Langlebigkeit eines STREIF-Energiespar-Hauses werden durch zahlreiche Auszeichnungen, Qualitäts- und Gütesiegel unabhängiger Institute und Verbände dokumentiert.
Der Angebotspreis ist inklusive Grundstück und bezieht sich auf die Standard-Ausbaustufe Fast-Fertig-Plus. Ihre Eigenleistungen: Spachtel-, Tapezier- und Malerarbeiten, Bodenbeläge, Innentüren.
Baunebenkosten fallen zuzüglich an. Der Verkauf des Grundstücks erfolgt über einen unserer Netzwerkpartner. Bilder können evtl. Anbauteile, Carports, Balkone, Gauben usw. zeigen, die nicht im Angebotspreis enthalten sind. Änderungen und Irrtümer vorbehalten. Fragen Sie Ihre persönliche STREIF-Bauberatung.
STREIF-Energiespar-Häuser sind für die Effizienzhaus-Klasse 40 ausgestattet. Gegen Aufpreis kann eine Ökobilanz erstellt werden, die bescheinigt, dass Ihr STREIF-Haus den neuen KfW-Förderrichtlinien in der Stufe KFWG für den Klimafreundlichen Neubau (KFN) entspricht. Für das Erfüllen der Voraussetzungen zur KfW-Förderung ist eine Photovoltaikanlage mit Batteriespeicher erforderlich.
Folgende STREIF-Leistungen sind im Jubiläums-Feierpreis enthalten -
bei Ausbaustufe FASTFERTIG+:
20-monatige Fair- und Festpreisgarantie
Inklusive gedämmter Fundamentplatte
Inklusive STREIF-Luft-Luft-Wärmepumpen-Technologie, mit integrierter Lüftungsanlage mit Wärmerückgewinnung
Inklusive hochwertiger Holzhaustür von KERA
Inklusive Fenster von Porta/Kömmerling, Fenster innen und außen in Weiß
Inklusive Massivholz-Geschosstreppe aus eigener Produktion (außer Bungalow)
Inklusive Sanitärobjekten von Markenherstellern in Bad/WC
Inklusive Elektroinstallation u.v.m.
Inklusive Vorbereitung zur Installation einer Photovoltaik-Anlage
Inklusive individueller Grundrissgestaltung und Raumaufteilung | Die Position der Bäder, die Größe der Haustechnikräume und der Treppen sind bei den Jubiläumshäusern nicht veränderbar.
Die STREIF-Passiv-Außenwand und eine sparsame Heiztechnik mit integrierter Wohnraumlüftung und Wärmerückgewinnung garantieren einen geringen Energieverbrauch und ein fantastisches Raumklima, das insbesondere Allergiker aufatmen lässt.
Die hohe Wertigkeit und Langlebigkeit eines STREIF-Energiespar-Hauses werden durch zahlreiche Auszeichnungen, Qualitäts- und Gütesiegel unabhängiger Institute und Verbände dokumentiert.
Der Angebotspreis ist inklusive Grundstück und bezieht sich auf die Standard-Ausbaustufe Fast-Fertig-Plus. Ihre Eigenleistungen: Spachtel-, Tapezier- und Malerarbeiten, Bodenbeläge, Innentüren.
Baunebenkosten fallen zuzüglich an. Der Verkauf des Grundstücks erfolgt über einen unserer Netzwerkpartner. Bilder können evtl. Anbauteile, Carports, Balkone, Gauben usw. zeigen, die nicht im Angebotspreis enthalten sind. Änderungen und Irrtümer vorbehalten. Fragen Sie Ihre persönliche STREIF-Bauberatung.
