Profitieren Sie jetzt von der neuen KFW Förderung. So wird bauen bezahlbar.
329.999 €
Kaufpreis
143,01 m²
Wohnfläche
143,01 m²
Nutzfläche
4
Zimmer
immobilien.de Nr.: 8550600
Objektnummer: 052-24
Preise & Kosten
| Kaufpreis | 329.999 € |
| Nebenkosten | keine Angabe |
Größe & Zustand
| Wohnfläche | 143,01 m² |
| Nutzfläche | 143,01 m² |
| Grundstücksfläche | 620 m² |
| Zimmer | 4 |
| Baujahr | 2025 |
| Verfügbar ab | 2025 |
Objektbeschreibung
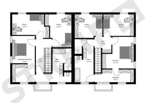
95 Jahre STREIF-Jubiläumshaus CITY in Größe L
Die Architektur des Hauses ist im klassischen Stadtvillenstil gehalten. Der Grundriss ist klug
durchdacht. Im Erdgeschoss befinden sich ein offen gestalteter Wohn-/Ess- und Kochbereich
mit einem praktischen Haustechnik-/Hauswirtschaftsraum, direkt neben der Küche. Ein
Zusatzraum, der als Homeoffice, Gäste-, Schlaf- oder Hobbyraum genutzt werden kann,
bietet zusätzlichen Komfort. Die Diele mit dem Treppenhaus ist mittig angeordnet. Neben
dem Eingangsbereich ist eine Garderobennische und ein Gäste-/WC eingeplant. Das Gäste-
WC kann optional auch als Duschbad ausgebaut werden. Im Obergeschoss des
Hausentwurfes befinden sich zwei nahezu gleich große Kinderzimmer, ein geräumiges
Familienbad und der Elternschlafbereich mit Ankleide und direktem Zugang zum Bad. Die
Nettoraumfläche beträgt 125 m².
Objektart: Stadtvilla, 2-geschossig
Dachform: Walmdach
Hausmaße: 8,71 m x 8,71 m
Netto-Raumfläche: 125,80 m²
95-Jahre STREIF-Jubiläumshaus CITY in Größe L
Die Architektur des Hauses ist im klassischen Stadtvillenstil gehalten. Der Grundriss ist klug
durchdacht. Im Erdgeschoss befinden sich ein offen gestalteter Wohn-/Ess- und Kochbereich
mit einem praktischen Haustechnik-/Hauswirtschaftsraum, direkt neben der Küche. Ein
Zusatzraum, der als Homeoffice, Gäste-, Schlaf- oder Hobbyraum genutzt werden kann,
bietet zusätzlichen Komfort. Die Diele mit dem Treppenhaus ist mittig angeordnet. Neben
dem Eingangsbereich ist eine Garderobennische und ein Gäste-/WC eingeplant. Das Gäste-
WC kann optional auch als Duschbad ausgebaut werden. Im Obergeschoss des
Hausentwurfes befinden sich zwei nahezu gleich große Kinderzimmer, ein geräumiges
Familienbad und der Elternschlafbereich mit Ankleide und direktem Zugang zum Bad. Die
Nettoraumfläche beträgt 125 m².
Objektart: Stadtvilla, 2-geschossig
Dachform: Walmdach
Hausmaße: 8,71 m x 8,71 m
Netto-Raumfläche: 125,80 m²
95-Jahre STREIF-Jubiläumshaus CITY in Größe L
Ausstattung
| Anzahl der Etagen im Haus | 2 |
| Küche | Offene Küche |
| Bad | 1 |
| Bad | Dusche, Wanne, Fenster |
Die Preise für die limitierten Jubiläumshäuser gelten beim Hauskauf bis zum 31.03.2024.
STREIF-Energiespar-Häuser sind für die Effizienzhaus-Klasse 40 ausgestattet. Gegen Aufpreis kann eine Ökobilanz erstellt werden, die bescheinigt, dass Ihr STREIF-Haus den neuen KfW-Förderrichtlinien in der Stufe KFWG für den Klimafreundlichen Neubau (KFN) entspricht. Für das Erfüllen der Voraussetzungen zur KfW-Förderung ist eine Photovoltaikanlage mit Batteriespeicher erforderlich.
Folgende STREIF-Leistungen sind im Jubiläums-Feierpreis enthalten -
bei Ausbaustufe FASTFERTIG+:
20-monatige Fair- und Festpreisgarantie
Inklusive gedämmter Fundamentplatte
Inklusive STREIF-Luft-Luft-Wärmepumpen-Technologie, mit integrierter Lüftungsanlage mit Wärmerückgewinnung
Inklusive hochwertiger Holzhaustür von KERA
Inklusive Fenster von Porta/Kömmerling, Fenster innen und außen in Weiß
Inklusive Massivholz-Geschosstreppe aus eigener Produktion (außer Bungalow)
Inklusive Sanitärobjekten von Markenherstellern in Bad/WC
Inklusive Elektroinstallation u.v.m.
Inklusive Vorbereitung zur Installation einer Photovoltaik-Anlage
Inklusive individueller Grundrissgestaltung und Raumaufteilung | Die Position der Bäder, die Größe der Haustechnikräume und der Treppen sind bei den Jubiläumshäusern nicht veränderbar.
Die STREIF-Passiv-Außenwand und eine sparsame Heiztechnik mit integrierter Wohnraumlüftung und Wärmerückgewinnung garantieren einen geringen Energieverbrauch und ein fantastisches Raumklima, das insbesondere Allergiker aufatmen lässt.
Die hohe Wertigkeit und Langlebigkeit eines STREIF-Energiespar-Hauses werden durch zahlreiche Auszeichnungen, Qualitäts- und Gütesiegel unabhängiger Institute und Verbände dokumentiert.
Der Angebotspreis ist exklusive Grundstück und bezieht sich auf die Standard-Ausbaustufe Fast-Fertig-Plus. Ihre Eigenleistungen: Spachtel-, Tapezier- und Malerarbeiten, Bodenbeläge, Innentüren.
Baunebenkosten fallen zuzüglich an. Der Verkauf des Grundstücks erfolgt über einen unserer Netzwerkpartner. Bilder können evtl. Anbauteile, Carports, Balkone, Gauben usw. zeigen, die nicht im Angebotspreis enthalten sind. Änderungen und Irrtümer vorbehalten. Fragen Sie Ihre persönliche STREIF-Bauberatung.
STREIF-Energiespar-Häuser sind für die Effizienzhaus-Klasse 40 ausgestattet. Gegen Aufpreis kann eine Ökobilanz erstellt werden, die bescheinigt, dass Ihr STREIF-Haus den neuen KfW-Förderrichtlinien in der Stufe KFWG für den Klimafreundlichen Neubau (KFN) entspricht. Für das Erfüllen der Voraussetzungen zur KfW-Förderung ist eine Photovoltaikanlage mit Batteriespeicher erforderlich.
Folgende STREIF-Leistungen sind im Jubiläums-Feierpreis enthalten -
bei Ausbaustufe FASTFERTIG+:
20-monatige Fair- und Festpreisgarantie
Inklusive gedämmter Fundamentplatte
Inklusive STREIF-Luft-Luft-Wärmepumpen-Technologie, mit integrierter Lüftungsanlage mit Wärmerückgewinnung
Inklusive hochwertiger Holzhaustür von KERA
Inklusive Fenster von Porta/Kömmerling, Fenster innen und außen in Weiß
Inklusive Massivholz-Geschosstreppe aus eigener Produktion (außer Bungalow)
Inklusive Sanitärobjekten von Markenherstellern in Bad/WC
Inklusive Elektroinstallation u.v.m.
Inklusive Vorbereitung zur Installation einer Photovoltaik-Anlage
Inklusive individueller Grundrissgestaltung und Raumaufteilung | Die Position der Bäder, die Größe der Haustechnikräume und der Treppen sind bei den Jubiläumshäusern nicht veränderbar.
Die STREIF-Passiv-Außenwand und eine sparsame Heiztechnik mit integrierter Wohnraumlüftung und Wärmerückgewinnung garantieren einen geringen Energieverbrauch und ein fantastisches Raumklima, das insbesondere Allergiker aufatmen lässt.
Die hohe Wertigkeit und Langlebigkeit eines STREIF-Energiespar-Hauses werden durch zahlreiche Auszeichnungen, Qualitäts- und Gütesiegel unabhängiger Institute und Verbände dokumentiert.
Der Angebotspreis ist exklusive Grundstück und bezieht sich auf die Standard-Ausbaustufe Fast-Fertig-Plus. Ihre Eigenleistungen: Spachtel-, Tapezier- und Malerarbeiten, Bodenbeläge, Innentüren.
Baunebenkosten fallen zuzüglich an. Der Verkauf des Grundstücks erfolgt über einen unserer Netzwerkpartner. Bilder können evtl. Anbauteile, Carports, Balkone, Gauben usw. zeigen, die nicht im Angebotspreis enthalten sind. Änderungen und Irrtümer vorbehalten. Fragen Sie Ihre persönliche STREIF-Bauberatung.
