XXL Einfamilienhaus zum Jubiläumspreis
459.999 €
Kaufpreis
161 m²
Wohnfläche
5
Zimmer
immobilien.de Nr.: 8526744
Objektnummer: EMD005
Preise & Kosten
| Kaufpreis | 459.999 € |
| Nebenkosten | keine Angabe |
Größe & Zustand
| Wohnfläche | 161 m² |
| Grundstücksfläche | 501 m² |
| Zimmer | 5 |
| Baujahr | 2025 |
| Verfügbar ab | keine Angabe |
| Zustand | Projektiert |
Energie
| Energietyp | KfW-40 |
| Energieträger/Befeuerung | Luft-Wärme-Pumpe |
Objektbeschreibung
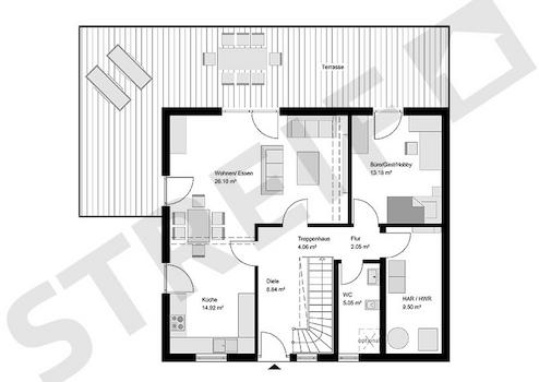
95 Jahre STREIF-Jubiläumshaus FAMILY in der Größe XXL
In diesem behaglichen Family-Haus-Entwurf ist der Wohn-/Ess-/ und Kochbereich auf 41 m² übereck angelegt. Die Küche befindet sich direkt in der Nähe des Hauseingangs, so können die Einkäufe auf kürzestem Weg verstaut werden. Durch die Übereckplanung kann der
Küchenbereich nicht direkt vom Wohnzimmer aus eingesehen werden. Die Räume sind hell und lichterfüllt geplant. Im Erdgeschoss befindet sich weiterhin ein Zusatz-
/Gästezimmer/Homeoffice, ein Raum für die Haustechnik-/Hauswirtschaft, eine geräumige
Diele und ein Gäste-WC, das optional auch noch mit einer Dusche ausgestattet werden kann. Der Grundriss ist vorausschauend geplant, damit das Wohnen im Alter oder bei Krankheit auf einer Etage möglich ist. Im Dachgeschoss befinden sich zwei große Kinderzimmer, ein Elternbereich mit Ankleide und ein großes familienfreundliches Bad.
Objektart: Einfamilienhaus, 1,5-geschossig
Dachform: Satteldach
Kniestock: 1,00 m
Hausmaße: 10,58 m x 9,33 m
Netto-Raumfläche: 161,39 m²
95-Jahre STREIF-Jubiläumshaus FAMILY in Größe XXL
In diesem behaglichen Family-Haus-Entwurf ist der Wohn-/Ess-/ und Kochbereich auf 41 m² übereck angelegt. Die Küche befindet sich direkt in der Nähe des Hauseingangs, so können die Einkäufe auf kürzestem Weg verstaut werden. Durch die Übereckplanung kann der
Küchenbereich nicht direkt vom Wohnzimmer aus eingesehen werden. Die Räume sind hell und lichterfüllt geplant. Im Erdgeschoss befindet sich weiterhin ein Zusatz-
/Gästezimmer/Homeoffice, ein Raum für die Haustechnik-/Hauswirtschaft, eine geräumige
Diele und ein Gäste-WC, das optional auch noch mit einer Dusche ausgestattet werden kann. Der Grundriss ist vorausschauend geplant, damit das Wohnen im Alter oder bei Krankheit auf einer Etage möglich ist. Im Dachgeschoss befinden sich zwei große Kinderzimmer, ein Elternbereich mit Ankleide und ein großes familienfreundliches Bad.
Objektart: Einfamilienhaus, 1,5-geschossig
Dachform: Satteldach
Kniestock: 1,00 m
Hausmaße: 10,58 m x 9,33 m
Netto-Raumfläche: 161,39 m²
95-Jahre STREIF-Jubiläumshaus FAMILY in Größe XXL
Ausstattung
| Anzahl der Etagen im Haus | 1 |
| Küche | Offene Küche |
| Bad | 1 |
| Bad | Dusche, Wanne, Fenster |
| Terrassen | 1 |
STREIF-Häuser erfüllen bereits im Standard die Effizienzhaus-Klasse KfW40.
Die STREIF-Passiv-Haus-Wände, eine effiziente Heiztechnik mit integrierter Wohnraumlüftung und Wärmerückgewinnung garantieren einen geringen Energieverbrauch und ein fantastisches Raumklima, das insbesondere Allergiker aufatmen lässt.
STREIF Leistungen sind MEHR WERT - schon im Grundpreis enthalten!
- 20-monatige Festpreisgarantie
- inkl. individuelle Grundrissgestaltung und Raumaufteilung
- inkl. gedämmte Fundamentplatte
- inkl. Wärmepumpen-Technologie mit integrierter Lüftungsanlage mit Wärmerückgewinnung
- inkl. Haustür von KERA und Fenster von Porta/Kömmerling
- inkl. Massivholz-Geschosstreppe aus eigener Produktion
- inkl. Sanitärobjekte von Markenherstellern
- inkl. Elektroinstallation
- inkl. Gütesiegel vom TÜV Rheinland- (schadstoffgeprüfte Materialien)
- inkl. KfW-Berechnungen & Nachweise
Was wir Ihnen sonst noch bieten:
Kostenlose Bauberatung inkl. Grundrissplanung
Ermittlung der Gesamt-Investition Ihres Bauvorhabens
Finanzierungs - & Fördermittelberatung
Die hohe Wertigkeit und Langlebigkeit eines STREIF-Energiespar-Hauses wird durch zahlreiche Auszeichnungen, Qualitäts- und Gütesiegel unabhängiger Institute und Verbände dokumentiert.
Der Angebotspreis ist inklusive Grundstück und bezieht sich auf die Standard-Ausbaustufe Fast-Fertig-Plus (Technikfertig inkl. Bäder). Somit wären Ihre Eigenleistungen: Malerarbeiten, Bodenbeläge und die Innentüren. Selbstverständlich können wir Ihr Haus auch schlüsselfertig / bezugsfertig errichten.
Wir beraten Sie gerne beim Hauskauf! Sprechen Sie uns an: Werner Fett - 01520 - 4950520
Die STREIF-Passiv-Haus-Wände, eine effiziente Heiztechnik mit integrierter Wohnraumlüftung und Wärmerückgewinnung garantieren einen geringen Energieverbrauch und ein fantastisches Raumklima, das insbesondere Allergiker aufatmen lässt.
STREIF Leistungen sind MEHR WERT - schon im Grundpreis enthalten!
- 20-monatige Festpreisgarantie
- inkl. individuelle Grundrissgestaltung und Raumaufteilung
- inkl. gedämmte Fundamentplatte
- inkl. Wärmepumpen-Technologie mit integrierter Lüftungsanlage mit Wärmerückgewinnung
- inkl. Haustür von KERA und Fenster von Porta/Kömmerling
- inkl. Massivholz-Geschosstreppe aus eigener Produktion
- inkl. Sanitärobjekte von Markenherstellern
- inkl. Elektroinstallation
- inkl. Gütesiegel vom TÜV Rheinland- (schadstoffgeprüfte Materialien)
- inkl. KfW-Berechnungen & Nachweise
Was wir Ihnen sonst noch bieten:
Kostenlose Bauberatung inkl. Grundrissplanung
Ermittlung der Gesamt-Investition Ihres Bauvorhabens
Finanzierungs - & Fördermittelberatung
Die hohe Wertigkeit und Langlebigkeit eines STREIF-Energiespar-Hauses wird durch zahlreiche Auszeichnungen, Qualitäts- und Gütesiegel unabhängiger Institute und Verbände dokumentiert.
Der Angebotspreis ist inklusive Grundstück und bezieht sich auf die Standard-Ausbaustufe Fast-Fertig-Plus (Technikfertig inkl. Bäder). Somit wären Ihre Eigenleistungen: Malerarbeiten, Bodenbeläge und die Innentüren. Selbstverständlich können wir Ihr Haus auch schlüsselfertig / bezugsfertig errichten.
Wir beraten Sie gerne beim Hauskauf! Sprechen Sie uns an: Werner Fett - 01520 - 4950520
Sonstige Informationen
Das im Gesamtpreis enthaltene Grundstück muss separat von unserem Kooperationspartner erworben werden.
Gerne planen wir für Sie Ihr ganz individuelles Traumhaus auf Ihrem Grundstück nach Ihren ganz persönlichen Wünschen.
Testen Sie unsere Leistungsfähigkeit! Wir freuen uns darauf.
Gerne planen wir für Sie Ihr ganz individuelles Traumhaus auf Ihrem Grundstück nach Ihren ganz persönlichen Wünschen.
Testen Sie unsere Leistungsfähigkeit! Wir freuen uns darauf.
Lage des Objektes
Das Baugebiet liegt im Nordwesten der ostfriesischen Seehafenstadt Emden im Stadtteil Conrebbersweg. Von hier aus sind sämtliche Ziele einfach und schnell zu Fuß, mit dem Fahrrad oder Auto zu erreichen. Unkompliziert gelangen Sie innerhalb weniger Minuten zu verschiedensten Einkaufsmöglichkeiten, Ärzten, Schulen, der Emder Innenstadt, dem Hauptbahnhof sowie der Autobahn A31.
Der Bebauungsplan Nr. D156 "Conrebbersweg West" III. Abschnitt, Teil A der Stadt Emden ist rechtskräftig. Die Baugrundstücke sind voll erschlossen und kurzfristig bebaubar.
Der Bebauungsplan Nr. D156 "Conrebbersweg West" III. Abschnitt, Teil A der Stadt Emden ist rechtskräftig. Die Baugrundstücke sind voll erschlossen und kurzfristig bebaubar.
Anbieter kontaktieren
Kontakt
| Telefon | 0177-5668671 |
| Mobil | +49 152 04950520 |
| Website | www.streif.de |
