Stadtvilla als Effizienzhaus im Neubaugebiet inkl. Grundstück
750.000 €
Kaufpreis
150 m²
Wohnfläche
4
Zimmer
immobilien.de Nr.: 8451251
Objektnummer: 005
Preise & Kosten
| Kaufpreis | 750.000 € |
| Nebenkosten | keine Angabe |
Größe & Zustand
| Wohnfläche | 150 m² |
| Grundstücksfläche | 740 m² |
| Zimmer | 4 |
| Baujahr | 2023 |
| Verfügbar ab | keine Angabe |
| Zustand | Erstbezug |
Energie
| Energietyp | KfW-40 |
| Heizungsart | Fernwärme |
| Energieträger/Befeuerung | Fernwärme |
Objektbeschreibung
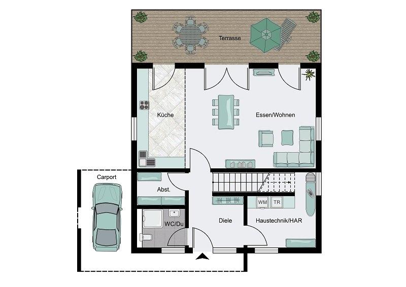
Der extravagante Entwurf der Stadtvilla im Bauhausstil sucht seinesgleichen. Ein Understatement in exklusivem Stil und vielen Details. Die Garage schmiegt sich als fließendes Element mit dem überdachten Hauseingangsbereich an das Gebäude an. Eine Wohnraumerweiterung im Wohn-/Essbereich wird als überdachte Terrasse fortgeführt. Die Gebäudekörper sind farblich akzentuiert. Ein weiteres typisches Element des Bauhausstils ist das Flachdach, welches diesen Hausentwurf perfektioniert. Die Grundrissgestaltung überzeugt trotz eines kompakten Grundrisses mit 3 Schlafzimmern, 3 Bädern, einem zusätzlichen Raum im Erdgeschoss, mit einem großzügigen Wohn-/Ess- und Kochbereich. Über einen praktischen Nebeneingang gelangt man direkt vom Hauswirtschafts-/Haustechnikraum in die Garage. Dieser Hausentwurf ist nur ein Gestaltungsvorschlag. Individuelle Anpassungen wie z. B. in der Hausgröße, der Dachgeometrie oder den Fenstergrößen und -positionierungen sind möglich. Fragen Sie Ihren persönlichen STREIF-Bauberater.
Ausstattung
| Anzahl der Etagen im Haus | 2 |
| Bad | 2 |
Das Streif City Haus wird im Standard KFW 40 ausgeführt. Grundstück inkl. Innenausstattung aus dem STREIF-Programm in der Ausbaustufe FF+
inklusive Fundamentplatte.
Außenwände in Passiv-Haus-Qualität
Dach: Selbstreinigende Dacheindeckung in vielen Farben
Putz: Stoßfester Carbon-Außenputz in Ihrer Farbauswahl
Haustüre: Exklusive Holzhaustür von KeraTür in vielen Farben und Designs
Fenster: Kömmerling Kunststofffenster inkl. 3-fach-Verglasung
Elektro: Komplette Elektroinstallationen inkl. Zähleranlage
Treppe: Massive Holztreppe aus eigener Fertigung
Bad und Gäste Bad: Montierte Sanitärobjekte, Wand- und Bodenfliesen,
Duschen Bodentief, Badewanne im Masterbad
Die Innentüren sowie Wand-, Decken- und Bodenbeläge der übrigen Räume sind
Eigenleistungen des Bauherren.
- Luft-Wasser-Wärmepumpe mit Fussbodenheizung
- Wärmetauscher mit bis zu 85% Wärmerückgewinnung
Die dargestellten Bilder können Sonderausstattungen beinhalten die nicht im Preis enthalten sind!
zzgl. Ortüblicher Baunebenkosten
Der Verkauf des Grundstückes erfolgt über einen Netzwerkpartner.
Eine weitere Möglichkeit: STREIF Ausbauhaus mit regionalen Partnerfirmen...fragen Sie uns!!
STREIF Häuser...eine sichere Anlage in unsicheren Zeiten
inklusive Fundamentplatte.
Außenwände in Passiv-Haus-Qualität
Dach: Selbstreinigende Dacheindeckung in vielen Farben
Putz: Stoßfester Carbon-Außenputz in Ihrer Farbauswahl
Haustüre: Exklusive Holzhaustür von KeraTür in vielen Farben und Designs
Fenster: Kömmerling Kunststofffenster inkl. 3-fach-Verglasung
Elektro: Komplette Elektroinstallationen inkl. Zähleranlage
Treppe: Massive Holztreppe aus eigener Fertigung
Bad und Gäste Bad: Montierte Sanitärobjekte, Wand- und Bodenfliesen,
Duschen Bodentief, Badewanne im Masterbad
Die Innentüren sowie Wand-, Decken- und Bodenbeläge der übrigen Räume sind
Eigenleistungen des Bauherren.
- Luft-Wasser-Wärmepumpe mit Fussbodenheizung
- Wärmetauscher mit bis zu 85% Wärmerückgewinnung
Die dargestellten Bilder können Sonderausstattungen beinhalten die nicht im Preis enthalten sind!
zzgl. Ortüblicher Baunebenkosten
Der Verkauf des Grundstückes erfolgt über einen Netzwerkpartner.
Eine weitere Möglichkeit: STREIF Ausbauhaus mit regionalen Partnerfirmen...fragen Sie uns!!
STREIF Häuser...eine sichere Anlage in unsicheren Zeiten
Sonstige Informationen
- zuzüglich Baunebenkosten
- der Grundriss oder die Hausgröße können noch verändert werden
- Anbauteile wie Garage, Balkon u.s.w. sind Zubehör
- Vorverkauf und Irrtümer sind vorbehalten
- der Grundriss oder die Hausgröße können noch verändert werden
- Anbauteile wie Garage, Balkon u.s.w. sind Zubehör
- Vorverkauf und Irrtümer sind vorbehalten
Lage des Objektes
sehr schönes und ruhig gelegenes Grundstück in Bergheim Thorr,, Neubaugebiet " Am Römerpark "
mit Südseite im Garten. Ruhige Seitenstraße abgehend von der Strassse " Im langen Benden "
Ideal zum bebauen mit einem Bungalow, EFH oder 2 FH.
Wir möchten darauf hinweisen dass das Grundstück über einen Netzwerkpartner verkauft wird
mit Südseite im Garten. Ruhige Seitenstraße abgehend von der Strassse " Im langen Benden "
Ideal zum bebauen mit einem Bungalow, EFH oder 2 FH.
Wir möchten darauf hinweisen dass das Grundstück über einen Netzwerkpartner verkauft wird
Anbieter kontaktieren
Kontakt
| Telefon | +49 212 78178624 |
| Mobil | +49 1520 6142447 |
| Website | www.streif.de |
