Für die junge Familie
449.797 €
Kaufpreis
100 m²
Wohnfläche
4
Zimmer
immobilien.de Nr.: 8450952
Objektnummer: BVNK63016
Preise & Kosten
| Kaufpreis | 449.797 € |
| Nebenkosten | keine Angabe |
Größe & Zustand
| Wohnfläche | 100 m² |
| Grundstücksfläche | 1.000 m² |
| Zimmer | 4 |
| Verfügbar ab | keine Angabe |
Objektbeschreibung
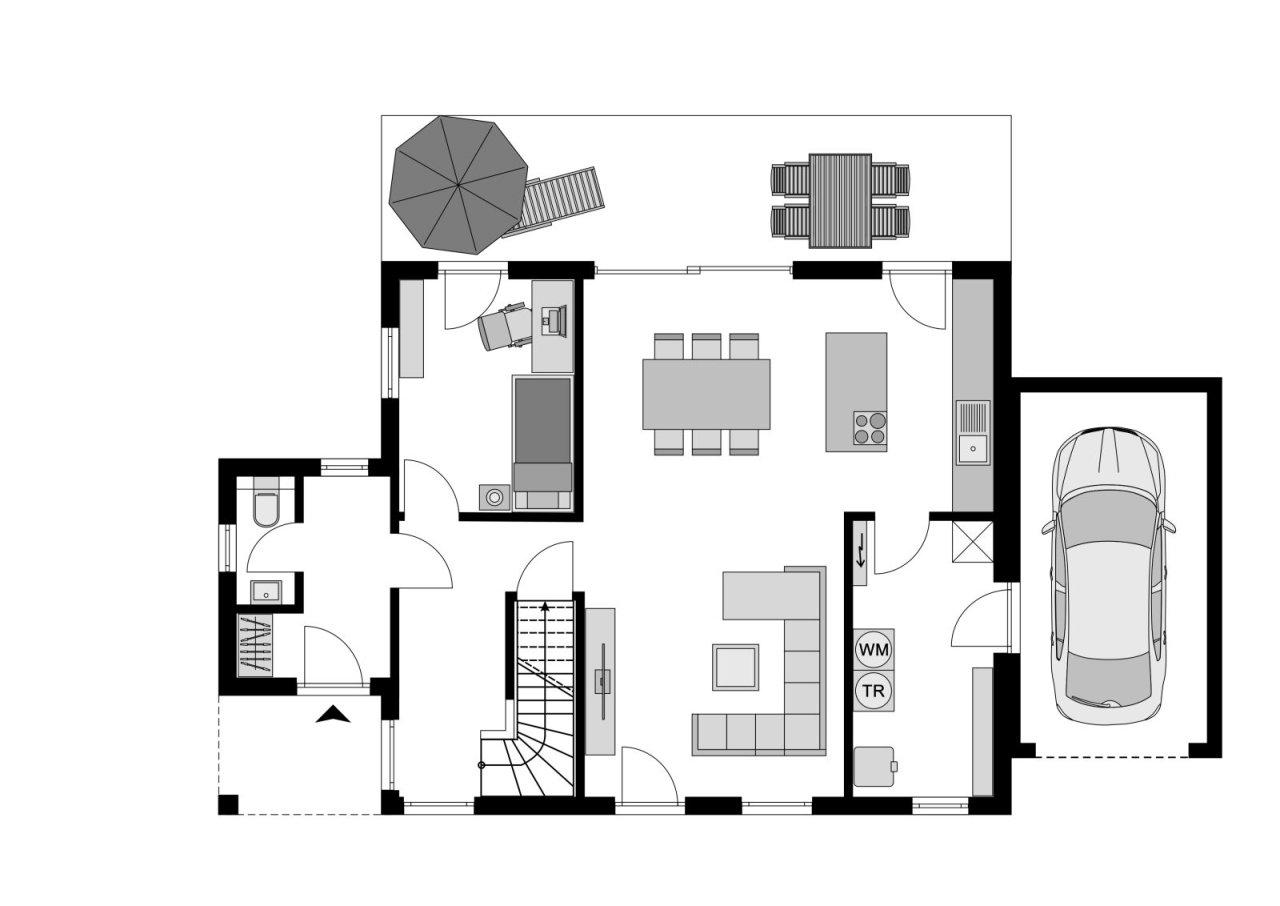
Das Architektenhaus Bad Vilbel überzeugt mit einem außergewöhnlichen Grundriss. Durch die weiße Putzfassade kommen die anthrazitfarbenen Fensterrahmen gut zur Geltung und geben dem Haus in Kombination mit Holzlisenen am Giebel und einem Balkongeländer aus Glas einen modernen und frischen Charakter. Im Erdgeschoss wird der große Wohn-/Essbereich durch die Erkerausbildung geprägt. Die Küche ist separat, aber dennoch offen angelegt. Das bietet den Vorteil, dass für Gäste und Besucher der Küchenbereich nicht unmittelbar einsehbar ist. Neben der Küche ist der praktische Hauswirtschafts- und Technikraum angelegt. Die Terrasse ist durch einen Gebäudeversatz teilweise überdacht. Viele bodentiefe Fensterelemente im Erdgeschoss lassen außerordentlich viel Licht ins Haus. Ein Arbeits-/Gästezimmer, eine geräumige Diele und ein Gäste-WC sind ebenfalls im Erdgeschoss untergebracht.
Im Dachgeschoss befinden sich zwei gleich große Kinderzimmer und ein großes Elternschlafzimmer mit Ankleide und einem kleinem Balkon. Komplettiert wird die Etage durch ein großzügiges Badezimmer, welches mit Wanne und Dusche ausgestattet ist.
Die gezeigten Fotos und Grundrisse sind Hausbeispiele. Jedes STREIF-Haus wird individuell nach Kundenwunsch geplant und gebaut.
Objektart: modernes Einfamilienhaus mit Erker, 1 ½-geschossig
Dachform: Satteldach
Im Dachgeschoss befinden sich zwei gleich große Kinderzimmer und ein großes Elternschlafzimmer mit Ankleide und einem kleinem Balkon. Komplettiert wird die Etage durch ein großzügiges Badezimmer, welches mit Wanne und Dusche ausgestattet ist.
Die gezeigten Fotos und Grundrisse sind Hausbeispiele. Jedes STREIF-Haus wird individuell nach Kundenwunsch geplant und gebaut.
Objektart: modernes Einfamilienhaus mit Erker, 1 ½-geschossig
Dachform: Satteldach
Ausstattung
| Anzahl der Etagen im Haus | 2 |
| Bad | 1 |
Kontakt
| Telefon | +49 6101 580020 |
| Mobil | +49 176 80499210 |
| Website | www.streif.de |
