Öko Siegel + Individuell + Streif eben..
452.634 €
Kaufpreis
102 m²
Wohnfläche
100 m²
Nutzfläche
4
Zimmer
immobilien.de Nr.: 8450948
Objektnummer: BVNK63012
Preise & Kosten
| Kaufpreis | 452.634 € |
| Nebenkosten | keine Angabe |
Größe & Zustand
| Wohnfläche | 102 m² |
| Nutzfläche | 100 m² |
| Grundstücksfläche | 1.839 m² |
| Zimmer | 4 |
| Verfügbar ab | keine Angabe |
Energie
| Energietyp | KfW-40 |
| Heizungsart | Etagenheizung |
| Energieträger/Befeuerung | Luft-Wärme-Pumpe |
Objektbeschreibung
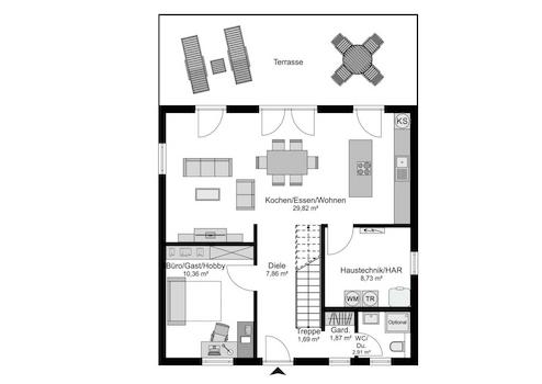
Die moderne Gebäudearchitektur des Energiespar-Hauses von STREIF überzeugt durch vielfältige Details und lässt kaum einen Wunsch offen. An Vorder- und Rückseite ist jeweils ein 3. Giebel mit Flachdach ausgeführt. Die Hausfront ist geprägt durch eine Überdachung, die sich bis zur Garage an der Gebäudeseite erstreckt. Die Garage ist mit einem herrlichen Balkon überdacht. Auch ein Teil der Terrasse ist im Bereich hinter der Garage überdacht und bietet so Schutz vor Sonne und Wind. Der Grundriss ist gut durchdacht und bietet einen großen Wohn-/Essbereich mit offener Küche. Große Terrassentüren, die übereck angeordnet sind und eine große Hebe-/Schiebetür öffnen das Haus zum Garten hin und lassen viel Licht in den Raum. Das Erdgeschoss wird komplettiert durch einen Haustechnikraum, ein Duschbad und ein Büro/Gästezimmer. In der Diele ist ein separater kleiner Raum für die Garderobe untergebracht. Das Obergeschoss bietet Platz für ein großes Elternschlafzimmer mit separatem Ankleidezimmer und Zugang zum großen Balkon. Weiterhin sind zwei Kinderzimmer, ein großes Familienbad mit Badewanne und Dusche, sowie ein Hauswirtschaftsraum auf der Etage untergebracht. Durch entsprechende Fenster und Terrassentüren ist die gesamte Etage hell und lichtdurchflutet. Durch den erhöhten Kniestock mit 200 cm bieten auch die Räume im Dachgeschoss viel Stellfläche. Die gezeigten Fotos und Grundrisse sind Hausbeispiele. Jedes STREIF-Haus wird individuell nach Kundenwusch geplant und gebaut.
Objektart: Einfamilienhaus, 1 1/2-geschossig, Kniestock 200 cm, 3. Giebel an Vorder- und Rückseite mit Flachdach, Garage mit aufgesetztem Balkon, Hauseingang fließend bis zur Garage überdacht, überdachte Terrasse
Objektart: Einfamilienhaus, 1 1/2-geschossig, Kniestock 200 cm, 3. Giebel an Vorder- und Rückseite mit Flachdach, Garage mit aufgesetztem Balkon, Hauseingang fließend bis zur Garage überdacht, überdachte Terrasse
Ausstattung
| Anzahl der Etagen im Haus | 2 |
| Küche | Offene Küche |
| Bad | 1 |
| Bad | Dusche, Wanne, Fenster, Bidet |
STREIF-Häuser sind Energiesparhäuser. Die Außenwände im Passiv-Haus-Standard und eine sparsame Heiztechnik mit integrierter Wohnraumlüftung und Wärmerückgewinnung, garantieren einen geringen Energieverbrauch und ein fantastisches Raumklima, das insbesondere Allergiker aufatmen lässt.
STREIF Leistungen sind MEHR WERT - schon im Grundpreis enthalten!
- 16-monatige Festpreisgarantie
- Energieeffizienzhaus KfW 40 EE im Standard
- Inkl. individuelle Grundrissgestaltung und Raumaufteilung
- Inkl. Fundamentplatte
- Inkl. STREIF-Luft-Luft-Wärmepumpe mit integrierter
Lüftungsanlage mit Wärmerückgewinnung
- Inkl. Haustür von KERA und Fenster von Porta/Kömmerling
- Inkl. Massivholz-Geschosstreppe aus eigener Produktion
- Inkl. Elektroinstallation
- Inkl. Baubetreuung u.v.m.
Die hohe Wertigkeit und Langlebigkeit eines STREIF-Energiespar-Hauses wird durch zahlreiche Auszeichnungen, Qualität- und Gütesiegel unabhängiger Institute und Verbände dokumentiert.
Der Angebotspreis ist inklusive Grundstück und bezieht sich auf die Standard-Ausbaustufe Fast-Fertig. Spachtel-, Tapezier- und Malerarbeiten, Bodenbeläge, Innentüren und Badausstattung sind in diesem Falle nicht enthalten, können auf Wunsch von Streif ausgeführt werden oder sind Eigenleistung.
Baunebenkosten fallen zuzüglich an.
Der Verkauf des Grundstücks erfolgt über einen unserer Netzwerkpartner.
Bilder können evtl. Anbauteile, Carports, Balkone, Gauben usw. zeigen, die nicht im Angebotspreis enthalten sind. Änderungen und Irrtümer vorbehalten.
STREIF Leistungen sind MEHR WERT - schon im Grundpreis enthalten!
- 16-monatige Festpreisgarantie
- Energieeffizienzhaus KfW 40 EE im Standard
- Inkl. individuelle Grundrissgestaltung und Raumaufteilung
- Inkl. Fundamentplatte
- Inkl. STREIF-Luft-Luft-Wärmepumpe mit integrierter
Lüftungsanlage mit Wärmerückgewinnung
- Inkl. Haustür von KERA und Fenster von Porta/Kömmerling
- Inkl. Massivholz-Geschosstreppe aus eigener Produktion
- Inkl. Elektroinstallation
- Inkl. Baubetreuung u.v.m.
Die hohe Wertigkeit und Langlebigkeit eines STREIF-Energiespar-Hauses wird durch zahlreiche Auszeichnungen, Qualität- und Gütesiegel unabhängiger Institute und Verbände dokumentiert.
Der Angebotspreis ist inklusive Grundstück und bezieht sich auf die Standard-Ausbaustufe Fast-Fertig. Spachtel-, Tapezier- und Malerarbeiten, Bodenbeläge, Innentüren und Badausstattung sind in diesem Falle nicht enthalten, können auf Wunsch von Streif ausgeführt werden oder sind Eigenleistung.
Baunebenkosten fallen zuzüglich an.
Der Verkauf des Grundstücks erfolgt über einen unserer Netzwerkpartner.
Bilder können evtl. Anbauteile, Carports, Balkone, Gauben usw. zeigen, die nicht im Angebotspreis enthalten sind. Änderungen und Irrtümer vorbehalten.
Kontakt
| Telefon | +49 6101 580020 |
| Mobil | +49 176 80499210 |
| Website | www.streif.de |
