Machen Sie Ihren Traum mit Streif wahr - Sie haben es sich verdient!
522.174 €
Kaufpreis
132 m²
Wohnfläche
100 m²
Nutzfläche
4
Zimmer
immobilien.de Nr.: 8450942
Objektnummer: BVNK63006
Preise & Kosten
| Kaufpreis | 522.174 € |
| Nebenkosten | keine Angabe |
Größe & Zustand
| Wohnfläche | 132 m² |
| Nutzfläche | 100 m² |
| Grundstücksfläche | 1.839 m² |
| Zimmer | 4 |
| Baujahr | 2024 |
| Verfügbar ab | keine Angabe |
Energie
| Energietyp | KfW-40 |
| Heizungsart | Zentralheizung |
| Energieträger/Befeuerung | Luft-Wärme-Pumpe |
Objektbeschreibung
Frühlingszauber Aktionshaus FAMILY in der Größe L
Objektbeschreibung
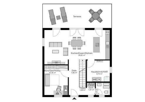
Das behagliche Family-Haus mit Satteldach aus der Frühlingszauberaktion punktet mit einem gut durchdachten Grundriss. Der offen gestaltete Wohn-/Ess- und Kochbereich ist lichtdurchflutet. Ein praktischer Hauswirtschaftsraum ist direkt neben der Küche platziert. Komplettiert wird das Raumangebot im Erdgeschoss mit einem Gäste-WC, das optional auch als Duschbad ausgeführt werden kann, einer Diele und einem Haustechnikraum.
Im Dachgeschoss des Hauses sind zwei schöne Kinderzimmer, ein Elternschlafzimmer, ein Flur und ein Familienbad untergebracht. Die Netto-Raumfläche beträgt 119 m².
Die Lage der Treppe und des Haustechnikraumes sind beim Frühlingszauberangebot fixiert.
Objektart: Einfamilienhaus, 1,5-geschossig
Dachform: Satteldach
Kniestock: 0,75 m
Netto-Raumfläche: 119,09 m²
Objektbeschreibung
Das behagliche Family-Haus mit Satteldach aus der Frühlingszauberaktion punktet mit einem gut durchdachten Grundriss. Der offen gestaltete Wohn-/Ess- und Kochbereich ist lichtdurchflutet. Ein praktischer Hauswirtschaftsraum ist direkt neben der Küche platziert. Komplettiert wird das Raumangebot im Erdgeschoss mit einem Gäste-WC, das optional auch als Duschbad ausgeführt werden kann, einer Diele und einem Haustechnikraum.
Im Dachgeschoss des Hauses sind zwei schöne Kinderzimmer, ein Elternschlafzimmer, ein Flur und ein Familienbad untergebracht. Die Netto-Raumfläche beträgt 119 m².
Die Lage der Treppe und des Haustechnikraumes sind beim Frühlingszauberangebot fixiert.
Objektart: Einfamilienhaus, 1,5-geschossig
Dachform: Satteldach
Kniestock: 0,75 m
Netto-Raumfläche: 119,09 m²
Ausstattung
| Anzahl der Etagen im Haus | 2 |
| Bad | 1 |
| Bad | Dusche, Wanne, Fenster |
| Garten | |
| Terrassen | 1 |
Ausstattung
STREIF-Häuser sind Energiesparhäuser. Die STREIF-Passiv-Außenwände und eine sparsame Heiztechnik mit integrierter Wohnraumlüftung und Wärmerückgewinnung, garantieren einen geringen Energieverbrauch und ein fantastisches Raumklima, das insbesondere Allergiker aufatmen lässt.
In unserer Premium-Linie sind folgende STREIF-Leistungen im Aktionspreis enthalten - bei der Ausbaustufe fast fertig plus.
- 16-monatige Festpreisgarantie
- Inklusive gedämmter Fundamentplatte
- Inkl. STREIF-Luft-Luft-Wärmepumpen-Technologie mit integrierter Lüftungsanlage mit Wärmerückgewinnung
- Inkl. Haustür von KERA und Fenster von Porta/Kömmerling. Fenster farbig, zum Beispiel innen in Weiß und
außen in Anthrazit, mit elektrischen IO-Funkrollläden
- Inkl. Massivholz-Geschosstreppe aus eigener Produktion
- Inkl. Sanitärobjekte von Markenherstellern
- Inkl. Elektroinstallation
- Inkl. individuelle Grundrissgestaltung und Raumaufteilung (Die Lage der Treppe und des Haustechnikraumes sind beim Frühlingszauberangebot nicht veränderbar.)
-Inkl. Vorbereitung zur Installation einer Photovoltaik-Anlage
Die hohe Wertigkeit und Langlebigkeit eines STREIF-Energiespar-Hauses werden durch zahlreiche Auszeichnungen, Qualitäts- und Gütesiegel unabhängiger Institute und Verbände dokumentiert.
Der Angebotspreis ist inklusive Grundstück und bezieht sich auf die Standard-Ausbaustufe Fast-Fertig-Plus. Ihre Eigenleistungen: Spachtel-, Tapezier- und Malerarbeiten, Bodenbeläge, Innentüren. Baunebenkosten fallen zuzüglich an.
Der Verkauf des Grundstücks erfolgt über einen unserer Netzwerkpartner.
Bilder können evtl. Anbauteile, Carports, Balkone, Gauben usw. zeigen, die nicht im Angebotspreis enthalten sind.
Änderungen und Irrtümer vorbehalten.
STREIF-Häuser sind Energiesparhäuser. Die STREIF-Passiv-Außenwände und eine sparsame Heiztechnik mit integrierter Wohnraumlüftung und Wärmerückgewinnung, garantieren einen geringen Energieverbrauch und ein fantastisches Raumklima, das insbesondere Allergiker aufatmen lässt.
In unserer Premium-Linie sind folgende STREIF-Leistungen im Aktionspreis enthalten - bei der Ausbaustufe fast fertig plus.
- 16-monatige Festpreisgarantie
- Inklusive gedämmter Fundamentplatte
- Inkl. STREIF-Luft-Luft-Wärmepumpen-Technologie mit integrierter Lüftungsanlage mit Wärmerückgewinnung
- Inkl. Haustür von KERA und Fenster von Porta/Kömmerling. Fenster farbig, zum Beispiel innen in Weiß und
außen in Anthrazit, mit elektrischen IO-Funkrollläden
- Inkl. Massivholz-Geschosstreppe aus eigener Produktion
- Inkl. Sanitärobjekte von Markenherstellern
- Inkl. Elektroinstallation
- Inkl. individuelle Grundrissgestaltung und Raumaufteilung (Die Lage der Treppe und des Haustechnikraumes sind beim Frühlingszauberangebot nicht veränderbar.)
-Inkl. Vorbereitung zur Installation einer Photovoltaik-Anlage
Die hohe Wertigkeit und Langlebigkeit eines STREIF-Energiespar-Hauses werden durch zahlreiche Auszeichnungen, Qualitäts- und Gütesiegel unabhängiger Institute und Verbände dokumentiert.
Der Angebotspreis ist inklusive Grundstück und bezieht sich auf die Standard-Ausbaustufe Fast-Fertig-Plus. Ihre Eigenleistungen: Spachtel-, Tapezier- und Malerarbeiten, Bodenbeläge, Innentüren. Baunebenkosten fallen zuzüglich an.
Der Verkauf des Grundstücks erfolgt über einen unserer Netzwerkpartner.
Bilder können evtl. Anbauteile, Carports, Balkone, Gauben usw. zeigen, die nicht im Angebotspreis enthalten sind.
Änderungen und Irrtümer vorbehalten.
Kontakt
| Telefon | +49 6101 580020 |
| Mobil | +49 176 80499210 |
| Website | www.streif.de |
