Machen Sie Ihren Traum mit Streif wahr - Sie haben es sich verdient!
464.492 €
Kaufpreis
93 m²
Wohnfläche
97 m²
Nutzfläche
5
Zimmer
immobilien.de Nr.: 8450940
Objektnummer: BVNK63004
Preise & Kosten
| Kaufpreis | 464.492 € |
| Nebenkosten | keine Angabe |
Größe & Zustand
| Wohnfläche | 93 m² |
| Nutzfläche | 97 m² |
| Grundstücksfläche | 1.339 m² |
| Zimmer | 5 |
| Verfügbar ab | 2024 |
Objektbeschreibung
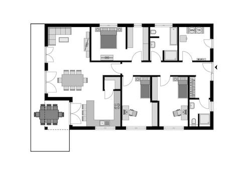
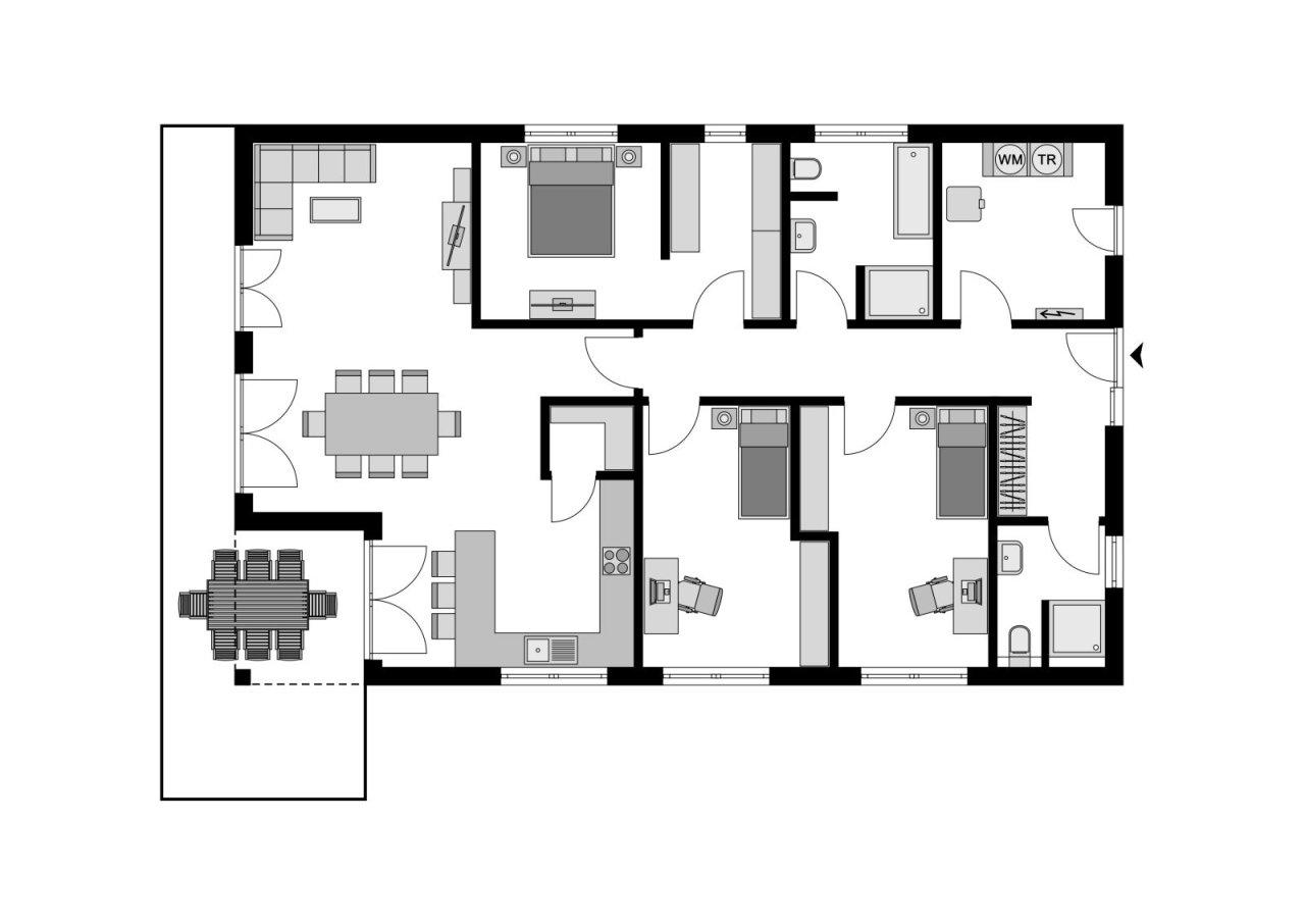
STREIF-Winkelbungalow Gestaltungsidee 01
Der elegante Hausentwurf des Winkelbungalows mit Walmdach, überdachter Terrasse und Garage hat einiges zu bieten. Der offen angelegte Wohn-/Ess- und Kochbereich bietet viel Platz und ist mit einer Panorama-Hebeschiebetür, drei Terrassentüren und einem Fenster von Tageslicht durchflutet.
Der Schlafbereich ist ebenfalls großzügig angelegt und grenzt direkt ans Bad, das mit einer modernen Trennwandlösung sowie Badewanne und Dusche ausgestattet ist. Ein Multifunktionszimmer, das als zweites Schlafzimmer, Home-Office oder Hobby-/Gästezimmer genutzt werden kann, bietet viel Flexibilität in der Raumnutzung. Die eingeschossige Ausführung bietet einen großen Wohnkomfort und stellt ein zukunftsfähiges Wohnkonzept dar. Sehr praktisch ist der Nebeneingang, der vom Hauswirtschafts-/Haustechnikraum direkt in die Garage führt. Ein Gäste-WC komplettiert das Raumangebot. Der überdachte Terrassenbereich stellt einen behaglichen Rückzugsort dar.
Objektart: STREIF-Winkelbungalow, eingeschossig
Dachform: Walmdach
Entwurf: B G1
Außenmaße inkl. Anbauteile: 11,83 m x 11,83 m
Raumgrundfläche: 114,82 m²
Der elegante Hausentwurf des Winkelbungalows mit Walmdach, überdachter Terrasse und Garage hat einiges zu bieten. Der offen angelegte Wohn-/Ess- und Kochbereich bietet viel Platz und ist mit einer Panorama-Hebeschiebetür, drei Terrassentüren und einem Fenster von Tageslicht durchflutet.
Der Schlafbereich ist ebenfalls großzügig angelegt und grenzt direkt ans Bad, das mit einer modernen Trennwandlösung sowie Badewanne und Dusche ausgestattet ist. Ein Multifunktionszimmer, das als zweites Schlafzimmer, Home-Office oder Hobby-/Gästezimmer genutzt werden kann, bietet viel Flexibilität in der Raumnutzung. Die eingeschossige Ausführung bietet einen großen Wohnkomfort und stellt ein zukunftsfähiges Wohnkonzept dar. Sehr praktisch ist der Nebeneingang, der vom Hauswirtschafts-/Haustechnikraum direkt in die Garage führt. Ein Gäste-WC komplettiert das Raumangebot. Der überdachte Terrassenbereich stellt einen behaglichen Rückzugsort dar.
Objektart: STREIF-Winkelbungalow, eingeschossig
Dachform: Walmdach
Entwurf: B G1
Außenmaße inkl. Anbauteile: 11,83 m x 11,83 m
Raumgrundfläche: 114,82 m²
Ausstattung
| Anzahl der Etagen im Haus | 1 |
| Küche | Offene Küche |
| Bad | 1 |
| Bad | Dusche, Wanne |
STREIF-Häuser sind Energiesparhäuser. Die Außenwände im Passiv-Haus-Standard und eine sparsame Heiztechnik mit integrierter Wohnraumlüftung und Wärmerückgewinnung, garantieren einen geringen Energieverbrauch und ein fantastisches Raumklima, das insbesondere Allergiker aufatmen lässt.
STREIF Leistungen sind MEHR WERT - schon im Grundpreis enthalten!
- 16-monatige Festpreisgarantie
- Energieeffizienzhaus KfW 40 EE im Standard
- Inkl. individuelle Grundrissgestaltung und Raumaufteilung
- Inkl. Fundamentplatte
- Inkl. STREIF-Luft-Luft-Wärmepumpe mit integrierter
Lüftungsanlage mit Wärmerückgewinnung
- Inkl. Haustür von KERA und Fenster von Porta/Kömmerling
- Inkl. Massivholz-Geschosstreppe aus eigener Produktion
- Inkl. Elektroinstallation
- Inkl. Baubetreuung u.v.m.
Die hohe Wertigkeit und Langlebigkeit eines STREIF-Energiespar-Hauses wird durch zahlreiche Auszeichnungen, Qualität- und Gütesiegel unabhängiger Institute und Verbände dokumentiert.
Der Angebotspreis ist inklusive Grundstück und bezieht sich auf die Standard-Ausbaustufe Fast-Fertig. Spachtel-, Tapezier- und Malerarbeiten, Bodenbeläge, Innentüren und Badausstattung sind in diesem Falle nicht enthalten, können auf Wunsch von Streif ausgeführt werden oder sind Eigenleistung.
Baunebenkosten fallen zuzüglich an.
Der Verkauf des Grundstücks erfolgt über einen unserer Netzwerkpartner.
Bilder können evtl. Anbauteile, Carports, Balkone, Gauben usw. zeigen, die nicht im Angebotspreis enthalten sind. Änderungen und Irrtümer vorbehalten.
STREIF Leistungen sind MEHR WERT - schon im Grundpreis enthalten!
- 16-monatige Festpreisgarantie
- Energieeffizienzhaus KfW 40 EE im Standard
- Inkl. individuelle Grundrissgestaltung und Raumaufteilung
- Inkl. Fundamentplatte
- Inkl. STREIF-Luft-Luft-Wärmepumpe mit integrierter
Lüftungsanlage mit Wärmerückgewinnung
- Inkl. Haustür von KERA und Fenster von Porta/Kömmerling
- Inkl. Massivholz-Geschosstreppe aus eigener Produktion
- Inkl. Elektroinstallation
- Inkl. Baubetreuung u.v.m.
Die hohe Wertigkeit und Langlebigkeit eines STREIF-Energiespar-Hauses wird durch zahlreiche Auszeichnungen, Qualität- und Gütesiegel unabhängiger Institute und Verbände dokumentiert.
Der Angebotspreis ist inklusive Grundstück und bezieht sich auf die Standard-Ausbaustufe Fast-Fertig. Spachtel-, Tapezier- und Malerarbeiten, Bodenbeläge, Innentüren und Badausstattung sind in diesem Falle nicht enthalten, können auf Wunsch von Streif ausgeführt werden oder sind Eigenleistung.
Baunebenkosten fallen zuzüglich an.
Der Verkauf des Grundstücks erfolgt über einen unserer Netzwerkpartner.
Bilder können evtl. Anbauteile, Carports, Balkone, Gauben usw. zeigen, die nicht im Angebotspreis enthalten sind. Änderungen und Irrtümer vorbehalten.
Lage des Objektes
Zentral gelegen, mitten im Vogelsberg. Ideal für Naturliebhaber, die nicht auf Infrastruktur und Anbindungen verzichten möchten.
Auch Sie haben die Möglichkeit ihr passendes Grundstück zu bekommen - bitte nehmen Sie Kontakt mit mir auf. Ich habe reichlich erfolgreiche Referenzen in meiner Region, dem Vogelsberg.
Auch Sie haben die Möglichkeit ihr passendes Grundstück zu bekommen - bitte nehmen Sie Kontakt mit mir auf. Ich habe reichlich erfolgreiche Referenzen in meiner Region, dem Vogelsberg.
Anbieter kontaktieren
Kontakt
| Telefon | +49 6101 580020 |
| Mobil | +49 176 80499210 |
| Website | www.streif.de |
