Öko Siegel + Individuell + Streif eben..
445.674 €
Kaufpreis
132 m²
Wohnfläche
100 m²
Nutzfläche
4
Zimmer
immobilien.de Nr.: 8450939
Objektnummer: BVNK63003
Kaufpreis
| Kaufpreis | 445.674 € |
Wohnfläche, Grundstück & Bausubstanz
| Wohnfläche | 132 m² |
| Nutzfläche | 100 m² |
| Grundstücksfläche | 864 m² |
| Zimmer | 4 |
| Verfügbar ab | 2024 |
Energie
| Energietyp | KfW-40 |
| Heizungsart | Etagenheizung |
| Energieträger/Befeuerung | Luft-Wärme-Pumpe |
Beschreibung der Immobilie
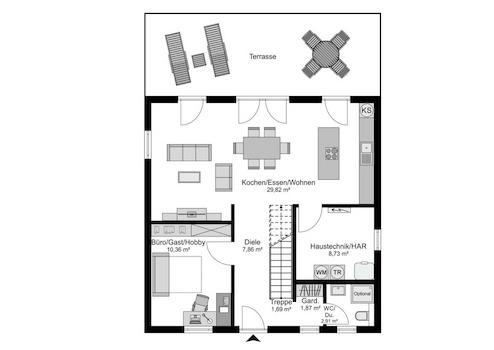
Die moderne Gebäudearchitektur des Energiespar-Hauses von STREIF überzeugt durch vielfältige Details und lässt kaum einen Wunsch offen. An Vorder- und Rückseite ist jeweils ein 3. Giebel mit Flachdach ausgeführt. Die Hausfront ist geprägt durch eine Überdachung, die sich bis zur Garage an der Gebäudeseite erstreckt. Die Garage ist mit einem herrlichen Balkon überdacht. Auch ein Teil der Terrasse ist im Bereich hinter der Garage überdacht und bietet so Schutz vor Sonne und Wind. Der Grundriss ist gut durchdacht und bietet einen großen Wohn-/Essbereich mit offener Küche. Große Terrassentüren, die übereck angeordnet sind und eine große Hebe-/Schiebetür öffnen das Haus zum Garten hin und lassen viel Licht in den Raum. Das Erdgeschoss wird komplettiert durch einen Haustechnikraum, ein Duschbad und ein Büro/Gästezimmer. In der Diele ist ein separater kleiner Raum für die Garderobe untergebracht. Das Obergeschoss bietet Platz für ein großes Elternschlafzimmer mit separatem Ankleidezimmer und Zugang zum großen Balkon. Weiterhin sind zwei Kinderzimmer, ein großes Familienbad mit Badewanne und Dusche, sowie ein Hauswirtschaftsraum auf der Etage untergebracht. Durch entsprechende Fenster und Terrassentüren ist die gesamte Etage hell und lichtdurchflutet. Durch den erhöhten Kniestock mit 200 cm bieten auch die Räume im Dachgeschoss viel Stellfläche. Die gezeigten Fotos und Grundrisse sind Hausbeispiele. Jedes STREIF-Haus wird individuell nach Kundenwusch geplant und gebaut.
Objektart: Einfamilienhaus, 1 1/2-geschossig, Kniestock 200 cm, 3. Giebel an Vorder- und Rückseite mit Flachdach, Garage mit aufgesetztem Balkon, Hauseingang fließend bis zur Garage überdacht, überdachte Terrasse
Objektart: Einfamilienhaus, 1 1/2-geschossig, Kniestock 200 cm, 3. Giebel an Vorder- und Rückseite mit Flachdach, Garage mit aufgesetztem Balkon, Hauseingang fließend bis zur Garage überdacht, überdachte Terrasse
Ausstattungsmerkmale
| Anzahl der Etagen im Haus | 2 |
| Küche | Offene Küche |
| Bad | 1 |
| Bad | Dusche, Wanne, Fenster |
STREIF-Häuser sind Energiesparhäuser. Die Außenwände im Passiv-Haus-Standard und eine sparsame Heiztechnik mit integrierter Wohnraumlüftung und Wärmerückgewinnung, garantieren einen geringen Energieverbrauch und ein fantastisches Raumklima, das insbesondere Allergiker aufatmen lässt.
STREIF Leistungen sind MEHR WERT - schon im Grundpreis enthalten!
- 16-monatige Festpreisgarantie
- Energieeffizienzhaus KfW 40 EE im Standard
- Inkl. individuelle Grundrissgestaltung und Raumaufteilung
- Inkl. Fundamentplatte
- Inkl. STREIF-Luft-Luft-Wärmepumpe mit integrierter
Lüftungsanlage mit Wärmerückgewinnung
- Inkl. Haustür von KERA und Fenster von Porta/Kömmerling
- Inkl. Massivholz-Geschosstreppe aus eigener Produktion
- Inkl. Elektroinstallation
- Inkl. Baubetreuung u.v.m.
Die hohe Wertigkeit und Langlebigkeit eines STREIF-Energiespar-Hauses wird durch zahlreiche Auszeichnungen, Qualität- und Gütesiegel unabhängiger Institute und Verbände dokumentiert.
Der Angebotspreis ist inklusive Grundstück und bezieht sich auf die Standard-Ausbaustufe Fast-Fertig. Spachtel-, Tapezier- und Malerarbeiten, Bodenbeläge, Innentüren und Badausstattung sind in diesem Falle nicht enthalten, können auf Wunsch von Streif ausgeführt werden oder sind Eigenleistung.
Baunebenkosten fallen zuzüglich an.
Der Verkauf des Grundstücks erfolgt über einen unserer Netzwerkpartner.
Bilder können evtl. Anbauteile, Carports, Balkone, Gauben usw. zeigen, die nicht im Angebotspreis enthalten sind. Änderungen und Irrtümer vorbehalten.
STREIF Leistungen sind MEHR WERT - schon im Grundpreis enthalten!
- 16-monatige Festpreisgarantie
- Energieeffizienzhaus KfW 40 EE im Standard
- Inkl. individuelle Grundrissgestaltung und Raumaufteilung
- Inkl. Fundamentplatte
- Inkl. STREIF-Luft-Luft-Wärmepumpe mit integrierter
Lüftungsanlage mit Wärmerückgewinnung
- Inkl. Haustür von KERA und Fenster von Porta/Kömmerling
- Inkl. Massivholz-Geschosstreppe aus eigener Produktion
- Inkl. Elektroinstallation
- Inkl. Baubetreuung u.v.m.
Die hohe Wertigkeit und Langlebigkeit eines STREIF-Energiespar-Hauses wird durch zahlreiche Auszeichnungen, Qualität- und Gütesiegel unabhängiger Institute und Verbände dokumentiert.
Der Angebotspreis ist inklusive Grundstück und bezieht sich auf die Standard-Ausbaustufe Fast-Fertig. Spachtel-, Tapezier- und Malerarbeiten, Bodenbeläge, Innentüren und Badausstattung sind in diesem Falle nicht enthalten, können auf Wunsch von Streif ausgeführt werden oder sind Eigenleistung.
Baunebenkosten fallen zuzüglich an.
Der Verkauf des Grundstücks erfolgt über einen unserer Netzwerkpartner.
Bilder können evtl. Anbauteile, Carports, Balkone, Gauben usw. zeigen, die nicht im Angebotspreis enthalten sind. Änderungen und Irrtümer vorbehalten.
Karte wird geladen...
Objektstandort
36528 Herbstein-Rixfeld
Lage & Infrastruktur
Objektstandort
36528 Herbstein-Rixfeld
Letzter freier Bauplatz voll erschlossen in ruhiger Wohnlage, es darf sofort begonnen werden zu bauen, in direkter Umgebung alle wichtigen Einkaufsmöglichkeiten, Infrastruktur top, sehr gute Anbindung an Gießen und die A45
Kontaktanfrage senden
Über den Anbieter
STREIF Haus GmbH
Josef-Streif-Straße 1
54595 Weinsheim
Kontakt
| Telefon | +49 6101 580020 |
| Mobil | +49 176 80499210 |
| Website | www.streif.de |
Ansprechpartner/in
Herr Norbert Kaiser - STREIF Handelsvertreter
Weitere Angebote des Anbieters
31
**Luxuriöses Wohnen: Entdecken Sie die Stadtvilla ...
Haus
38176 Wendeburg
Willkommen in Ihrer zukünftigen Traumstadtvilla in Wendeburg/ Neubrück, die mit STREIF nach Ihren individuellen Wünschen projektiert wird. Diese exklusive Residenz bietet Ihnen auf 190,29 m² Wohnfläche ein geräumiges ...
713.782,2 €
Kaufpreis
190,29 m²
Wohnfläche
6
Zimmer
35
**Endlich raus aus der Miete - jetzt starten mit ...
Haus
31688 Nienstädt
Willkommen in Ihrem Traumhaus! Dieses Einfamilienhaus, projektiert nach Ihren individuellen Wünschen, bietet Ihnen die perfekte Kombination aus modernem Design und höchstem Wohnkomfort. Mit einer großzügigen Wohnfläche ...
481.229 €
Kaufpreis
143,84 m²
Wohnfläche
4
Zimmer
32
**Familienfreundlicher Bungalow mit perfekter ...
Haus
31226 Peine
Tauchen Sie ein in die Welt des modernen Wohnens mit unserem projektierten Bungalow, der individuell nach Ihren Wünschen gestaltet wird. Auf einer großzügigen Wohnfläche von 93,51 m² verteilen sich geschmackvoll 3,0 ...
495.050 €
Kaufpreis
93,51 m²
Wohnfläche
3
Zimmer
9
Vorankündigung - Wohnen next Level by STREIF DHH
Haus
53844 Troisdorf
Hochwertiges Effizienzhaus-40-PLUS >> Planung nach modernsten Wohnkriterien.
649.800 €
Kaufpreis
149 m²
Wohnfläche
6
Zimmer
8
-inkl. Grundstück-Ihre neue STREIF Doppelhaushälfte in ...
Haus
38108 Braunschweig
Der Preis bezieht sich auf das Haus inkl. Baunebenkosten und einschließlich Grundstück. Die Grunderwerbsteuer fällt nur auf die Grundstückskosten an. Herzlich willkommen bei STREIF, Ihrem zuverlässigen Partner für den ...
620.000 €
Kaufpreis
140 m²
Wohnfläche
4
Zimmer