Streif Effizienzhaus in bester Lage
570.000 €
Kaufpreis
156 m²
Wohnfläche
156 m²
Nutzfläche
4
Zimmer
immobilien.de Nr.: 8450885
Objektnummer: BV0611211
Preise & Kosten
| Kaufpreis | 570.000 € |
| Nebenkosten | keine Angabe |
Größe & Zustand
| Wohnfläche | 156 m² |
| Nutzfläche | 156 m² |
| Grundstücksfläche | 460 m² |
| Zimmer | 4 |
| Baujahr | 2025 |
| Verfügbar ab | keine Angabe |
Energie
| Energietyp | KfW-40 |
| Heizungsart | Zentralheizung |
| Energieträger/Befeuerung | Luft-Wärme-Pumpe |
Objektbeschreibung
Objektbeschreibung
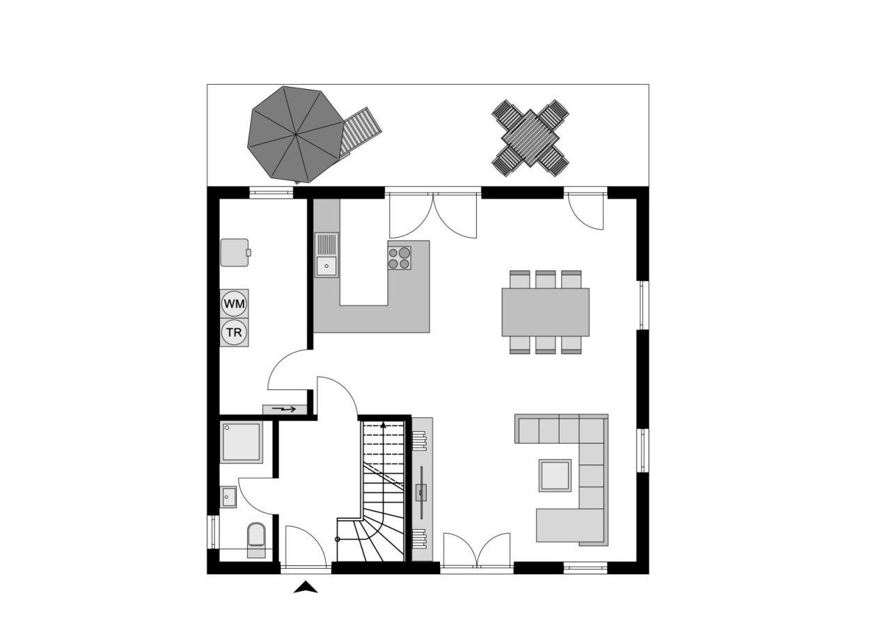
Das FAMILY in der bietet eine clevere Grundrissgestaltung. Ein fast 40 m² großer, offen gestalteter Wohn-/Ess- und Kochbereich bildet den Mittelpunkt des Familienlebens. Ein Zusatzraum, der als Hobby-, Gäste- oder Schlafzimmer genutzt werden kann bietet zusätzlichen Komfort. Eine Diele, ein Gäste-WC mit optionaler Dusche und der Haustechnik-/Hauswirtschaftsraum komplettieren das Erdgeschoss.
Im Dachgeschoss befinden sich zwei große Kinderzimmer (je 15 m²) und der Elternbereich mit Ankleide. Ein großes Familienbad rundet das Raumangebot ab. Insgesamt bietet der Grundriss eine Netto-Raumfläche von 156.
Objektart: Einfamilienhaus, 1,5-geschossig
Dachform: Satteldach
Das FAMILY in der bietet eine clevere Grundrissgestaltung. Ein fast 40 m² großer, offen gestalteter Wohn-/Ess- und Kochbereich bildet den Mittelpunkt des Familienlebens. Ein Zusatzraum, der als Hobby-, Gäste- oder Schlafzimmer genutzt werden kann bietet zusätzlichen Komfort. Eine Diele, ein Gäste-WC mit optionaler Dusche und der Haustechnik-/Hauswirtschaftsraum komplettieren das Erdgeschoss.
Im Dachgeschoss befinden sich zwei große Kinderzimmer (je 15 m²) und der Elternbereich mit Ankleide. Ein großes Familienbad rundet das Raumangebot ab. Insgesamt bietet der Grundriss eine Netto-Raumfläche von 156.
Objektart: Einfamilienhaus, 1,5-geschossig
Dachform: Satteldach
Ausstattung
| Anzahl der Etagen im Haus | 2 |
| Bad | 1 |
Ausstattung
STREIF-Häuser sind Energiesparhäuser. Die STREIF-Passiv-Außenwände und eine sparsame Heiztechnik mit integrierter Wohnraumlüftung und Wärmerückgewinnung, garantieren einen geringen Energieverbrauch und ein fantastisches Raumklima, das insbesondere Allergiker aufatmen lässt.
In unserer Premium-Linie sind folgende STREIF-Leistungen im Aktionspreis enthalten - bei der Ausbaustufe fast fertig plus.
- 16-monatige Festpreisgarantie
- Inklusive gedämmter Fundamentplatte
- Inkl. STREIF-Luft-Luft-Wärmepumpen-Technologie mit integrierter Lüftungsanlage mit Wärmerückgewinnung
- Inkl. Haustür von KERA und Fenster von Porta/Kömmerling. Fenster farbig, zum Beispiel innen in Weiß und
außen in Anthrazit, mit elektrischen IO-Funkrollläden
- Inkl. Massivholz-Geschosstreppe aus eigener Produktion
- Inkl. Sanitärobjekte von Markenherstellern
- Inkl. Elektroinstallation
- Inkl. individuelle Grundrissgestaltung und Raumaufteilung (Die Lage der Treppe und des Haustechnikraumes sind beim Frühlingszauberangebot nicht veränderbar.)
-Inkl. Vorbereitung zur Installation einer Photovoltaik-Anlage
Die hohe Wertigkeit und Langlebigkeit eines STREIF-Energiespar-Hauses werden durch zahlreiche Auszeichnungen, Qualitäts- und Gütesiegel unabhängiger Institute und Verbände dokumentiert.
Der Angebotspreis ist inklusive Grundstück und bezieht sich auf die Standard-Ausbaustufe Fast-Fertig-Plus. Ihre Eigenleistungen: Malerarbeiten, Bodenbeläge.
Der Verkauf des Grundstücks erfolgt über einen unserer Netzwerkpartner.
Bilder können evtl. Anbauteile, Carports, Balkone, Gauben usw. zeigen, die nicht im Angebotspreis enthalten sind.
STREIF-Häuser sind Energiesparhäuser. Die STREIF-Passiv-Außenwände und eine sparsame Heiztechnik mit integrierter Wohnraumlüftung und Wärmerückgewinnung, garantieren einen geringen Energieverbrauch und ein fantastisches Raumklima, das insbesondere Allergiker aufatmen lässt.
In unserer Premium-Linie sind folgende STREIF-Leistungen im Aktionspreis enthalten - bei der Ausbaustufe fast fertig plus.
- 16-monatige Festpreisgarantie
- Inklusive gedämmter Fundamentplatte
- Inkl. STREIF-Luft-Luft-Wärmepumpen-Technologie mit integrierter Lüftungsanlage mit Wärmerückgewinnung
- Inkl. Haustür von KERA und Fenster von Porta/Kömmerling. Fenster farbig, zum Beispiel innen in Weiß und
außen in Anthrazit, mit elektrischen IO-Funkrollläden
- Inkl. Massivholz-Geschosstreppe aus eigener Produktion
- Inkl. Sanitärobjekte von Markenherstellern
- Inkl. Elektroinstallation
- Inkl. individuelle Grundrissgestaltung und Raumaufteilung (Die Lage der Treppe und des Haustechnikraumes sind beim Frühlingszauberangebot nicht veränderbar.)
-Inkl. Vorbereitung zur Installation einer Photovoltaik-Anlage
Die hohe Wertigkeit und Langlebigkeit eines STREIF-Energiespar-Hauses werden durch zahlreiche Auszeichnungen, Qualitäts- und Gütesiegel unabhängiger Institute und Verbände dokumentiert.
Der Angebotspreis ist inklusive Grundstück und bezieht sich auf die Standard-Ausbaustufe Fast-Fertig-Plus. Ihre Eigenleistungen: Malerarbeiten, Bodenbeläge.
Der Verkauf des Grundstücks erfolgt über einen unserer Netzwerkpartner.
Bilder können evtl. Anbauteile, Carports, Balkone, Gauben usw. zeigen, die nicht im Angebotspreis enthalten sind.
Kontakt
| Mobil | +49 176 61370032 |
| Website | www.streif.de |
