VERKAUFT!!! ACHTUNG PREISSENKUNG! Doppelhaushälfte mit Garage.....
279.000 €
Kaufpreis
117 m²
Wohnfläche
4
Zimmer
immobilien.de Nr.: 8254338
Preise & Kosten
| Kaufpreis | 279.000 € |
| Nebenkosten | keine Angabe |
Größe & Zustand
| Wohnfläche | 117 m² |
| Grundstücksfläche | 243 m² |
| Zimmer | 4 |
| Baujahr | 2003 |
| Verfügbar ab | sofort |
Energie
| Energieausweistyp | Verbrauch |
| Ausstellungsdatum | 13. 06. 2023 |
| Gültig bis | 13-06-2033 |
| Baujahr (laut Energieausweis) | 2003 |
| Energieeffizienzklasse | C |
| Energieverbrauchkennwert | 78,8 kWh/(m²*a) |
| Heizungsart | Zentralheizung |
| Wesentlicher Energieträger | Gas |
| Energieträger/Befeuerung | Gas |
Objektbeschreibung
Geräumige Doppelhaushälfte in einem gemütlichen, kleinen Dorf etwa 12 km von der niederländisch-deutschen Grenze entfernt.
Das Haus verfügt über 3 Schlafzimmer, ein geräumiges Wohnzimmer, eine Garage und einen kleinen, vollständig umzäunten Garten.
Die Wohnfläche beträgt 117 m2 mit einem umbauten Raum von 526 m3. Das Grundstück ist 243 m2 groß.
Das Haus verfügt über 3 Schlafzimmer, ein geräumiges Wohnzimmer, eine Garage und einen kleinen, vollständig umzäunten Garten.
Die Wohnfläche beträgt 117 m2 mit einem umbauten Raum von 526 m3. Das Grundstück ist 243 m2 groß.
Ausstattung
| Bad | 1 |
| Bad | Dusche, Fenster, Wanne |
| Boden | Fliesen, Laminat |
| Terrassen | 1 |
| Garage/Stellplätze | 1 |
| Dachboden |
Erdgeschoss:
Wohnzimmer (7,53 x 5,41/5,06 m) mit Fliesenboden und 2 Doppelgartentüren.
Geschlossene Küche (3,56 x 2,90 m) mit Fliesenboden ohne Anbauanordnung.
Flur mit Toilette und Vorratsschrank.
Garage (5,98 x 3,04 m) mit Schwingtor.
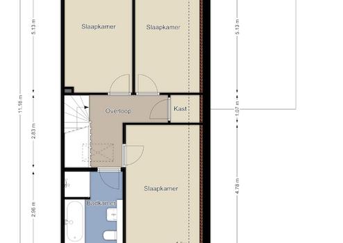
1. Obergeschoss:
Hauptschlafzimmer (4,78 x 3,00 m) mit Laminatboden.
2. Schlafzimmer (5,13 x 2,64 m) mit Laminatboden.
3. Schlafzimmer (5,13 x 2,64 m) mit Laminatboden.
Badezimmer (2,96 x 2,27 m) mit Badewanne, Dusche, Toilette und Waschtisch.
Diele.
Vorratsschrank.
2. Obergeschoss:
Dachboden über Dachbodentreppe zugänglich, Aufstellung Gastherme.
Außenbereich:
Umzäunter Hintergarten mit Terrasse und Rasenfläche.
Vorgarten mit Garagenauffahrt.
GUT ZU WISSEN
• Wohnfläche 117 m².
• Sonstiger Nutzfläche (Dachboden/Garage) 27 m².
• Grundstück 243 m².
• Umbauter Raum 526 m³.
• Baujahr 2003.
• Energieklasse C.
• Liegt etwa 12 km von der niederländisch-deutschen Grenze entfernt.
• Ruhig gelegen in einem kleinen Dorf in der Nähe von Baesweiler, Geilenkirchen und Setterich.
• Ordentlich gepflegt.
• Kunststofffenster mit Doppelverglasung | Rollläden.
• Guter Tageslichteinfall dank der vielen Fenster.
• Angebotspreis 299.000 €.
• Käuferprovision 2,38 % inkl. MwSt.
Wohnzimmer (7,53 x 5,41/5,06 m) mit Fliesenboden und 2 Doppelgartentüren.
Geschlossene Küche (3,56 x 2,90 m) mit Fliesenboden ohne Anbauanordnung.
Flur mit Toilette und Vorratsschrank.
Garage (5,98 x 3,04 m) mit Schwingtor.
1. Obergeschoss:
Hauptschlafzimmer (4,78 x 3,00 m) mit Laminatboden.
2. Schlafzimmer (5,13 x 2,64 m) mit Laminatboden.
3. Schlafzimmer (5,13 x 2,64 m) mit Laminatboden.
Badezimmer (2,96 x 2,27 m) mit Badewanne, Dusche, Toilette und Waschtisch.
Diele.
Vorratsschrank.
2. Obergeschoss:
Dachboden über Dachbodentreppe zugänglich, Aufstellung Gastherme.
Außenbereich:
Umzäunter Hintergarten mit Terrasse und Rasenfläche.
Vorgarten mit Garagenauffahrt.
GUT ZU WISSEN
• Wohnfläche 117 m².
• Sonstiger Nutzfläche (Dachboden/Garage) 27 m².
• Grundstück 243 m².
• Umbauter Raum 526 m³.
• Baujahr 2003.
• Energieklasse C.
• Liegt etwa 12 km von der niederländisch-deutschen Grenze entfernt.
• Ruhig gelegen in einem kleinen Dorf in der Nähe von Baesweiler, Geilenkirchen und Setterich.
• Ordentlich gepflegt.
• Kunststofffenster mit Doppelverglasung | Rollläden.
• Guter Tageslichteinfall dank der vielen Fenster.
• Angebotspreis 299.000 €.
• Käuferprovision 2,38 % inkl. MwSt.
