VERKAUFT!!
298.000 €
Kaufpreis
174 m²
Wohnfläche
6
Zimmer
immobilien.de Nr.: 8180360
Preise & Kosten
| Kaufpreis | 298.000 € |
| Nebenkosten | keine Angabe |
Größe & Zustand
| Wohnfläche | 174 m² |
| Grundstücksfläche | 720 m² |
| Zimmer | 6 |
| Baujahr | 1964 |
| Letzte Modernisierung | . |
| Verfügbar ab | Nach Vereinbarung |
Energie
| Energieausweistyp | Bedarfsausweis |
| Ausstellungsdatum | 27. 03. 2023 |
| Gültig bis | 26-03-2033 |
| Baujahr (laut Energieausweis) | 1982 |
| Energieeffizienzklasse | H |
| Endenergiebedarf | 312,4 |
| Heizungsart | Ofen, Zentralheizung |
| Wesentlicher Energieträger | Öl |
| Energieträger/Befeuerung | Öl |
Objektbeschreibung
Dieses großzügige Einfamilienhaus mit einer Wohnfläche von ca. 174 m² auf einem Grundstück von ca. 720 m².
Das Objekt verfügt über 7 Zimmer - davon 4 Schlafzimmer -, ein modernisiertes Badezimmer, eine geschlossene Küche, Wohnzimmer, Esszimmer im Anbau und vor allem viel Stauraum.
Von der überdachten Terrasse genießen Sie den freien Blick auf die dahinter liegende Ländereien.
Direkt neben dem Haus befindet sich ein Carport für 2 Autos.
Das Objekt verfügt über 7 Zimmer - davon 4 Schlafzimmer -, ein modernisiertes Badezimmer, eine geschlossene Küche, Wohnzimmer, Esszimmer im Anbau und vor allem viel Stauraum.
Von der überdachten Terrasse genießen Sie den freien Blick auf die dahinter liegende Ländereien.
Direkt neben dem Haus befindet sich ein Carport für 2 Autos.
Ausstattung
| Küche | Einbauküche |
| Bad | 1 |
| Bad | Dusche |
| Boden | Fliesen, Laminat, Parkett |
| Terrassen | 2 |
| Dachboden | |
| Keller |
Untergeschoss:
Keller l: (3,33 x 2,97/2,58 m).
Keller II: (4,23 x 3,50/2,94 m) mit Heizkessel.
Erdgeschoss:
Wohnzimmer (6,93 x 3,83 m) mit Parkettboden und Kamin.
Geschlossene Küche (4,37 x 2,98/3,42 m) mit Einbauaufstellung, Elektroherd, Geschirrspüler, Backofen, Kühlschrank und Dunstabzugshaube.
Eingangsbereich mit Solnhofener Bodenfliesen.
Anbau
Geräumiges Esszimmer (4,90 x 4,47 m) mit großen Glasfenstern, Gartentür zur Terrasse, Parkettboden und Holzofen.
Hauswirtschaftsraum (3,93 x 2,28 m) mit Anschlüsse für Waschmaschine und Trockner, Waschtisch und Abstellschrank.
Komplett gefliestes, modernisiertes Badezimmer mit ebenerdiger Dusche und Waschtisch.
Arbeitsraum (2,73 x 2,54 m) mit doppeltem Eingangstor aus Holz.
Abstellraum (2,89 x 2,57 m).
Toilette.
Lagerraum (5,52 x 4,01 m) mit Öltanks.
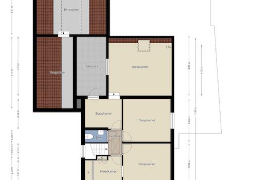
1. Obergeschoss:
Hauptschlafzimmer (3,85 x 3,46 m).
2. Schlafzimmer (3,85 x 3,33 m).
3. Schlafzimmer (2,99 x 2,42 m) mit Zugang zur Dachterrasse (4,83 x 2,37 m).
4. Schlafzimmer (5,11 x 4,10 m) mit Dachfenster.
Garderobenraum (2,99 x 2,30 m) mit festem Schrank.
2. Toilette.
2. Obergeschoss:
Sehr geräumiges Dachgeschoss (9,93 x 6,93 m) Bodenfläche. Erreichbar über Dachbodenleiter.
Dachboden Anbau l (5,77 x 2,95 m) Bodenfläche.
Dachboden Anbau ll (5,62 x 4,01 m) Bodenfläche.
Dachböden l und ll sind über eine Außenluke zugänglich.
Außenbereich:
Überdachte Terrasse in Holzbauweise (8,05 x 3,55 m).
Carport mit Eisentor.
Hinterer Garten mit Beeten, Bäumen, Rasen und Gartenhaus.
Backsteinmauer mit Tor zur Begrenzung.
Vorgarten mit Kiesbeet, Bäumen und Einfahrt für 4 Autos.
GUT ZU WISSEN
• Wohnfläche ca. 174 m².
• Sonstiger Nutzraum (Keller/Dachböden) ca. 68 m².
• Grundstück ca. 720 m².
• Umbauter Raum ca. 873 m³.
• Baujahr 1964
• Energieklasse H
• Nur 2 km von der holländischen Grenze entfernt.
• Stabil gebaut.
• Großer Anbau.
• Ländlich und ruhig gelegen in der direkter Nähe der Naturschutzgebiete „IJzeren Bos“ und "Hohbruch".
• 4 Schlafzimmer.
• Guter Tageslichteinfall durch viele Fenster.
• Kunststofffenster mit Doppelverglasung und Rollläden.
• Kaufpreis 310.000 €.
• Käuferprovision 2,5 % zzgl. Mehrwertsteuer.
Keller l: (3,33 x 2,97/2,58 m).
Keller II: (4,23 x 3,50/2,94 m) mit Heizkessel.
Erdgeschoss:
Wohnzimmer (6,93 x 3,83 m) mit Parkettboden und Kamin.
Geschlossene Küche (4,37 x 2,98/3,42 m) mit Einbauaufstellung, Elektroherd, Geschirrspüler, Backofen, Kühlschrank und Dunstabzugshaube.
Eingangsbereich mit Solnhofener Bodenfliesen.
Anbau
Geräumiges Esszimmer (4,90 x 4,47 m) mit großen Glasfenstern, Gartentür zur Terrasse, Parkettboden und Holzofen.
Hauswirtschaftsraum (3,93 x 2,28 m) mit Anschlüsse für Waschmaschine und Trockner, Waschtisch und Abstellschrank.
Komplett gefliestes, modernisiertes Badezimmer mit ebenerdiger Dusche und Waschtisch.
Arbeitsraum (2,73 x 2,54 m) mit doppeltem Eingangstor aus Holz.
Abstellraum (2,89 x 2,57 m).
Toilette.
Lagerraum (5,52 x 4,01 m) mit Öltanks.
1. Obergeschoss:
Hauptschlafzimmer (3,85 x 3,46 m).
2. Schlafzimmer (3,85 x 3,33 m).
3. Schlafzimmer (2,99 x 2,42 m) mit Zugang zur Dachterrasse (4,83 x 2,37 m).
4. Schlafzimmer (5,11 x 4,10 m) mit Dachfenster.
Garderobenraum (2,99 x 2,30 m) mit festem Schrank.
2. Toilette.
2. Obergeschoss:
Sehr geräumiges Dachgeschoss (9,93 x 6,93 m) Bodenfläche. Erreichbar über Dachbodenleiter.
Dachboden Anbau l (5,77 x 2,95 m) Bodenfläche.
Dachboden Anbau ll (5,62 x 4,01 m) Bodenfläche.
Dachböden l und ll sind über eine Außenluke zugänglich.
Außenbereich:
Überdachte Terrasse in Holzbauweise (8,05 x 3,55 m).
Carport mit Eisentor.
Hinterer Garten mit Beeten, Bäumen, Rasen und Gartenhaus.
Backsteinmauer mit Tor zur Begrenzung.
Vorgarten mit Kiesbeet, Bäumen und Einfahrt für 4 Autos.
GUT ZU WISSEN
• Wohnfläche ca. 174 m².
• Sonstiger Nutzraum (Keller/Dachböden) ca. 68 m².
• Grundstück ca. 720 m².
• Umbauter Raum ca. 873 m³.
• Baujahr 1964
• Energieklasse H
• Nur 2 km von der holländischen Grenze entfernt.
• Stabil gebaut.
• Großer Anbau.
• Ländlich und ruhig gelegen in der direkter Nähe der Naturschutzgebiete „IJzeren Bos“ und "Hohbruch".
• 4 Schlafzimmer.
• Guter Tageslichteinfall durch viele Fenster.
• Kunststofffenster mit Doppelverglasung und Rollläden.
• Kaufpreis 310.000 €.
• Käuferprovision 2,5 % zzgl. Mehrwertsteuer.
