Alles inklusive & aus EINER HAND .. Haus mit Grundstück, Bodenplatte, Terrasse - KFW 40 in Schmölen
406.045,6 €
Kaufpreis
144 m²
Wohnfläche
143,95 m²
Nutzfläche
4
Zimmer
immobilien.de Nr.: 7501104
Objektnummer: 1383
Dateien
Preise & Kosten
| Kaufpreis | 406.045,6 € |
| Nebenkosten | keine Angabe |
Größe & Zustand
| Wohnfläche | 144 m² |
| Nutzfläche | 143,95 m² |
| Grundstücksfläche | 466 m² |
| Zimmer | 4 |
| Baujahr | 2022 |
| Verfügbar ab | 2021 |
| Zustand | Projektiert |
Energie
| Energieausweistyp | Bedarfsausweis |
| Gültig bis | 2029-04-23 |
| Energieeffizienzklasse | A+ |
| Heizungsart | Fußbodenheizung |
| Wesentlicher Energieträger | Erdwaerme |
| Energieträger/Befeuerung | Erdwärme |
Objektbeschreibung
Wohnen in Bennewitz , OT Schmölen
466 m² - erschlossen - absolute Ruhe
ECKDATEN ....... & Alles Inklusive :-))) & ohne Eigenleistungen.
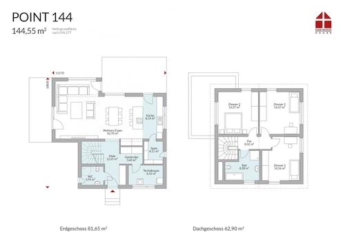
Das Point 144 mit Terrassen - Möglichkeit gehört zu den beliebtesten Häusern unserer Kunden. Es bietet eine perfekte Aufteilung im EG - mit geräumiger Küche, großem Essplatz, gut geschnittenem Wohnzimmer und viel Platz in der Diele. Die Speisekammer ist genauso praktisch wie die Option, im Gäste WC eine Dusche einzubauen. Und ein Gästezimmer ist nie zu verachten. Überraschend viel Platz bieten die Kinderzimmer im OG. Eine interessante Aufteilung der Funktionszonen zeigt das Familienbad.
Der Grundriss ist wie immer nur ein Vorschlag. Diesen planen Sie gemeinsam mit der Familie und wir erwecken diesen für SIE zum Leben.
Ihr neues Eineinhalgeschossiges Energie - Effizienz KFW 40 - Fertigteilhaus von Danwood House : mit 4 Zimmern, Grundrisse sind alle individuell veränderbar, , offener Küche, offener Wohn- Essbereich, Bad mit Wanne und Dusche, Gäste-WC + Dusche möglich, Technikraum und Diele, Satteldach mit 40 c Dachneigung und viel Stauraum im begehbaren Dachboden.
Dieses wunderschöne und großzügige Eineinhalbeschossige Traumhaus von DANWOOD wartet auf ihren Einzug. Der Gesamtpreis für diese Traumimmobilie inklusive einem ruhig gelegenen Grundstück in Bennewitz - Schmölen beträgt 406.045,60 € - inkl. Haus, Bodenplatte,Grundstück & aller Architekturleistungen - sofort Einzugsbereit nach Fertigstellung.
Einziehen - Auspacken - & Ankommen
+ Baunebenkosten bitte nicht vergessen und einplanen - ca. 35.000,00 € !!!!!
Inklusive : Technikpaket 4 A - inklusive Dämmung - KFW 40
Leistungsvariable Sole-Wasser-Wärmepumpe (Erdwärmepumpe) mit integriertem Warmwasserspeicher 180 Liter und Lüftungsanlage mit Wärmerückgewinnung (Zuluft dezentral, Abluft zentral), inkl. 1 - 2 Elektrohandtuchheizkörper.
Inklusive : Tiefenbohrung, Bodenplatte auf Streifenfundament, Fußbodenheizung im gesamten Haus, Malerarbeiten - Feinputz in allen Räumen, individuelle Grundrissgestaltung nach Kundenwunsch, sowie Fenster mit elektrischen Rollläden in 3-fach-Verglasung/6 Kammerprofil & Gäste WC.
466 m² - erschlossen - absolute Ruhe
ECKDATEN ....... & Alles Inklusive :-))) & ohne Eigenleistungen.
Das Point 144 mit Terrassen - Möglichkeit gehört zu den beliebtesten Häusern unserer Kunden. Es bietet eine perfekte Aufteilung im EG - mit geräumiger Küche, großem Essplatz, gut geschnittenem Wohnzimmer und viel Platz in der Diele. Die Speisekammer ist genauso praktisch wie die Option, im Gäste WC eine Dusche einzubauen. Und ein Gästezimmer ist nie zu verachten. Überraschend viel Platz bieten die Kinderzimmer im OG. Eine interessante Aufteilung der Funktionszonen zeigt das Familienbad.
Der Grundriss ist wie immer nur ein Vorschlag. Diesen planen Sie gemeinsam mit der Familie und wir erwecken diesen für SIE zum Leben.
Ihr neues Eineinhalgeschossiges Energie - Effizienz KFW 40 - Fertigteilhaus von Danwood House : mit 4 Zimmern, Grundrisse sind alle individuell veränderbar, , offener Küche, offener Wohn- Essbereich, Bad mit Wanne und Dusche, Gäste-WC + Dusche möglich, Technikraum und Diele, Satteldach mit 40 c Dachneigung und viel Stauraum im begehbaren Dachboden.
Dieses wunderschöne und großzügige Eineinhalbeschossige Traumhaus von DANWOOD wartet auf ihren Einzug. Der Gesamtpreis für diese Traumimmobilie inklusive einem ruhig gelegenen Grundstück in Bennewitz - Schmölen beträgt 406.045,60 € - inkl. Haus, Bodenplatte,Grundstück & aller Architekturleistungen - sofort Einzugsbereit nach Fertigstellung.
Einziehen - Auspacken - & Ankommen
+ Baunebenkosten bitte nicht vergessen und einplanen - ca. 35.000,00 € !!!!!
Inklusive : Technikpaket 4 A - inklusive Dämmung - KFW 40
Leistungsvariable Sole-Wasser-Wärmepumpe (Erdwärmepumpe) mit integriertem Warmwasserspeicher 180 Liter und Lüftungsanlage mit Wärmerückgewinnung (Zuluft dezentral, Abluft zentral), inkl. 1 - 2 Elektrohandtuchheizkörper.
Inklusive : Tiefenbohrung, Bodenplatte auf Streifenfundament, Fußbodenheizung im gesamten Haus, Malerarbeiten - Feinputz in allen Räumen, individuelle Grundrissgestaltung nach Kundenwunsch, sowie Fenster mit elektrischen Rollläden in 3-fach-Verglasung/6 Kammerprofil & Gäste WC.
Ausstattung
| Anzahl der Etagen im Haus | 2 |
| Bad | 1 |
| Bad | Dusche, Wanne, Fenster |
| Boden | Fliesen, Teppich, Laminat |
Komplett Einzugsbereites DANWOOD Fertigteil- Traumhaus
Inklusive: Bodenplatte auf Streifenfundament ,
Preis einschließlich aller Architektenleistungen, Fußbodenheizung, Malerarbeiten, Fliesen & Laminat, Elektro- und Sanitärinstallation sowie anthrazitfarbene Fenster mit elektrischen Rollläden in 3-fach-Verglasung / 6 Kammerprofil - sofort Einzugsbereit nach Fertigstellung.
Einziehen - Auspacken - & Ankommen
InklusiveTechnikpaket 4 A - Leistungsvariable Sole-Wasser-Wärmepumpe (Erdwärmepumpe) mit integriertem Warmwasserspeicher 180 Liter und Lüftungsanlage mit Wärmerückgewinnung (Zuluft dezentral, Abluft zentral), inkl. 1 - 2 Elektrohandtuchheizkörper, inkl. Tiefenbohrung
40 Standard!
Weitere Technikpakete sind individuell umsetzbar damit Sie auch KFW 55 und 40+ Standard erreichen. Über mögliche Fördermöglichkeiten beraten wir Sie gerne!
Die Grundrisse sind variabel und können entsprechend Ihren Wünschen und Vorstellungen angepasst werden.
Hauspreis - inklusive Bodenplatte & Architektenleistung : 266.045,60 €
Grundstück - ohne Provision. : 140.000,00 €
Gesamtpreis : 406.045,60 0 € - komplett Einzugsbereit - inkl. KFW 40 Bezuschussung
Bitte planen Sie Baunebenkosten in Höhe von 35.000,00 € ein.
Grundstück 1 ca. 466 m² = 140.000,00 € - ohne Provision
Das Grundstück ist bereits im Gesamtpreis enthalten und wird kostenlos an den neuen Bauherren vermittelt.
Inklusive: Bodenplatte auf Streifenfundament ,
Preis einschließlich aller Architektenleistungen, Fußbodenheizung, Malerarbeiten, Fliesen & Laminat, Elektro- und Sanitärinstallation sowie anthrazitfarbene Fenster mit elektrischen Rollläden in 3-fach-Verglasung / 6 Kammerprofil - sofort Einzugsbereit nach Fertigstellung.
Einziehen - Auspacken - & Ankommen
InklusiveTechnikpaket 4 A - Leistungsvariable Sole-Wasser-Wärmepumpe (Erdwärmepumpe) mit integriertem Warmwasserspeicher 180 Liter und Lüftungsanlage mit Wärmerückgewinnung (Zuluft dezentral, Abluft zentral), inkl. 1 - 2 Elektrohandtuchheizkörper, inkl. Tiefenbohrung
40 Standard!
Weitere Technikpakete sind individuell umsetzbar damit Sie auch KFW 55 und 40+ Standard erreichen. Über mögliche Fördermöglichkeiten beraten wir Sie gerne!
Die Grundrisse sind variabel und können entsprechend Ihren Wünschen und Vorstellungen angepasst werden.
Hauspreis - inklusive Bodenplatte & Architektenleistung : 266.045,60 €
Grundstück - ohne Provision. : 140.000,00 €
Gesamtpreis : 406.045,60 0 € - komplett Einzugsbereit - inkl. KFW 40 Bezuschussung
Bitte planen Sie Baunebenkosten in Höhe von 35.000,00 € ein.
Grundstück 1 ca. 466 m² = 140.000,00 € - ohne Provision
Das Grundstück ist bereits im Gesamtpreis enthalten und wird kostenlos an den neuen Bauherren vermittelt.
Sonstige Informationen
Ihre Vorteile bei DANWOOD HOUSE - seit 24 Jahren ein führendes Unternehmen im Fertigteilhaus- Bereich.
ALLES AUS EINER HAND - NUR EIN ANSPRECHPARTNER.
• Preis inklusive Bodenplatte, Architektenleistungen und KfW 40 Standard
• 12 Monate Festpreisgarantie
• Niedrige Heizkosten durch energiesparende Bauweise
• Exakter Bauablaufplan und Bauzeitgarantie
•Umfangreiche Garantien für eingesetzte Bauprodukte
• Top-Qualität von deutschem Hersteller, Ausstattung mit Markenprodukten
Unser Service:
• über 100 verschiedene Haustypen
• individuelle Grundrissgestaltung
• Top-Preis-Leistungsverhältnis
• Ausstattung mit deutschen Markenprodukten
• Blower-Door-Test (Dichtigkeitsprüfung) vor Hausübergabe
• Persönliche Betreuung von Beginn an: Ihr Vertriebsberater, Ihr Architekt, Ihr Bauleiter und Ihr Bauteam aus Deutschland
• kurze Wege, kurze Bearbeitungszeiten, freundlicher und kompetenter Kundenservice
• Unabhängiger Finanzierungsservice inklusive Fördermittelberatung
Wir bitten um Verständnis, dass wir Ihre Anfragen nur mit Angabe Ihrer vollständigen Kontaktdaten, inkl. Adresse und Telefonnummer bearbeiten können. Ihre Anfragen werden selbstverständlich vertraulich behandelt und nicht an Dritte weitergegeben!
Wenn Sie Fragen zu diesem Angebot haben oder einen zeitnahen Besichtigungs- und Beratungstermin wünschen, dann rufen Sie mich unter 0176 70257881 an. Ich stehe Ihnen gern zur Verfügung.
Cornell Becker
Danwood - Leipzig / Sachsen
ALLES AUS EINER HAND - NUR EIN ANSPRECHPARTNER.
• Preis inklusive Bodenplatte, Architektenleistungen und KfW 40 Standard
• 12 Monate Festpreisgarantie
• Niedrige Heizkosten durch energiesparende Bauweise
• Exakter Bauablaufplan und Bauzeitgarantie
•Umfangreiche Garantien für eingesetzte Bauprodukte
• Top-Qualität von deutschem Hersteller, Ausstattung mit Markenprodukten
Unser Service:
• über 100 verschiedene Haustypen
• individuelle Grundrissgestaltung
• Top-Preis-Leistungsverhältnis
• Ausstattung mit deutschen Markenprodukten
• Blower-Door-Test (Dichtigkeitsprüfung) vor Hausübergabe
• Persönliche Betreuung von Beginn an: Ihr Vertriebsberater, Ihr Architekt, Ihr Bauleiter und Ihr Bauteam aus Deutschland
• kurze Wege, kurze Bearbeitungszeiten, freundlicher und kompetenter Kundenservice
• Unabhängiger Finanzierungsservice inklusive Fördermittelberatung
Wir bitten um Verständnis, dass wir Ihre Anfragen nur mit Angabe Ihrer vollständigen Kontaktdaten, inkl. Adresse und Telefonnummer bearbeiten können. Ihre Anfragen werden selbstverständlich vertraulich behandelt und nicht an Dritte weitergegeben!
Wenn Sie Fragen zu diesem Angebot haben oder einen zeitnahen Besichtigungs- und Beratungstermin wünschen, dann rufen Sie mich unter 0176 70257881 an. Ich stehe Ihnen gern zur Verfügung.
Cornell Becker
Danwood - Leipzig / Sachsen
Lage des Objektes
Zum Verkauf steht ein erschlossenes, im grünen gelegenes Grundstück im Ortsteil Schmölen. Das idyllische Grundstück mit einer kleinen Laube und einer Grundstücksgröße von 466 qm befindet sich in der Grimmaischen Straße/Gartenweg. Schmölen ist umgeben von Wald, Feldern, Wiesen und Ideal für Hundebesitzer.
Es ist 466 m² groß und kostet 140.000,00 € - ohne Provision.
Der Hauptort Bennewitz ist eine der ältesten Ansiedlungen in der Muldenaue. Urkundlich erstmals erwähnt wurde Bennewitz im Jahr 1335. Namensgeber war wahrscheinlich der sorbische Lokator Bono oder Bonislaw, der sich hier vor ungefähr 1200 Jahren ansiedelte, nachdem zur Zeit der Völkerwanderung die germanischen Ansiedler ihre Wohnsitze verlassen hatten. Das Dorf ist von seiner Anlage her, ein typisches sorbisches Rundlingsdorf.
Durch die Gemeinde Bennewitz verlaufen die B 6 auf der West-Ost-Achse und die B 107 auf der Nord-Süd-Achse. Die Gemeinde Bennewitz liegt im Verbundgebiet des Mitteldeutschen Verkehrsverbundes; Bennewitz liegt mit seinen Ortsteilen Deuben und Altenbach in der Tarifzone 141. Ein Anschluss an das Schienennetz besteht seit 1838. Der heutige Haltepunkt Bennewitz liegt an der Bahnstrecke Leipzig–Dresden. Der Haltepunkt wurde bis zum Jahr 2002 als Wurzen West bezeichnet. Der Haltepunkt ist Verkehrshalt folgender Linie: S 3 Wurzen–Bennewitz–Leipzig–Schkeuditz–Halle.
Es ist 466 m² groß und kostet 140.000,00 € - ohne Provision.
Der Hauptort Bennewitz ist eine der ältesten Ansiedlungen in der Muldenaue. Urkundlich erstmals erwähnt wurde Bennewitz im Jahr 1335. Namensgeber war wahrscheinlich der sorbische Lokator Bono oder Bonislaw, der sich hier vor ungefähr 1200 Jahren ansiedelte, nachdem zur Zeit der Völkerwanderung die germanischen Ansiedler ihre Wohnsitze verlassen hatten. Das Dorf ist von seiner Anlage her, ein typisches sorbisches Rundlingsdorf.
Durch die Gemeinde Bennewitz verlaufen die B 6 auf der West-Ost-Achse und die B 107 auf der Nord-Süd-Achse. Die Gemeinde Bennewitz liegt im Verbundgebiet des Mitteldeutschen Verkehrsverbundes; Bennewitz liegt mit seinen Ortsteilen Deuben und Altenbach in der Tarifzone 141. Ein Anschluss an das Schienennetz besteht seit 1838. Der heutige Haltepunkt Bennewitz liegt an der Bahnstrecke Leipzig–Dresden. Der Haltepunkt wurde bis zum Jahr 2002 als Wurzen West bezeichnet. Der Haltepunkt ist Verkehrshalt folgender Linie: S 3 Wurzen–Bennewitz–Leipzig–Schkeuditz–Halle.
Anbieter kontaktieren
Kontakt
| Telefon | 0176 70257881 |
| Mobil | 0176 70257881 |
| Fax | +49 32 12 - 73 94 666 |
| Website | www.rex-immobilientreuhand.de |
