Wohnung mieten in Altmittweida: 2 aktuelle Angebote

Aktuelle Immobilienangebote in Altmittweida

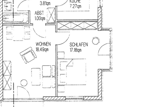
Helle 2-Zimmer-Erdgeschosswohnung in Mühlbach bei ...

Wohnung
09669 Frankenberg/Sa. - Mühlbach
Willkommen in Ihrem neuen Zuhause im Frankenberger Ortsteil Mühlbach! Diese helle Erdgeschosswohnung bietet Ihnen auf ca. 56 m² ein behagliches Zuhause. Das geräumige Wohnzimmer und das Schlafzimmer sind mit ...
260 €
Kaltmiete
56 m²
Wohnfläche
2
Zimmer

Atraktive 2 Zimmer Wohnung

Wohnung
Balkon
09669 Frankenberg
Das 1995 bis 1997 errichtete Mehrfamilienhaus im Herzen von Frankenberg/Dittersbach verfügt über 12 Wohnungen auf insgesamt vier Stockerwerken und bilden somit eine kleine Mietergemeinschaft innerhalb des Hauses in ...
350 €
Kaltmiete (netto)
55,54 m²
Wohnfläche
2
Zimmer