Haus kaufen in Unter-Hainbrunn: 2 aktuelle Angebote
39
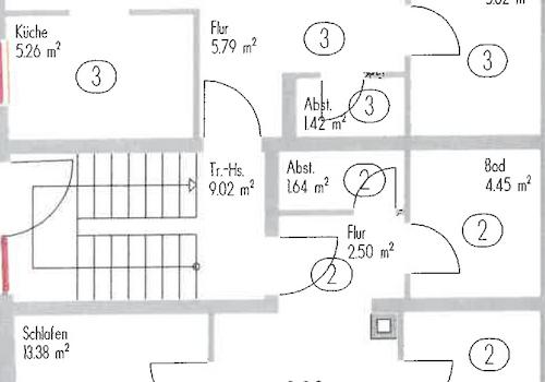
Für Handwerker und handwerklich Geschickte - großes Wohnhaus mit umfangreichem Modernisierungsbedarf
124.000 €
Kaufpreis
497,41 € / m²
64760 Oberzent
Fläche
249,29 m²
Zimmer
8
Zustand
Teil Vollrenovierungsbed
10
Ihre Zukunft wartet - Zentral gelegen - bis zu 5 Wohneinheiten machbar
99.999 €
Kaufpreis
69483 Wald-Michelbach
Fläche
1 m²
Zimmer
1