Bürogebäude mit Gestaltungspotenzial – Rain am Lech

Böhmerwaldstraße 6 A 86641 Rain, Bayern
Frei ab: nach Absprache
1.500 € Kaltmiete (netto)
12,00 € Preis/m² ca.
0,40 € NK/m²
Bürofläche
125 m²
Etage
0

Mietpreis & Nebenkosten

Kaltmiete (netto)1.500 €
Nebenkosten 50 €
Heizkosten150 €
Kaution 4.000 €
Maklerprovisionkeine Provision, courtagefrei

Wohnfläche, Grundstück & Bausubstanz

Gesamtfläche150 m²
Bürofläche125 m²
Etagen1
Stockwerk0
Verfügbar ab nach Absprache

Beschreibung der Immobilie

Böhmerwaldstraße | Erstbezug nach Sanierung

Dieses freistehende Bürogebäude bietet auf ca. 125 m² Nutzfläche (Grundfläche ca. 150 m²) die perfekte Basis für Ihr Unternehmen. Da eine grundlegende Sanierung ansteht, haben Sie aktuell die einmalige Chance, Einfluss auf die finale Gestaltung und Ausstattung zu nehmen. Sie übernehmen das Objekt anschließend schlüsselfertig.

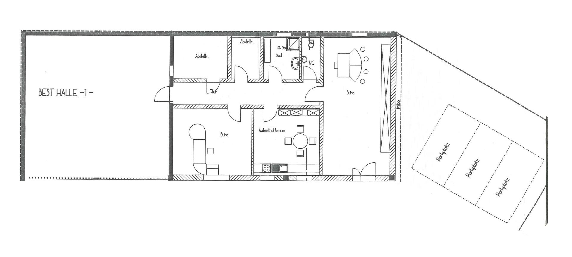
Geplante Raumaufteilung

•Empfang & Open Workspace: Großer, heller Büroraum für Kundenempfang oder Teamarbeit.
•Executive Office: Ein separates Büro für konzentriertes Arbeiten oder Meetings.
•Social Area: Küche mit integriertem Aufenthaltsraum.
•Infrastruktur: Abstellraum, dedizierter Server-/Technikraum.
•Sanitär: Modernes Bad mit Dusche sowie ein separates Gäste-WC.

Ausstattungsmerkmale


Energie

Heizungsart Zentralheizung
Energieträger/Befeuerung Gas

Karte wird geladen...
Böhmerwaldstraße 6 A
86641 Rain – Bayern

Lage & Infrastruktur


Infrastruktur (im Umkreis von 5 km):
Apotheke, Lebensmittel-Discount, Allgemeinmediziner, Kindergarten, Grundschule, Hauptschule, Realschule

Sonstige Informationen

Heizungsart: Zentralheizung
Energieträger: Gas
Energieausweis nicht vorhanden

Mitgestaltung der Grundriss-Details möglich

Makleranfragen nicht erwünscht. Nach § 7 UWG sind unaufgeforderte Kontaktaufnahmen durch Makler ohne ausdrückliche Einwilligung des Empfängers verboten!

ohne-makler (OM) ist weder Anbieter noch Vermittler der Immobilie. OM betreibt eine Plattform für Immobilieneigentümer, die unter anderem die gleichzeitige Veröffentlichung einzelner Inserate auf mehreren Immobilienportalen ermöglicht. Die Inhalte dieser Inserate werden ausschließlich von Dritten verantwortet. Für die Richtigkeit, Vollständigkeit oder Rechtmäßigkeit der Angaben übernimmt OM keine Haftung. Hinweise auf mögliche Rechtsverstöße können jederzeit gemeldet werden und werden nach Prüfung umgehend bearbeitet.
Ansprechpartner/in: Angebot vom Eigentümer
OM PropTech GmbH
Humboldtstraße 25a, 21509 Glinde

Weitere Angebote in Rain