Schöne Büro- & großzügige Hallenflächen in Meerbusch provisionsfrei zur Miete

40670 Meerbusch, Nordrhein-Westfalen
Frei ab: kurzfristig
13,50 € Preis/m²
Bürofläche
359 m²
Etage
1

Mietpreis & Nebenkosten

Kaltmiete0 €
Nebenkosten Keine Angabe
Mietpreis pro m²13,5 €
Stellplatz Tiefgarage Miete35 €

Wohnfläche, Grundstück & Bausubstanz

Gesamtfläche359 m²
Bürofläche359 m²
Stockwerk1
Baujahr1991
Verfügbar ab kurzfristig

Beschreibung der Immobilie

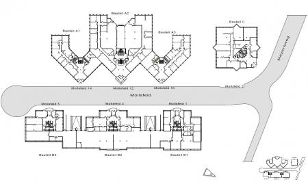
Im Büropark Meerbusch befindet sich das Objekt " Mollsfeld 1-14" mit Büro-, Service- und Lagerflächen. Das drei- bis viergeschossige Bürogebäude, sowie das eingeschossige Hallengebäude haben genügend Stellplätze, der am Objekt anschließenden Tiefgarage sowie im Außenbereich des Objektes.

Ausstattungsmerkmale

BodenTeppich
Moderne und repräsentative Architektur
Farblich abgesetzte Klinkerfassaden und weiße Rahmen der Fensterelemente bestimmen das freundliche Erscheinungsbild
Fenster mit Isolierverglasung (2-fach), mit außen elektrischen Sonnenschutzjalousien (mit Ausnahme an den Nordseiten der Gebäudeteile), teilweise mit innenliegendem Sonnenschutz
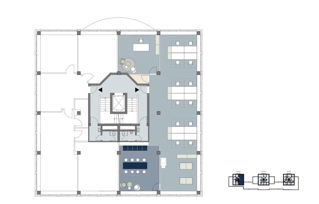
Flexible Raumteilung
Hochwertiger, stuhlrollenfester Teppichboden in den Büroflächen
Gussasphalt bzw. Estrich in den Lagerflächen
Die Belastbarkeit der Hallenböden beträgt 10 kN/m², die Höhe der Hallen-Lagerflächen liegt zwischen 3,44 - 4,45 m
Teeküche in jedem Mietbereich vorgerichtet, teilweise ausgestattet
"Abgehängte Decken mit integrierter, arbeitsplatzgerechter Beleuchtung
"In den Büros Elektroversorgung über Fensterbankkanäle
"Gaszentralheizung
Aufzüge in den Bürobereichen
Tiefgaragen befinden sich unter den Gebäudeteilen mit Zugang zu den Gebäuden

Energie

EnergieausweistypVerbrauch
Gültig bis2021-04-14
Baujahr (laut Energieausweis)1991
Heizungsart Zentralheizung
Wesentlicher EnergieträgerGas
Energieträger/Befeuerung Gas

Karte wird geladen...
40670 Meerbusch – Nordrhein-Westfalen

Lage & Infrastruktur

Der Standort Meerbusch-Osterath liegt sehr zentral, da in 20 Minuten sowohl der Düsseldorfer Hauptbahnhof sowie der Düsseldorfer Flughafen erreicht werden kann. Ebenfalls ist in der gleichen Zeit die Neusser Innenstadt zu erreichen. Die Autobahnzubringer A57 und A44 sind innerhalb von 5 Minuten erreicht.

Sonstige Informationen

In erster Linie zeichnet sich der Standort in Meerbusch-Osterath durch seine hervorragende Infrastruktur aus:

Autobahnauffahrt A 44 Mönchengladbach - Meerbusch in nur 200 m Entfernung; mit direkter Anbindung über das Autobahnkreuz Strümp an die A 57 Arnheim - Ludiwgshafen, sowie über das Autobahnkreuz Kaarst an die A 52 Mönchengladbach - Düsseldorf = direkte Anbindung an das europäische Autobahnnetz; weiterhin befindet sich die B 9 in nur 100 m Entfernung. Die S-Bahn Haltestelle "Görgesheide" (ca. 25 Min. Fahrzeit bis Düsseldorf) in ca. 50 m Entfernung kennzeichnen die Standortqualität.
Ansprechpartner/in: Firma
corealis Commercial Real Estate GmbH
Hohe Straße 8-10, 40213 Düsseldorf

Weitere Angebote in Meerbusch