LAGERHALLEN MIT BÜROS // XXL GARAGEN

Im Tiefenbruch 5 31275 Lehrte, Nordrhein-Westfalen
Frei ab: nach Absprache
1 € Kaltmiete (netto)
1,00 € Preis/m² ca.
Gesamtfläche
1 m²
Etage
0

Mietpreis & Nebenkosten

Kaltmiete (netto)1 €
Nebenkosten Keine Angabe
Maklerprovisionkeine Provision, courtagefrei

Wohnfläche, Grundstück & Bausubstanz

Gesamtfläche1 m²
Etagen2
Stockwerk0
Baujahr2026
Verfügbar ab nach Absprache
ZustandErstbezug

Beschreibung der Immobilie

Im Gewerbegebiet Nord in Lehrte entstehen verschiedene Lagerhallen und XXL-Garagen mit perfekter Anbindung an die Autobahnen.

**WICHTIG**
Es handelt sich nicht um einfache Fertighallen, sondern um massiv gemauerte Einheiten aus Porenbeton (24–30 cm Wandstärke).
Das Dach besteht aus 12 cm starken, gedämmten Sandwichpaneelen – ideal für ein ausgeglichenes Raumklima.

Allgemeine Infos:
- komplett gepflasterte Zufahrt
- ebenerdige Einfahrten in die Hallen / Garagen
- Wendemöglichkeit
- Videoüberwachung
- 24 / 7 Zugang möglich
- Exzellente Anbindung an die Autobahnen
- Grundstück beleuchtet

Bitte lesen Sie sich die Ausstattungsmerkmale der Garagen und der Hallen mit Büros durch.

Folgende Einheiten sind verfügbar:

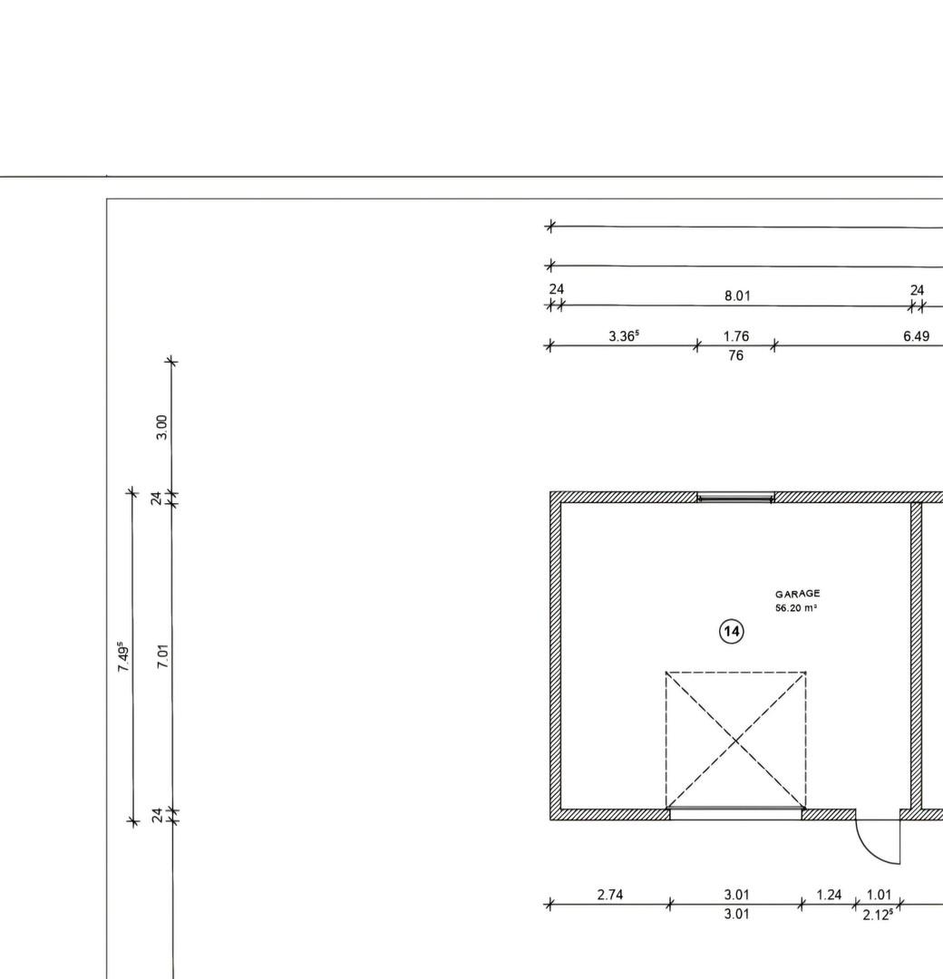
XXL LAGER / GARAGE TYP 1:
56 qm ( 7 Meter Tief und 8 Meter Breit und ca. 5,50 Hoch )

XXL LAGER / GARAGE TYP 2:
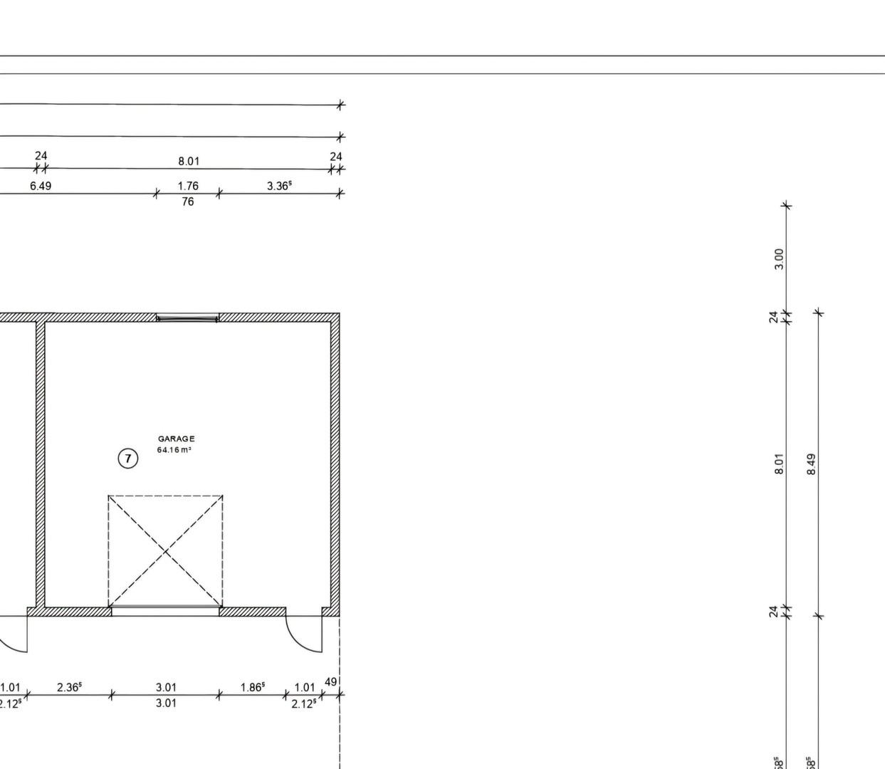
64 qm ( 8 Meter Tief und 8 Meter Breit und ca. 5,50 Hoch )

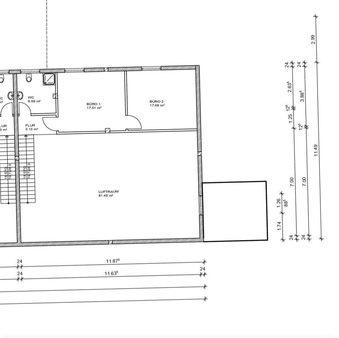
LAGERHALLE MIT BÜROS TYP 1:
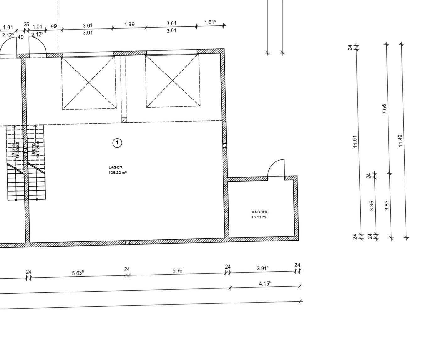
171 qm ( verteilt auf 126 qm im EG und 45 qm im OG )
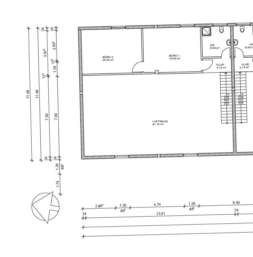
Im OG befinden sich 2 Büroräume und 1 Badezimmer.

LAGERHALLE MIT BÜROS TYP 2:
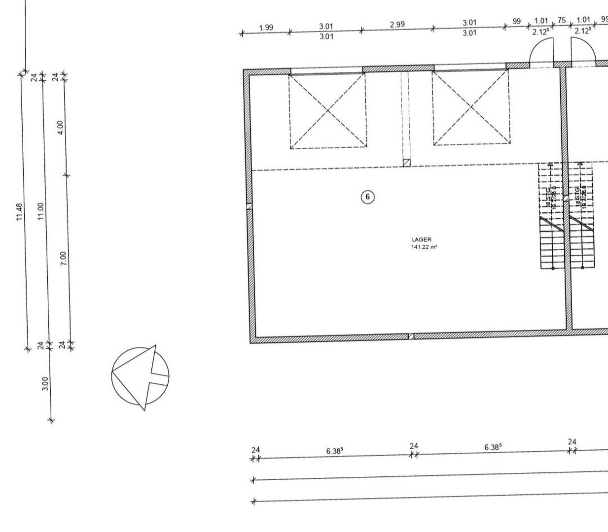
191 qm ( verteilt auf 141 qm im EG und 50 qm im OG )
Im OG befinden sich 2 Büroräume und 1 Badezimmer.

Nutzungshinweis:

Die Einheiten sind ideal für Lager, Logistik und gewerbliche Nutzung.

Nicht gestattet sind:

Betrieb von Kfz-Werkstätten
Nutzung von Hebebühnen

Gerne kann bei Interesse ein Termin zur Besichtigung vereinbart werden.

Ausstattungsmerkmale

Sonstiges (s. Text)

Bemerkungen:
Ausstattung XXL LAGER / GARAGEN TYP 1 und TYP 2:

- industriell geglätteter Betonboden
- gedämmtes elektrisches Sektionaltor ( Durchfahrt 3,50 Meter hoch und 3 Meter breit )
- Zusätzlicher Eingang über eigene Tür
- Beleuchtung und Stromanschluss
- Deckenhöhe über 5 Meter
- gedämmtes Dach
- Fenster in über 4 Meter Höhe ( Festelement )
- optional Sanitäranlagen verfügbar

LAGERHALLE MIT BÜROS TYP 1:
171 qm ( verteilt auf 126 qm im EG und 45 qm im OG )
Im OG befinden sich 2 Büroräume und 1 Badezimmer.

LAGERHALLE MIT BÜROS TYP 2:
191 qm ( verteilt auf 141 qm im EG und 50 qm im OG )
Im OG befinden sich 2 Büroräume und 1 Badezimmer.

Ausstattung LAGERHALLE MIT BÜROS TYP 1 und TYP 2:

- industriell geglätteter Betonboden
- 2 gedämmte elektrische Sektionaltore ( Durchfahrt 3 Meter hoch und 3 Meter breit )
- Zusätzlicher Eingang über eigene Tür
- Beleuchtung und Stromanschluss
- Deckenhöhe ca. 7 Meter
- gedämmtes Dach
- 2 große Fenster in über 6 Meter Höhe ( Festelement )
- Badezimmer im 1. OG
- 2 Büros im 1. OG ( siehe Grundriss )
- Internetanschluss in den Büroräumen
- Fliesenboden in den Büros
- Anschlüsse für Küchenzeile in den Büros

Energie

Energieträger/Befeuerung Elektro

Karte wird geladen...
Im Tiefenbruch 5
31275 Lehrte – Nordrhein-Westfalen

Sonstige Informationen

Heizungsart: Sonstiges (s. Text)
Energieträger: Strom
Energieausweis nicht vorhanden


Makleranfragen nicht erwünscht. Nach § 7 UWG sind unaufgeforderte Kontaktaufnahmen durch Makler ohne ausdrückliche Einwilligung des Empfängers verboten!

ohne-makler (OM) ist weder Anbieter noch Vermittler der Immobilie. OM betreibt eine Plattform für Immobilieneigentümer, die unter anderem die gleichzeitige Veröffentlichung einzelner Inserate auf mehreren Immobilienportalen ermöglicht. Die Inhalte dieser Inserate werden ausschließlich von Dritten verantwortet. Für die Richtigkeit, Vollständigkeit oder Rechtmäßigkeit der Angaben übernimmt OM keine Haftung. Hinweise auf mögliche Rechtsverstöße können jederzeit gemeldet werden und werden nach Prüfung umgehend bearbeitet.
Ansprechpartner/in: Privat von Delil Dasci
OM PropTech GmbH
Humboldtstraße 25a, 21509 Glinde

Weitere Angebote in Lehrte