Neubau - Gastronomie am Marktplatz Drensteinfurt | flexibel nutzbar | Fertigstellung 2026

Mühlenstraße 5 48317 Drensteinfurt, Nordrhein-Westfalen
Frei ab: nach Absprache
Gesamtfläche
178 m²
Zimmer
7
Etage
0
Fahrstuhl
Keller
Barrierefrei

Mietpreis & Nebenkosten

Miete für das ObjektAuf Anfrage
Maklerprovisionkeine Provision, courtagefrei

Wohnfläche, Grundstück & Bausubstanz

Gesamtfläche178 m²
Gastrofläche178 m²
Zimmer7
Stockwerk0
Baujahr2025
Verfügbar ab nach Absprache
ZustandErstbezug

Beschreibung der Immobilie

Im Herzen von Drensteinfurt entsteht bis Ende 2026 ein hochwertiges Wohn- und Geschäftshaus mit 9 Wohneinheiten und einer großzügigen Gewerbefläche im Erdgeschoss.

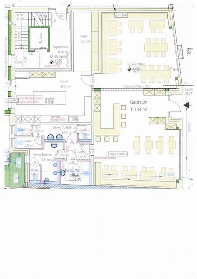
Die ca. 178 m² große Einheit liegt direkt am neu gestalteten Marktplatz und bietet hervorragende Sichtbarkeit sowie eine repräsentative Lage.

Die Fläche ist aktuell als Gastronomie geplant (exemplarischer Grundriss anbei), kann jedoch flexibel an Ihre Nutzung angepasst werden. Grundriss und Ausbau erfolgen in Abstimmung mit dem zukünftigen Mieter.

Ausstattungsmerkmale

BodenFliesen
Fahrstuhl
BarrierefreiJa
KellerJa
Keller, Fahrstuhl, Barrierefrei, Fliesen

Bemerkungen:
Energieeffizienter Neubau

Wärmepumpe

Dreifachverglasung

Glasfaseranschluss

Hochwertige Fassadengestaltung

Moderne, repräsentative Architektur

Fertigstellung Ende 2026 – frühzeitige Planungssicherheit.

Energie

Heizungsart Fußbodenheizung
Energieträger/Befeuerung Luft-Wärme-Pumpe

Karte wird geladen...
Mühlenstraße 5
48317 Drensteinfurt – Nordrhein-Westfalen

Lage & Infrastruktur

Drensteinfurt ist eine attraktive Pendlerstadt, der Standort des Gewerbes ist zentral im historischen Stadtkern – direkt am Marktplatz gelegen. Eine hohe Kaufkraft der Einwohner, starke Eigentümerquote und gewachsene Innenstadtstruktur bieten beste Voraussetzungen für nachhaltigen Geschäftserfolg.

Eine sehr gute Anbindung des Standorts ist gegeben:

Bahnhof Drensteinfurt fußläufig erreichbar

Mehrfach stündliche Zugverbindung nach Münster und Hamm

Schnelle Erreichbarkeit der A1 und A2
Infrastruktur (im Umkreis von 5 km):
Apotheke, Lebensmittel-Discount, Allgemeinmediziner, Kindergarten, Grundschule, Realschule, Öffentliche Verkehrsmittel

Sonstige Informationen

Heizungsart: Fußbodenheizung
Energieträger: Luft-/Wasserwärme
Energieausweis nicht vorhanden

Die Gewerbefläche befindet sich in einem modernen Wohn- und Geschäftshaus im Herzen von Drensteinfurt.

Der Ausbau der Fläche erfolgt in enger Abstimmung mit dem zukünftigen Mieter. Dadurch können Grundriss, Technikanschlüsse sowie Ausstattungsdetails individuell geplant und auf Ihr Nutzungskonzept abgestimmt werden.

Die Fertigstellung ist für Ende 2026 vorgesehen. Eine frühzeitige Abstimmung bietet Planungssicherheit und optimale Umsetzungsmöglichkeiten.

Die Fläche eignet sich ideal für langfristig orientierte Betreiber, die einen modernen Neubau in zentraler Marktplatzlage suchen und Wert auf nachhaltige Bauweise, hochwertige Architektur und ein kaufkräftiges Umfeld legen.

Preis auf Anfrage.
Seriöse Anfragen mit Nutzungskonzept sind willkommen.

Makleranfragen nicht erwünscht. Nach § 7 UWG sind unaufgeforderte Kontaktaufnahmen durch Makler ohne ausdrückliche Einwilligung des Empfängers verboten!

ohne-makler (OM) ist weder Anbieter noch Vermittler der Immobilie. OM betreibt eine Plattform für Immobilieneigentümer, die unter anderem die gleichzeitige Veröffentlichung einzelner Inserate auf mehreren Immobilienportalen ermöglicht. Die Inhalte dieser Inserate werden ausschließlich von Dritten verantwortet. Für die Richtigkeit, Vollständigkeit oder Rechtmäßigkeit der Angaben übernimmt OM keine Haftung. Hinweise auf mögliche Rechtsverstöße können jederzeit gemeldet werden und werden nach Prüfung umgehend bearbeitet.
Ansprechpartner/in: Angebot von Im Herzen Drensteinfurts GmbH & Co. eGbR
OM PropTech GmbH
Humboldtstraße 25a, 21509 Glinde

Weitere Angebote in Drensteinfurt