Etageneinheit für Praxis, Büro od. Gewerbe , ca. 184qm

76571 Gaggenau, Baden-Württemberg
Frei ab: nach Absprache
1.990 € Kaltmiete (netto)
10,82 € Preis/m² ca.
Bürofläche
184 m²
Etage
1
Fahrstuhl
Keller
Barrierefrei

Mietpreis & Nebenkosten

Kaltmiete (netto)1.990 €
Nebenkosten Keine Angabe
Kaution 5.970 €
Maklerprovisionkeine Provision, courtagefrei

Wohnfläche, Grundstück & Bausubstanz

Gesamtfläche190 m²
Bürofläche184 m²
Etagen1
Stockwerk1
Baujahr1962
Verfügbar ab nach Absprache
ZustandGepflegt

Beschreibung der Immobilie

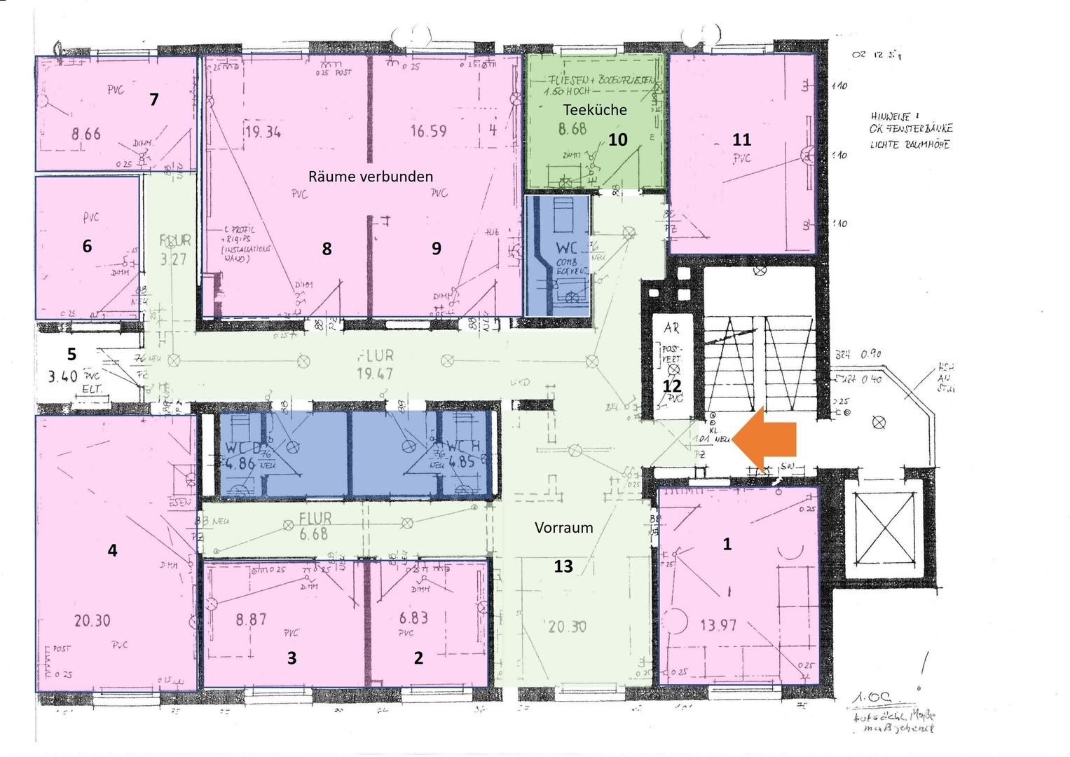
Innerhalb des 4-geschossigen Gebäudes mit Fahrstuhl und Parkplätzen befindet sich die Einheit
im 1. OG in zentraler Lage zwischen Stadtzentrum und B 462.
Es ist eine sehr gute Infrastruktur vorhanden.

Der Grundriss sieht einen großzügigen Vor- / bzw. Empfangsraum vor, welcher über 2 davon ausgehende Flure die Etage gliedert. Diese umfasst zudem 3 WC-Räume sowie in 2 Räumen weitere Wasseranschlüsse (z. B. Teeküche, Labor o. ä.).
Die Aufteilung sieht zudem einen kleinen Abstell- / Technikraum vor sowie im Keller einen Lagerraum. Insgesamt gibt es 9 Zimmer, zzgl. Vorraum, Teeküche und den beiden kleinen Räumen (Technik- / Abstellraum).
Zwei der Zimmer verfügen über eine direkte Verbindung und bieten gemeinsam ca. 36qm.

Raumoberflächen allg.: überwiegend Teppichboden, Raufasertapete weiß gemalert

WC / Teeküche: Ausstattung mit Fliesenspiegel

Eckhaus Bj. 1962, Modernisierung u. a. 1985, sowie weitere Erneuerungen (Heizung, Fahrstuhl).
2026 Dach- und Fassadensanierung

Verfügbarkeit: in Abstimmung
Nebenkosten nach Verbrauch

Ausstattungsmerkmale

BodenFliesen, Teppich, Laminat, Kunststoff
Fahrstuhl
BarrierefreiJa
KellerJa
Keller, Fahrstuhl, Gäste-WC, Barrierefrei, Laminat, Teppichboden, Fliesen

Energie

Heizungsart Zentralheizung
Energieträger/Befeuerung Gas

Karte wird geladen...
76571 Gaggenau – Baden-Württemberg

Lage & Infrastruktur

Gaggenau
Zwischen Bundesstrassenanbindung West und Mitte.
Infrastruktur (im Umkreis von 5 km):
Apotheke, Lebensmittel-Discount, Allgemeinmediziner, Kindergarten, Grundschule, Hauptschule, Realschule, Gymnasium, Gesamtschule, Öffentliche Verkehrsmittel

Sonstige Informationen

Heizungsart: Zentralheizung
Energieträger: Gas

Bitte senden Sie mir zur Kontaktaufnahme eine Nachricht mit Ihrem werten Namen und Ihrer Telefonnummer. Wir rufen zurück.

Makleranfragen nicht erwünscht. Nach § 7 UWG sind unaufgeforderte Kontaktaufnahmen durch Makler ohne ausdrückliche Einwilligung des Empfängers verboten!

ohne-makler (OM) ist weder Anbieter noch Vermittler der Immobilie. OM betreibt eine Plattform für Immobilieneigentümer, die unter anderem die gleichzeitige Veröffentlichung einzelner Inserate auf mehreren Immobilienportalen ermöglicht. Die Inhalte dieser Inserate werden ausschließlich von Dritten verantwortet. Für die Richtigkeit, Vollständigkeit oder Rechtmäßigkeit der Angaben übernimmt OM keine Haftung. Hinweise auf mögliche Rechtsverstöße können jederzeit gemeldet werden und werden nach Prüfung umgehend bearbeitet.
Ansprechpartner/in: Privat von Rolf Volker S
OM PropTech GmbH
Humboldtstraße 25a, 21509 Glinde

Weitere Angebote in Gaggenau