VERMIETETES 142 QM GEWERBE = € 395.000,- = 6,5 % RENDITE = MIETE € 25.526,-=NOLLENDORFSTR.23

Nollendorfstr. 23 10777 Berlin, Berlin
Frei ab: nach Absprache
395.000 € Kaufpreis
Bürofläche
142 m²
Etage
0

Kaufpreis

Kaufpreis 395.000 €
Maklerprovisionkeine Provision, courtagefrei

Wohnfläche, Grundstück & Bausubstanz

Gesamtfläche142 m²
Bürofläche142 m²
Etagen5
Stockwerk0
Baujahr1900
Verfügbar ab nach Absprache
ZustandTeil Vollsaniert

Beschreibung der Immobilie

KEINE MIETPREISBREMSE... , KEIN MIETENSPIEGEL....

NETTOKALTMIETE/JAHR € 25.540,- // KAUFPREIS € 395.000,- // 6,5 % RENDITE!!

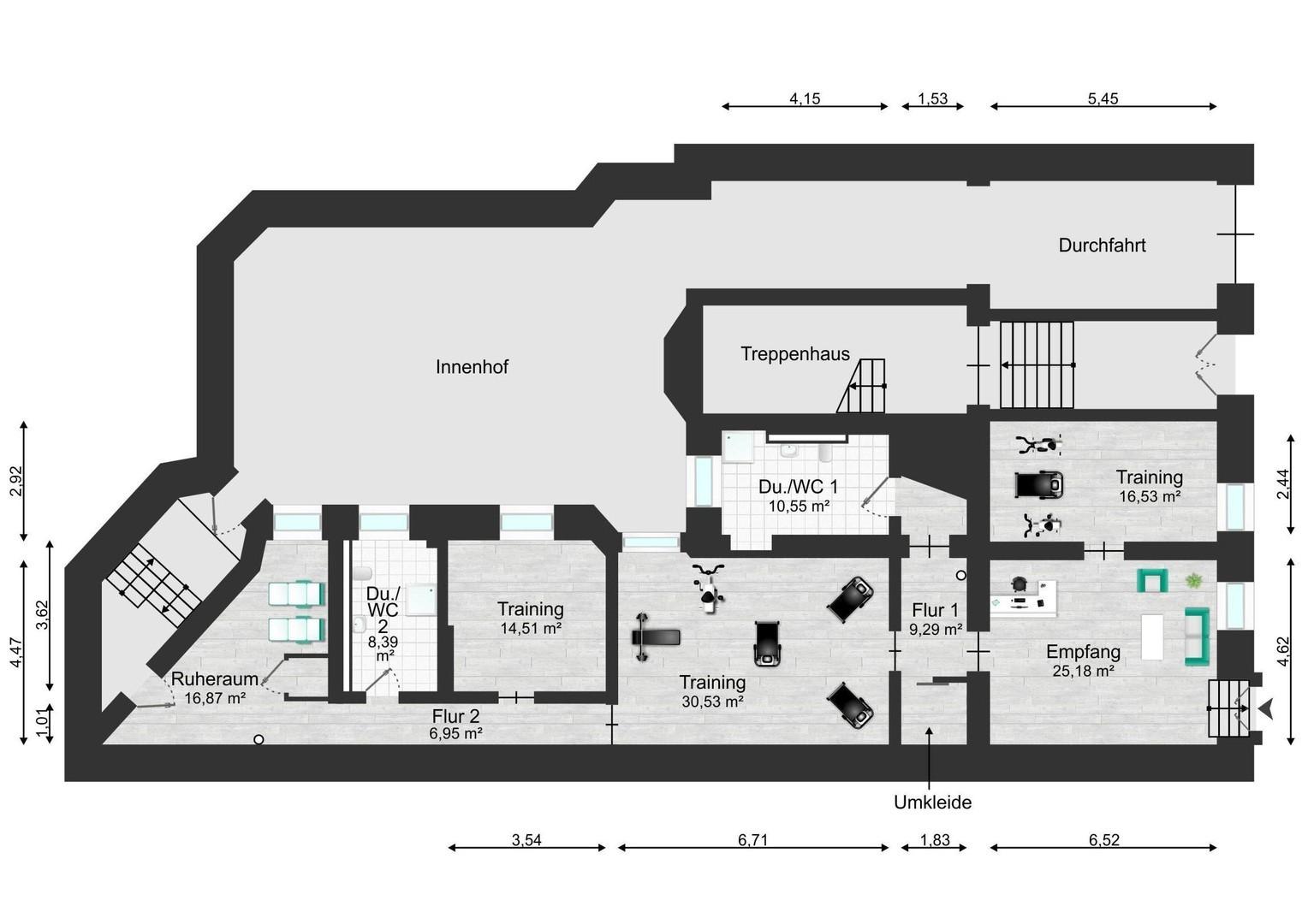
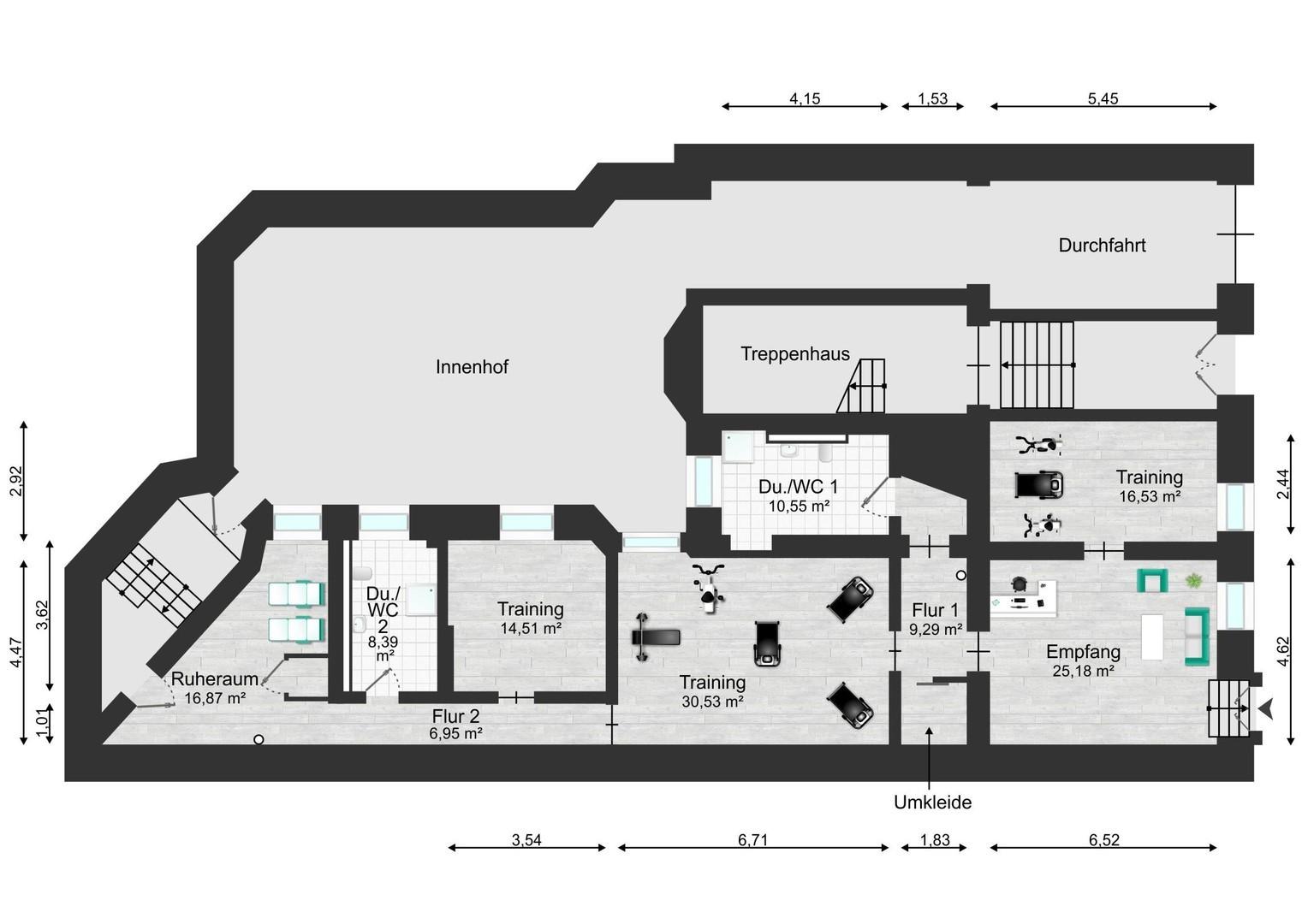
VERMIETET AN EIN FITNESS-STUDIO==142 QM==NOLLENDORFSTR. 23== SOUTERRAIN==PROVISIONSFREI!!

Trendbezirk Schöneberg, Bestlage NOLLENDORFSTRASSE, (Nähe Winterfeldmarkt/Wochenmarkt), TE im Souterrain, 5 Räume

Die Fassade des Gebäudes ist sehr geschmackvoll erneuert worden. Die zum Verkauf stehenden Räume sind an ein Fitness Center (Personal Training) vermietet. Sehr geschmackvoll ausgebaute Räume im Souterrain eines Jahrhundertwendegebäudes. Freigelegtes und versiegeltes Ziegelmauerwerk im gesamten Gewerbe. Stilvolles Bad, zusätzliches WC,

Nur € 368,- Wohngeld,.... bei 142 qm, hier wird sehr gut verwaltet.

Dateien


Ausstattungsmerkmale

Bad (Ausstattung)Dusche
Duschbad, Gäste-WC

Bemerkungen:
== PROVISIONSFREIER PRIVATVERKAUF ==

KEINE MIETPREISBREMSE... , KEIN MIETENSPIEGEL....

NETTOKALTMIETE/JAHR € 25.540,- // KAUFPREIS € 395.000,- // 6,5 % RENDITE!!

Profitieren Sie von attraktiven steuerlichen Vorteilen Ihrer Kapitalanlage.

- Steuerfreier Verkauf nach 10-jähriger Haltefrist

- Abschreibungen der Anschaffungs- und Hausverwaltungskosten

- Absetzbarkeit von Kreditzinsen und vieles mehr.

BESICHTIGUNG nach Vereinbarung unter 0172-3174800 möglich!

Bitte senden Sie mir eine kurze Kontakt-Email zu, wenn Sie an einer Besichtigung interessiert sind, ich sende Ihnen dann das Exposé zu.

Energie

EnergieausweistypVerbrauch
Heizungsart Zentralheizung
Energieträger/Befeuerung Gas

Karte wird geladen...
Nollendorfstr. 23
10777 Berlin – Berlin

Lage & Infrastruktur

SCHÖNEBERG, Nollendorfstraße, eine der beliebtesten Straßen Berlins......,

VIELE AUSGEBAUTE SOUTERRAIN-GEWERBE IN UNMITTELBARER NÄHE!!

sehr beliebter Wohn-/Gewerbestandort, fast alle Umgebungsgebäude sind modernisiert, die Infrastruktur ist hervorragend, kleine inhabergeführte Geschäfte, Zwischen U-Bahn Luise-Viktoria-Platz und Nollendorfplatz, Winterfeldmarkt fußläufig in 5 Gehminuten erreichbar,
Infrastruktur (im Umkreis von 5 km):
Apotheke, Lebensmittel-Discount, Allgemeinmediziner, Kindergarten, Grundschule, Hauptschule, Realschule, Gymnasium, Gesamtschule, Öffentliche Verkehrsmittel

Sonstige Informationen

Heizungsart: Zentralheizung
Energieträger: Gas

HIS Hickstein Immobilien Systemanalyse
Rudolf-Ditzen-Weg 15
13156 Berlin

Tel: 0172 3174800
Fax: 030 49918099

Vertretungsberechtigter: Ulrich Hickstein
Berufsaufsichtsbehörde: Gewerbeerlaubnis gemäß § 34c GewO erteilt vom Wirtschaftsamt Berlin Pankow
Bezirksamt Pankow, Ordnungsamt Pankow, Fröbelstr., Prenzl.Berg FA Pankow/Weißensee, Storkowerstr., Berlin
Verbraucherinformationen:
Online-Streitbeilegung gemäß Art. 14 Abs. 1 ODR-VO: Die Europäische Kommission stellt eine Plattform zur Online-Streitbeilegung (OS) bereit, die Sie hier finden:
ec.europa.eu/consumers/odr

Der Anbieter nimmt nicht am Streitbeilegungsverfahren vor einer Verbraucherschlichtungsstelle teil.

Makleranfragen nicht erwünscht. Nach § 7 UWG sind unaufgeforderte Kontaktaufnahmen durch Makler ohne ausdrückliche Einwilligung des Empfängers verboten!

ohne-makler (OM) ist weder Anbieter noch Vermittler der Immobilie. OM betreibt eine Plattform für Immobilieneigentümer, die unter anderem die gleichzeitige Veröffentlichung einzelner Inserate auf mehreren Immobilienportalen ermöglicht. Die Inhalte dieser Inserate werden ausschließlich von Dritten verantwortet. Für die Richtigkeit, Vollständigkeit oder Rechtmäßigkeit der Angaben übernimmt OM keine Haftung. Hinweise auf mögliche Rechtsverstöße können jederzeit gemeldet werden und werden nach Prüfung umgehend bearbeitet.
Ansprechpartner/in: Privat von Ulrich Hickstein
OM PropTech GmbH
Humboldtstraße 25a, 21509 Glinde

Weitere Angebote in Berlin