Gewerbehalle | ca. 273 m² Hallenfläche | ca. 136 m² Hof | Vielfältig nutzbar
2.200 €
Kaltmiete
2.450 €
Warmmiete
immobilien.de Nr.: 9496034
Objektnummer: 502499
Mietpreis & Nebenkosten
| Kaltmiete | 2.200 € |
| Warmmiete | 2.450 € |
| Nebenkosten | 250 € |
| Maklerprovision | 7,14% inkl. Mehrwertsteuer |
Wohnfläche, Grundstück & Bausubstanz
| Gesamtfläche | 272,7 m² |
| Grundstücksfläche | 1.000 m² |
| Verfügbar ab | keine Angabe |
| Zustand | Erstbezug |
Beschreibung der Immobilie
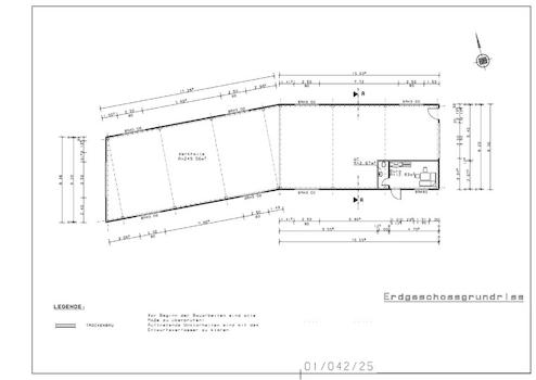
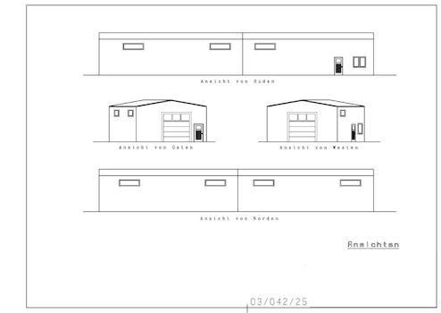
Bei dieser Immobilie handelt es sich um eine funktional geplante, eingeschossige Gewerbe- bzw. Werkhalle, die im Rahmen eines Neubauvorhabens errichtet wird und sich durch eine klare Grundrissstruktur mit integrierten Nebenräumen auszeichnet.
Die Hallenfläche wird ca. 272,7 m² umfassen, überwiegend offen gestaltet sein und eine gute Stell- und Bewegungsfläche für Maschinen, Regale oder Arbeitsplätze bieten.
Im hinteren Hallenbereich ist ein abgetrennter Bürobereich mit vorgesehener WC-Einheit geplant. Dieser Bereich eignet sich ideal für Verwaltung oder Kundenempfang und ermöglicht eine funktionale Trennung von Arbeits- und Büroflächen, ohne zusätzliche Umbauten vornehmen zu müssen.
Die Halle soll über eine Innenhöhe von ca. 4 m verfügen, was auch den Einsatz höherer Regalsysteme oder technischer Einrichtungen erlaubt.
Ein ebenerdiges Hallentor wird eine komfortable Anlieferung sowie Be- und Entladung gewährleisten.
Die Bauausführung wird in massiver Bauweise mit Stahlbetonbodenplatte erfolgen, was eine robuste, langlebige Nutzung ermöglicht.
Vor der Halle ist eine Hoffläche von ca. 136 m² vorgesehen, die sich als Rangier-, Abstell- oder Arbeitsfläche eignet. Die Zufahrt erfolgt direkt von der öffentlichen Verkehrsfläche und bietet eine praktische Andienung auch für Lieferfahrzeuge.
Die Hallenfläche wird ca. 272,7 m² umfassen, überwiegend offen gestaltet sein und eine gute Stell- und Bewegungsfläche für Maschinen, Regale oder Arbeitsplätze bieten.
Im hinteren Hallenbereich ist ein abgetrennter Bürobereich mit vorgesehener WC-Einheit geplant. Dieser Bereich eignet sich ideal für Verwaltung oder Kundenempfang und ermöglicht eine funktionale Trennung von Arbeits- und Büroflächen, ohne zusätzliche Umbauten vornehmen zu müssen.
Die Halle soll über eine Innenhöhe von ca. 4 m verfügen, was auch den Einsatz höherer Regalsysteme oder technischer Einrichtungen erlaubt.
Ein ebenerdiges Hallentor wird eine komfortable Anlieferung sowie Be- und Entladung gewährleisten.
Die Bauausführung wird in massiver Bauweise mit Stahlbetonbodenplatte erfolgen, was eine robuste, langlebige Nutzung ermöglicht.
Vor der Halle ist eine Hoffläche von ca. 136 m² vorgesehen, die sich als Rangier-, Abstell- oder Arbeitsfläche eignet. Die Zufahrt erfolgt direkt von der öffentlichen Verkehrsfläche und bietet eine praktische Andienung auch für Lieferfahrzeuge.
Ausstattungsmerkmale
| Anzahl der Etagen im Haus | 1 |
*Ca. 272,7 m² Hallenfläche
*Hoffläche ca. 136 m²
*Insgesamt ca. 1000 m² Grundstück
*Büro mit WC
*Ebenerdiges Hallentor
*Ca. 4,00 m Hallenhöhe
*Massive Bauweise
*Direkte Zufahrt
*Flexible Nutzung
*Hoffläche ca. 136 m²
*Insgesamt ca. 1000 m² Grundstück
*Büro mit WC
*Ebenerdiges Hallentor
*Ca. 4,00 m Hallenhöhe
*Massive Bauweise
*Direkte Zufahrt
*Flexible Nutzung
Sonstige Informationen
Hinweis zur Richtigkeit und Vollständigkeit der Angaben:
Der Makler weist darauf hin, dass die von ihm weitergegebenen Objektinformationen vom Verkäufer bzw. von einem vom Verkäufer beauftragten Dritten stammen und von ihm, dem Makler, auf ihre Richtigkeit nicht überprüft worden sind. Es ist Sache des Kunden, diese Angaben auf ihre Richtigkeit hin zu überprüfen. Der Makler, der diese Informationen nur weitergibt, übernimmt für die Richtigkeit keinerlei Haftung.
Der Makler weist darauf hin, dass die von ihm weitergegebenen Objektinformationen vom Verkäufer bzw. von einem vom Verkäufer beauftragten Dritten stammen und von ihm, dem Makler, auf ihre Richtigkeit nicht überprüft worden sind. Es ist Sache des Kunden, diese Angaben auf ihre Richtigkeit hin zu überprüfen. Der Makler, der diese Informationen nur weitergibt, übernimmt für die Richtigkeit keinerlei Haftung.
Karte wird geladen...
Objektstandort
Grahlhof
Lage & Infrastruktur
Objektstandort
Grahlhof
Die Immobilie wird in Altefähr, Ortsteil Grahlhof, auf der Insel Rügen erbaut. Die Lage ist ländlich und gewerblich geprägt und bietet eine ruhige Umgebung mit guter Erreichbarkeit. Altefähr verfügt über eine direkte Fährverbindung nach Stralsund, wodurch eine schnelle Anbindung an das Festland gewährleistet ist. Die Insel Rügen ist über die Rügenbrücke sowie den Rügendamm gut an das überregionale Verkehrsnetz angebunden.
Kontaktanfrage senden
Über den Anbieter
Willuhn Immobilien e. K.
Scherlstraße 12
04103 Leipzig
Kontakt
| Telefon | 01632664472 |
| Fax | 0341 25327329 |
| Website | www.vvv-leipzig-immobilien.de |
Ansprechpartner/in
Sabine Willuhn
Weitere Angebote des Anbieters
19
Südvorstadt | WG-geeignet | Balkon
Wohnung
04275 Leipzig
Diese 4-Raum-Wohnung befindet sich im 1. Obergeschoss eines ca. 1900 errichteten Mehrfamilienhauses in der Karl-Liebknecht-Straße. Das Treppenhaus ist sehr gepflegt und spricht für eine intakte und sehr nette ...
944 €
Kaltmiete
85,77 m²
Wohnfläche
4
Zimmer
24
Großzügiges Familienwohnen – 7 Zimmer auf traumhaftem ...
Haus
04509 Krostitz
Dieses charmante Einfamilienhaus vereint Großzügigkeit, Wohnkomfort und vielseitige Nutzungsmöglichkeiten auf einem beeindruckenden Grundstück. Hier genießen Sie ein Zuhause, das Raum für die ganze Familie bietet – ...
539.000 €
Kaufpreis
152,17 m²
Wohnfläche
7
Zimmer
20
Zweifamilienhaus in idyllischer Lage! | Hochwertig ...
Haus
04509 Schönwölkau
Bei diesem außergewöhnlichen Angebot handelt es sich um ein idyllisches Zweifamilienhaus in dem aktuell beide Wohnungen zur Verfügung stehen: - EG, 160 m², eigene Terrasse & Garten (ca. 300 m²), Kaltmiete 1.568€ - 1. ...
2.940 €
Kaltmiete
300 m²
Wohnfläche
8
Zimmer
14
Wie im eigenen Haus | Garten, Terrasse & Stellplatz | ...
Wohnung
04509 Schönwölkau
Diese außergewöhnlich großzügige Erdgeschosswohnung mit ca. 160 m² Wohnfläche befindet sich in einem Zweifamilienhaus und bietet ein Wohngefühl, das dem eines eigenen Hauses sehr nahekommt. Durch die Lage im ...
1.568 €
Kaltmiete
160 m²
Wohnfläche
4
Zimmer
14
Traumhaft helle Wohnung mit eigenem Garten | ...
Wohnung
04509 Schönwölkau
Diese bezugsfreie Wohnung im 1. Obergeschoss überzeugt mit einer großzügigen Wohnfläche von ca. 140 m², einem durchdachten Grundriss sowie einer hochwertigen und energieeffizienten Ausstattung. Die Immobilie bietet ...
1.372 €
Kaltmiete
140 m²
Wohnfläche
4
Zimmer