Praxisfläche / Schulung EG teilbar ab 160qm Ludwigsburg
3.550 €
Kaltmiete (netto)
immobilien.de Nr.: 9478206
Objektnummer: 62214
Dateien
Mietpreis & Nebenkosten
| Kaltmiete (netto) | 3.550 € |
| Nebenkosten | Keine Angabe |
| Maklerprovision | keine Provision, courtagefrei |
Wohnfläche, Grundstück & Bausubstanz
| Gesamtfläche | 1.050 m² |
| Bürofläche | 355 m² |
| Baujahr | 1990 |
| Verfügbar ab | 01.04.2026 |
| Zustand | Gepflegt |
Energie
| Energieausweistyp | Verbrauch |
| Heizungsart | Zentralheizung |
| Energieträger/Befeuerung | Gas |
Beschreibung der Immobilie
Teilbare Praxis- oder Gewerbefläche im Erdgeschoss in Ludwigsburg, ab 160qm.
Diese großzügige und flexibel nutzbare Erdgeschossfläche bietet ideale Voraussetzungen für eine Praxis, ein Gesundheitszentrum, Schulungsräume oder einen repräsentativen Showroom.
Die ruhige Lage, die sehr gute Verkehrsanbindung sowie vorhandene Parkplätze machen die Flächen besonders attraktiv für Unternehmen mit Kunden- oder Mitarbeiterverkehr.
Eine langfristig planbare Anmietung ist ab 01.04.2026 möglich.
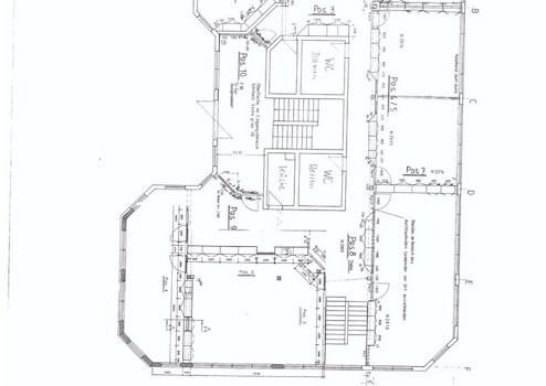
Vermietet wird die komplette Erdgeschossfläche eines gepflegten, repräsentativen Gewerbegebäudes in Ludwigsburg-Pflugfelden. Die Einheit umfasst 8 separate Räume, einen großzügigen Aufenthaltsbereich mit Kaffeebar, eine Teeküche sowie getrennte Damen- und Herren-WCs.
Der bestehende Grundriss eignet sich hervorragend für strukturierte Nutzungen mit mehreren Behandlungs-, Schulungs- oder Arbeitsräumen.
Die Fläche ist grundsätzlich teilbar, sodass auch eine Nutzung durch zwei Mieter denkbar ist. Die Sanitärbereiche können dabei gemeinschaftlich genutzt werden.
Zusätzlich ist ein Lagerraum im Untergeschoss des Gebäudes verfügbar.
Bis zu 6 Pkw Stellplätze direkt am Gebäude können angemietet werden.
Diese großzügige und flexibel nutzbare Erdgeschossfläche bietet ideale Voraussetzungen für eine Praxis, ein Gesundheitszentrum, Schulungsräume oder einen repräsentativen Showroom.
Die ruhige Lage, die sehr gute Verkehrsanbindung sowie vorhandene Parkplätze machen die Flächen besonders attraktiv für Unternehmen mit Kunden- oder Mitarbeiterverkehr.
Eine langfristig planbare Anmietung ist ab 01.04.2026 möglich.
Vermietet wird die komplette Erdgeschossfläche eines gepflegten, repräsentativen Gewerbegebäudes in Ludwigsburg-Pflugfelden. Die Einheit umfasst 8 separate Räume, einen großzügigen Aufenthaltsbereich mit Kaffeebar, eine Teeküche sowie getrennte Damen- und Herren-WCs.
Der bestehende Grundriss eignet sich hervorragend für strukturierte Nutzungen mit mehreren Behandlungs-, Schulungs- oder Arbeitsräumen.
Die Fläche ist grundsätzlich teilbar, sodass auch eine Nutzung durch zwei Mieter denkbar ist. Die Sanitärbereiche können dabei gemeinschaftlich genutzt werden.
Zusätzlich ist ein Lagerraum im Untergeschoss des Gebäudes verfügbar.
Bis zu 6 Pkw Stellplätze direkt am Gebäude können angemietet werden.
Ausstattungsmerkmale
| Anzahl der Etagen im Haus | 2 |
| Inserat befindet sich im Stockwerk | 0 |
| Boden | Fliesen, Teppich, Kunststoff |
| Keller |
Keller, Teppichboden, Fliesen
Bemerkungen:
• Erdgeschoss - barrierearm nutzbar
• flexible Raumstruktur (mehrere Einzelräume)
• Glasfaseranschluss & IT-Verkabelung vorhanden
• elektrische Jalousien, helle Räume
• Stellplätze direkt am Gebäude anmietbar
• ruhige Stichstraße ohne Durchgangsverkehr
• sehr gute Anbindung an A81 (LB-Süd, ca. 2 Minuten)
Bemerkungen:
• Erdgeschoss - barrierearm nutzbar
• flexible Raumstruktur (mehrere Einzelräume)
• Glasfaseranschluss & IT-Verkabelung vorhanden
• elektrische Jalousien, helle Räume
• Stellplätze direkt am Gebäude anmietbar
• ruhige Stichstraße ohne Durchgangsverkehr
• sehr gute Anbindung an A81 (LB-Süd, ca. 2 Minuten)
Sonstige Informationen
Heizungsart: Zentralheizung
Energieträger: Gas
Geeignet für Praxis / Therapie / Gesundheitszentrum - Gemeinschaftspraxis -Schulung / Bildung / Coaching / Beratung / Showroom mit Büroanteil
ohne-makler (OM) ist weder Anbieter noch Vermittler der Immobilie. OM betreibt eine Plattform für Immobilieneigentümer, die unter anderem die gleichzeitige Veröffentlichung einzelner Inserate auf mehreren Immobilienportalen ermöglicht. Die Inhalte dieser Inserate werden ausschließlich von Dritten verantwortet. Für die Richtigkeit, Vollständigkeit oder Rechtmäßigkeit der Angaben übernimmt OM keine Haftung. Hinweise auf mögliche Rechtsverstöße können jederzeit gemeldet werden und werden nach Prüfung umgehend bearbeitet.
Energieträger: Gas
Geeignet für Praxis / Therapie / Gesundheitszentrum - Gemeinschaftspraxis -Schulung / Bildung / Coaching / Beratung / Showroom mit Büroanteil
ohne-makler (OM) ist weder Anbieter noch Vermittler der Immobilie. OM betreibt eine Plattform für Immobilieneigentümer, die unter anderem die gleichzeitige Veröffentlichung einzelner Inserate auf mehreren Immobilienportalen ermöglicht. Die Inhalte dieser Inserate werden ausschließlich von Dritten verantwortet. Für die Richtigkeit, Vollständigkeit oder Rechtmäßigkeit der Angaben übernimmt OM keine Haftung. Hinweise auf mögliche Rechtsverstöße können jederzeit gemeldet werden und werden nach Prüfung umgehend bearbeitet.
Karte wird geladen...
Objektstandort
71640 Ludwigsburg
- Baden-Württemberg
Lage & Infrastruktur
Objektstandort
71640 Ludwigsburg
- Baden-Württemberg
kleines Gewerbe- Mischgebiet im Ludwigsburger Stadtteill Pflugfelden, die Nachbarn sind Handwerker und Dienstleistungsunternehmen. Die Zufahrt ist eine Stichstrasse mit Wendekreis, daher gibt es keinen Durchgangsverkehr.
Kurze Wege zur Stadtmitte, ca. 1km zur BAB A81 Heilbronn, Stuttgart
Entfernung zu Discounter, Bäcker, Metzger, Apotheke, Baumarkt ca. 500 Meter
Bushaltestelle ca. 300 Meter entfernt
Fahrtzeit:
Stadtmitte Ludwigsburg 5 Minuten
BAB Ausfahrt Ludwigsburg-Süd 2 Minuten
Infrastruktur (im Umkreis von 5 km):
Apotheke, Lebensmittel-Discount, Allgemeinmediziner, Kindergarten, Grundschule, Hauptschule, Öffentliche Verkehrsmittel
Kurze Wege zur Stadtmitte, ca. 1km zur BAB A81 Heilbronn, Stuttgart
Entfernung zu Discounter, Bäcker, Metzger, Apotheke, Baumarkt ca. 500 Meter
Bushaltestelle ca. 300 Meter entfernt
Fahrtzeit:
Stadtmitte Ludwigsburg 5 Minuten
BAB Ausfahrt Ludwigsburg-Süd 2 Minuten
Infrastruktur (im Umkreis von 5 km):
Apotheke, Lebensmittel-Discount, Allgemeinmediziner, Kindergarten, Grundschule, Hauptschule, Öffentliche Verkehrsmittel
Kontaktanfrage senden
Kontakt
| Telefon | 0176 66653115 |
| Fax | - |
| Website | www.ohne-makler.net |
Ansprechpartner/in
Angebot von Manfred Linsenmaier