Großes Gewerbegrundstück mit Hallen und Büro
3.050 €
Kaltmiete (netto)
immobilien.de Nr.: 9472911
Objektnummer: 407019
Mietpreis & Nebenkosten
| Kaltmiete (netto) | 3.050 € |
| Nebenkosten | 360 € |
| Maklerprovision | keine Provision, courtagefrei |
| Kaution | 10.869 € |
Wohnfläche, Grundstück & Bausubstanz
| Gesamtfläche | 495 m² |
| Grundstücksfläche | 1.450 m² |
| Verfügbar ab | sofort |
| Zustand | Teil Vollrenovierungsbed |
Beschreibung der Immobilie
Gewerbeobjekt mit vielseitigem Nutzungspotenzial in Eberswalde zu vermieten oder langfristig zu verpachten
Grundstücksfläche: ca. 1.500 m²
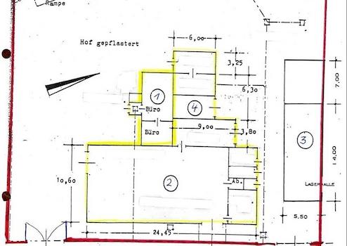
Gebäudenutzung: Mehrzweckgebäude mit Lagerräumen, Werkstatt, Büro und weiteren Nebengelassen.
Zum Verkauf steht ein großzügiges Gewerbegrundstück in attraktiver Lage von Eberswalde. Das Objekt umfasst ein vielseitig nutzbares Mehrzweckgebäude mit verschiedenen Räumlichkeiten für Lager, Werkstatt und Büroflächen sowie zwei offene Unterstellschuppen.
Besonderheiten:
- Erschlossen mit Anschlüssen für Wasser, Abwasser, Strom, Gas und Telefon
- Lage in einer gemischten Baufläche gemäß Flächennutzungsplan
Dieses Gewerbeobjekt bietet optimale Bedingungen für vielfältige Nutzungsmöglichkeiten, sei es als Lager-, Produktions- oder Verwaltungsstandort. Auch die Einrichtung einer Kfz-Werkstatt bzw. eines Kfz-Servicebetriebes ist vorstellbar.
Das Objekt ist derzeit nur durch eine Ofenheizung beheizt (Büroräume). Heizungsleitungen und Gasanschluss sind im Gebäude vorhanden.
Grundstücksfläche: ca. 1.500 m²
Gebäudenutzung: Mehrzweckgebäude mit Lagerräumen, Werkstatt, Büro und weiteren Nebengelassen.
Zum Verkauf steht ein großzügiges Gewerbegrundstück in attraktiver Lage von Eberswalde. Das Objekt umfasst ein vielseitig nutzbares Mehrzweckgebäude mit verschiedenen Räumlichkeiten für Lager, Werkstatt und Büroflächen sowie zwei offene Unterstellschuppen.
Besonderheiten:
- Erschlossen mit Anschlüssen für Wasser, Abwasser, Strom, Gas und Telefon
- Lage in einer gemischten Baufläche gemäß Flächennutzungsplan
Dieses Gewerbeobjekt bietet optimale Bedingungen für vielfältige Nutzungsmöglichkeiten, sei es als Lager-, Produktions- oder Verwaltungsstandort. Auch die Einrichtung einer Kfz-Werkstatt bzw. eines Kfz-Servicebetriebes ist vorstellbar.
Das Objekt ist derzeit nur durch eine Ofenheizung beheizt (Büroräume). Heizungsleitungen und Gasanschluss sind im Gebäude vorhanden.
Ausstattungsmerkmale
| Anzahl der Etagen im Haus | 1 |
| Inserat befindet sich im Stockwerk | 0 |
| Bad | Dusche |
| Boden | Fliesen, Laminat |
Duschbad, Gäste-WC, Kamin, Laminat, Fliesen, Sonstiges (s. Text)
Bemerkungen:
Hauptgebäude (Mehrzweckgebäude)
- Bauweise: Massives Gebäude mit zwei Vollgeschossen
- Dach: Flaches Satteldach mit Bitumeneindeckung
- Außenwände: Mauerwerk mit verputzter Fassade
- Fenster: Einfachverglaste Fenster, teils modernisierungsbedürftig
- Zugang: Mehrere separate Zugänge für verschiedene Nutzungen
Werkstatt- und Lagerbereiche
- Böden: Teilweise massive Betonböden, belastbar für schwere Lasten
- Decken: Holzbalkendecken, teilweise abgehängt
- Zugang: Breite Tore für Anlieferung, Zufahrt für Transportfahrzeuge möglich
- Stromversorgung: Industrie-Stromanschluss vorhanden
- Lichtverhältnisse: Großzügige Fensterflächen für natürliches Licht
Büroräume
- Böden: PVC- oder Fliesenbeläge
- Heizung: Anschlüsse für Gas-Zentralheizung mit Warmwasserbereitung vorhanden
- Sanitäreinrichtungen: Innenliegendes WC für Mitarbeiter
Offene Unterstellschuppen
- Dach: Pultdach mit Bitumeneindeckung
- Nutzung: Ideal für Lagerung von Maschinen, Fahrzeugen oder Materialien
- Boden: Teilweise befestigt mit Betonplatten
Außenanlagen:
- Einfahrt: Große, befestigte Zufahrt für LKW und Transporter
- Stellplätze: Mehrere Parkmöglichkeiten auf dem Gelände
- Umzäunung: Grundstück ist vollständig eingefriedet
Bemerkungen:
Hauptgebäude (Mehrzweckgebäude)
- Bauweise: Massives Gebäude mit zwei Vollgeschossen
- Dach: Flaches Satteldach mit Bitumeneindeckung
- Außenwände: Mauerwerk mit verputzter Fassade
- Fenster: Einfachverglaste Fenster, teils modernisierungsbedürftig
- Zugang: Mehrere separate Zugänge für verschiedene Nutzungen
Werkstatt- und Lagerbereiche
- Böden: Teilweise massive Betonböden, belastbar für schwere Lasten
- Decken: Holzbalkendecken, teilweise abgehängt
- Zugang: Breite Tore für Anlieferung, Zufahrt für Transportfahrzeuge möglich
- Stromversorgung: Industrie-Stromanschluss vorhanden
- Lichtverhältnisse: Großzügige Fensterflächen für natürliches Licht
Büroräume
- Böden: PVC- oder Fliesenbeläge
- Heizung: Anschlüsse für Gas-Zentralheizung mit Warmwasserbereitung vorhanden
- Sanitäreinrichtungen: Innenliegendes WC für Mitarbeiter
Offene Unterstellschuppen
- Dach: Pultdach mit Bitumeneindeckung
- Nutzung: Ideal für Lagerung von Maschinen, Fahrzeugen oder Materialien
- Boden: Teilweise befestigt mit Betonplatten
Außenanlagen:
- Einfahrt: Große, befestigte Zufahrt für LKW und Transporter
- Stellplätze: Mehrere Parkmöglichkeiten auf dem Gelände
- Umzäunung: Grundstück ist vollständig eingefriedet
Sonstige Informationen
Heizungsart: Sonstiges (s. Text)
Energieausweis nicht vorhanden
Es werden nur Anfragen beantwortet, die folgende Informationen enthalten:
- Vollständigen Namen und Anschrift
- E-Mail und Telefonnummer
- Beabsichtigte Nutzung
Der Verkauf erfolgt ohne Makler direkt vom Eigentümer.
Zwischenverkauf und Irrtümer ausdrücklich vorbehalten.
ohne-makler (OM) ist weder Anbieter noch Vermittler der Immobilie. OM betreibt eine Plattform für Immobilieneigentümer, die unter anderem die gleichzeitige Veröffentlichung einzelner Inserate auf mehreren Immobilienportalen ermöglicht. Die Inhalte dieser Inserate werden ausschließlich von Dritten verantwortet. Für die Richtigkeit, Vollständigkeit oder Rechtmäßigkeit der Angaben übernimmt OM keine Haftung. Hinweise auf mögliche Rechtsverstöße können jederzeit gemeldet werden und werden nach Prüfung umgehend bearbeitet.
Energieausweis nicht vorhanden
Es werden nur Anfragen beantwortet, die folgende Informationen enthalten:
- Vollständigen Namen und Anschrift
- E-Mail und Telefonnummer
- Beabsichtigte Nutzung
Der Verkauf erfolgt ohne Makler direkt vom Eigentümer.
Zwischenverkauf und Irrtümer ausdrücklich vorbehalten.
ohne-makler (OM) ist weder Anbieter noch Vermittler der Immobilie. OM betreibt eine Plattform für Immobilieneigentümer, die unter anderem die gleichzeitige Veröffentlichung einzelner Inserate auf mehreren Immobilienportalen ermöglicht. Die Inhalte dieser Inserate werden ausschließlich von Dritten verantwortet. Für die Richtigkeit, Vollständigkeit oder Rechtmäßigkeit der Angaben übernimmt OM keine Haftung. Hinweise auf mögliche Rechtsverstöße können jederzeit gemeldet werden und werden nach Prüfung umgehend bearbeitet.
Karte wird geladen...
Objektstandort
16227 Eberswalde
- Brandenburg
Lage & Infrastruktur
Objektstandort
16227 Eberswalde
- Brandenburg
- Zentrale Anbindung an die B167 (ca. 160 m entfernt)
- Ca. 1 km nördlich des Stadtzentrums Eberswalde
- Ca. 9 km zur A11 (Anschlussstelle Finowfurt)
- Ca. 950 m zum Bahnhof Eberswalde mit ICE-, RE- und RB-Verbindungen
- Regionale Busverbindungen in ca. 220 m Entfernung
Infrastruktur (im Umkreis von 5 km):
Lebensmittel-Discount, Allgemeinmediziner, Kindergarten, Grundschule, Hauptschule, Realschule, Gymnasium, Gesamtschule, Öffentliche Verkehrsmittel
- Ca. 1 km nördlich des Stadtzentrums Eberswalde
- Ca. 9 km zur A11 (Anschlussstelle Finowfurt)
- Ca. 950 m zum Bahnhof Eberswalde mit ICE-, RE- und RB-Verbindungen
- Regionale Busverbindungen in ca. 220 m Entfernung
Infrastruktur (im Umkreis von 5 km):
Lebensmittel-Discount, Allgemeinmediziner, Kindergarten, Grundschule, Hauptschule, Realschule, Gymnasium, Gesamtschule, Öffentliche Verkehrsmittel