1 a City Lage, Nähe Gänsemarkt, Alster, Neuer Wall usw.; tlw. mit Dachterrasse, provisionsfrei
immobilien.de Nr.: 9466192
Objektnummer: 21661
Mietpreis & Nebenkosten
| Kaltmiete | 0 € |
| Nebenkosten | Keine Angabe |
| Mietpreis pro m² | 21 € |
Wohnfläche, Grundstück & Bausubstanz
| Bürofläche | 188,35 m² |
| Fläche teilbar ab | 45,66 m² |
| Baujahr | 1911 |
| Verfügbar ab | nach Vereinbarung |
| Zustand | Gepflegt |
Energie
| Heizungsart | Zentralheizung |
Beschreibung der Immobilie
Das im Jahr 1911 errichtete Bürogebäude besticht durch seinen bestens gepflegten und in großen Teilen noch im Ursprungszustand erhaltenen Ausstattungsdetails im Treppenhaus. Ergänzend wurden zwei Personenaufzüge integriert.
Mietflächen und Preise:
2.OG ca. 187,03 m² für € 21,--
4.OG ca. 45,66 m² für € 25,--
6.OG ca. 188,35 m² für € 21,--
Die Preise verstehen sich pro m², monatlich, netto, kalt.
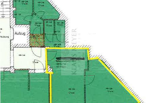
Die aktuelle Raumaufteilung entnehmen Sie bitte dem beiliegenden Grundrissen.
Die Fläche im 6.OG verfügt neben der großen Dachterrasse über ein Duschbad sowie eine neue Einbauküche.
Die Aufzüge enden im 5. OG.
Mietflächen und Preise:
2.OG ca. 187,03 m² für € 21,--
4.OG ca. 45,66 m² für € 25,--
6.OG ca. 188,35 m² für € 21,--
Die Preise verstehen sich pro m², monatlich, netto, kalt.
Die aktuelle Raumaufteilung entnehmen Sie bitte dem beiliegenden Grundrissen.
Die Fläche im 6.OG verfügt neben der großen Dachterrasse über ein Duschbad sowie eine neue Einbauküche.
Die Aufzüge enden im 5. OG.
Ausstattungsmerkmale
| Inserat befindet sich im Stockwerk | 6 |
| Fahrstuhl |
- Personenaufzüge
- Echtholz-Parkett im 6.OG
- neue Einbauküche im 6.OG
- neues Bad mit Dusche im 6.OG
- EDV-Verkabelung kann übernommen werden
- Echtholz-Parkett im 6.OG
- neue Einbauküche im 6.OG
- neues Bad mit Dusche im 6.OG
- EDV-Verkabelung kann übernommen werden
Sonstige Informationen
Die Provisionsfreiheit dieser Vermietung setzt einen Mietvertragsabschluss mit einer Mindest-Vertragslaufzeit von 5 Jahren voraus. Für den Fall der kurzfristigeren Vertragslaufzeit wird dem Mieter eine Courtage in Höhe von 3,57 Brutto-Monatsmieten inkl. 19% Umsatzsteuer berechnet.
Alle Preise verstehen sich zzgl. 19% Umsatzsteuer. Irrtum, Änderungen und Zwischenvermietung bleiben ausdrücklich vorbehalten.
Datenschutzhinweise Kontaktformular:
Mit dem Kontaktformular können Sie an uns eine Anfrage zu den Immobilien richten. Die von Ihnen eingegebenen Daten werden über unseren Providerservice per E-Mail an uns weitergeleitet. Die im Rahmen dieser Anfrage erhobenen personenbezogenen Daten werden nur zur Vertragsanbahnung und Bearbeitung Ihrer Anfragen genutzt und danach umgehend, spätestens nach 60 Tage der Erhebung, gelöscht
Wir verarbeiten personenbezogene Daten im Einklang mit den Bestimmungen der Europäischen Datenschutz-Grundverordnung (DS-GVO) und dem Bundesdatenschutzgesetz (BDSG).
Verantwortlicher für den Datenschutz von Klaus Meyer Immobilien: Herr Klaus Meyer, Marmstorfer Weg 52, 21077 Hamburg - E-Mail: info@klausmeyerimmobilien.de.
IHR FLÄCHENGESUCH:
Sie haben noch nicht das passende Objekt gefunden? Bitte füllen Sie alle notwendigen Kontaktdaten von Ihnen in der Anfrage aus, sodass wir diese schnellstmöglich bearbeiten können.
Wir freuen uns aber auch auf Ihren Anruf um gemeinschaftlich Ihr Anforderungsprofil im Detail aufzunehmen. Sicherlich finden wir auch IHR Wunschobjekt!
Alle Preise verstehen sich zzgl. 19% Umsatzsteuer. Irrtum, Änderungen und Zwischenvermietung bleiben ausdrücklich vorbehalten.
Datenschutzhinweise Kontaktformular:
Mit dem Kontaktformular können Sie an uns eine Anfrage zu den Immobilien richten. Die von Ihnen eingegebenen Daten werden über unseren Providerservice per E-Mail an uns weitergeleitet. Die im Rahmen dieser Anfrage erhobenen personenbezogenen Daten werden nur zur Vertragsanbahnung und Bearbeitung Ihrer Anfragen genutzt und danach umgehend, spätestens nach 60 Tage der Erhebung, gelöscht
Wir verarbeiten personenbezogene Daten im Einklang mit den Bestimmungen der Europäischen Datenschutz-Grundverordnung (DS-GVO) und dem Bundesdatenschutzgesetz (BDSG).
Verantwortlicher für den Datenschutz von Klaus Meyer Immobilien: Herr Klaus Meyer, Marmstorfer Weg 52, 21077 Hamburg - E-Mail: info@klausmeyerimmobilien.de.
IHR FLÄCHENGESUCH:
Sie haben noch nicht das passende Objekt gefunden? Bitte füllen Sie alle notwendigen Kontaktdaten von Ihnen in der Anfrage aus, sodass wir diese schnellstmöglich bearbeiten können.
Wir freuen uns aber auch auf Ihren Anruf um gemeinschaftlich Ihr Anforderungsprofil im Detail aufzunehmen. Sicherlich finden wir auch IHR Wunschobjekt!
Karte wird geladen...
Objektstandort
20354 Hamburg
Lage & Infrastruktur
Objektstandort
20354 Hamburg
Sehr zentrale, repräsentative Lage am Gänsemarkt, neben dem Hanse-Viertel.
Die U / S-Bahn Station ist nur 2-3 Minute entfernt.
Zahlreiche Einkaufsmöglichkeiten, Restaurants und Parkhäuser findet man in unmittelbarer Umgebung.
Kfz-Stellplätze können u.a. auch in dem Hanse Viertel und umliegenden Parkhäusern und Garagen angemietet werden.
Die U / S-Bahn Station ist nur 2-3 Minute entfernt.
Zahlreiche Einkaufsmöglichkeiten, Restaurants und Parkhäuser findet man in unmittelbarer Umgebung.
Kfz-Stellplätze können u.a. auch in dem Hanse Viertel und umliegenden Parkhäusern und Garagen angemietet werden.
Kontaktanfrage senden
Über den Anbieter
Klaus Meyer Immobilien
Marmstorfer Weg 52
21077 Hamburg
Kontakt
| Telefon | 0049407607071 |
| Mobil | 00491724356060 |
| Website | www.klausmeyerimmobilien.de |
Ansprechpartner/in
Herr Klaus Meyer