Sofort verfügbar - Großes, teilklimatisiertes Büro auf über 360m² in ruhiger Lage von Moers-Kapellen
3.106,5 €
Kaltmiete (netto)
3.856,5 €
Warmmiete
immobilien.de Nr.: 9465565
Objektnummer: 26AL006BP
Mietpreis & Nebenkosten
| Kaltmiete | 0 € |
| Kaltmiete (netto) | 3.106,5 € |
| Warmmiete | 3.856,5 € |
| Nebenkosten | 750 € |
| Mietpreis pro m² | 9,5 € |
| Kaution | 10.000 € |
| Stellplatz Freiplatz Miete} | 0 € |
Wohnfläche, Grundstück & Bausubstanz
| Gesamtfläche | 327 m² |
| Bürofläche | 327 m² |
| Baujahr | 1965 |
| Verfügbar ab | keine Angabe |
| Zustand | Gepflegt |
Energie
| Energieausweistyp | Bedarfsausweis |
| Gültig bis | 2035-10-19 |
| Baujahr (laut Energieausweis) | 2001 |
| Endenergiebedarf | 129.20 |
| Heizungsart | Zentralheizung |
| Wesentlicher Energieträger | Gas |
| Energieträger/Befeuerung | Gas |
Beschreibung der Immobilie
Willkommen in Ihrem neuen Büro in Moers-Kapellen.
Diese Immobilie überzeugt durch ihre vielseitige Aufteilung mit vielen Büroräumen vom Einzel- bis großen Besprechungsraum und die ruhige aber verkehrsgünstige Lage. Ideal für Unternehmen, die nach einer professionellen und gleichzeitig einladenden Arbeitsumgebung suchen.
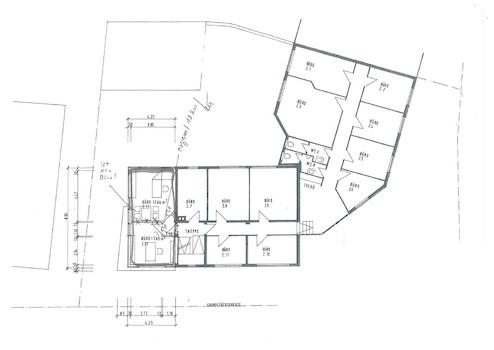
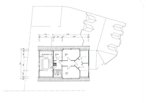
Die Mietfläche ist auf drei Etagen aufgeteilt - Im Erdgeschoss zwei Büros, bzw. Empfangs oder Besprechungsräume für Kundentermine. Im 1. Obergeschoss verschiedene 1-2 Personen Büros und zwei große Räume sowie Küchenbereich und WCs. Im 2. Obergeschoss befindet sich ein weiterer großer Besprechungsraum sowie 2 Doppelbüros und 2 Einzelbüros. Im Keller befinden sich zwei sehr große und ein kleiner Archivraum.
Das Büro bietet alle gängigen Austattungsdetails, wie Datenverkabelung über Wand oder Bodentanks, Serverraum, getrennte WC Anlagen für Damen und Herren, Klimaanlagen in den oberen Räumen und viel Platz für Akten.
Vor dem Haus sind 2-3 Stellplätze verfügbar. Das Parken auf den öffentlichen Straßen ist hier zudem sehr einfach möglich.
Die Immobilie ist kurzfristig verfügbar!
Diese Immobilie überzeugt durch ihre vielseitige Aufteilung mit vielen Büroräumen vom Einzel- bis großen Besprechungsraum und die ruhige aber verkehrsgünstige Lage. Ideal für Unternehmen, die nach einer professionellen und gleichzeitig einladenden Arbeitsumgebung suchen.
Die Mietfläche ist auf drei Etagen aufgeteilt - Im Erdgeschoss zwei Büros, bzw. Empfangs oder Besprechungsräume für Kundentermine. Im 1. Obergeschoss verschiedene 1-2 Personen Büros und zwei große Räume sowie Küchenbereich und WCs. Im 2. Obergeschoss befindet sich ein weiterer großer Besprechungsraum sowie 2 Doppelbüros und 2 Einzelbüros. Im Keller befinden sich zwei sehr große und ein kleiner Archivraum.
Das Büro bietet alle gängigen Austattungsdetails, wie Datenverkabelung über Wand oder Bodentanks, Serverraum, getrennte WC Anlagen für Damen und Herren, Klimaanlagen in den oberen Räumen und viel Platz für Akten.
Vor dem Haus sind 2-3 Stellplätze verfügbar. Das Parken auf den öffentlichen Straßen ist hier zudem sehr einfach möglich.
Die Immobilie ist kurzfristig verfügbar!
Ausstattungsmerkmale
| Boden | Fliesen, Teppich |
| Keller |
- Böden: derzeit Fliesen, Teppich (muss ausgetauscht werden)
- Archiv: 2 große und ein kleiner Keller sorgen für viel Platz!
- Funktionale Raumaufteilung: optimale Nutzung der Bürofläche für verschiedene Arbeitsanforderungen
- Bis zu 3 Konferenzräume oder Büros für größere Teams
- Teeküche
- WC getrennt für Damen und Herren
- Glasfaser Anschluss im Haus verfügbar
- Wallbox vor dem Büro
- Klimaanlage in der obersten Etage
- Archiv: 2 große und ein kleiner Keller sorgen für viel Platz!
- Funktionale Raumaufteilung: optimale Nutzung der Bürofläche für verschiedene Arbeitsanforderungen
- Bis zu 3 Konferenzräume oder Büros für größere Teams
- Teeküche
- WC getrennt für Damen und Herren
- Glasfaser Anschluss im Haus verfügbar
- Wallbox vor dem Büro
- Klimaanlage in der obersten Etage
Sonstige Informationen
Selektive - Ihr Mehrwertmakler
Als besonderen Service bieten wir für Kaufinteressenten individuelle und unabhängige Finanzierungsberatungen an. Aus einer Vielzahl von Kreditgebern suchen wir für Sie das günstigste Angebot heraus und stellen Ihnen ein persönliches Konzept zusammen. Unsere Beratung ist für Sie selbstverständlich gebührenfrei.
Sie sind bereits Eigentümer einer Immobilie? Wir beraten Sie gerne und unverbindlich über Ihre Möglichkeiten. Ein Immobilienwertgutachten nach § 194 BauGB kann für Sie von unserem zertifizierten Gutachter erstellt werden. Besuchen Sie unsere Homepage www.selektive.de oder wenden Sie sich gleich an Ihren Immobilienprofi unter der Tel. 02841 88 99 60.
Als erstes etabliertes Maklerbüro am Niederrhein konnten wir den Qualitätsnachweis für IVD- Immobilienmakler und Hausverwalter die Verbandszertifizierung in Anlehnung an die DIN ISO 9000 ff erlangen. Seit 1994 sind wir Ihr verantwortungsbewusster Partner in Immobilienfragen.
Alle Angaben zum Objekt erfolgen im Namen unseres Auftraggebers und dienen einer ersten Information. Für die Richtigkeit und Vollständigkeit wird keine Haftung übernommen.
Als besonderen Service bieten wir für Kaufinteressenten individuelle und unabhängige Finanzierungsberatungen an. Aus einer Vielzahl von Kreditgebern suchen wir für Sie das günstigste Angebot heraus und stellen Ihnen ein persönliches Konzept zusammen. Unsere Beratung ist für Sie selbstverständlich gebührenfrei.
Sie sind bereits Eigentümer einer Immobilie? Wir beraten Sie gerne und unverbindlich über Ihre Möglichkeiten. Ein Immobilienwertgutachten nach § 194 BauGB kann für Sie von unserem zertifizierten Gutachter erstellt werden. Besuchen Sie unsere Homepage www.selektive.de oder wenden Sie sich gleich an Ihren Immobilienprofi unter der Tel. 02841 88 99 60.
Als erstes etabliertes Maklerbüro am Niederrhein konnten wir den Qualitätsnachweis für IVD- Immobilienmakler und Hausverwalter die Verbandszertifizierung in Anlehnung an die DIN ISO 9000 ff erlangen. Seit 1994 sind wir Ihr verantwortungsbewusster Partner in Immobilienfragen.
Alle Angaben zum Objekt erfolgen im Namen unseres Auftraggebers und dienen einer ersten Information. Für die Richtigkeit und Vollständigkeit wird keine Haftung übernommen.
Karte wird geladen...
Objektstandort
47447 Moers
- Nordrhein-Westfalen
Lage & Infrastruktur
Objektstandort
47447 Moers
- Nordrhein-Westfalen
Die Gewerbeeinheit liegt im sehr gut erreichbaren Moerser Stadtteil Kapellen und profitiert von einer zentralen, gut erreichbaren Lage.
Das Umfeld ist durch eine Mischung aus Wohn- und Geschäftsnutzung geprägt und bietet ein ruhiges und attraktives Umfeld für ein Büro. Einrichtungen des täglichen Bedarfs wie Einkaufsmöglichkeiten, Banken und Dienstleister sind in wenigen Minuten erreichbar.
Die Verkehrsanbindung ist hervorragend: Das nahegelegene Autobahn Kreuz Moers ermöglicht Ihnen schnell auf die A40 und A57 zu gelangen.
Auch mit dem öffentlichen Nahverkehr ist der Standort optimal angebunden – Bus- und Bahnhaltestellen befinden sich in fußläufiger Entfernung und bieten direkte Verbindungen in die Moerser Innenstadt und die umliegenden Städte.
Die Kombination aus optimaler Erreichbarkeit und ruhiger Lage macht diesen Standort besonders attraktiv für Bürobetriebe und Dienstleister.
Das Umfeld ist durch eine Mischung aus Wohn- und Geschäftsnutzung geprägt und bietet ein ruhiges und attraktives Umfeld für ein Büro. Einrichtungen des täglichen Bedarfs wie Einkaufsmöglichkeiten, Banken und Dienstleister sind in wenigen Minuten erreichbar.
Die Verkehrsanbindung ist hervorragend: Das nahegelegene Autobahn Kreuz Moers ermöglicht Ihnen schnell auf die A40 und A57 zu gelangen.
Auch mit dem öffentlichen Nahverkehr ist der Standort optimal angebunden – Bus- und Bahnhaltestellen befinden sich in fußläufiger Entfernung und bieten direkte Verbindungen in die Moerser Innenstadt und die umliegenden Städte.
Die Kombination aus optimaler Erreichbarkeit und ruhiger Lage macht diesen Standort besonders attraktiv für Bürobetriebe und Dienstleister.
Kontaktanfrage senden
Über den Anbieter
Selektive Immobilien Service GmbH
Unterwallstr. 12
47441 Moers
Kontakt
| Telefon | 004928418899615 |
| Mobil | 004915144006691 |
| Fax | 004928418899610 |
| Website | www.selektive.de |
Ansprechpartner/in
Herr Alexander Lindenmann MSc. Business&Management Geschäftsführer
Weitere Angebote des Anbieters
39
Rarität! Besonders große DHH mit moderner Einbauküche, ...
Haus
47239 Duisburg
Ein wundervolles, modernisiertes Haus für die Familie mit zwei Kindern und Home-Office-Bedarf! Diese Doppelhaushälfte steht in einem ruhigen und begehrten Wohngebiet von Duisburg Rumeln-Kaldenhausen (Ortsteil ...
485.000 €
Kaufpreis
178,28 m²
Wohnfläche
5
Zimmer
39
Geräumige Doppelhaushälfte mit Carport, Balkon und ...
Haus
47506 Neukirchen-Vluyn
Willkommen in dieser gepflegten Doppelhaushälfte, die mit einer Wohnfläche von ca. 119,63 m² plus ca. 35 m² im nachträglich ausgebauten Dachgeschoss, auf einem sonnigen Grundstück von ca. 310 m² in einer ruhigen ...
448.000 €
Kaufpreis
119,63 m²
Wohnfläche
7,5
Zimmer
8
Duisburg-Zentrum 2,5 Zimmer Wohnung im ruhigen 3 ...
Wohnung
47051 Duisburg
Die hier angebotene 2-Zimmer-Wohnung befindet sich im 3. Obergeschoss eines gepflegten Wohn- und Geschäftshauses aus dem Jahr 1948. Die Wohnung verfügt über eine Wohnfläche von ca. 53 m² und überzeugt durch eine gut ...
370 €
Kaltmiete
53 m²
Wohnfläche
2,5
Zimmer
38
Lage!Lage!Lage! Großzügige Doppelhaushälfte in einer ...
Haus
47445 Moers
Utfort/Top-Lage Eine nicht alltägliche Doppelhaushälfte bieten wir hier an, großzügig aufgeteilt, mit einem besonderen Garten, der unmittelbar an den Moersbach und das Landschaftsschutzgebiet grenzt. Das Grundstück ist ...
469.000 €
Kaufpreis
129 m²
Wohnfläche
5
Zimmer
24
Modernisierte Eigentumswohnung mit Weitblick an der ...
Wohnung
47055 Duisburg
Diese modernisierte Eigentumswohnung befindet sich im 7. Obergeschoss eines gepflegten Mehrfamilienhauses und ist bequem über einen Aufzug erreichbar. Mit einer Wohnfläche von ca. 65,11 m² bietet sie eine durchdachte ...
168.000 €
Kaufpreis
65,11 m²
Wohnfläche
3,5
Zimmer