Gewerbehalle | ca. 273 m² Hallenfläche | ca. 136 m² Hof | Vielfältig nutzbar
325.000 €
Kaufpreis
immobilien.de Nr.: 9463809
Objektnummer: 502454
Kaufpreis
| Kaufpreis | 325.000 € |
| Maklerprovision | 7,14% inkl. Mehrwertsteuer |
Wohnfläche, Grundstück & Bausubstanz
| Gesamtfläche | 272,7 m² |
| Grundstücksfläche | 1.000 m² |
| Verfügbar ab | keine Angabe |
| Zustand | Erstbezug |
Beschreibung der Immobilie
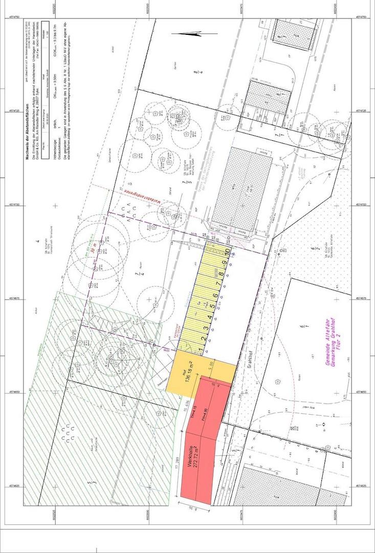
Bei dieser Immobilie handelt es sich um eine funktional geplante, eingeschossige Gewerbe- bzw. Werkhalle, die im Rahmen eines Neubauvorhabens errichtet wird und sich durch eine klare Grundrissstruktur mit integrierten Nebenräumen auszeichnet.
Die Hallenfläche wird ca. 272,7 m² umfassen, überwiegend offen gestaltet sein und eine gute Stell- und Bewegungsfläche für Maschinen, Regale oder Arbeitsplätze bieten.
Im hinteren Hallenbereich ist ein abgetrennter Bürobereich mit vorgesehener WC-Einheit geplant. Dieser Bereich eignet sich ideal für Verwaltung oder Kundenempfang und ermöglicht eine funktionale Trennung von Arbeits- und Büroflächen, ohne zusätzliche Umbauten vornehmen zu müssen.
Die Halle soll über eine Innenhöhe von ca. 4 m verfügen, was auch den Einsatz höherer Regalsysteme oder technischer Einrichtungen erlaubt.
Ein ebenerdiges Hallentor wird eine komfortable Anlieferung sowie Be- und Entladung gewährleisten.
Die Bauausführung wird in massiver Bauweise mit Stahlbetonbodenplatte erfolgen, was eine robuste, langlebige Nutzung ermöglicht.
Vor der Halle ist eine Hoffläche von ca. 136 m² vorgesehen, die sich als Rangier-, Abstell- oder Arbeitsfläche eignet. Die Zufahrt erfolgt direkt von der öffentlichen Verkehrsfläche und bietet eine praktische Andienung auch für Lieferfahrzeuge.
Die Hallenfläche wird ca. 272,7 m² umfassen, überwiegend offen gestaltet sein und eine gute Stell- und Bewegungsfläche für Maschinen, Regale oder Arbeitsplätze bieten.
Im hinteren Hallenbereich ist ein abgetrennter Bürobereich mit vorgesehener WC-Einheit geplant. Dieser Bereich eignet sich ideal für Verwaltung oder Kundenempfang und ermöglicht eine funktionale Trennung von Arbeits- und Büroflächen, ohne zusätzliche Umbauten vornehmen zu müssen.
Die Halle soll über eine Innenhöhe von ca. 4 m verfügen, was auch den Einsatz höherer Regalsysteme oder technischer Einrichtungen erlaubt.
Ein ebenerdiges Hallentor wird eine komfortable Anlieferung sowie Be- und Entladung gewährleisten.
Die Bauausführung wird in massiver Bauweise mit Stahlbetonbodenplatte erfolgen, was eine robuste, langlebige Nutzung ermöglicht.
Vor der Halle ist eine Hoffläche von ca. 136 m² vorgesehen, die sich als Rangier-, Abstell- oder Arbeitsfläche eignet. Die Zufahrt erfolgt direkt von der öffentlichen Verkehrsfläche und bietet eine praktische Andienung auch für Lieferfahrzeuge.
Ausstattungsmerkmale
| Anzahl der Etagen im Haus | 1 |
*Ca. 272,7 m² Hallenfläche
*Hoffläche ca. 136 m²
*Insgesamt ca. 1000 m² Grundstück
*Büro mit WC
*Ebenerdiges Hallentor
*Ca. 4,00 m Hallenhöhe
*Massive Bauweise
*Direkte Zufahrt
*Flexible Nutzung
*Hoffläche ca. 136 m²
*Insgesamt ca. 1000 m² Grundstück
*Büro mit WC
*Ebenerdiges Hallentor
*Ca. 4,00 m Hallenhöhe
*Massive Bauweise
*Direkte Zufahrt
*Flexible Nutzung
Sonstige Informationen
Hinweis zur Richtigkeit und Vollständigkeit der Angaben:
Der Makler weist darauf hin, dass die von ihm weitergegebenen Objektinformationen vom Verkäufer bzw. von einem vom Verkäufer beauftragten Dritten stammen und von ihm, dem Makler, auf ihre Richtigkeit nicht überprüft worden sind. Es ist Sache des Kunden, diese Angaben auf ihre Richtigkeit hin zu überprüfen. Der Makler, der diese Informationen nur weitergibt, übernimmt für die Richtigkeit keinerlei Haftung.
Der Makler weist darauf hin, dass die von ihm weitergegebenen Objektinformationen vom Verkäufer bzw. von einem vom Verkäufer beauftragten Dritten stammen und von ihm, dem Makler, auf ihre Richtigkeit nicht überprüft worden sind. Es ist Sache des Kunden, diese Angaben auf ihre Richtigkeit hin zu überprüfen. Der Makler, der diese Informationen nur weitergibt, übernimmt für die Richtigkeit keinerlei Haftung.
Karte wird geladen...
Objektstandort
Grahlhof
Lage & Infrastruktur
Objektstandort
Grahlhof
Die Immobilie wird in Altefähr, Ortsteil Grahlhof, auf der Insel Rügen erbaut. Die Lage ist ländlich und gewerblich geprägt und bietet eine ruhige Umgebung mit guter Erreichbarkeit. Altefähr verfügt über eine direkte Fährverbindung nach Stralsund, wodurch eine schnelle Anbindung an das Festland gewährleistet ist. Die Insel Rügen ist über die Rügenbrücke sowie den Rügendamm gut an das überregionale Verkehrsnetz angebunden.
Kontaktanfrage senden
Über den Anbieter
Willuhn Immobilien e. K.
Scherlstraße 12
04103 Leipzig
Kontakt
| Telefon | 01632664472 |
| Fax | 0341 25327329 |
| Website | www.vvv-leipzig-immobilien.de |
Ansprechpartner/in
Sabine Willuhn