Repräsentatives Gewerbeobjekt für Büro, Atelier, Studio, Praxis etc.
1.190 €
Kaltmiete (netto)
immobilien.de Nr.: 9461034
Objektnummer: 236814
Mietpreis & Nebenkosten
| Kaltmiete (netto) | 1.190 € |
| Nebenkosten | 250 € |
| Maklerprovision | keine Provision, courtagefrei |
| Kaution | 3.570 € |
Wohnfläche, Grundstück & Bausubstanz
| Gesamtfläche | 100 m² |
| Bürofläche | 100 m² |
| Baujahr | 1991 |
| Verfügbar ab | sofort |
| Zustand | Teil Vollsaniert |
Energie
| Energieausweistyp | Verbrauch |
| Heizungsart | Zentralheizung |
| Energieträger/Befeuerung | Gas |
Beschreibung der Immobilie
Die Firsträume mit Loft-Charakter haben einen 360-Grad-Blick über Wiesen, Felder und Gelting. Sie wurden 2022 saniert und befinden sich auf dem Dach (3. Stock) eines reinen Gewerbegebäudes. BITTE BEACHTEN: Das Gebäude hat keinen Lift. KEINE Vermietung an reine Privatpersonen oder Reseller oder gewerbliche Kurzzeit/Untervermieter. Ein Gewerbe als Nebentätigkeit ist möglich.
Die Räume können kurzfristig bezogen werden!
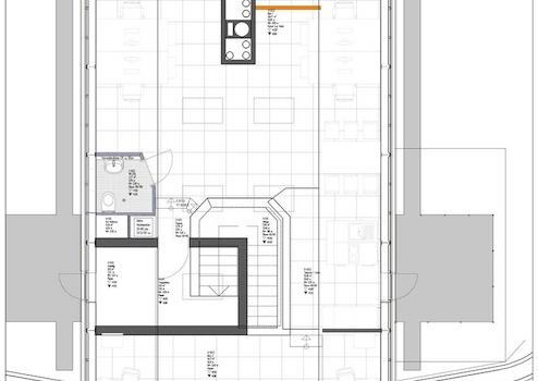
Die gut 100 Quadratmeter Fläche (Dachschrägen nach Wohnraumverordnung herausgerechnet) teilen sich auf in einen großzügigen, hellen und modernen Hauptraum und einen kleineren Nebenraum. Der Nebenraum könnte bei Bedarf vollständig vom Hauptraum abgetrennt werden, z.B. für einen abgeschlossenen Besprechungsraum.
Im Hauptraum befinden sich eine offene Pantryküche und der Zugang zu einem kleinen Bad mit Toilette, Waschbecken und (Notfall)Dusche. Zum Objekt gehört eine kleine Dachterrasse.
Vielfältige Nutzungsmöglichkeiten sind denkbar, Architektenbüro, Atelier, Büro, Showroom, Praxis, leichtes Gewerbe etc.
Es gibt keine extra ausgewiesenen Stellplätze zum Objekt, jedoch ist zu allen Tageszeiten ausreichend Parkraum entlang der Straße vorhanden.
Die Räume können kurzfristig bezogen werden!
Die gut 100 Quadratmeter Fläche (Dachschrägen nach Wohnraumverordnung herausgerechnet) teilen sich auf in einen großzügigen, hellen und modernen Hauptraum und einen kleineren Nebenraum. Der Nebenraum könnte bei Bedarf vollständig vom Hauptraum abgetrennt werden, z.B. für einen abgeschlossenen Besprechungsraum.
Im Hauptraum befinden sich eine offene Pantryküche und der Zugang zu einem kleinen Bad mit Toilette, Waschbecken und (Notfall)Dusche. Zum Objekt gehört eine kleine Dachterrasse.
Vielfältige Nutzungsmöglichkeiten sind denkbar, Architektenbüro, Atelier, Büro, Showroom, Praxis, leichtes Gewerbe etc.
Es gibt keine extra ausgewiesenen Stellplätze zum Objekt, jedoch ist zu allen Tageszeiten ausreichend Parkraum entlang der Straße vorhanden.
Ausstattungsmerkmale
| Inserat befindet sich im Stockwerk | 3 |
| Küche | Einbauküche |
| Bad | Dusche |
| Boden | Fliesen |
| Balkone | 1 |
| Terrassen | 0 |
Dachterrasse, Duschbad, Einbauküche, Gäste-WC, Fliesen
Bemerkungen:
Das sanierte Dach hat eine zeitgemäße Wärmedämmung. Der Energieausweis für das Gesamtobjekt liegt vor.
Dach, Fußböden, kleines Bad mit WC und Duschbereich, funktionaler Küchenbereich (Pantry) sind saniert. Weitere allgemein zugängliche Toiletten befinden sich ein Stockwerk tiefer.
DV Verkabelung vorhanden.
Die Dachfenster mitsamt Jalousien und die Jalousien an der Südfassade sind per Fernsteuerung individuell einstellbar.
Bemerkungen:
Das sanierte Dach hat eine zeitgemäße Wärmedämmung. Der Energieausweis für das Gesamtobjekt liegt vor.
Dach, Fußböden, kleines Bad mit WC und Duschbereich, funktionaler Küchenbereich (Pantry) sind saniert. Weitere allgemein zugängliche Toiletten befinden sich ein Stockwerk tiefer.
DV Verkabelung vorhanden.
Die Dachfenster mitsamt Jalousien und die Jalousien an der Südfassade sind per Fernsteuerung individuell einstellbar.
Sonstige Informationen
Heizungsart: Zentralheizung
Energieträger: Gas
Mietpreis, Nebenkosten und Kaution verstehen sich zuzüglich der gesetzlichen Mehrwertsteuer; Vermietung ausschließlich an Gewerbetreibende oder Selbstständige.
Die Nebenkosten sind geschätzt.
Makleranfragen nicht erwünscht. Nach § 7 UWG sind unaufgeforderte Kontaktaufnahmen durch Makler ohne ausdrückliche Einwilligung des Empfängers verboten!
ohne-makler (OM) ist weder Anbieter noch Vermittler der Immobilie. OM betreibt eine Plattform für Immobilieneigentümer, die unter anderem die gleichzeitige Veröffentlichung einzelner Inserate auf mehreren Immobilienportalen ermöglicht. Die Inhalte dieser Inserate werden ausschließlich von Dritten verantwortet. Für die Richtigkeit, Vollständigkeit oder Rechtmäßigkeit der Angaben übernimmt OM keine Haftung. Hinweise auf mögliche Rechtsverstöße können jederzeit gemeldet werden und werden nach Prüfung umgehend bearbeitet.
Energieträger: Gas
Mietpreis, Nebenkosten und Kaution verstehen sich zuzüglich der gesetzlichen Mehrwertsteuer; Vermietung ausschließlich an Gewerbetreibende oder Selbstständige.
Die Nebenkosten sind geschätzt.
Makleranfragen nicht erwünscht. Nach § 7 UWG sind unaufgeforderte Kontaktaufnahmen durch Makler ohne ausdrückliche Einwilligung des Empfängers verboten!
ohne-makler (OM) ist weder Anbieter noch Vermittler der Immobilie. OM betreibt eine Plattform für Immobilieneigentümer, die unter anderem die gleichzeitige Veröffentlichung einzelner Inserate auf mehreren Immobilienportalen ermöglicht. Die Inhalte dieser Inserate werden ausschließlich von Dritten verantwortet. Für die Richtigkeit, Vollständigkeit oder Rechtmäßigkeit der Angaben übernimmt OM keine Haftung. Hinweise auf mögliche Rechtsverstöße können jederzeit gemeldet werden und werden nach Prüfung umgehend bearbeitet.
Karte wird geladen...
Objektstandort
82538 Geretsried-Gelting
- Bayern
Lage & Infrastruktur
Objektstandort
82538 Geretsried-Gelting
- Bayern
Das Objekt befindet sich in Randlage des Gewerbegebiets Geretsried-Gelting. Es gibt ausreichend kostenfreie Parkplätze entlang der Straße. Zwei kleine Restaurants in fußläufiger Entfernung bieten Mittagstisch an.
Die Anbindung an die Garmischer Autobahn, die S-Bahn nach München bzw. an die Orte Wolfratshausen und Geretsried ist sehr gut.
Infrastruktur (im Umkreis von 5 km):
Apotheke, Lebensmittel-Discount, Allgemeinmediziner, Kindergarten, Grundschule, Gymnasium, Öffentliche Verkehrsmittel
Die Anbindung an die Garmischer Autobahn, die S-Bahn nach München bzw. an die Orte Wolfratshausen und Geretsried ist sehr gut.
Infrastruktur (im Umkreis von 5 km):
Apotheke, Lebensmittel-Discount, Allgemeinmediziner, Kindergarten, Grundschule, Gymnasium, Öffentliche Verkehrsmittel