Klimatisierte Büro-/Praxis-/Gewerbefläche im Erdgeschoss – 215 m² in 97249 Eisingen
2.115 €
Kaltmiete (netto)
immobilien.de Nr.: 9459244
Objektnummer: 427433
Mietpreis & Nebenkosten
| Kaltmiete (netto) | 2.115 € |
| Nebenkosten | 647 € |
| Maklerprovision | keine Provision, courtagefrei |
| Kaution | 6.350 € |
Wohnfläche, Grundstück & Bausubstanz
| Gesamtfläche | 215 m² |
| Bürofläche | 215 m² |
| Verfügbar ab | 01.06.2026 |
| Zustand | Gepflegt |
Energie
| Heizungsart | Zentralheizung |
| Energieträger/Befeuerung | Öl |
Beschreibung der Immobilie
In unserem gepflegten Geschäftshaus in 97249 Eisingen vermieten wir ab dem 01.06.26 eine helle, klimatisierte Gewerbefläche im Erdgeschoss mit einer Gesamtfläche von 215,87 m². Die Fläche wird unmöbliert vermietet.
Eine langfristige Vermietung wird ausdrücklich angestrebt.
Das Gebäude wird von einem mittelständischen, familiär geführten Elektrounternehmen genutzt und bietet ein ruhiges, professionelles Umfeld für Gewerbetreibende.
Die Gewerbefläche eignet sich hervorragend für Büro-, Kanzlei-, Praxis-, Beratungs- oder IT-Nutzungen sowie ähnliche dienstleistungsorientierte Konzepte.
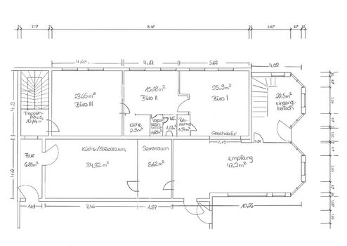
Die Fläche teilt sich wie folgt auf:
•Büro I: 25,90 m²
•Büro II: 15,08 m² (mit integrierter Küchenzeile)
•Büro III: 23,65 m²
•Empfangsbereich: 47,20 m²
•Aufenthalts-/Anwendungsraum oder weitere Bürofläche: 34,32 m²
•Serverraum: 8,62 m²
•WC mit Waschbecken sowie ein separater Putz-/Abstellraum bei Büro I/Büro II
•Zusätzliches WC UG groß: 6,09 m²
•Archiv UG: 25,41 m²
•Gemeinschaftsflächen (Flur, Treppenhaus, Eingang): 29,60m²
Die Räume befinden sich in sehr gepflegtem Zustand, sind lichtdurchflutet und klimatisiert. Ein Grundriss wird zur Anzeige mit eingestellt, die Raumaufteilung ist dort gut erkennbar.
Mietkonditionen:
•Nettokaltmiete: 9,80 € / m²
•Nebenkosten: 3,00 € / m² (inklusive Heizung, zzgl. Strom)
Parkmöglichkeiten:
•Bis zu 5 Stellplätze auf dem Firmengrundstück (zzgl. 30 € pro Stellplatz)
•Optional mit Ladestation für E-Fahrzeuge (zzgl. 35 € pro Stellplatz)
Die Fläche eignet sich ideal für Büro-, Praxis- oder dienstleistungsorientierte Nutzung.
Eine langfristige Vermietung wird ausdrücklich angestrebt.
Das Gebäude wird von einem mittelständischen, familiär geführten Elektrounternehmen genutzt und bietet ein ruhiges, professionelles Umfeld für Gewerbetreibende.
Die Gewerbefläche eignet sich hervorragend für Büro-, Kanzlei-, Praxis-, Beratungs- oder IT-Nutzungen sowie ähnliche dienstleistungsorientierte Konzepte.
Die Fläche teilt sich wie folgt auf:
•Büro I: 25,90 m²
•Büro II: 15,08 m² (mit integrierter Küchenzeile)
•Büro III: 23,65 m²
•Empfangsbereich: 47,20 m²
•Aufenthalts-/Anwendungsraum oder weitere Bürofläche: 34,32 m²
•Serverraum: 8,62 m²
•WC mit Waschbecken sowie ein separater Putz-/Abstellraum bei Büro I/Büro II
•Zusätzliches WC UG groß: 6,09 m²
•Archiv UG: 25,41 m²
•Gemeinschaftsflächen (Flur, Treppenhaus, Eingang): 29,60m²
Die Räume befinden sich in sehr gepflegtem Zustand, sind lichtdurchflutet und klimatisiert. Ein Grundriss wird zur Anzeige mit eingestellt, die Raumaufteilung ist dort gut erkennbar.
Mietkonditionen:
•Nettokaltmiete: 9,80 € / m²
•Nebenkosten: 3,00 € / m² (inklusive Heizung, zzgl. Strom)
Parkmöglichkeiten:
•Bis zu 5 Stellplätze auf dem Firmengrundstück (zzgl. 30 € pro Stellplatz)
•Optional mit Ladestation für E-Fahrzeuge (zzgl. 35 € pro Stellplatz)
Die Fläche eignet sich ideal für Büro-, Praxis- oder dienstleistungsorientierte Nutzung.
Ausstattungsmerkmale
| Küche | Einbauküche |
| Boden | Fliesen, Kunststoff |
| Garten | |
| Keller |
Garten, Keller, Einbauküche, Gäste-WC, Fliesen
Sonstige Informationen
Heizungsart: Zentralheizung
Energieträger: Öl
Energieausweis nicht vorhanden
Makleranfragen nicht erwünscht. Nach § 7 UWG sind unaufgeforderte Kontaktaufnahmen durch Makler ohne ausdrückliche Einwilligung des Empfängers verboten!
ohne-makler (OM) ist weder Anbieter noch Vermittler der Immobilie. OM betreibt eine Plattform für Immobilieneigentümer, die unter anderem die gleichzeitige Veröffentlichung einzelner Inserate auf mehreren Immobilienportalen ermöglicht. Die Inhalte dieser Inserate werden ausschließlich von Dritten verantwortet. Für die Richtigkeit, Vollständigkeit oder Rechtmäßigkeit der Angaben übernimmt OM keine Haftung. Hinweise auf mögliche Rechtsverstöße können jederzeit gemeldet werden und werden nach Prüfung umgehend bearbeitet.
Energieträger: Öl
Energieausweis nicht vorhanden
Makleranfragen nicht erwünscht. Nach § 7 UWG sind unaufgeforderte Kontaktaufnahmen durch Makler ohne ausdrückliche Einwilligung des Empfängers verboten!
ohne-makler (OM) ist weder Anbieter noch Vermittler der Immobilie. OM betreibt eine Plattform für Immobilieneigentümer, die unter anderem die gleichzeitige Veröffentlichung einzelner Inserate auf mehreren Immobilienportalen ermöglicht. Die Inhalte dieser Inserate werden ausschließlich von Dritten verantwortet. Für die Richtigkeit, Vollständigkeit oder Rechtmäßigkeit der Angaben übernimmt OM keine Haftung. Hinweise auf mögliche Rechtsverstöße können jederzeit gemeldet werden und werden nach Prüfung umgehend bearbeitet.
Karte wird geladen...
Objektstandort
97249 Eisingen
- Bayern