Geschäftsgebäude/Gewerbeimmobilie Nürnberger Land an der A9
1.390.000 €
Kaufpreis
immobilien.de Nr.: 9449588
Objektnummer: 425461
Kaufpreis
| Kaufpreis | 1.390.000 € |
| Maklerprovision | keine Provision, courtagefrei |
Wohnfläche, Grundstück & Bausubstanz
| Gesamtfläche | 485 m² |
| Bürofläche | 485 m² |
| Baujahr | 2016 |
| Verfügbar ab | nach Absprache |
| Zustand | Neuwertig |
Energie
| Energieausweistyp | Bedarfsausweis |
| Heizungsart | Fußbodenheizung |
| Energieträger/Befeuerung | Luft-Wärme-Pumpe |
Beschreibung der Immobilie
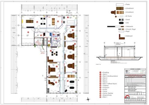
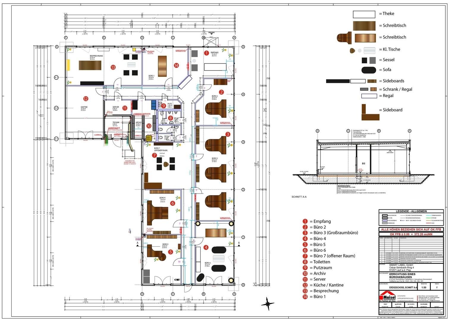
Der moderne, hochwertige Baukörper besticht durch sein ansprechendes Erscheinungsbild sowie seine durchdachte Planung und Ausstattung. Der L-förmige Bau lässt sich bei Bedarf in zwei Einheiten teilen. Die Immobilie ist hochwertig ausgestattet und durch die bodentiefen Fenster lichtdurchflutet. Mithilfe der kompletten Raffstoreanlage kann der Lichteinfall individuell reguliert werden.
Ein Erweiterungsbau mit ca. 300 m² Nutzfläche wäre möglich. Die Sozialräume und Sanitäranlagen sind hochwertig und befinden sich in neuwertigem Zustand. Das Gebäude verfügt über drei Terrassen und liegt in ruhiger Lage mit Grünflächen.
Zudem ist das Grundstück vollständig umzäunt und verfügt über eine Zugangskontrolle bis zum Parkplatz. Beleuchtungsanlage, Datenverkabelung, Alarmanlage mit Kamerasystem und Aufschaltung an den Sicherheitsdienst, Bodenkanäle in Büros und Besprechungsräumen, LED-Innenraumbeleuchtung, Sonos-Mediasystem, elektronische Schließanlage, Serverraum mit Klimaanlage sowie der im gesamten Objekt beheiz- und kühlbare Boden erfüllen höchste Ansprüche.
Die Wände sind bei Bedarf veränderbar, ausgenommen die Brandschutzmauern. Das Gebäude wurde 2016 von der Firma Maisel errichtet.
Ein Erweiterungsbau mit ca. 300 m² Nutzfläche wäre möglich. Die Sozialräume und Sanitäranlagen sind hochwertig und befinden sich in neuwertigem Zustand. Das Gebäude verfügt über drei Terrassen und liegt in ruhiger Lage mit Grünflächen.
Zudem ist das Grundstück vollständig umzäunt und verfügt über eine Zugangskontrolle bis zum Parkplatz. Beleuchtungsanlage, Datenverkabelung, Alarmanlage mit Kamerasystem und Aufschaltung an den Sicherheitsdienst, Bodenkanäle in Büros und Besprechungsräumen, LED-Innenraumbeleuchtung, Sonos-Mediasystem, elektronische Schließanlage, Serverraum mit Klimaanlage sowie der im gesamten Objekt beheiz- und kühlbare Boden erfüllen höchste Ansprüche.
Die Wände sind bei Bedarf veränderbar, ausgenommen die Brandschutzmauern. Das Gebäude wurde 2016 von der Firma Maisel errichtet.
Ausstattungsmerkmale
| Inserat befindet sich im Stockwerk | 0 |
| Küche | Einbauküche |
| Boden | Fliesen, Teppich, Kunststoff |
| Balkone | 0 |
| Garten | |
| Terrassen | 1 |
| Garage/Stellplätze | 1 |
Terrasse, Garten, Einbauküche, Teppichboden, Fliesen
Bemerkungen:
Das Gebäude ist mit hochwertigsten Böden , Türen , Fenstern, Raffstoreanlagen , Sanitäranlagen ,Beleuchtungskörpern ausgestattet. Das Gebäude wurde in Stahlbaukonstruktion mit hochwärmegedämmten Iso-Paneelwänden (12 cm ) errichtet.
Bemerkungen:
Das Gebäude ist mit hochwertigsten Böden , Türen , Fenstern, Raffstoreanlagen , Sanitäranlagen ,Beleuchtungskörpern ausgestattet. Das Gebäude wurde in Stahlbaukonstruktion mit hochwärmegedämmten Iso-Paneelwänden (12 cm ) errichtet.
Sonstige Informationen
Heizungsart: Fußbodenheizung
Energieträger: Luft-/Wasserwärme
Der Gewerbesteuerhebesatz der Gemeinde Simmelsdorf beträgt 310. Die gesamte Grundstücksfläche beträgt 2585 qm, ist vollerschlossen , keine Lasten und Beschränkungen.
Makleranfragen nicht erwünscht. Nach § 7 UWG sind unaufgeforderte Kontaktaufnahmen durch Makler ohne ausdrückliche Einwilligung des Empfängers verboten!
ohne-makler (OM) ist weder Anbieter noch Vermittler der Immobilie. OM betreibt eine Plattform für Immobilieneigentümer, die unter anderem die gleichzeitige Veröffentlichung einzelner Inserate auf mehreren Immobilienportalen ermöglicht. Die Inhalte dieser Inserate werden ausschließlich von Dritten verantwortet. Für die Richtigkeit, Vollständigkeit oder Rechtmäßigkeit der Angaben übernimmt OM keine Haftung. Hinweise auf mögliche Rechtsverstöße können jederzeit gemeldet werden und werden nach Prüfung umgehend bearbeitet.
Energieträger: Luft-/Wasserwärme
Der Gewerbesteuerhebesatz der Gemeinde Simmelsdorf beträgt 310. Die gesamte Grundstücksfläche beträgt 2585 qm, ist vollerschlossen , keine Lasten und Beschränkungen.
Makleranfragen nicht erwünscht. Nach § 7 UWG sind unaufgeforderte Kontaktaufnahmen durch Makler ohne ausdrückliche Einwilligung des Empfängers verboten!
ohne-makler (OM) ist weder Anbieter noch Vermittler der Immobilie. OM betreibt eine Plattform für Immobilieneigentümer, die unter anderem die gleichzeitige Veröffentlichung einzelner Inserate auf mehreren Immobilienportalen ermöglicht. Die Inhalte dieser Inserate werden ausschließlich von Dritten verantwortet. Für die Richtigkeit, Vollständigkeit oder Rechtmäßigkeit der Angaben übernimmt OM keine Haftung. Hinweise auf mögliche Rechtsverstöße können jederzeit gemeldet werden und werden nach Prüfung umgehend bearbeitet.
Karte wird geladen...
Objektstandort
Bartäcker 6
91245 Simmelsdorf
- Bayern
Lage & Infrastruktur
Objektstandort
Bartäcker 6
91245 Simmelsdorf
- Bayern
Das Objekt liegt östlich von Schnaittach und ist ideal an die Autobahn A 9 angebunden. (Ausfahrt Schnaittach) Die Lage des Grundstücks liegt ideal eingebunden in Metropolregion Nürnberg. Die Fahrtzeit nach Nürnberg, Neumarkt, Bayreuth, Schwabach, Erlangen liegt zwischen 30 und 35 Minuten.
Kontaktanfrage senden
Kontakt
| Telefon | - |
| Fax | - |
| Website | www.ohne-makler.net |
Ansprechpartner/in
Angebot von Stephan Neuerburg