Büro zwischen Altona und Hafen, provisionsfrei
immobilien.de Nr.: 9397075
Objektnummer: 21344
Preise & Kosten
| Kaltmiete | 0 € |
| Nebenkosten | keine Angabe |
| Mietpreis pro m² | 19 € |
Größe & Zustand
| Bürofläche | 694 m² |
| Fläche teilbar ab | 559 m² |
| Baujahr | 2013 |
| Verfügbar ab | nach Vereinbarung |
Energie
| Energieausweistyp | Verbrauch |
| Gültig bis | 2034-11-14 |
| Baujahr (laut Energieausweis) | 2013 |
| Heizungsart | Zentralheizung |
| Wesentlicher Energieträger | Kwk Fossil |
Objektbeschreibung
Flächen und Preise:
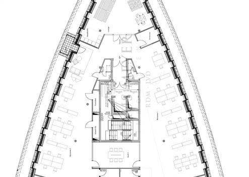
Ebene 5:
- ganze Etage (außer eine Teilfläche (Grundr. links)
- siehe beigefügten Grundriss
- Balkon / Austritt
- ca. 694 m²
Ebene 3:
- halbe Etage mit Einzel- und auch Gemeinschafts-Toiletten
- siehe untere Hälfte auf Grundriss (Großraum mit 2 abgeschlossenen Räume)
- ca. 559 m²
- nur steuerpflichtige Umsätze
Investitionen für Um- oder Ausbauten müssen über die Laufzeit auf die Grundmiete aufgeschlagen werden.
Die endgültige Miethöhe richtet sich nach den, vom Vermieter zu leistenden Umbauten, Mietbeginn und Vertragslaufzeit.
Die angegebenen Preise verstehen sich pro m², monatlich, netto, kalt.
Ebene 5:
- ganze Etage (außer eine Teilfläche (Grundr. links)
- siehe beigefügten Grundriss
- Balkon / Austritt
- ca. 694 m²
Ebene 3:
- halbe Etage mit Einzel- und auch Gemeinschafts-Toiletten
- siehe untere Hälfte auf Grundriss (Großraum mit 2 abgeschlossenen Räume)
- ca. 559 m²
- nur steuerpflichtige Umsätze
Investitionen für Um- oder Ausbauten müssen über die Laufzeit auf die Grundmiete aufgeschlagen werden.
Die endgültige Miethöhe richtet sich nach den, vom Vermieter zu leistenden Umbauten, Mietbeginn und Vertragslaufzeit.
Die angegebenen Preise verstehen sich pro m², monatlich, netto, kalt.
Ausstattung
| Küche | Einbauküche |
| Boden | Doppelboden |
| Balkone | 1 |
| Fahrstuhl |
- Elbnähe
- markantes, modernes Gebäude
- Klimatisierung z.B. der Serverräume möglich
- getrennte Sanitäranlagen
- öffenbare Fenster
- Personenaufzug
- Akustikdecken
- tlw. Glaselemente
- Raumaufteilung kann Ihren Wünschen angepasst werden
- Loggia / Austritt
- hauseigene Tiefgarage
- markantes, modernes Gebäude
- Klimatisierung z.B. der Serverräume möglich
- getrennte Sanitäranlagen
- öffenbare Fenster
- Personenaufzug
- Akustikdecken
- tlw. Glaselemente
- Raumaufteilung kann Ihren Wünschen angepasst werden
- Loggia / Austritt
- hauseigene Tiefgarage
Sonstige Informationen
Die Provisionsfreiheit dieser Vermietung setzt einen Mietvertragsabschluss mit einer Mindest-Vertragslaufzeit von 5 Jahren voraus.
Für den Fall der kurzfristigeren Vertragslaufzeit wird dem Mieter eine Courtage in Höhe von 3,57 Brutto-Monatsmieten inkl. 19% Umsatzsteuer berechnet.
Alle Preise verstehen sich zzgl. 19% Umsatzsteuer.
Irrtum, Änderungen und Zwischenvermietung bleiben ausdrücklich vorbehalten.
Datenschutzhinweise Kontaktformular:
Mit dem Kontaktformular können Sie an uns eine Anfrage zu den Immobilien richten. Die von Ihnen eingegebenen Daten werden über unseren Providerservice per E-Mail an uns weitergeleitet. Die im Rahmen dieser Anfrage erhobenen personenbezogenen Daten werden nur zur Vertragsanbahnung und Bearbeitung Ihrer Anfragen genutzt und danach umgehend, spätestens nach 60 Tage der Erhebung, gelöscht.
Wir verarbeiten personenbezogene Daten im Einklang mit den Bestimmungen der Europäischen Datenschutz-Grundverordnung (DS-GVO) und dem Bundesdatenschutzgesetz (BDSG).
Verantwortlicher für den Datenschutz von Klaus Meyer Immobilien: Herr Klaus Meyer, Marmstorfer Weg 52, 21077 Hamburg - E-Mail: info@klausmeyerimmobilien.de
IHR FLÄCHENGESUCH:
Sie haben noch nicht das passende Objekt gefunden? Bitte füllen Sie alle notwendigen Kontaktdaten von Ihnen in der Anfrage aus, sodass wir diese schnellstmöglich bearbeiten können.
Wir freuen uns aber auch auf Ihren Anruf, um gemeinschaftlich Ihr Anforderungsprofil im Detail aufzunehmen. Sicherlich finden wir auch IHR Wunschobjekt!
Für den Fall der kurzfristigeren Vertragslaufzeit wird dem Mieter eine Courtage in Höhe von 3,57 Brutto-Monatsmieten inkl. 19% Umsatzsteuer berechnet.
Alle Preise verstehen sich zzgl. 19% Umsatzsteuer.
Irrtum, Änderungen und Zwischenvermietung bleiben ausdrücklich vorbehalten.
Datenschutzhinweise Kontaktformular:
Mit dem Kontaktformular können Sie an uns eine Anfrage zu den Immobilien richten. Die von Ihnen eingegebenen Daten werden über unseren Providerservice per E-Mail an uns weitergeleitet. Die im Rahmen dieser Anfrage erhobenen personenbezogenen Daten werden nur zur Vertragsanbahnung und Bearbeitung Ihrer Anfragen genutzt und danach umgehend, spätestens nach 60 Tage der Erhebung, gelöscht.
Wir verarbeiten personenbezogene Daten im Einklang mit den Bestimmungen der Europäischen Datenschutz-Grundverordnung (DS-GVO) und dem Bundesdatenschutzgesetz (BDSG).
Verantwortlicher für den Datenschutz von Klaus Meyer Immobilien: Herr Klaus Meyer, Marmstorfer Weg 52, 21077 Hamburg - E-Mail: info@klausmeyerimmobilien.de
IHR FLÄCHENGESUCH:
Sie haben noch nicht das passende Objekt gefunden? Bitte füllen Sie alle notwendigen Kontaktdaten von Ihnen in der Anfrage aus, sodass wir diese schnellstmöglich bearbeiten können.
Wir freuen uns aber auch auf Ihren Anruf, um gemeinschaftlich Ihr Anforderungsprofil im Detail aufzunehmen. Sicherlich finden wir auch IHR Wunschobjekt!
Lage des Objektes
Lage zwischen dem Hamburger Fischmarkt und Altona und St. Pauli. Die S-Bahnstation "Königstraße" und der Bus befinden sich im direkten Umfeld. Geschäfte des täglichen Bedarfs, Restaurants, Ärzte etc. sind fußläufig gut zu erreichen.
tl.w. mit Blick auf die "Tanzenden Türme" und Weitblick nach Norden.
tl.w. mit Blick auf die "Tanzenden Türme" und Weitblick nach Norden.
Anbieter kontaktieren
Kontakt
| Telefon | 0049407607071 |
| Mobil | 00491724356060 |
| Website | www.klausmeyerimmobilien.de |
