Gewerbehalle 6900 Qm mit Büro und Senitär, 128 Stellplätze seperate Bürogebäude 420 Qm zu verkaufen
immobilien.de Nr.: 9396392
Objektnummer: 311320
Dateien
Preise & Kosten
| Kaufpreis | Auf Anfrage |
| Nebenkosten | keine Angabe |
| Maklerprovision | keine Provision, courtagefrei |
Größe & Zustand
| Gesamtfläche | 7.405 m² |
| Grundstücksfläche | 15.649 m² |
| Baujahr | 2014 |
| Verfügbar ab | nach Absprache |
| Zustand | Gepflegt |
Energie
| Energieausweistyp | Bedarfsausweis |
| Heizungsart | Zentralheizung |
| Energieträger/Befeuerung | Gas |
Objektbeschreibung
360°-Rundgang: https://www.ohne-makler.net/panorama/311320/
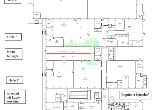
Das moderne Objekt verfügt über 4 Hallen für Produktion und Lager sowie Büro- und Laborräume. Ein weiteres Verwaltungsgebäude (Ziegeleistr.) wird als Büro mit Werkstattfläche genutzt.
In Skelettbauweise wurden die Hallenflächen mit Flachdächern und robusten Tragwerken gebaut. Die Hallenflächen 2 bis 4 haben ihre eigenen Rolltore und Laderampe.
Die Verkleidung der Hallenfassade besteht aus Blechelementen. Das zweigeschossige Verwaltungsgebäude wurde mit Satteldächern und 2 Sektionaltoren errichtet, die Fassade ist verputzt und gestrichen. Der repräsentative Eingangsbereich mit Besucherempfang besitzt eine Verbindungstür, die zu einem Besprechungsraum mit Faltwänden (Halle 1) führt. Ausstattungsdetails wie eine außenliegender Sonnenschutz, IT-Verkabelung und ausreichende Beleuchtung ermöglichen ein modernes und entspanntes Arbeitsumfeld. Seitenfenster sowie Dachfenster sorgen für ausreichend Tageslicht.
Das Objekt ist modern und zeitgmäß mit Technik ausgestattet z.B. elektrische Festerverdunkelung,Schließanlage, Serverraum sowie Sicherungskästen und mögliche Chipzugänge.
Des weiteren sind die Hallen und die Werkstattbereiche bestens für z.B. Entwicklung, Erprobung, Montage und Fertigung von Bauteilen ausgelegt. Das Objekt verfügt über einen eigenen, gepflasterten Parkplatz mit ausreichend Stellplätze für PKW´s und Fahrrädern. Ebenso sind Ladestationen für Elektroautos, die sogenannten Wallboxen vorhanden.
Das moderne Objekt verfügt über 4 Hallen für Produktion und Lager sowie Büro- und Laborräume. Ein weiteres Verwaltungsgebäude (Ziegeleistr.) wird als Büro mit Werkstattfläche genutzt.
In Skelettbauweise wurden die Hallenflächen mit Flachdächern und robusten Tragwerken gebaut. Die Hallenflächen 2 bis 4 haben ihre eigenen Rolltore und Laderampe.
Die Verkleidung der Hallenfassade besteht aus Blechelementen. Das zweigeschossige Verwaltungsgebäude wurde mit Satteldächern und 2 Sektionaltoren errichtet, die Fassade ist verputzt und gestrichen. Der repräsentative Eingangsbereich mit Besucherempfang besitzt eine Verbindungstür, die zu einem Besprechungsraum mit Faltwänden (Halle 1) führt. Ausstattungsdetails wie eine außenliegender Sonnenschutz, IT-Verkabelung und ausreichende Beleuchtung ermöglichen ein modernes und entspanntes Arbeitsumfeld. Seitenfenster sowie Dachfenster sorgen für ausreichend Tageslicht.
Das Objekt ist modern und zeitgmäß mit Technik ausgestattet z.B. elektrische Festerverdunkelung,Schließanlage, Serverraum sowie Sicherungskästen und mögliche Chipzugänge.
Des weiteren sind die Hallen und die Werkstattbereiche bestens für z.B. Entwicklung, Erprobung, Montage und Fertigung von Bauteilen ausgelegt. Das Objekt verfügt über einen eigenen, gepflasterten Parkplatz mit ausreichend Stellplätze für PKW´s und Fahrrädern. Ebenso sind Ladestationen für Elektroautos, die sogenannten Wallboxen vorhanden.
Ausstattung
| Bad | Dusche |
Duschbad, Gäste-WC, Sonstiges (s. Text)
Bemerkungen:
-Repräsentativer Haupteingang
-ca. 80 qm Konferenzbereich
-942 qm Büro-, Fortbildung- und Kantinenfläche
-Grundstücksfläche: 15.649 qm
----Halle 1 Büro/ Umkleide/ Geschäftsküche inkl. Küchenmobilar mit Essbereich ca. 522 qm
----Halle 1 Prüflabor/ Produktion/ Lackierei mit Absaugung ca. 928 qm
-Gesamtfläche vakant ca. 6.900 qm
-Seitenfenster mit Isolierverglasung sowie Lichtkuppel
-Trennung der Hallen durch Wände und Rolltore
-Lüftungsanlage mit Wärmerückgewinnung
-Umkleiden sowie WC und Duschen
-Brandmelder/ Alarmanlage/ Zugangskontrolle
-Begrünter Innenhof mit Sitzmöglichkeiten mit seperaten Raucherbereich
-Kleinteillagerraum bis 7,77m Deckenhöhe mit Systemansteuerungsmöglichkeit
-Deckenhöhe 4,50 Meter am Wandanschluss, 4,74m am First
-Versand sowie Wareneingangskontrolle in Halle 2
-Sauberraum zwischen Halle 3 und 4
----Halle 4 wurde in 2 Bereiche aufgeteilt
-3 Rolltore mit 1,0-1,2m Laderampenhöhe (Halle 2-4)
-Eigene Trafoanlage auch dem Grundstück
-Großes Parkplatzangebot für PKW/ Fahrräder/ Ladestationen für Elektroautos, die sogenannten Wallboxen
-Bedarfsausweis Halle 4 ( liegt vor) Energieausweis (liegt vor)
-Inventarübernahme nach Absprache
-2 ebenerdige Sektionaltore (Verwaltungsgebäude)
-Heizung neu 2014
-Bedarfsausweis Halle 4 ( liegt vor) Energieausweis (liegt vor)
-Photovoltaikanlage nach Absprache
Bemerkungen:
-Repräsentativer Haupteingang
-ca. 80 qm Konferenzbereich
-942 qm Büro-, Fortbildung- und Kantinenfläche
-Grundstücksfläche: 15.649 qm
----Halle 1 Büro/ Umkleide/ Geschäftsküche inkl. Küchenmobilar mit Essbereich ca. 522 qm
----Halle 1 Prüflabor/ Produktion/ Lackierei mit Absaugung ca. 928 qm
-Gesamtfläche vakant ca. 6.900 qm
-Seitenfenster mit Isolierverglasung sowie Lichtkuppel
-Trennung der Hallen durch Wände und Rolltore
-Lüftungsanlage mit Wärmerückgewinnung
-Umkleiden sowie WC und Duschen
-Brandmelder/ Alarmanlage/ Zugangskontrolle
-Begrünter Innenhof mit Sitzmöglichkeiten mit seperaten Raucherbereich
-Kleinteillagerraum bis 7,77m Deckenhöhe mit Systemansteuerungsmöglichkeit
-Deckenhöhe 4,50 Meter am Wandanschluss, 4,74m am First
-Versand sowie Wareneingangskontrolle in Halle 2
-Sauberraum zwischen Halle 3 und 4
----Halle 4 wurde in 2 Bereiche aufgeteilt
-3 Rolltore mit 1,0-1,2m Laderampenhöhe (Halle 2-4)
-Eigene Trafoanlage auch dem Grundstück
-Großes Parkplatzangebot für PKW/ Fahrräder/ Ladestationen für Elektroautos, die sogenannten Wallboxen
-Bedarfsausweis Halle 4 ( liegt vor) Energieausweis (liegt vor)
-Inventarübernahme nach Absprache
-2 ebenerdige Sektionaltore (Verwaltungsgebäude)
-Heizung neu 2014
-Bedarfsausweis Halle 4 ( liegt vor) Energieausweis (liegt vor)
-Photovoltaikanlage nach Absprache
Sonstige Informationen
Heizungsart: Zentralheizung
Energieträger: Gas
Energieausweis Verwaltungsgebäude:
-Ausweistyp: Verbrauchsausweis
-Baujahr: 2000
Energieausweis Halle 4:
-Ausweistyp: Bedarfsausweis
-Baujahr: 2013
Maklerprovision von 1%
ohne-makler (OM) ist weder Anbieter noch Vermittler der Immobilie. OM betreibt eine Plattform für Immobilieneigentümer, die unter anderem die gleichzeitige Veröffentlichung einzelner Inserate auf mehreren Immobilienportalen ermöglicht. Die Inhalte dieser Inserate werden ausschließlich von Dritten verantwortet. Für die Richtigkeit, Vollständigkeit oder Rechtmäßigkeit der Angaben übernimmt OM keine Haftung. Hinweise auf mögliche Rechtsverstöße können jederzeit gemeldet werden und werden nach Prüfung umgehend bearbeitet.
Energieträger: Gas
Energieausweis Verwaltungsgebäude:
-Ausweistyp: Verbrauchsausweis
-Baujahr: 2000
Energieausweis Halle 4:
-Ausweistyp: Bedarfsausweis
-Baujahr: 2013
Maklerprovision von 1%
ohne-makler (OM) ist weder Anbieter noch Vermittler der Immobilie. OM betreibt eine Plattform für Immobilieneigentümer, die unter anderem die gleichzeitige Veröffentlichung einzelner Inserate auf mehreren Immobilienportalen ermöglicht. Die Inhalte dieser Inserate werden ausschließlich von Dritten verantwortet. Für die Richtigkeit, Vollständigkeit oder Rechtmäßigkeit der Angaben übernimmt OM keine Haftung. Hinweise auf mögliche Rechtsverstöße können jederzeit gemeldet werden und werden nach Prüfung umgehend bearbeitet.
Lage des Objektes
Das Objekt befindet sich in 84149 Velden
Bayern gilt als eines der wirtschaftlich und wissenschaftlich fortschrittlichsten Bundesländer. Auch die Marktgemeinde Velden, ca. 60 Kilometer von München entfernt gelegen und Schnittpunkt der Landkreise Landshut, Erding und Mühldorf am Inn, versteht sich als Industrie- und Gewerbegebiet Bayerns. So befinden sich dort auch eine Auswahl an Restaurants und Geschäften es täglichen Bedarfs, die in wenigen Minuten Fahrt erreicht werden können. Der unkomplizierte Anschluss an die Land- und Bundesstraße sowie der Autobahn München ermöglichen kurze Wegestrecken zu den umliegenden Städten oder auch den Flughafen München (35km).
Verkehrsanbindung:
-Bushaltestelle Velden (Vils) in 350 m Entfernung
-Bahnhof Vilsbiburg in 16 km Entfernung (RB44,RB45)
-B388 in 2,5 km Entfernung
-ca. 20 Min. Fahrzeit bis zur Autobahn A94
-ca. 15 Min. Fahrzeit nach Vilsbiburg
-ca. 35 Min. Fahrzeit nach Landshut sowie Moosburg und Mühldorf am Inn
-ca. 40 Min. Fahrzeit zum Flughafen München sowie den Münchner Messegelände
Infrastruktur (im Umkreis von 5 km):
Öffentliche Verkehrsmittel
Bayern gilt als eines der wirtschaftlich und wissenschaftlich fortschrittlichsten Bundesländer. Auch die Marktgemeinde Velden, ca. 60 Kilometer von München entfernt gelegen und Schnittpunkt der Landkreise Landshut, Erding und Mühldorf am Inn, versteht sich als Industrie- und Gewerbegebiet Bayerns. So befinden sich dort auch eine Auswahl an Restaurants und Geschäften es täglichen Bedarfs, die in wenigen Minuten Fahrt erreicht werden können. Der unkomplizierte Anschluss an die Land- und Bundesstraße sowie der Autobahn München ermöglichen kurze Wegestrecken zu den umliegenden Städten oder auch den Flughafen München (35km).
Verkehrsanbindung:
-Bushaltestelle Velden (Vils) in 350 m Entfernung
-Bahnhof Vilsbiburg in 16 km Entfernung (RB44,RB45)
-B388 in 2,5 km Entfernung
-ca. 20 Min. Fahrzeit bis zur Autobahn A94
-ca. 15 Min. Fahrzeit nach Vilsbiburg
-ca. 35 Min. Fahrzeit nach Landshut sowie Moosburg und Mühldorf am Inn
-ca. 40 Min. Fahrzeit zum Flughafen München sowie den Münchner Messegelände
Infrastruktur (im Umkreis von 5 km):
Öffentliche Verkehrsmittel
Anbieter kontaktieren
Kontakt
| Telefon | - |
| Fax | - |
| Website | www.ohne-makler.net |
