Zentrale Werkstatt inkl. Hebebühnen, Lagerfläche sowie moderner und möblierter Annahmefläche/ 670 m²
5.900 €
Kaltmiete (netto)
immobilien.de Nr.: 9383640
Objektnummer: 382221
Preise & Kosten
| Kaltmiete (netto) | 5.900 € |
| Nebenkosten | 1500 € |
| Maklerprovision | keine Provision, courtagefrei |
Größe & Zustand
| Gesamtfläche | 670 m² |
| Verfügbar ab | 01.10.2025 |
| Zustand | Gepflegt |
Energie
| Energieausweistyp | Verbrauch |
Objektbeschreibung
Vermietet wird eine ca. 275 m² große Werkstatt inklusive 188 m² Lagerfläche, sowie 42 m² Sozialräume und 167 m² großer moderner, lichtdurchfluteter und möblierter Annahmefläche im Gewerbegebiet von Achern.
Highlights:
•Optisch ansprechend: Ein modernes und gut gepflegtes Gebäude, welches durch raumhohe Verglasung optisch heraussticht und viel Tageslicht bietet.
•Möblierung: Sorgenfrei einziehen - Hochwertige Ausstattung: Sechs Hebebühnen, Reifenmontier- und Wuchtmaschine, Lagerregale und Lagerarbeitsplätze, Achsmessgerät, Tresor, Counter mit drei Arbeitsplätzen, Einbauschränke, TV sowie Küchenzeile, Möbel Aufenthaltsraum und Couch im Mietpreis inbegriffen.
•Klimaanlage: Das Gebäude ist mit einer modernen Klimaanlage ausgestattet.
•Sicherheitsausstattung: Videoüberwachung auf dem gesamten Außenanlagen-Gelände vorhanden.
•Energieversorgung: Eine Photovoltaikanlage wird in Kürze installiert, um Ihre Stromkosten zu senken.
•Verkehrsanbindung: Sehr gute Anbindung an das Verkehrsnetz – in nur fünf Fahrminuten erreichen Sie die Autobahn Richtung Karlsruhe / Basel.
•Zentrumsnähe: Kurze Wege ins Stadtzentrum von Achern – alles, was Sie brauchen, ist in der Nähe.
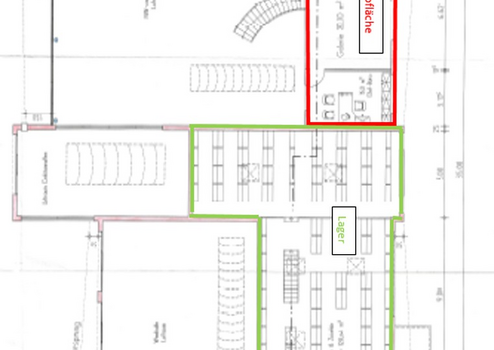
•Erweiterbar um Verkaufsfläche: Angrenzend an die Werkstatt befindet sich eine zusätzliche 220 m² große Büro-und Verkaufsfläche (auf dem Grundriss in rot markiert), welche optional ebenfalls mitvermietet werden kann.
•Flexible Anpassung der Werkstatt: Die Werkstatt ist teilbar und kann auch in kleineren Einheiten angemietet werden.
•Lager-und Annahmefläche: Große Lagerfläche und Annahmefläche mit hochwertigem Service-Counter inklusive. Lagerflächen für Reifen können optional angemietet werden.
Die Werkstatt befindet sich in einem sehr guten Zustand.
Zehn Parkplätze sind bei der Anmietung der gesamten Werkstatt im Mietpreis inbegriffen.
Weitere Stellplätze, sowie Ladesäulen können gegen Aufpreis optional hinzugebucht werden.
Es fällt keine Maklerprovision an.
Für weitere Informationen oder zur Vereinbarung eines Besichtigungstermins kontaktieren Sie uns bitte.
Wir freuen uns auf Ihre Anfrage!
Highlights:
•Optisch ansprechend: Ein modernes und gut gepflegtes Gebäude, welches durch raumhohe Verglasung optisch heraussticht und viel Tageslicht bietet.
•Möblierung: Sorgenfrei einziehen - Hochwertige Ausstattung: Sechs Hebebühnen, Reifenmontier- und Wuchtmaschine, Lagerregale und Lagerarbeitsplätze, Achsmessgerät, Tresor, Counter mit drei Arbeitsplätzen, Einbauschränke, TV sowie Küchenzeile, Möbel Aufenthaltsraum und Couch im Mietpreis inbegriffen.
•Klimaanlage: Das Gebäude ist mit einer modernen Klimaanlage ausgestattet.
•Sicherheitsausstattung: Videoüberwachung auf dem gesamten Außenanlagen-Gelände vorhanden.
•Energieversorgung: Eine Photovoltaikanlage wird in Kürze installiert, um Ihre Stromkosten zu senken.
•Verkehrsanbindung: Sehr gute Anbindung an das Verkehrsnetz – in nur fünf Fahrminuten erreichen Sie die Autobahn Richtung Karlsruhe / Basel.
•Zentrumsnähe: Kurze Wege ins Stadtzentrum von Achern – alles, was Sie brauchen, ist in der Nähe.
•Erweiterbar um Verkaufsfläche: Angrenzend an die Werkstatt befindet sich eine zusätzliche 220 m² große Büro-und Verkaufsfläche (auf dem Grundriss in rot markiert), welche optional ebenfalls mitvermietet werden kann.
•Flexible Anpassung der Werkstatt: Die Werkstatt ist teilbar und kann auch in kleineren Einheiten angemietet werden.
•Lager-und Annahmefläche: Große Lagerfläche und Annahmefläche mit hochwertigem Service-Counter inklusive. Lagerflächen für Reifen können optional angemietet werden.
Die Werkstatt befindet sich in einem sehr guten Zustand.
Zehn Parkplätze sind bei der Anmietung der gesamten Werkstatt im Mietpreis inbegriffen.
Weitere Stellplätze, sowie Ladesäulen können gegen Aufpreis optional hinzugebucht werden.
Es fällt keine Maklerprovision an.
Für weitere Informationen oder zur Vereinbarung eines Besichtigungstermins kontaktieren Sie uns bitte.
Wir freuen uns auf Ihre Anfrage!
Ausstattung
| Anzahl der Etagen im Haus | 2 |
Sonstige Informationen
Makleranfragen nicht erwünscht. Nach § 7 UWG sind unaufgeforderte Kontaktaufnahmen durch Makler ohne ausdrückliche Einwilligung des Empfängers verboten!
ohne-makler (OM) ist weder Anbieter noch Vermittler der Immobilie. OM betreibt eine Plattform für Immobilieneigentümer, die unter anderem die gleichzeitige Veröffentlichung einzelner Inserate auf mehreren Immobilienportalen ermöglicht. Die Inhalte dieser Inserate werden ausschließlich von Dritten verantwortet. Für die Richtigkeit, Vollständigkeit oder Rechtmäßigkeit der Angaben übernimmt OM keine Haftung. Hinweise auf mögliche Rechtsverstöße können jederzeit gemeldet werden und werden nach Prüfung umgehend bearbeitet.
Lage des Objektes
Achern hat etwa 25.000 Einwohner und ist somit eine mittelgroße Stadt. Die Stadt ist bekannt für ihre malerische Lage am Fuße des Schwarzwaldes und bietet eine hohe Lebensqualität. Durch ihre zentrale Lage im Südwesten Deutschlands, in unmittelbarer Nähe zu den größeren Städten Karlsruhe und Straßburg, profitiert Achern von einer hervorragenden Verkehrsanbindung und einer hohen Attraktivität für Unternehmen. Durch die Nähe zu Autobahnen und internationalen Flughäfen, insbesondere dem Flughafen Karlsruhe/Baden-Baden, ist Achern für Unternehmen von überregionaler Bedeutung gut erreichbar.
Ein weiterer wichtiger Aspekt von Achern ist die gute Anbindung an den öffentlichen Nahverkehr. Die Stadt liegt an der Bahnstrecke von Karlsruhe nach Freiburg, was eine schnelle Erreichbarkeit anderer Städte ermöglicht.
Insgesamt bietet Achern ein dynamisches und wachsendes wirtschaftliches Umfeld, das sowohl großen Unternehmen als auch kleinen und mittelständischen Betrieben hervorragende Perspektiven bietet. Die Kombination aus günstiger Lage, guter Infrastruktur und vielfältigen Branchen macht die Stadt zu einem bedeutenden Wirtschaftsstandort in der Region.
Ein weiterer wichtiger Aspekt von Achern ist die gute Anbindung an den öffentlichen Nahverkehr. Die Stadt liegt an der Bahnstrecke von Karlsruhe nach Freiburg, was eine schnelle Erreichbarkeit anderer Städte ermöglicht.
Insgesamt bietet Achern ein dynamisches und wachsendes wirtschaftliches Umfeld, das sowohl großen Unternehmen als auch kleinen und mittelständischen Betrieben hervorragende Perspektiven bietet. Die Kombination aus günstiger Lage, guter Infrastruktur und vielfältigen Branchen macht die Stadt zu einem bedeutenden Wirtschaftsstandort in der Region.
Anbieter kontaktieren
Kontakt
| Telefon | - |
| Fax | - |
| Website | www.ohne-makler.net |
