Ladenfläche in Bestlage
immobilien.de Nr.: 9383143
Objektnummer: 415076
Mietpreis & Nebenkosten
| Miete für das Objekt | Auf Anfrage |
| Nebenkosten | Keine Angabe |
| Maklerprovision | keine Provision, courtagefrei |
Wohnfläche, Grundstück & Bausubstanz
| Gesamtfläche | 399 m² |
| Grundstücksfläche | 200 m² |
| Verfügbar ab | sofort |
| Zustand | Gepflegt |
Energie
| Heizungsart | Zentralheizung |
Beschreibung der Immobilie
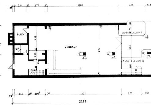
Die Ladenfläche verbindet alles, was ein attraktiver
Innenstadtstandort braucht: Rund 122 m² ebenerdiger
Verkaufsraum mit großer, heller Schaufensterpassage laden
Passanten direkt aus der Fußgängerzone ein. Hinter dem
Verkaufsbereich stehen ein praktisches Lager (ca. 46 m²) sowie
ein großzügiger Keller (ca. 193 m²) bereit, um War zu verstauen
oder Aktionen vorzubereiten. Ein separates Büro und ein
Personal-WC machen den Alltag unkompliziert. Dank des klaren
Grundrisses lässt sich die Fläche flexibel gestalten – ob für
Modegeschäfte, Schuhläden, Concept Stores, Kosmetikstudios,
Reformhäuser, Geschenk- und Dekoartikel, Optiker,
Mobilfunkshops, Buchläden, oder auch als Showroom für
Dienstleister, Start-ups und Onlinehändler mit stationärem
Angebot. Die Lage gut geeignet für Franchisepartner, Gründer,
Filialisten oder Inhaber geführt
Innenstadtstandort braucht: Rund 122 m² ebenerdiger
Verkaufsraum mit großer, heller Schaufensterpassage laden
Passanten direkt aus der Fußgängerzone ein. Hinter dem
Verkaufsbereich stehen ein praktisches Lager (ca. 46 m²) sowie
ein großzügiger Keller (ca. 193 m²) bereit, um War zu verstauen
oder Aktionen vorzubereiten. Ein separates Büro und ein
Personal-WC machen den Alltag unkompliziert. Dank des klaren
Grundrisses lässt sich die Fläche flexibel gestalten – ob für
Modegeschäfte, Schuhläden, Concept Stores, Kosmetikstudios,
Reformhäuser, Geschenk- und Dekoartikel, Optiker,
Mobilfunkshops, Buchläden, oder auch als Showroom für
Dienstleister, Start-ups und Onlinehändler mit stationärem
Angebot. Die Lage gut geeignet für Franchisepartner, Gründer,
Filialisten oder Inhaber geführt
Ausstattungsmerkmale
| Anzahl der Etagen im Haus | 2 |
| Inserat befindet sich im Stockwerk | -1 |
| Boden | Parkett |
| Keller |
Keller, Parkett
Bemerkungen:
aktuell ausgetastet für ein Schuhgeschäft
Bemerkungen:
aktuell ausgetastet für ein Schuhgeschäft
Sonstige Informationen
Heizungsart: Zentralheizung
Energieausweis nicht vorhanden
ca. 122 m² ebenerdige Verkaufsfläche + 37 m² Schaufensterpassage
ca. 46,5 m² Lager ebenerdig, zusätzlich ca. 192,5 m² Kellerfläche
breite, lichtstarke Fensterfront in der Fußgängerzone
klarer, rechteckiger Grundriss – flexible Nutzung separates Büro und Sanitär vorhanden Verfügbar nach Vereinbarung. Konditionen auf Anfrage.
ohne-makler (OM) ist weder Anbieter noch Vermittler der Immobilie. OM betreibt eine Plattform für Immobilieneigentümer, die unter anderem die gleichzeitige Veröffentlichung einzelner Inserate auf mehreren Immobilienportalen ermöglicht. Die Inhalte dieser Inserate werden ausschließlich von Dritten verantwortet. Für die Richtigkeit, Vollständigkeit oder Rechtmäßigkeit der Angaben übernimmt OM keine Haftung. Hinweise auf mögliche Rechtsverstöße können jederzeit gemeldet werden und werden nach Prüfung umgehend bearbeitet.
Energieausweis nicht vorhanden
ca. 122 m² ebenerdige Verkaufsfläche + 37 m² Schaufensterpassage
ca. 46,5 m² Lager ebenerdig, zusätzlich ca. 192,5 m² Kellerfläche
breite, lichtstarke Fensterfront in der Fußgängerzone
klarer, rechteckiger Grundriss – flexible Nutzung separates Büro und Sanitär vorhanden Verfügbar nach Vereinbarung. Konditionen auf Anfrage.
ohne-makler (OM) ist weder Anbieter noch Vermittler der Immobilie. OM betreibt eine Plattform für Immobilieneigentümer, die unter anderem die gleichzeitige Veröffentlichung einzelner Inserate auf mehreren Immobilienportalen ermöglicht. Die Inhalte dieser Inserate werden ausschließlich von Dritten verantwortet. Für die Richtigkeit, Vollständigkeit oder Rechtmäßigkeit der Angaben übernimmt OM keine Haftung. Hinweise auf mögliche Rechtsverstöße können jederzeit gemeldet werden und werden nach Prüfung umgehend bearbeitet.
Karte wird geladen...
Objektstandort
Marktstraße 33
37671 Höxter
- Nordrhein-Westfalen
Lage & Infrastruktur
Objektstandort
Marktstraße 33
37671 Höxter
- Nordrhein-Westfalen
Lage mitten in der Höxteraner Innenstadt, direkt an der belebten
Fußgängerzone zwischen Marktplatz und Weserstraße. Der
Standort profitiert von hoher Passantenfrequenz durch
umliegende Fachgeschäfte, Cafés und Wochenmarktstände
Infrastruktur (im Umkreis von 5 km):
Apotheke, Lebensmittel-Discount, Allgemeinmediziner, Kindergarten, Grundschule, Hauptschule, Realschule, Gymnasium, Gesamtschule, Öffentliche Verkehrsmittel
Fußgängerzone zwischen Marktplatz und Weserstraße. Der
Standort profitiert von hoher Passantenfrequenz durch
umliegende Fachgeschäfte, Cafés und Wochenmarktstände
Infrastruktur (im Umkreis von 5 km):
Apotheke, Lebensmittel-Discount, Allgemeinmediziner, Kindergarten, Grundschule, Hauptschule, Realschule, Gymnasium, Gesamtschule, Öffentliche Verkehrsmittel