600 - 1000 m² Gewerbefläche mit großem Parkplatz neben Fitnessstudio und Neubau Penny Markt
immobilien.de Nr.: 9375185
Objektnummer: 325532
Dateien
Preise & Kosten
| Miete für das Objekt | Auf Anfrage |
| Nebenkosten | keine Angabe |
| Maklerprovision | keine Provision, courtagefrei |
Größe & Zustand
| Gesamtfläche | 999 m² |
| Grundstücksfläche | 5.000 m² |
| Baujahr | 1998 |
| Verfügbar ab | nach Absprache |
| Zustand | Gepflegt |
Energie
| Heizungsart | Zentralheizung |
| Energieträger/Befeuerung | Gas |
Objektbeschreibung
Die zur Vermietung stehende Gewerbefläche befindet sich in der Biederbacher Straße 27 in Wolframs-Eschenbach, in einem langjährig eingeführten Nahversorgungszentrum. Mit einer Gesamtfläche von 999 Quadratmetern bietet die Fläche vielseitige Nutzungsmöglichkeiten, darunter Einzelhandel, Lager, Logistik oder kleinteiliges Gewerbe.
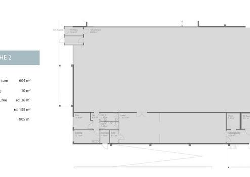
Die Fläche ist flexibel gestaltbar und bei Bedarf teilbar. Sie umfasst einen großzügigen Verkaufsraum von 615 m² (erweiterbar um 194 m²), 191 m² Nebenräume sowie ein Lager von 200 Quadratmetern.
Es handelt sich um die bestehende Penny-Markt Fläche. Die Filiale wird im Moment auf dem Parkplatz freistehend neugebaut. Die Eröffnung ist für Herbst 2026 geplant. Ab diesem Zeitpunkt steht die Fläche zur Anmietung zur Verfügung.
Die Fläche ist flexibel gestaltbar und bei Bedarf teilbar. Sie umfasst einen großzügigen Verkaufsraum von 615 m² (erweiterbar um 194 m²), 191 m² Nebenräume sowie ein Lager von 200 Quadratmetern.
Es handelt sich um die bestehende Penny-Markt Fläche. Die Filiale wird im Moment auf dem Parkplatz freistehend neugebaut. Die Eröffnung ist für Herbst 2026 geplant. Ab diesem Zeitpunkt steht die Fläche zur Anmietung zur Verfügung.
Ausstattung
| Anzahl der Etagen im Haus | 1 |
| Inserat befindet sich im Stockwerk | 0 |
| Boden | Fliesen |
| Barrierefrei |
Barrierefrei, Fliesen, Sonstiges (s. Text)
Bemerkungen:
Die Gewerbefläche ist hochwertig ausgestattet und bietet zahlreiche praktische und technische Vorteile:
Heizungssystem: Eine Gaszentralheizung sorgt für zuverlässige Wärme, während in Teilbereichen eine komfortable Fußbodenheizung installiert ist.
Bodenbeläge: Die gesamten Flächen sind vollständig gefliest oder gepflastert, was sie besonders robust und pflegeleicht macht.
Internetanschluss: Ein leistungsstarker Internetanschluss mit bis zu 100 MB Geschwindigkeit ist bereits vorhanden und ideal für moderne Arbeits- und Kommunikationsanforderungen.
Barrierefreier Zugang: Alle Zugänge sind barrierefrei gestaltet, was eine einfache und flexible Nutzung ermöglicht.
Sozialräume: Ein Filialleiterbüro sowie ein Sozialraum mit Pantryküche und eigenem WC bietet optimale Bedingungen für Personal.
Mehrfachzugänge: Vier separate Zugänge, darunter ein Lagertor und eine Schiebetür an der Fassade, sorgen für eine flexible und funktionale Nutzung der Fläche.
Werbemöglichkeiten: Die Fläche bietet umfassende Optionen für Außenwerbung. Schaufensterflächen können individuell foliert werden, eine Leuchtreklame kann an der Fassade installiert werden, und es besteht die Möglichkeit, eine Werbestele an der Zufahrt anzubringen, um die Sichtbarkeit zu erhöhen.
Flexibilität: Die Fläche kann je nach Bedarf angepasst und bei Bedarf auch in kleinere Einheiten aufgeteilt werden.
Die Gewerbefläche ist ab sofort verfügbar. Die Kaltmiete ist individuell verhandelbar und richtet sich nach der geplanten Nutzung und Vertragslaufzeit. Es wird keine Kaution erhoben, was den Einstieg für neue Mieter besonders erleichtert.
Bemerkungen:
Die Gewerbefläche ist hochwertig ausgestattet und bietet zahlreiche praktische und technische Vorteile:
Heizungssystem: Eine Gaszentralheizung sorgt für zuverlässige Wärme, während in Teilbereichen eine komfortable Fußbodenheizung installiert ist.
Bodenbeläge: Die gesamten Flächen sind vollständig gefliest oder gepflastert, was sie besonders robust und pflegeleicht macht.
Internetanschluss: Ein leistungsstarker Internetanschluss mit bis zu 100 MB Geschwindigkeit ist bereits vorhanden und ideal für moderne Arbeits- und Kommunikationsanforderungen.
Barrierefreier Zugang: Alle Zugänge sind barrierefrei gestaltet, was eine einfache und flexible Nutzung ermöglicht.
Sozialräume: Ein Filialleiterbüro sowie ein Sozialraum mit Pantryküche und eigenem WC bietet optimale Bedingungen für Personal.
Mehrfachzugänge: Vier separate Zugänge, darunter ein Lagertor und eine Schiebetür an der Fassade, sorgen für eine flexible und funktionale Nutzung der Fläche.
Werbemöglichkeiten: Die Fläche bietet umfassende Optionen für Außenwerbung. Schaufensterflächen können individuell foliert werden, eine Leuchtreklame kann an der Fassade installiert werden, und es besteht die Möglichkeit, eine Werbestele an der Zufahrt anzubringen, um die Sichtbarkeit zu erhöhen.
Flexibilität: Die Fläche kann je nach Bedarf angepasst und bei Bedarf auch in kleinere Einheiten aufgeteilt werden.
Die Gewerbefläche ist ab sofort verfügbar. Die Kaltmiete ist individuell verhandelbar und richtet sich nach der geplanten Nutzung und Vertragslaufzeit. Es wird keine Kaution erhoben, was den Einstieg für neue Mieter besonders erleichtert.
Sonstige Informationen
Heizungsart: Zentralheizung
Energieträger: Gas
Energieausweis nicht vorhanden
Makleranfragen nicht erwünscht. Nach § 7 UWG sind unaufgeforderte Kontaktaufnahmen durch Makler ohne ausdrückliche Einwilligung des Empfängers verboten!
ohne-makler (OM) ist weder Anbieter noch Vermittler der Immobilie. OM betreibt eine Plattform für Immobilieneigentümer, die unter anderem die gleichzeitige Veröffentlichung einzelner Inserate auf mehreren Immobilienportalen ermöglicht. Die Inhalte dieser Inserate werden ausschließlich von Dritten verantwortet. Für die Richtigkeit, Vollständigkeit oder Rechtmäßigkeit der Angaben übernimmt OM keine Haftung. Hinweise auf mögliche Rechtsverstöße können jederzeit gemeldet werden und werden nach Prüfung umgehend bearbeitet.
Energieträger: Gas
Energieausweis nicht vorhanden
Makleranfragen nicht erwünscht. Nach § 7 UWG sind unaufgeforderte Kontaktaufnahmen durch Makler ohne ausdrückliche Einwilligung des Empfängers verboten!
ohne-makler (OM) ist weder Anbieter noch Vermittler der Immobilie. OM betreibt eine Plattform für Immobilieneigentümer, die unter anderem die gleichzeitige Veröffentlichung einzelner Inserate auf mehreren Immobilienportalen ermöglicht. Die Inhalte dieser Inserate werden ausschließlich von Dritten verantwortet. Für die Richtigkeit, Vollständigkeit oder Rechtmäßigkeit der Angaben übernimmt OM keine Haftung. Hinweise auf mögliche Rechtsverstöße können jederzeit gemeldet werden und werden nach Prüfung umgehend bearbeitet.
Lage des Objektes
Lagebeschreibung
Die Gewerbefläche liegt in der Biederbacher Straße 27, einer der Hauptzufahrtsstraßen von Wolframs-Eschenbach. Der Ort hat etwa 3.300 Einwohner, jedoch ein starkes Einzugsgebiet:
5 Kilometer Radius: 13.000 Einwohner
10 Kilometer Radius: 48.000 Einwohner
Besonders vorteilhaft ist die Nähe zu den umliegenden Städten wie Mitteleschenbach, Merkendorf und Triesdorf, wobei letzteres mit seinen 5.500 Studenten ein wichtiger Standortfaktor ist.
Darüber hinaus ist Wolframs-Eschenbach für seine historische Altstadt und die Lage im Fränkischen Seenland bekannt, was jährlich bis zu 30.000 Übernachtungen generiert. Zusätzlich gibt es zahlreiche Wohnwagenübernachtungen, die die touristische Relevanz weiter steigern.
Auf dem Grundstück selbst befinden sich etwa 75 Parkplätze, die gemeinschaftlich mit einer Penny-Markt-Filiale genutzt werden können.
Infrastruktur (im Umkreis von 5 km):
Apotheke, Lebensmittel-Discount, Allgemeinmediziner, Kindergarten, Grundschule, Hauptschule, Realschule, Gesamtschule, Öffentliche Verkehrsmittel
Die Gewerbefläche liegt in der Biederbacher Straße 27, einer der Hauptzufahrtsstraßen von Wolframs-Eschenbach. Der Ort hat etwa 3.300 Einwohner, jedoch ein starkes Einzugsgebiet:
5 Kilometer Radius: 13.000 Einwohner
10 Kilometer Radius: 48.000 Einwohner
Besonders vorteilhaft ist die Nähe zu den umliegenden Städten wie Mitteleschenbach, Merkendorf und Triesdorf, wobei letzteres mit seinen 5.500 Studenten ein wichtiger Standortfaktor ist.
Darüber hinaus ist Wolframs-Eschenbach für seine historische Altstadt und die Lage im Fränkischen Seenland bekannt, was jährlich bis zu 30.000 Übernachtungen generiert. Zusätzlich gibt es zahlreiche Wohnwagenübernachtungen, die die touristische Relevanz weiter steigern.
Auf dem Grundstück selbst befinden sich etwa 75 Parkplätze, die gemeinschaftlich mit einer Penny-Markt-Filiale genutzt werden können.
Infrastruktur (im Umkreis von 5 km):
Apotheke, Lebensmittel-Discount, Allgemeinmediziner, Kindergarten, Grundschule, Hauptschule, Realschule, Gesamtschule, Öffentliche Verkehrsmittel
